Property
Account |
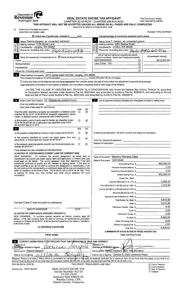
| Property ID: | 702485 | Abbreviated Legal Description: | VILLAGE AT USELESS BAY #16 UNIT 502 1/14TH INT |
| Geographic ID: | S8372-00-00502-0 | Agent Code: | |
| Type: | Real | | |
| Tax Area: | 750 - APPRAISER-S Whid Schl Dist, Special District, improved & less than 1 acre | Land Use Code | 14 |
| Open Space: | N | DFL | N |
| Historic Property: | N | Remodel Property: | N |
| Multi-Family Redevelopment: | N | | |
| Township: | | Section: | |
| Range: | |
Location |
| Address: | 2410 USELESS BAY AVE UNIT 502 LANGLEY, WA 98260 | Mapsco: | |
| Neighborhood: | 45*RR-useless bay | Map ID: | 785 |
| Neighborhood CD: | 45*RRusles |
Owner |
| Name: | CARLSON, IONE F | Owner ID: | 296871 |
| Mailing Address: | 2410 JAMES PL UNIT 502 LANGLEY, WA 98260-6742 | % Ownership: | 100.0000000000% |
| | | Exemptions: | |
Taxes and Assessment Details
Values
| (+) Improvement Homesite Value: | + | $0 | |
| (+) Improvement Non-Homesite Value: | + | $311,442 | |
| (+) Land Homesite Value: | + | $0 | |
| (+) Land Non-Homesite Value: | + | $270,000 | |
| (+) Curr Use (HS): | + | $0 | $0 |
| (+) Curr Use (NHS): | + | $0 | $0 |
| | | -------------------------- | |
| (=) Market Value: | = | $581,442 | |
| (–) Productivity Loss: | – | $0 | |
| | | -------------------------- | |
| (=) Subtotal: | = | $581,442 | |
| (+) Senior Appraised Value: | + | $0 | |
| (+) Non-Senior Appraised Value: | + | $581,442 | |
| | | -------------------------- | |
| (=) Total Appraised Value: | = | $581,442 | |
| (–) Senior Exemption Loss: | – | $0 | |
| (–) Exemption Loss: | – | $0 | |
| | | -------------------------- | |
| (=) Taxable Value: | = | $581,442 | |
Taxing Jurisdiction
| Owner: | CARLSON, IONE F | | |
| % Ownership: | 100.0000000000% | | |
| Total Value: | $581,442 | | |
| Tax Area: | 750 - APPRAISER-S Whid Schl Dist, Special District, improved & less than 1 acre |
| CF | Conservation Futures | 0.0313996660 | $581,442 | $581,442 | $18.26 | | |
| FIRE3 | Fire & Rescue Dist #3 S Whidbey GEN | 1.2130821753 | $581,442 | $581,442 | $705.34 | | |
| HOBOND | Hospital BOND | 0.1893405597 | $581,442 | $581,442 | $110.09 | | |
| HOGEN | Hospital GEN | 0.3848777722 | $581,442 | $581,442 | $223.78 | | |
| CE | County Current Expense | 0.3674210519 | $581,442 | $581,442 | $213.63 | | |
| CR | County Roads | 0.4614296361 | $581,442 | $581,442 | $268.29 | | |
| ISLANDEMS | Hospital GEN (EMS) | 0.4952018576 | $581,442 | $581,442 | $287.93 | | |
| LIB | Library Sno-Isle GEN | 0.3039084203 | $581,442 | $581,442 | $176.71 | | |
| PORTWHID | Port of S Whidbey GEN | 0.1086004714 | $581,442 | $581,442 | $63.14 | | |
| SCH206BOND | School 206 BOND | 0.5960237832 | $581,442 | $581,442 | $346.55 | | |
| SCH206CAP | School 206 CP | 0.3066144020 | $581,442 | $581,442 | $178.28 | | |
| SCH206MO | School 206 Enrichment | 0.4808755445 | $581,442 | $581,442 | $279.60 | | |
| ST | State School | 1.4761226122 | $581,442 | $581,442 | $858.28 | | |
| ST2 | State School Part 2 | 0.7953803475 | $581,442 | $581,442 | $462.47 | | |
| SWHIDPRBD | P & R S Whidbey BOND | 0.0144185398 | $581,442 | $581,442 | $8.38 | | |
| SWHIDPRBD3 | P & R S Whidbey BOND3 | 0.1483535547 | $581,442 | $581,442 | $86.26 | | |
| SWHIDPRMT | P & R S Whidbey GEN | 0.4600000000 | $581,442 | $581,442 | $267.46 | | |
| | Total Tax Rate: | 7.8330503944 | | | | | |
| | | | | Taxes w/Current Exemptions: | $4,554.45 | | |
| | | | | Taxes w/o Exemptions: | $4,554.45 | | |
Improvement / Building
| Improvement #1: | RESIDENTIAL | State Code: | A1 | 2316.5 sqft | Value: | $311,442 |
| Bathrooms: | 3 | Bedrooms: | 3 | | Ceiling: | DRYWALL PAINTED | Exterior Wall/Cover: | PLY/HARDBOARD T-111 | | Floor Covering: | CARPET/VINYL 80-20 | Floor Structure: | WOOD W/SUBFLOOR | | Foundation: | CONCRETE | Heating: | FHA GAS | | Interior Finish: | DRYWALL PAINT | Plumbing Fixture Cnt: | 13 | | Roof Slope: | 4" IN 12" | Roof Structure/Cover: | CJ ASPHALT |
|
| | Type | Description | Class CD | Sub Class CD | Year Built | Area |
| | BAS | BASE/MAIN FLOOR | 3 | 0 | 1994 | 1478.5 |
| | OP3 | OPEN PORCH W/ROOF | 3 | 0 | 1994 | 55.0 |
| | AGR | ATTACHED GARAGE | 3 | 0 | 1994 | 717.0 |
| | UPS | UPPER STORY | 3 | 0 | 1994 | 838.0 |
| | OWP | OPEN WOOD PORCH W/STEPS | 3 | 0 | 1994 | 117.0 |
| | OP1 | OPEN PORCH SLAB | 3 | 0 | 1994 | 237.0 |
| | COMA | Common Area Improvement | 3 | 0 | 1994 | 0.0 |
Sketch
Property Image
Land
| 1 | 61 | MULTIPLE RESIDENCES | 0.0000 | 12350.00 | 0.00 | 0.00 | 1.00 | $270,000 | $0 |
Roll Value History
| 2026 | N/A | N/A | N/A | N/A | N/A |
| 2025 | $311,442 | $270,000 | $0 | $581,442 | $581,442 |
| 2024 | $315,676 | $270,000 | $0 | $585,676 | $585,676 |
| 2023 | $319,909 | $270,000 | $0 | $589,909 | $589,909 |
| 2022 | $293,636 | $250,000 | $0 | $543,636 | $543,636 |
| 2021 | $258,830 | $210,000 | $0 | $468,830 | $468,830 |
| 2020 | $252,547 | $160,000 | $0 | $412,547 | $412,547 |
| 2019 | $239,273 | $130,000 | $0 | $369,273 | $369,273 |
| 2018 | $240,024 | $68,543 | $0 | $308,567 | $308,567 |
| 2017 | $241,523 | $68,543 | $0 | $310,066 | $310,066 |
| 2016 | $244,524 | $68,543 | $0 | $313,067 | $313,067 |
| 2015 | $206,270 | $68,543 | $0 | $274,813 | $274,813 |
| 2014 | $201,269 | $68,543 | $0 | $269,812 | $269,812 |
| 2013 | $203,770 | $68,543 | $0 | $272,313 | $272,313 |
| 2012 | $208,770 | $68,543 | $0 | $277,313 | $277,313 |
| 2011 | $208,770 | $68,543 | $0 | $277,313 | $277,313 |
| 2010 | $217,807 | $68,543 | $0 | $286,350 | $286,350 |
| 2009 | $227,115 | $86,697 | $0 | $313,812 | $313,812 |
| 2008 | $333,232 | $91,884 | $0 | $425,116 | $425,116 |
| 2007 | $337,312 | $91,884 | $0 | $429,196 | $429,196 |
Deed and Sales History
| 1 | 10/01/2020 | WD | Warranty Deed | SARGENT, PATRICIA F | CARLSON, IONE F | | | $602,500.00 | 45156 | 4498974 |
| 2 | 03/12/2001 | WD | Warranty Deed | MOCK, JAMES E | SARGENT, PATRICIA F | | | $285,000.00 | 10780 | 20027169 |
| 3 | 09/01/1997 | WD | Warranty Deed | ARCHER, DONALD D | MOCK, JAMES E | | | $213,000.00 | 73109 | 97014666 |
| 4 | 02/01/1997 | WD | Warranty Deed | RFT, INVESTMENTS I | ARCHER, DONALD D | | | $194,500.00 | 70653 | 97002898 |
| 5 | 01/01/1900 | OTHER | Other - Misc. Documents | Unknown | RFT, INVESTMENTS I | | | $0.00 | 42495 | 94013957 |
Payout Agreement
| No payout information available.. |