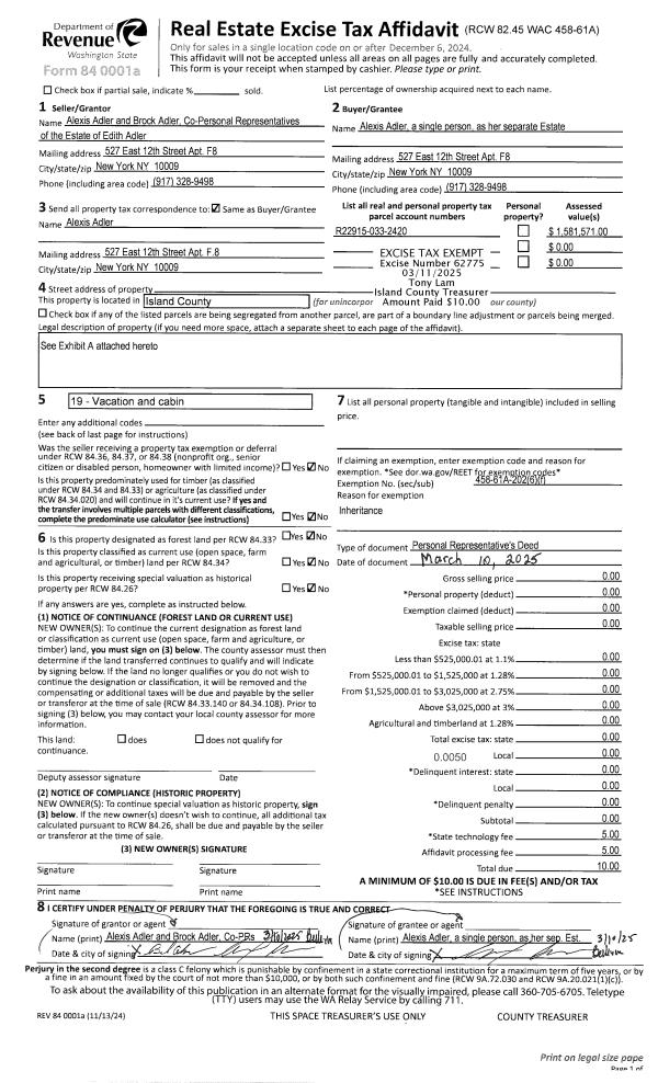
Property
Account |
| Property ID: | 702797 | Abbreviated Legal Description: | PT FOLL DESC LY E OF SURFACE RD: NE SE SW EX CO TGW SE SE SW EX CO RD FR 078-2230 |
| Geographic ID: | R32914-072-2250 | Agent Code: | |
| Type: | Real | | |
| Tax Area: | 712 - APPRAISER-S Whid Schl Dist, outside Langley, improved, greater than 1 acre | Land Use Code | 88 |
| Open Space: | N | DFL | Y |
| Historic Property: | N | Remodel Property: | N |
| Multi-Family Redevelopment: | N | | |
| Township: | 29 | Section: | 14 |
| Range: | R3 |
Location |
| Address: | 4453 CAMPBELL RD CLINTON, WA 98236 | Mapsco: | |
| Neighborhood: | Cycle 4 | Map ID: | 766 |
| Neighborhood CD: | 4 |
Owner |
| Name: | TARVER, DAVID | Owner ID: | 313164 |
| Mailing Address: | DONNA DEVINE 4521 DEER LAKE RD CLINTON, WA 98236 | % Ownership: | 100.0000000000% |
| | | Exemptions: | |
Taxes and Assessment Details
Values
| (+) Improvement Homesite Value: | + | $0 | |
| (+) Improvement Non-Homesite Value: | + | $687,444 | |
| (+) Land Homesite Value: | + | $0 | |
| (+) Land Non-Homesite Value: | + | $260,000 | |
| (+) Curr Use (HS): | + | $0 | $0 |
| (+) Curr Use (NHS): | + | $140,000 | $2,113 |
| | | -------------------------- | |
| (=) Market Value: | = | $1,087,444 | |
| (–) Productivity Loss: | – | $137,887 | |
| | | -------------------------- | |
| (=) Subtotal: | = | $949,557 | |
| (+) Senior Appraised Value: | + | $0 | |
| (+) Non-Senior Appraised Value: | + | $949,557 | |
| | | -------------------------- | |
| (=) Total Appraised Value: | = | $949,557 | |
| (–) Senior Exemption Loss: | – | $0 | |
| (–) Exemption Loss: | – | $0 | |
| | | -------------------------- | |
| (=) Taxable Value: | = | $949,557 | |
Taxing Jurisdiction
| Owner: | TARVER, DAVID | | |
| % Ownership: | 100.0000000000% | | |
| Total Value: | $1,087,444 | | |
| Tax Area: | 712 - APPRAISER-S Whid Schl Dist, outside Langley, improved, greater than 1 acre |
| CF | Conservation Futures | 0.0313996660 | $949,557 | $949,557 | $29.82 | | |
| FIRE3 | Fire & Rescue Dist #3 S Whidbey GEN | 1.2130821753 | $949,557 | $949,557 | $1,151.89 | | |
| HOBOND | Hospital BOND | 0.1893405597 | $949,557 | $949,557 | $179.79 | | |
| HOGEN | Hospital GEN | 0.3848777722 | $949,557 | $949,557 | $365.46 | | |
| CE | County Current Expense | 0.3674210519 | $949,557 | $949,557 | $348.89 | | |
| CR | County Roads | 0.4614296361 | $949,557 | $949,557 | $438.15 | | |
| ISLANDEMS | Hospital GEN (EMS) | 0.4952018576 | $949,557 | $949,557 | $470.22 | | |
| LIB | Library Sno-Isle GEN | 0.3039084203 | $949,557 | $949,557 | $288.58 | | |
| PORTWHID | Port of S Whidbey GEN | 0.1086004714 | $949,557 | $949,557 | $103.12 | | |
| SCH206BOND | School 206 BOND | 0.5960237832 | $949,557 | $949,557 | $565.96 | | |
| SCH206CAP | School 206 CP | 0.3066144020 | $949,557 | $949,557 | $291.15 | | |
| SCH206MO | School 206 Enrichment | 0.4808755445 | $949,557 | $949,557 | $456.62 | | |
| ST | State School | 1.4761226122 | $949,557 | $949,557 | $1,401.66 | | |
| ST2 | State School Part 2 | 0.7953803475 | $949,557 | $949,557 | $755.26 | | |
| SWHIDPRBD | P & R S Whidbey BOND | 0.0144185398 | $949,557 | $949,557 | $13.69 | | |
| SWHIDPRBD3 | P & R S Whidbey BOND3 | 0.1483535547 | $949,557 | $949,557 | $140.87 | | |
| SWHIDPRMT | P & R S Whidbey GEN | 0.4600000000 | $949,557 | $949,557 | $436.80 | | |
| | Total Tax Rate: | 7.8330503944 | | | | | |
| | | | | Taxes w/Current Exemptions: | $7,437.93 | | |
| | | | | Taxes w/o Exemptions: | $7,437.93 | | |
Improvement / Building
| Improvement #1: | RESIDENTIAL | State Code: | Y | 2265.8 sqft | Value: | $523,439 |
| Bathrooms: | 2.5 | Bedrooms: | 2 | | Ceiling: | DRY WALL SPRAYED | Cooling: | HEAT PUMP/CONV/V | | Exterior Wall/Cover: | WOOD SIDING | Floor Covering: | HARDWOOD/CARP 60-40 | | Floor Structure: | WOOD W/SUBFLOOR | Foundation: | CONCRETE | | Interior Finish: | DRYWALL PAINT | Plumbing Fixture Cnt: | 14 | | Roof Slope: | 12" IN 12" | Roof Structure/Cover: | CJ ASPHALT |
|
| | Type | Description | Class CD | Sub Class CD | Year Built | Area |
| | BAS | BASE/MAIN FLOOR | 4 | 0 | 2000 | 1157.8 |
| | UPS | UPPER STORY | 4 | 0 | 2000 | 1108.0 |
| | OWP | OPEN WOOD PORCH W/STEPS | 4 | 0 | 2000 | 504.5 |
| | OWC | OPEN WOOD PORCH W/STEPS/ROOF/C | 4 | 0 | 2000 | 459.0 |
| | OWC | OPEN WOOD PORCH W/STEPS/ROOF/C | 4 | 0 | 2000 | 80.0 |
| Improvement #2: | RESIDENTIAL | State Code: | Y | 512.0 sqft | Value: | $164,005 |
| Bathrooms: | 1 | Bedrooms: | 1 | | Ceiling: | DRYWALL PAINTED | Cooling: | HEAT PUMP/CONV/V | | Exterior Wall/Cover: | WOOD SIDING | Floor Covering: | HARDWOOD/CARP 60-40 | | Floor Structure: | WOOD W/SUBFLOOR | Foundation: | SLAB | | Interior Finish: | DRYWALL PAINT | Plumbing Fixture Cnt: | 6 | | Roof Slope: | 12" IN 12" | Roof Structure/Cover: | CJ ASPHALT |
|
| | Type | Description | Class CD | Sub Class CD | Year Built | Area |
| | BAS | BASE/MAIN FLOOR | 3 | 0 | 2000 | 512.0 |
| | BIG | BUILT IN GARAGE | 3 | 0 | 2000 | 640.0 |
| | OWP | OPEN WOOD PORCH W/STEPS | 3 | 0 | 2000 | 112.0 |
Sketch
Property Image
Land
| 1 | 88 | DESIGNATED FOREST | 2.7500 | 119790.00 | 0.00 | 0.00 | 1.00 | $28,796 | $531 |
| 2 | HS | HOMESITE | 1.0000 | 43560.00 | 0.00 | 0.00 | 1.00 | $260,000 | $0 |
| 3 | 88 | DESIGNATED FOREST | 10.6200 | 462607.20 | 0.00 | 0.00 | 1.00 | $111,204 | $1,582 |
Roll Value History
| 2026 | N/A | N/A | N/A | N/A | N/A |
| 2025 | $687,444 | $400,000 | $2,113 | $949,557 | $949,557 |
| 2024 | $497,681 | $360,000 | $2,127 | $749,808 | $749,808 |
| 2023 | $503,732 | $360,000 | $2,060 | $527,587 | $527,587 |
| 2022 | $461,612 | $350,000 | $2,060 | $484,862 | $484,862 |
| 2021 | $406,186 | $250,000 | $2,060 | $423,381 | $423,381 |
| 2020 | $357,012 | $250,000 | $2,060 | $374,207 | $374,207 |
| 2019 | $278,379 | $300,000 | $1,989 | $298,531 | $298,531 |
| 2018 | $279,226 | $220,000 | $1,960 | $294,505 | $294,505 |
| 2017 | $270,495 | $200,000 | $1,960 | $284,564 | $284,564 |
| 2016 | $273,755 | $200,000 | $1,760 | $287,623 | $287,623 |
| 2015 | $277,015 | $200,000 | $1,760 | $290,883 | $290,883 |
| 2014 | $276,811 | $155,000 | $1,760 | $287,955 | $287,955 |
| 2013 | $280,884 | $215,550 | $0 | $496,434 | $496,434 |
| 2012 | $284,142 | $215,550 | $0 | $499,692 | $499,692 |
| 2011 | $287,398 | $215,550 | $0 | $502,948 | $502,948 |
| 2010 | $301,690 | $215,550 | $0 | $517,240 | $517,240 |
| 2009 | $314,445 | $258,660 | $0 | $573,105 | $573,105 |
| 2008 | $311,800 | $291,711 | $0 | $603,511 | $603,511 |
| 2007 | $311,966 | $291,711 | $0 | $603,677 | $603,677 |
Deed and Sales History
| 1 | 07/08/2024 | WD | Warranty Deed | ANAMOSA, MARTHA | TARVER, DAVID | | | $1,460,000.00 | 60649 | 4574593 |
| 2 | 11/14/2023 | PRD | Personal Representatives Deed | FULGHAM, M DUANE | ANAMOSA, MARTHA | | | $0.00 | 58853 | 4567976 |
| 3 | 12/17/1998 | WD | Warranty Deed | PLOOF, FRANK & | FULGHAM, H DUANE | | | $162,000.00 | 85120 | 98028029 |
| 4 | 03/01/1995 | OTHER | Other - Misc. Documents | PLOOF, FRANK & | PLOOF, FRANK & | | | $0.00 | 66315 | 0 |
| 5 | 01/01/1900 | OTHER | Other - Misc. Documents | Unknown | PLOOF, FRANK & | | | $0.00 | 42316 | 94013155 |
Payout Agreement
| No payout information available.. |