| 1 | 12/18/2023 | QCD | Quit Claim Deed | AGWEST FARM CREDT, FLCA | PHOENIX CAPITAL GROUP HOLDINGS, LLC | | | $0.00 | 60366 | 4573630 |
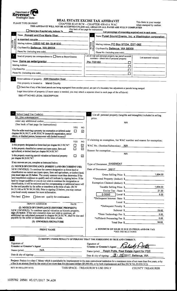
| 2 | 03/06/2017 | EZ | Easement | SHER, RONALD/EVA | PUGET SOUND ENERGY | | | $1,664.00 | 28581 | 4419541 |
| 3 | 12/07/2010 | QCD | Quit Claim Deed | SHER, RONALD/EVA | SHER, RONALD/EVA | | | $0.00 | 3288 | 4287952 |
| 4 | 10/11/2005 | WD | Warranty Deed | GIBBONS, CARRIE A | SHER, RONALD | | | $218,570.00 | 55462 | 4152494 |
| 5 | 09/10/2001 | WD | Warranty Deed | OLYMPIC COAST INVESTMENT, INC, | GIBBONS, CARRIE A | | | $119,925.00 | 13544 | 20042810 |
| 6 | 06/22/2001 | TRUSTEED | Trustee's Deed | NRRE COMPANY INC, | OLYMPIC COAST INVESTMENT, INC, | | | $0.00 | 12270 | 20035314 |
| 7 | 01/22/2001 | QCD | Quit Claim Deed | BOYD REAL ESTATE INV. INC, | NRRE COMPANY INC, | | | $0.00 | 10308 | 20024453 |
| 8 | 04/19/2000 | BLA | DNU - Boundary Line Adjustment | BOYD REAL ESTATE INV. INC, | BOYD REAL ESTATE INV. INC, | | | $0.00 | 68673 | 20006475 |
| 9 | 02/23/2000 | TRUSTEED | Trustee's Deed | LANNING, VICTORIA M | BOYD REAL ESTATE INV. INC, | | | $0.00 | 661 | 20003464 |
| 10 | 12/01/1994 | QCD | Quit Claim Deed | LANNING, VICTORIA M | LANNING, VICTORIA M | | | $0.00 | 50116 | 95000581 |
| 11 | 01/01/1900 | OTHER | Other - Misc. Documents | Unknown | LANNING, VICTORIA M | | | $0.00 | 40930 | 94006125 |
| 12 | 01/01/1900 | OTHER | Other - Misc. Documents | LANNING, VICTORIA M | LANNING, VICTORIA M | | | $0.00 | 0 | 0 |