Property
Account |
| Property ID: | 70737 | Abbreviated Legal Description: | 40 - E/2 OF SW SW NW |
| Geographic ID: | R23036-298-0490 | Agent Code: | |
| Type: | Real | | |
| Tax Area: | 712 - APPRAISER-S Whid Schl Dist, outside Langley, improved, greater than 1 acre | Land Use Code | 11 |
| Open Space: | N | DFL | N |
| Historic Property: | N | Remodel Property: | N |
| Multi-Family Redevelopment: | N | | |
| Township: | 30 | Section: | 36 |
| Range: | R2 |
Location |
| Address: | 2042 LONE ROCK LN FREELAND, WA 98249 | Mapsco: | |
| Neighborhood: | Cycle 3 | Map ID: | 447 |
| Neighborhood CD: | 3 |
Owner |
| Name: | PETRICH, MATTHEW J | Owner ID: | 299951 |
| Mailing Address: | GREGORY CLARK & NICOLE A PETRICH 2042 LONE ROCK LN FREELAND, WA 98249 | % Ownership: | 100.0000000000% |
| | | Exemptions: | |
Taxes and Assessment Details
Values
| (+) Improvement Homesite Value: | + | $0 | |
| (+) Improvement Non-Homesite Value: | + | $749,998 | |
| (+) Land Homesite Value: | + | $0 | |
| (+) Land Non-Homesite Value: | + | $410,000 | |
| (+) Curr Use (HS): | + | $0 | $0 |
| (+) Curr Use (NHS): | + | $0 | $0 |
| | | -------------------------- | |
| (=) Market Value: | = | $1,159,998 | |
| (–) Productivity Loss: | – | $0 | |
| | | -------------------------- | |
| (=) Subtotal: | = | $1,159,998 | |
| (+) Senior Appraised Value: | + | $0 | |
| (+) Non-Senior Appraised Value: | + | $1,159,998 | |
| | | -------------------------- | |
| (=) Total Appraised Value: | = | $1,159,998 | |
| (–) Senior Exemption Loss: | – | $0 | |
| (–) Exemption Loss: | – | $0 | |
| | | -------------------------- | |
| (=) Taxable Value: | = | $1,159,998 | |
Taxing Jurisdiction
| Owner: | PETRICH, MATTHEW J | | |
| % Ownership: | 100.0000000000% | | |
| Total Value: | $1,159,998 | | |
| Tax Area: | 712 - APPRAISER-S Whid Schl Dist, outside Langley, improved, greater than 1 acre |
| CF | Conservation Futures | 0.0313996660 | $1,159,998 | $1,159,998 | $36.42 | | |
| FIRE3 | Fire & Rescue Dist #3 S Whidbey GEN | 1.2130821753 | $1,159,998 | $1,159,998 | $1,407.17 | | |
| HOBOND | Hospital BOND | 0.1893405597 | $1,159,998 | $1,159,998 | $219.63 | | |
| HOGEN | Hospital GEN | 0.3848777722 | $1,159,998 | $1,159,998 | $446.46 | | |
| CE | County Current Expense | 0.3674210519 | $1,159,998 | $1,159,998 | $426.21 | | |
| CR | County Roads | 0.4614296361 | $1,159,998 | $1,159,998 | $535.26 | | |
| ISLANDEMS | Hospital GEN (EMS) | 0.4952018576 | $1,159,998 | $1,159,998 | $574.43 | | |
| LIB | Library Sno-Isle GEN | 0.3039084203 | $1,159,998 | $1,159,998 | $352.53 | | |
| PORTWHID | Port of S Whidbey GEN | 0.1086004714 | $1,159,998 | $1,159,998 | $125.98 | | |
| SCH206BOND | School 206 BOND | 0.5960237832 | $1,159,998 | $1,159,998 | $691.39 | | |
| SCH206CAP | School 206 CP | 0.3066144020 | $1,159,998 | $1,159,998 | $355.67 | | |
| SCH206MO | School 206 Enrichment | 0.4808755445 | $1,159,998 | $1,159,998 | $557.81 | | |
| ST | State School | 1.4761226122 | $1,159,998 | $1,159,998 | $1,712.30 | | |
| ST2 | State School Part 2 | 0.7953803475 | $1,159,998 | $1,159,998 | $922.64 | | |
| SWHIDPRBD | P & R S Whidbey BOND | 0.0144185398 | $1,159,998 | $1,159,998 | $16.73 | | |
| SWHIDPRBD3 | P & R S Whidbey BOND3 | 0.1483535547 | $1,159,998 | $1,159,998 | $172.09 | | |
| SWHIDPRMT | P & R S Whidbey GEN | 0.4600000000 | $1,159,998 | $1,159,998 | $533.60 | | |
| | Total Tax Rate: | 7.8330503944 | | | | | |
| | | | | Taxes w/Current Exemptions: | $9,086.32 | | |
| | | | | Taxes w/o Exemptions: | $9,086.32 | | |
Improvement / Building
| Improvement #1: | RESIDENTIAL | State Code: | Y | 3907.0 sqft | Value: | $749,998 |
| Bathrooms: | 3 | Bedrooms: | 3 | | Ceiling: | DRYWALL PAINTED | Cooling: | HEAT PUMP/CONV/V | | Exterior Wall/Cover: | WOOD SIDING | Floor Covering: | CERAMIC TILE/HWD 40/60 | | Floor Structure: | WOOD W/SUBFLOOR | Foundation: | CONCRETE | | Interior Finish: | DRYWALL PAINT | Plumbing Fixture Cnt: | 14 | | Roof Slope: | 3" IN 12" | Roof Structure/Cover: | CJ ASPHALT |
|
| | Type | Description | Class CD | Sub Class CD | Year Built | Area |
| | BAS | BASE/MAIN FLOOR | 4 | 0 | 1992 | 2756.0 |
| | UB8 | BASEMENT UNFINISHED 8" | 4 | 0 | 1992 | 165.0 |
| | UB8 | BASEMENT UNFINISHED 8" | 4 | 0 | 1992 | 448.0 |
| | AGR | ATTACHED GARAGE | 4 | 0 | 1992 | 701.0 |
| | BGR | BASEMENT GARAGE | 4 | 0 | 1992 | 392.0 |
| | BAR | BALCONY W/ROOF | 4 | 0 | 1992 | 72.0 |
| | OWP | OPEN WOOD PORCH W/STEPS | 4 | 0 | 1992 | 964.3 |
| | OWC | OPEN WOOD PORCH W/STEPS/ROOF/C | 4 | 0 | 1992 | 196.0 |
| | ENP | ENCLOSED PORCH | 4 | 0 | 1992 | 341.0 |
| | DWN | DOWNSTAIRS LIVING AREA | 4 | 0 | 1992 | 1151.0 |
Sketch
Property Image
Land
| 1 | 32 | AC (03.01-09.99) | 4.9000 | 0.00 | 0.00 | 0.00 | 1.00 | $410,000 | $0 |
Roll Value History
| 2026 | N/A | N/A | N/A | N/A | N/A |
| 2025 | $749,998 | $410,000 | $0 | $1,159,998 | $1,159,998 |
| 2024 | $759,229 | $390,000 | $0 | $1,149,229 | $1,149,229 |
| 2023 | $768,460 | $350,000 | $0 | $1,118,460 | $1,118,460 |
| 2022 | $704,208 | $350,000 | $0 | $1,054,208 | $1,054,208 |
| 2021 | $533,563 | $300,000 | $0 | $833,563 | $833,563 |
| 2020 | $521,674 | $260,000 | $0 | $781,674 | $781,674 |
| 2019 | $430,650 | $300,000 | $0 | $730,650 | $730,650 |
| 2018 | $431,975 | $250,000 | $0 | $681,975 | $681,975 |
| 2017 | $434,627 | $190,000 | $0 | $624,627 | $624,627 |
| 2016 | $439,928 | $155,000 | $0 | $594,928 | $594,928 |
| 2015 | $445,227 | $155,000 | $0 | $600,227 | $600,227 |
| 2014 | $450,527 | $147,000 | $0 | $597,527 | $597,527 |
| 2013 | $413,426 | $235,200 | $0 | $648,626 | $648,626 |
| 2012 | $418,726 | $235,200 | $0 | $653,926 | $653,926 |
| 2011 | $424,026 | $235,200 | $0 | $659,226 | $659,226 |
| 2010 | $446,474 | $235,200 | $0 | $681,674 | $681,674 |
| 2009 | $465,433 | $294,000 | $0 | $759,433 | $759,433 |
| 2008 | $470,826 | $343,000 | $0 | $813,826 | $813,826 |
| 2007 | $465,335 | $334,719 | $0 | $800,054 | $800,054 |
Deed and Sales History
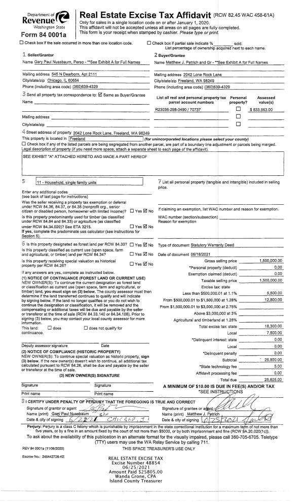
| 1 | 06/18/2021 | WD | Warranty Deed | NUSSBAUM, ERIC | PETRICH, MATTHEW J | | | $1,500,000.00 | 48854 | 4522739 |
| 2 | 03/23/2000 | WD | Warranty Deed | NUSSBAUM, ERIC & | NUSSBAUM, ERIC & | | | $0.00 | 1097 | 20005430 |
| 3 | 04/01/1992 | WD | Warranty Deed | NUSSBAUM, ERIC & | NUSSBAUM, ERIC & | | | $0.00 | 21343 | 92006523 |
| 4 | 04/01/1991 | WD | Warranty Deed | COOK, CHRISTOPHER A | NUSSBAUM, ERIC & | | | $82,000.00 | 11418 | 91006041 |
| 5 | 02/01/1988 | WD | Warranty Deed | TIPPERY, WAYNE M | COOK, CHRISTOPHER A | | | $39,000.00 | 80630 | 88002542 |
| 6 | 08/01/1987 | PACD | Purchaser's Assignment | TIPPERY, WAYNE M | TIPPERY, WAYNE M | | | $0.00 | 74015 | 87017452 |
| 7 | 08/01/1985 | WD | Warranty Deed | TIPPERY, WAYNE M | TIPPERY, WAYNE M | | | $29,700.00 | 52178 | 85008536 |
| 8 | 08/01/1985 | PACD | Purchaser's Assignment | ELLIOTT, DALE W | TIPPERY, WAYNE M | | | $0.00 | 72471 | 87011318 |
| 9 | 01/01/1900 | OTHER | Other - Misc. Documents | Unknown | ELLIOTT, DALE W | | | $0.00 | 0 | 0 |
Payout Agreement
| No payout information available.. |