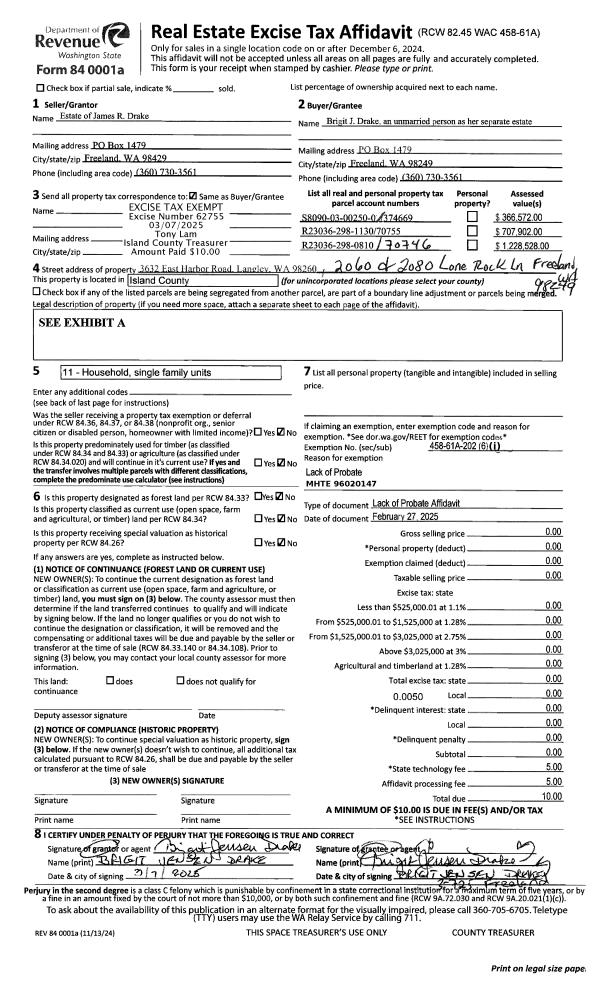
Property
Account |
| Property ID: | 70746 | Abbreviated Legal Description: | 38 - W/2 OF SE SW NW TGW & SUBJ TO EZ |
| Geographic ID: | R23036-298-0810 | Agent Code: | |
| Type: | Real | | |
| Tax Area: | 712 - APPRAISER-S Whid Schl Dist, outside Langley, improved, greater than 1 acre | Land Use Code | 11 |
| Open Space: | N | DFL | N |
| Historic Property: | N | Remodel Property: | N |
| Multi-Family Redevelopment: | N | | |
| Township: | 30 | Section: | 36 |
| Range: | R2 |
Location |
| Address: | 2060 LONE ROCK LN FREELAND, WA 98249 | Mapsco: | |
| Neighborhood: | Cycle 3 | Map ID: | 447 |
| Neighborhood CD: | 3 |
Owner |
| Name: | DRAKE, BRIGIT J | Owner ID: | 315697 |
| Mailing Address: | PO BOX 1479 FREELAND, WA 98249 | % Ownership: | 100.0000000000% |
| | | Exemptions: | |
Taxes and Assessment Details
Values
| (+) Improvement Homesite Value: | + | $0 | |
| (+) Improvement Non-Homesite Value: | + | $828,577 | |
| (+) Land Homesite Value: | + | $0 | |
| (+) Land Non-Homesite Value: | + | $410,000 | |
| (+) Curr Use (HS): | + | $0 | $0 |
| (+) Curr Use (NHS): | + | $0 | $0 |
| | | -------------------------- | |
| (=) Market Value: | = | $1,238,577 | |
| (–) Productivity Loss: | – | $0 | |
| | | -------------------------- | |
| (=) Subtotal: | = | $1,238,577 | |
| (+) Senior Appraised Value: | + | $0 | |
| (+) Non-Senior Appraised Value: | + | $1,238,577 | |
| | | -------------------------- | |
| (=) Total Appraised Value: | = | $1,238,577 | |
| (–) Senior Exemption Loss: | – | $0 | |
| (–) Exemption Loss: | – | $0 | |
| | | -------------------------- | |
| (=) Taxable Value: | = | $1,238,577 | |
Taxing Jurisdiction
| Owner: | DRAKE, BRIGIT J | | |
| % Ownership: | 100.0000000000% | | |
| Total Value: | $1,238,577 | | |
| Tax Area: | 712 - APPRAISER-S Whid Schl Dist, outside Langley, improved, greater than 1 acre |
| CF | Conservation Futures | 0.0313996660 | $1,238,577 | $1,238,577 | $38.89 | | |
| FIRE3 | Fire & Rescue Dist #3 S Whidbey GEN | 1.2130821753 | $1,238,577 | $1,238,577 | $1,502.50 | | |
| HOBOND | Hospital BOND | 0.1893405597 | $1,238,577 | $1,238,577 | $234.51 | | |
| HOGEN | Hospital GEN | 0.3848777722 | $1,238,577 | $1,238,577 | $476.70 | | |
| CE | County Current Expense | 0.3674210519 | $1,238,577 | $1,238,577 | $455.08 | | |
| CR | County Roads | 0.4614296361 | $1,238,577 | $1,238,577 | $571.52 | | |
| ISLANDEMS | Hospital GEN (EMS) | 0.4952018576 | $1,238,577 | $1,238,577 | $613.35 | | |
| LIB | Library Sno-Isle GEN | 0.3039084203 | $1,238,577 | $1,238,577 | $376.41 | | |
| PORTWHID | Port of S Whidbey GEN | 0.1086004714 | $1,238,577 | $1,238,577 | $134.51 | | |
| SCH206BOND | School 206 BOND | 0.5960237832 | $1,238,577 | $1,238,577 | $738.22 | | |
| SCH206CAP | School 206 CP | 0.3066144020 | $1,238,577 | $1,238,577 | $379.77 | | |
| SCH206MO | School 206 Enrichment | 0.4808755445 | $1,238,577 | $1,238,577 | $595.60 | | |
| ST | State School | 1.4761226122 | $1,238,577 | $1,238,577 | $1,828.29 | | |
| ST2 | State School Part 2 | 0.7953803475 | $1,238,577 | $1,238,577 | $985.14 | | |
| SWHIDPRBD | P & R S Whidbey BOND | 0.0144185398 | $1,238,577 | $1,238,577 | $17.86 | | |
| SWHIDPRBD3 | P & R S Whidbey BOND3 | 0.1483535547 | $1,238,577 | $1,238,577 | $183.75 | | |
| SWHIDPRMT | P & R S Whidbey GEN | 0.4600000000 | $1,238,577 | $1,238,577 | $569.75 | | |
| | Total Tax Rate: | 7.8330503944 | | | | | |
| | | | | Taxes w/Current Exemptions: | $9,701.85 | | |
| | | | | Taxes w/o Exemptions: | $9,701.85 | | |
Improvement / Building
| Improvement #1: | RESIDENTIAL | State Code: | Y | 5106.5 sqft | Value: | $828,577 |
| Bathrooms: | 2.5 | Bedrooms: | 2 | | Ceiling: | DRYWALL PAINTED | Cooling: | HEAT PUMP/CONV/V | | Exterior Wall/Cover: | SHINGLE | Floor Covering: | HARDWOOD/CARP 60-40 | | Floor Structure: | WOOD W/SUBFLOOR | Foundation: | CONCRETE | | Interior Finish: | DRYWALL PAINT | Plumbing Fixture Cnt: | 14 | | Roof Slope: | 10" IN 12" | Roof Structure/Cover: | CJ ASPHALT |
|
| | Type | Description | Class CD | Sub Class CD | Year Built | Area |
| | BAS | BASE/MAIN FLOOR | 5 | 0 | 2005 | 3107.5 |
| | UB8 | BASEMENT UNFINISHED 8" | 5 | 0 | 2005 | 154.5 |
| | OP1 | OPEN PORCH SLAB | 5 | 0 | 2005 | 795.5 |
| | OP4 | OPEN PORCH W/CEILING-ROOF | 5 | 0 | 2005 | 258.8 |
| | BIG | BUILT IN GARAGE | 5 | 0 | 2005 | 784.0 |
| | UTY | STORAGE/UTILITY | 5 | 0 | 2005 | 45.0 |
| | BAI | BALCONY IRON RAIL | 5 | 0 | 2005 | 30.0 |
| | OWC | OPEN WOOD PORCH W/STEPS/ROOF/C | 5 | 0 | 2005 | 52.5 |
| | OWC | OPEN WOOD PORCH W/STEPS/ROOF/C | 5 | 0 | 2005 | 312.0 |
| | DWN | DOWNSTAIRS LIVING AREA | 5 | 0 | 2005 | 1999.0 |
Sketch
Property Image
Land
| 1 | 32 | AC (03.01-09.99) | 4.8900 | 0.00 | 0.00 | 0.00 | 1.00 | $410,000 | $0 |
Roll Value History
| 2026 | N/A | N/A | N/A | N/A | N/A |
| 2025 | $828,577 | $410,000 | $0 | $1,238,577 | $1,238,577 |
| 2024 | $838,528 | $390,000 | $0 | $1,228,528 | $1,228,528 |
| 2023 | $848,483 | $350,000 | $0 | $1,198,483 | $1,198,483 |
| 2022 | $777,313 | $350,000 | $0 | $1,127,313 | $1,127,313 |
| 2021 | $683,724 | $300,000 | $0 | $983,724 | $983,724 |
| 2020 | $668,333 | $260,000 | $0 | $928,333 | $928,333 |
| 2019 | $644,107 | $300,000 | $0 | $944,107 | $944,107 |
| 2018 | $645,899 | $250,000 | $0 | $895,899 | $895,899 |
| 2017 | $649,391 | $190,000 | $0 | $839,391 | $839,391 |
| 2016 | $656,552 | $155,000 | $0 | $811,552 | $811,552 |
| 2015 | $663,713 | $155,000 | $0 | $818,713 | $818,713 |
| 2014 | $670,876 | $146,700 | $0 | $817,576 | $817,576 |
| 2013 | $710,249 | $180,930 | $0 | $891,179 | $891,179 |
| 2012 | $717,839 | $180,930 | $0 | $898,769 | $898,769 |
| 2011 | $732,196 | $180,930 | $0 | $913,126 | $913,126 |
| 2010 | $840,194 | $180,930 | $0 | $1,021,124 | $1,021,124 |
| 2009 | $864,178 | $244,500 | $0 | $1,108,678 | $1,108,678 |
| 2008 | $931,699 | $310,566 | $0 | $1,242,265 | $1,242,265 |
| 2007 | $1,030,555 | $400,843 | $0 | $1,431,398 | $1,431,398 |
Deed and Sales History
| 1 | 02/27/2025 | LACPROBATE | Lack of Probate | ESTATE OF JAMES R DRAKE | DRAKE, BRIGIT J | | | $0.00 | 62755 | 4583025 |
| 2 | 09/24/2004 | WD | Warranty Deed | SHAW CO TTEE, MARGARET T | DRAKE, JAMES R | | | $395,000.00 | 44607 | 4114278 |
| 3 | 03/18/2004 | 5 | DNU - Marriage License/Name Change | SHAW, MARGARET T | SHAW CO TTEE, MARGARET T | | | $0.00 | 41115 | 409908 |
| 4 | 11/01/1996 | PRD | Personal Representatives Deed | SHAW, HARRIS F | SHAW, MARGARET T | | | $0.00 | 70328 | 97001101 |
| 5 | 01/01/1900 | OTHER | Other - Misc. Documents | Unknown | SHAW, HARRIS F | | | $0.00 | 0 | 0 |
Payout Agreement
| No payout information available.. |