Property
Account |
| Property ID: | 70951 | Abbreviated Legal Description: | BG SECR SEC 1 W1968.67' N200' TPB N198' E1106.26' S3*W198.29' W1094.81' TPB (TR53 V5 SUR P9 AF#326770) |
| Geographic ID: | R23101-032-4060 | Agent Code: | |
| Type: | Real | | |
| Tax Area: | 512 - APPRAISER-Stan/Cam Schl Dist, improved, greater than 1 acre | Land Use Code | 11 |
| Open Space: | N | DFL | N |
| Historic Property: | N | Remodel Property: | N |
| Multi-Family Redevelopment: | N | | |
| Township: | 31 | Section: | 01 |
| Range: | R2 |
Location |
| Address: | 370 ROCKY MOUNTAIN HIGH RD CAMANO ISLAND, WA 98282 | Mapsco: | |
| Neighborhood: | Cycle 5 | Map ID: | 450 |
| Neighborhood CD: | 5 |
Owner |
| Name: | GORDON, ALEXIS K | Owner ID: | 304962 |
| Mailing Address: | 370 ROCKY MOUNTAIN HIGH RD CAMANO ISLAND, WA 98282 | % Ownership: | 100.0000000000% |
| | | Exemptions: | |
Taxes and Assessment Details
Values
| (+) Improvement Homesite Value: | + | $0 | |
| (+) Improvement Non-Homesite Value: | + | $470,473 | |
| (+) Land Homesite Value: | + | $0 | |
| (+) Land Non-Homesite Value: | + | $330,000 | |
| (+) Curr Use (HS): | + | $0 | $0 |
| (+) Curr Use (NHS): | + | $0 | $0 |
| | | -------------------------- | |
| (=) Market Value: | = | $800,473 | |
| (–) Productivity Loss: | – | $0 | |
| | | -------------------------- | |
| (=) Subtotal: | = | $800,473 | |
| (+) Senior Appraised Value: | + | $0 | |
| (+) Non-Senior Appraised Value: | + | $800,473 | |
| | | -------------------------- | |
| (=) Total Appraised Value: | = | $800,473 | |
| (–) Senior Exemption Loss: | – | $0 | |
| (–) Exemption Loss: | – | $0 | |
| | | -------------------------- | |
| (=) Taxable Value: | = | $800,473 | |
Taxing Jurisdiction
| Owner: | GORDON, ALEXIS K | | |
| % Ownership: | 100.0000000000% | | |
| Total Value: | $800,473 | | |
| Tax Area: | 512 - APPRAISER-Stan/Cam Schl Dist, improved, greater than 1 acre |
| CF | Conservation Futures | 0.0313996660 | $800,473 | $800,473 | $25.13 | | |
| EMS1 | Fire & Rescue Dist #1 Camano GEN (EMS) | 0.4998471806 | $800,473 | $800,473 | $400.11 | | |
| FIRE1 | Fire & Rescue Dist #1 Camano GEN | 1.2496603404 | $800,473 | $800,473 | $1,000.32 | | |
| FIRE1BOND | Fire & Rescue Dist #1 Camano BOND | 0.1630371212 | $800,473 | $800,473 | $130.51 | | |
| CE | County Current Expense | 0.3674210519 | $800,473 | $800,473 | $294.11 | | |
| CR | County Roads | 0.4614296361 | $800,473 | $800,473 | $369.36 | | |
| LIB | Library Sno-Isle GEN | 0.3039084203 | $800,473 | $800,473 | $243.27 | | |
| SCH205_401 | School 205-401 Enrichment | 1.3697998934 | $800,473 | $800,473 | $1,096.49 | | |
| SCH205BOND | School 205-401 BOND | 0.9354199323 | $800,473 | $800,473 | $748.78 | | |
| ST | State School | 1.4761226122 | $800,473 | $800,473 | $1,181.60 | | |
| ST2 | State School Part 2 | 0.7953803475 | $800,473 | $800,473 | $636.68 | | |
| | Total Tax Rate: | 7.6534262019 | | | | | |
| | | | | Taxes w/Current Exemptions: | $6,126.36 | | |
| | | | | Taxes w/o Exemptions: | $6,126.36 | | |
Improvement / Building
| Improvement #1: | RESIDENTIAL | State Code: | Y | 2599.5 sqft | Value: | $470,473 |
| Bathrooms: | 3 | Bedrooms: | 3 | | Ceiling: | DRYWALL PAINTED | Cooling: | HEAT PUMP/CONV/V | | Exterior Wall/Cover: | PLY/HARDBOARD T-111 | Floor Covering: | CARPET/VINYL 80-20 | | Floor Structure: | WOOD W/SUBFLOOR | Foundation: | CONCRETE | | Interior Finish: | DRYWALL PAINT | Plumbing Fixture Cnt: | 13 | | Roof Slope: | 8" IN 12" | Roof Structure/Cover: | CJ ASPHALT |
|
| | Type | Description | Class CD | Sub Class CD | Year Built | Area |
| | BAS | BASE/MAIN FLOOR | 3 | 0 | 1983 | 2599.5 |
| | DGR | DETACHED GARAGE | 3 | 0 | 1983 | 1432.8 |
| | OP4 | OPEN PORCH W/CEILING-ROOF | 3 | 0 | 1983 | 40.0 |
| | AGR | ATTACHED GARAGE | 3 | 0 | 1983 | 540.3 |
| | OWC | OPEN WOOD PORCH W/STEPS/ROOF/C | 3 | 0 | 1983 | 454.6 |
| | OWC | OPEN WOOD PORCH W/STEPS/ROOF/C | 3 | 0 | 1983 | 35.0 |
Sketch
Property Image
Land
| 1 | 32 | AC (03.01-09.99) | 5.0000 | 0.00 | 0.00 | 0.00 | 1.00 | $330,000 | $0 |
Roll Value History
| 2026 | N/A | N/A | N/A | N/A | N/A |
| 2025 | $470,473 | $330,000 | $0 | $800,473 | $800,473 |
| 2024 | $476,410 | $300,000 | $0 | $776,410 | $776,410 |
| 2023 | $482,348 | $290,000 | $0 | $772,348 | $772,348 |
| 2022 | $442,158 | $290,000 | $0 | $732,158 | $732,158 |
| 2021 | $370,576 | $190,000 | $0 | $560,576 | $560,576 |
| 2020 | $361,728 | $160,000 | $0 | $521,728 | $521,728 |
| 2019 | $281,865 | $230,000 | $0 | $511,865 | $511,865 |
| 2018 | $282,732 | $175,000 | $0 | $457,732 | $457,732 |
| 2017 | $270,658 | $150,000 | $0 | $420,658 | $420,658 |
| 2016 | $273,960 | $125,000 | $0 | $398,960 | $398,960 |
| 2015 | $241,254 | $150,000 | $0 | $391,254 | $391,254 |
| 2014 | $244,263 | $150,000 | $0 | $394,263 | $394,263 |
| 2013 | $247,273 | $112,000 | $0 | $359,273 | $359,273 |
| 2012 | $250,285 | $112,000 | $0 | $362,285 | $362,285 |
| 2011 | $253,293 | $140,000 | $0 | $393,293 | $393,293 |
| 2010 | $264,918 | $140,000 | $0 | $404,918 | $404,918 |
| 2009 | $276,028 | $160,000 | $0 | $436,028 | $436,028 |
| 2008 | $279,066 | $215,000 | $0 | $494,066 | $494,066 |
| 2007 | $282,869 | $147,500 | $0 | $430,369 | $430,369 |
Deed and Sales History
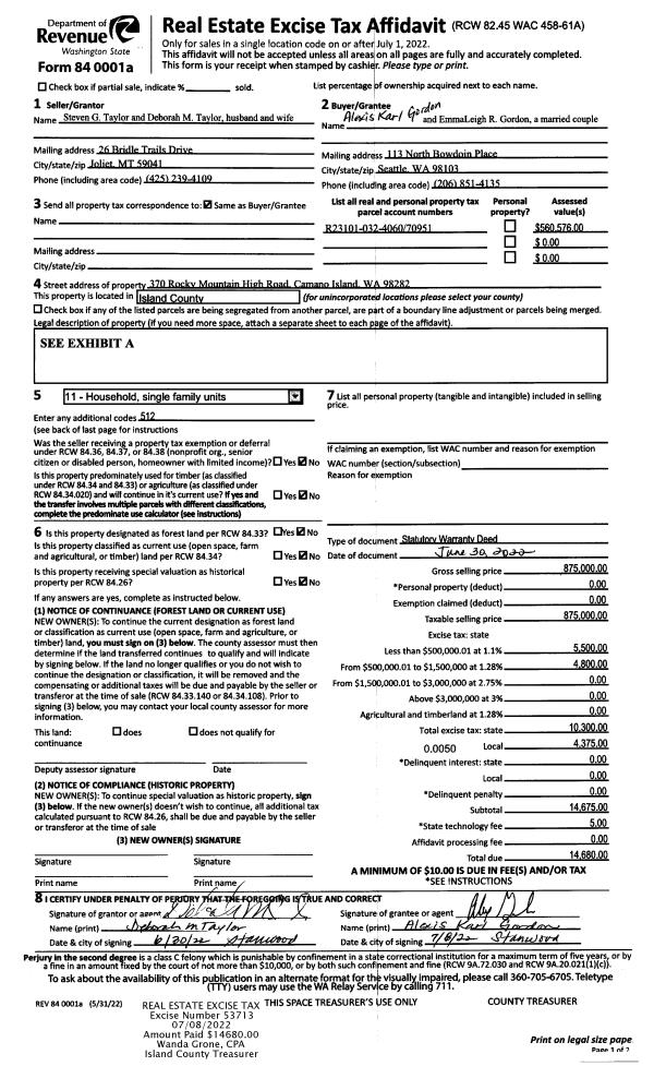
| 1 | 06/30/2022 | WD | Warranty Deed | TAYLOR, STEVEN G | GORDON, ALEXIS K | | | $875,000.00 | 53713 | 4547813 |
| 2 | 08/24/1999 | WD | Warranty Deed | MENNENGA, ROBERT L | TAYLOR, STEVEN G | | | $304,500.00 | 93626 | 99020516 |
| 3 | 02/01/1992 | WD | Warranty Deed | FEDERAL, NATL M | MENNENGA, ROBERT L | | | $171,000.00 | 20699 | 92003541 |
| 4 | 11/01/1990 | TRUSTEED | Trustee's Deed | SNYDER, RAYMOND A | FEDERAL, NATL M | | | $0.00 | 6498 | 90022562 |
| 5 | 02/01/1988 | WD | Warranty Deed | GLENN, ALVIS E | SNYDER, RAYMOND A | | | $159,000.00 | 80349 | 88001458 |
| 6 | 03/01/1980 | EXECUTORD | Executor Deed | GILBERTSON, ALLEN | GLENN, ALVIS E | | | $30,000.00 | 1068 | 367045 |
| 7 | 01/01/1900 | OTHER | Other - Misc. Documents | Unknown | GILBERTSON, ALLEN | | | $0.00 | 0 | 0 |
Payout Agreement
| No payout information available.. |