Property
Account |
| Property ID: | 710546 | Abbreviated Legal Description: | LOT 2 OH-SP 4-95.13334.305-1120 & .305-1220 V3 SP P31 AF#95011426 |
| Geographic ID: | R13334-300-1160 | Agent Code: | |
| Type: | Real | | |
| Tax Area: | 100 - APPRAISER-OH Schl Dist, in OH | Land Use Code | 11 |
| Open Space: | N | DFL | N |
| Historic Property: | N | Remodel Property: | N |
| Multi-Family Redevelopment: | N | | |
| Township: | 33 | Section: | 34 |
| Range: | R1 |
Location |
| Address: | 1445 NW 8TH AVE OAK HARBOR, WA 98277 | Mapsco: | |
| Neighborhood: | Cycle 1 | Map ID: | 254 |
| Neighborhood CD: | 1 |
Owner |
| Name: | ELAMPARO JR, CONRADO E | Owner ID: | 303958 |
| Mailing Address: | JUNAIDA C ELAMPARO 1445 NORTHWEST 8TH AVE OAK HARBOR, WA 98277 | % Ownership: | 100.0000000000% |
| | | Exemptions: | |
Taxes and Assessment Details
Values
| (+) Improvement Homesite Value: | + | $0 | |
| (+) Improvement Non-Homesite Value: | + | $222,938 | |
| (+) Land Homesite Value: | + | $0 | |
| (+) Land Non-Homesite Value: | + | $190,000 | |
| (+) Curr Use (HS): | + | $0 | $0 |
| (+) Curr Use (NHS): | + | $0 | $0 |
| | | -------------------------- | |
| (=) Market Value: | = | $412,938 | |
| (–) Productivity Loss: | – | $0 | |
| | | -------------------------- | |
| (=) Subtotal: | = | $412,938 | |
| (+) Senior Appraised Value: | + | $0 | |
| (+) Non-Senior Appraised Value: | + | $412,938 | |
| | | -------------------------- | |
| (=) Total Appraised Value: | = | $412,938 | |
| (–) Senior Exemption Loss: | – | $0 | |
| (–) Exemption Loss: | – | $0 | |
| | | -------------------------- | |
| (=) Taxable Value: | = | $412,938 | |
Taxing Jurisdiction
| Owner: | ELAMPARO JR, CONRADO E | | |
| % Ownership: | 100.0000000000% | | |
| Total Value: | $412,938 | | |
| Tax Area: | 100 - APPRAISER-OH Schl Dist, in OH |
| CF | Conservation Futures | 0.0313996660 | $412,938 | $412,938 | $12.97 | | |
| CEM1 | Cemetery #1 | 0.0040018856 | $412,938 | $412,938 | $1.65 | | |
| COH | City of Oak Harbor | 2.3090730572 | $412,938 | $412,938 | $953.50 | | |
| OAKBOND | City of Oak Harbor BOND | 0.1902260131 | $412,938 | $412,938 | $78.55 | | |
| HOBOND | Hospital BOND | 0.1893405597 | $412,938 | $412,938 | $78.19 | | |
| HOGEN | Hospital GEN | 0.3848777722 | $412,938 | $412,938 | $158.93 | | |
| CE | County Current Expense | 0.3674210519 | $412,938 | $412,938 | $151.72 | | |
| ISLANDEMS | Hospital GEN (EMS) | 0.4952018576 | $412,938 | $412,938 | $204.49 | | |
| LIB | Library Sno-Isle GEN | 0.3039084203 | $412,938 | $412,938 | $125.50 | | |
| NWHIDPRMT | P & R N Whidbey GEN | 0.1990272349 | $412,938 | $412,938 | $82.19 | | |
| SCH201MO | School 201 Enrichment | 2.3851112745 | $412,938 | $412,938 | $984.90 | | |
| ST | State School | 1.4761226122 | $412,938 | $412,938 | $609.55 | | |
| ST2 | State School Part 2 | 0.7953803475 | $412,938 | $412,938 | $328.44 | | |
| | Total Tax Rate: | 9.1310917527 | | | | | |
| | | | | Taxes w/Current Exemptions: | $3,770.58 | | |
| | | | | Taxes w/o Exemptions: | $3,770.58 | | |
Improvement / Building
| Improvement #1: | RESIDENTIAL | State Code: | Y | 1239.5 sqft | Value: | $222,938 |
| Bathrooms: | 2 | Bedrooms: | 3 | | Ceiling: | DRYWALL PAINTED | Exterior Wall/Cover: | PLY/HARDBOARD T-111 | | Floor Covering: | CARPET/VINYL 60-40 | Floor Structure: | WOOD W/SUBFLOOR | | Foundation: | CONCRETE | Heating: | FHA GAS | | Interior Finish: | DRYWALL PAINT | Plumbing Fixture Cnt: | 9 | | Roof Slope: | 4" IN 12" | Roof Structure/Cover: | CJ ASPHALT |
|
| | Type | Description | Class CD | Sub Class CD | Year Built | Area |
| | BAS | BASE/MAIN FLOOR | 3 | 0 | 1996 | 1239.5 |
| | OP1 | OPEN PORCH SLAB | 3 | 0 | 1996 | 144.0 |
| | OP4 | OPEN PORCH W/CEILING-ROOF | 3 | 0 | 1996 | 30.0 |
| | AGR | ATTACHED GARAGE | 3 | 0 | 1996 | 451.0 |
Sketch
Property Image
Land
| 1 | 14 | SQ (08001-12000) | 0.0000 | 0.00 | 0.00 | 0.00 | 1.00 | $190,000 | $0 |
Roll Value History
| 2026 | N/A | N/A | N/A | N/A | N/A |
| 2025 | $222,938 | $190,000 | $0 | $412,938 | $412,938 |
| 2024 | $225,823 | $180,000 | $0 | $405,823 | $405,823 |
| 2023 | $225,912 | $180,000 | $0 | $405,912 | $405,912 |
| 2022 | $207,145 | $180,000 | $0 | $387,145 | $387,145 |
| 2021 | $182,369 | $120,000 | $0 | $302,369 | $302,369 |
| 2020 | $177,421 | $100,000 | $0 | $277,421 | $277,421 |
| 2019 | $126,068 | $150,000 | $0 | $276,068 | $276,068 |
| 2018 | $126,446 | $130,000 | $0 | $256,446 | $256,446 |
| 2017 | $117,483 | $110,000 | $0 | $227,483 | $227,483 |
| 2016 | $118,988 | $90,000 | $0 | $208,988 | $208,988 |
| 2015 | $120,494 | $70,000 | $0 | $190,494 | $190,494 |
| 2014 | $122,001 | $55,000 | $0 | $177,001 | $177,001 |
| 2013 | $123,507 | $55,000 | $0 | $178,507 | $178,507 |
| 2012 | $125,012 | $65,000 | $0 | $190,012 | $190,012 |
| 2011 | $124,037 | $50,000 | $0 | $174,037 | $174,037 |
| 2010 | $127,503 | $50,000 | $0 | $177,503 | $177,503 |
| 2009 | $132,950 | $66,400 | $0 | $199,350 | $199,350 |
| 2008 | $134,477 | $80,000 | $0 | $214,477 | $214,477 |
| 2007 | $136,002 | $80,000 | $0 | $216,002 | $216,002 |
Deed and Sales History
| 1 | 04/27/2022 | WD | Warranty Deed | CORDOVA RENTALS, LLC | ELAMPARO JR, CONRADO E | | | $420,000.00 | 52898 | 4544270 |
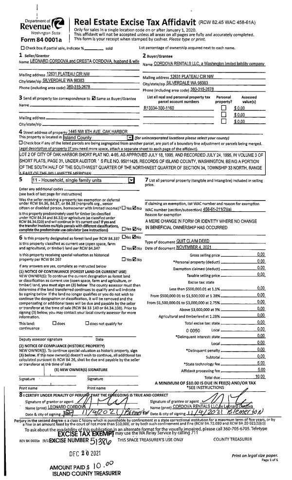
| 2 | 11/04/2021 | QCD | Quit Claim Deed | CORDOVA, LEONARD | CORDOVA RENTALS, LLC | | | $0.00 | 51386 | 4536229 |
| 3 | 08/09/2021 | QCD | Quit Claim Deed | CORDOVA RENTALS, LLC | CORDOVA, LEONARD | | | $0.00 | 49603 | 4526685 |
| 4 | 07/05/2018 | QCD | Quit Claim Deed | CORDOVA, LEONARD J | CORDOVA RENTALS, LLC | | | $0.00 | 38715 | 4464235 |
| 5 | 06/10/2013 | QCD | Quit Claim Deed | CORDOVA, LEONARD J | | | | | 12241 | 4345382 |
| 6 | 03/07/2007 | QCD | Quit Claim Deed | CORDOVA, CRESTA DE LEON | MEJOS, LEONARD J | | | $0.00 | 70841 | 4196436 |
| 7 | 02/23/2004 | ESTSEPPROP | Establish Separate Property | MEJOS, CRESTA DE LEON | CORDOVA, CRESTA DE LEON | | | $0.00 | 40732 | 4092597 |
| 8 | 11/19/2001 | DECREE | Divorce Decree/Legal Separation | MEJOS, TERENCE N | MEJOS, CRESTA DE LEON | | | $0.00 | 14483 | 4003817 |
| 9 | 05/01/1996 | WD | Warranty Deed | ISLAND, PACIFIC C | MEJOS, TERENCE N | | | $134,000.00 | 61806 | 96009026 |
| 10 | 09/01/1995 | WD | Warranty Deed | MASSEY, WILLIAM L | ISLAND, PACIFIC C | | | $38,000.00 | 53456 | 95015842 |
| 11 | 01/01/1900 | OTHER | Other - Misc. Documents | Unknown | MASSEY, WILLIAM L | | | $0.00 | 51084 | 95005126 |
Payout Agreement
| No payout information available.. |