Property
Account |
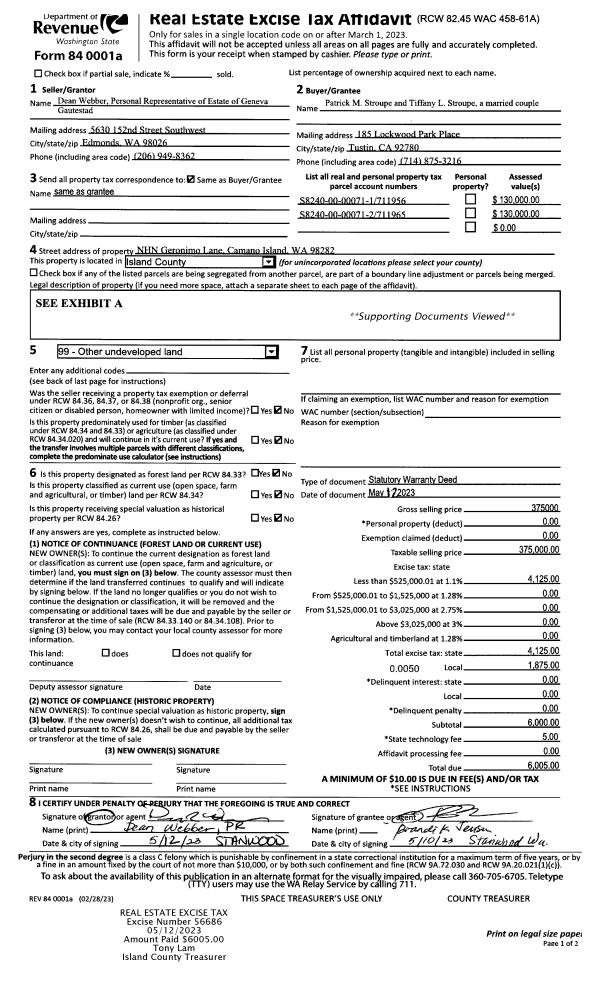
| Property ID: | 711965 | Abbreviated Legal Description: | SUNNY SHORE AC LOT 2 SP 19-94.8240.00-00071.0 V3 SP P36/37 AF#95012778 |
| Geographic ID: | S8240-00-00071-2 | Agent Code: | |
| Type: | Real | | |
| Tax Area: | 549 - APPRAISER-Stan/Cam Schl Dist, Special Dist, vacant & 50 acres or less | Land Use Code | 99 |
| Open Space: | N | DFL | N |
| Historic Property: | N | Remodel Property: | N |
| Multi-Family Redevelopment: | N | | |
| Township: | | Section: | |
| Range: | |
Location |
| Address: | 1373 GERONIMO LN CAMANO ISLAND, WA 98282 | Mapsco: | |
| Neighborhood: | 58NofTamarackAC | Map ID: | 865 |
| Neighborhood CD: | 58RntamAC |
Owner |
| Name: | STROUPE, PATRICK M | Owner ID: | 308593 |
| Mailing Address: | TIFFANY L STROUPE 185 LO9CKWOOD PARK PL TUSTIN, CA 92780 | % Ownership: | 100.0000000000% |
| | | Exemptions: | |
Taxes and Assessment Details
Values
| (+) Improvement Homesite Value: | + | $0 | |
| (+) Improvement Non-Homesite Value: | + | $0 | |
| (+) Land Homesite Value: | + | $0 | |
| (+) Land Non-Homesite Value: | + | $180,000 | |
| (+) Curr Use (HS): | + | $0 | $0 |
| (+) Curr Use (NHS): | + | $0 | $0 |
| | | -------------------------- | |
| (=) Market Value: | = | $180,000 | |
| (–) Productivity Loss: | – | $0 | |
| | | -------------------------- | |
| (=) Subtotal: | = | $180,000 | |
| (+) Senior Appraised Value: | + | $0 | |
| (+) Non-Senior Appraised Value: | + | $180,000 | |
| | | -------------------------- | |
| (=) Total Appraised Value: | = | $180,000 | |
| (–) Senior Exemption Loss: | – | $0 | |
| (–) Exemption Loss: | – | $0 | |
| | | -------------------------- | |
| (=) Taxable Value: | = | $180,000 | |
Taxing Jurisdiction
| Owner: | STROUPE, PATRICK M | | |
| % Ownership: | 100.0000000000% | | |
| Total Value: | $180,000 | | |
| Tax Area: | 549 - APPRAISER-Stan/Cam Schl Dist, Special Dist, vacant & 50 acres or less |
| CF | Conservation Futures | 0.0313996660 | $180,000 | $180,000 | $5.65 | | |
| EMS1 | Fire & Rescue Dist #1 Camano GEN (EMS) | 0.4998471806 | $180,000 | $180,000 | $89.97 | | |
| CE | County Current Expense | 0.3674210519 | $180,000 | $180,000 | $66.14 | | |
| CR | County Roads | 0.4614296361 | $180,000 | $180,000 | $83.06 | | |
| LIB | Library Sno-Isle GEN | 0.3039084203 | $180,000 | $180,000 | $54.70 | | |
| SCH205_401 | School 205-401 Enrichment | 1.3697998934 | $180,000 | $180,000 | $246.56 | | |
| SCH205BOND | School 205-401 BOND | 0.9354199323 | $180,000 | $180,000 | $168.38 | | |
| ST | State School | 1.4761226122 | $180,000 | $180,000 | $265.70 | | |
| ST2 | State School Part 2 | 0.7953803475 | $180,000 | $180,000 | $143.17 | | |
| | Total Tax Rate: | 6.2407287403 | | | | | |
| | | | | Taxes w/Current Exemptions: | $1,123.33 | | |
| | | | | Taxes w/o Exemptions: | $1,123.33 | | |
Improvement / Building
Sketch
| No sketches available for this property. |
Property Image
Land
| 1 | 32 | AC (03.01-09.99) | 5.6600 | 246549.60 | 0.00 | 0.00 | 1.00 | $180,000 | $0 |
Roll Value History
| 2026 | N/A | N/A | N/A | N/A | N/A |
| 2025 | $0 | $180,000 | $0 | $180,000 | $180,000 |
| 2024 | $0 | $160,000 | $0 | $160,000 | $160,000 |
| 2023 | $0 | $160,000 | $0 | $160,000 | $160,000 |
| 2022 | $0 | $130,000 | $0 | $130,000 | $130,000 |
| 2021 | $0 | $125,000 | $0 | $125,000 | $125,000 |
| 2020 | $0 | $125,000 | $0 | $125,000 | $125,000 |
| 2019 | $0 | $125,000 | $0 | $125,000 | $125,000 |
| 2018 | $0 | $125,000 | $0 | $125,000 | $125,000 |
| 2017 | $0 | $90,000 | $0 | $90,000 | $90,000 |
| 2016 | $0 | $65,000 | $0 | $65,000 | $65,000 |
| 2015 | $0 | $65,000 | $0 | $65,000 | $65,000 |
| 2014 | $0 | $65,000 | $0 | $65,000 | $65,000 |
| 2013 | $0 | $75,278 | $0 | $75,278 | $75,278 |
| 2012 | $0 | $75,278 | $0 | $75,278 | $75,278 |
| 2011 | $0 | $55,800 | $0 | $55,800 | $55,800 |
| 2010 | $0 | $55,800 | $0 | $55,800 | $55,800 |
| 2009 | $0 | $98,400 | $0 | $98,400 | $98,400 |
| 2008 | $0 | $94,520 | $0 | $94,520 | $94,520 |
| 2007 | $0 | $90,560 | $0 | $90,560 | $90,560 |
Deed and Sales History
| 1 | 05/12/2023 | WD | Warranty Deed | GAUTESTAD, GENEVA | STROUPE, PATRICK M | | | $375,000.00 | 56686 | 4559862 |
|   | |
| 2 | 01/01/1900 | OTHER | Other - Misc. Documents | Unknown | GAUTESTAD, GENEVA | | | $0.00 | 22555 | 92012267 |
Payout Agreement
| No payout information available.. |