Property
Account |
| Property ID: | 71264 | Abbreviated Legal Description: | TR46 - BG SECR SEC 1 W1968 .67' N1739.58' TPB N232.60' E974.77' S6*W233.63' W925' TPB TGW EZ |
| Geographic ID: | R23101-188-4060 | Agent Code: | |
| Type: | Real | | |
| Tax Area: | 512 - APPRAISER-Stan/Cam Schl Dist, improved, greater than 1 acre | Land Use Code | 11 |
| Open Space: | N | DFL | N |
| Historic Property: | N | Remodel Property: | N |
| Multi-Family Redevelopment: | N | | |
| Township: | 31 | Section: | 01 |
| Range: | R2 |
Location |
| Address: | 260 ROCKY MOUNTAIN HIGH RD CAMANO ISLAND, WA 98282 | Mapsco: | |
| Neighborhood: | Cycle 5 | Map ID: | 450 |
| Neighborhood CD: | 5 |
Owner |
| Name: | CARTAS JTWROS, RODOLFO ABREU | Owner ID: | 315516 |
| Mailing Address: | JIMMY NICHOLAS MAHOOD JTWROS MICHELLE ABRISSA MAHOOD JTWROS 260 ROCKY MOUNTAIN HIGH RD CAMANO ISLAND, WA 98282 | % Ownership: | 100.0000000000% |
| | | Exemptions: | |
Taxes and Assessment Details
Values
| (+) Improvement Homesite Value: | + | $0 | |
| (+) Improvement Non-Homesite Value: | + | $611,589 | |
| (+) Land Homesite Value: | + | $0 | |
| (+) Land Non-Homesite Value: | + | $410,000 | |
| (+) Curr Use (HS): | + | $0 | $0 |
| (+) Curr Use (NHS): | + | $0 | $0 |
| | | -------------------------- | |
| (=) Market Value: | = | $1,021,589 | |
| (–) Productivity Loss: | – | $0 | |
| | | -------------------------- | |
| (=) Subtotal: | = | $1,021,589 | |
| (+) Senior Appraised Value: | + | $0 | |
| (+) Non-Senior Appraised Value: | + | $1,021,589 | |
| | | -------------------------- | |
| (=) Total Appraised Value: | = | $1,021,589 | |
| (–) Senior Exemption Loss: | – | $0 | |
| (–) Exemption Loss: | – | $0 | |
| | | -------------------------- | |
| (=) Taxable Value: | = | $1,021,589 | |
Taxing Jurisdiction
| Owner: | CARTAS JTWROS, RODOLFO ABREU | | |
| % Ownership: | 100.0000000000% | | |
| Total Value: | $1,021,589 | | |
| Tax Area: | 512 - APPRAISER-Stan/Cam Schl Dist, improved, greater than 1 acre |
| CF | Conservation Futures | 0.0313996660 | $1,021,589 | $1,021,589 | $32.08 | | |
| EMS1 | Fire & Rescue Dist #1 Camano GEN (EMS) | 0.4998471806 | $1,021,589 | $1,021,589 | $510.64 | | |
| FIRE1 | Fire & Rescue Dist #1 Camano GEN | 1.2496603404 | $1,021,589 | $1,021,589 | $1,276.64 | | |
| FIRE1BOND | Fire & Rescue Dist #1 Camano BOND | 0.1630371212 | $1,021,589 | $1,021,589 | $166.56 | | |
| CE | County Current Expense | 0.3674210519 | $1,021,589 | $1,021,589 | $375.35 | | |
| CR | County Roads | 0.4614296361 | $1,021,589 | $1,021,589 | $471.39 | | |
| LIB | Library Sno-Isle GEN | 0.3039084203 | $1,021,589 | $1,021,589 | $310.47 | | |
| SCH205_401 | School 205-401 Enrichment | 1.3697998934 | $1,021,589 | $1,021,589 | $1,399.37 | | |
| SCH205BOND | School 205-401 BOND | 0.9354199323 | $1,021,589 | $1,021,589 | $955.61 | | |
| ST | State School | 1.4761226122 | $1,021,589 | $1,021,589 | $1,507.99 | | |
| ST2 | State School Part 2 | 0.7953803475 | $1,021,589 | $1,021,589 | $812.55 | | |
| | Total Tax Rate: | 7.6534262019 | | | | | |
| | | | | Taxes w/Current Exemptions: | $7,818.65 | | |
| | | | | Taxes w/o Exemptions: | $7,818.65 | | |
Improvement / Building
| Improvement #1: | RESIDENTIAL | State Code: | Y | 2545.0 sqft | Value: | $384,650 |
| Bathrooms: | 4 | Bedrooms: | 3 | | Ceiling: | DRYWALL PAINTED | Cooling: | HEAT PUMP/CONV/V | | Exterior Wall/Cover: | PLY/HARDBOARD T-111 | Floor Covering: | VINYL 100% | | Floor Structure: | WOOD W/SUBFLOOR | Foundation: | CONCRETE | | Interior Finish: | DRYWALL PAINT | Plumbing Fixture Cnt: | 14 | | Roof Slope: | 4" IN 12" | Roof Structure/Cover: | CJ ASPHALT |
|
| | Type | Description | Class CD | Sub Class CD | Year Built | Area |
| | BAS | BASE/MAIN FLOOR | 3 | 0 | 1981 | 2545.0 |
| | ENP | ENCLOSED PORCH | 3 | 0 | 1981 | 300.0 |
| | AGR | ATTACHED GARAGE | 3 | 0 | 1981 | 936.0 |
| | OWP | OPEN WOOD PORCH W/STEPS | 3 | 0 | 1981 | 84.0 |
| | OWC | OPEN WOOD PORCH W/STEPS/ROOF/C | 3 | 0 | 1981 | 175.0 |
| | oPOL | POLE BARN | 3 | 0 | 1981 | 0.0 |
| Improvement #2: | RESIDENTIAL | State Code: | Y | 1152.0 sqft | Value: | $226,939 |
| Bathrooms: | 2 | Bedrooms: | 3 | | Ceiling: | DRYWALL PAINTED | Exterior Wall/Cover: | PLY/HARDBOARD T-111 | | Floor Covering: | HARDWOOD/CARP 20-80 | Floor Structure: | WOOD W/SUBFLOOR | | Foundation: | CONCRETE | Heating: | WALL HEAT ELECTRIC | | Interior Finish: | DRYWALL PAINT | Plumbing Fixture Cnt: | 9 | | Roof Slope: | 5" IN 12" | Roof Structure/Cover: | CJ ASPHALT |
|
| | Type | Description | Class CD | Sub Class CD | Year Built | Area |
| | BAS | BASE/MAIN FLOOR | 3 | 0 | 2012 | 1152.0 |
| | AGR | ATTACHED GARAGE | 3 | 0 | 2012 | 540.0 |
| | OWC | OPEN WOOD PORCH W/STEPS/ROOF/C | 3 | 0 | 2012 | 32.0 |
Sketch
Property Image
Land
| 1 | 32 | AC (03.01-09.99) | 5.0000 | 0.00 | 0.00 | 0.00 | 1.00 | $410,000 | $0 |
Roll Value History
| 2026 | N/A | N/A | N/A | N/A | N/A |
| 2025 | $611,589 | $410,000 | $0 | $1,021,589 | $1,021,589 |
| 2024 | $619,031 | $390,000 | $0 | $1,009,031 | $1,009,031 |
| 2023 | $626,477 | $380,000 | $0 | $1,006,477 | $1,006,477 |
| 2022 | $576,262 | $350,000 | $0 | $926,262 | $926,262 |
| 2021 | $472,325 | $210,000 | $0 | $682,325 | $682,325 |
| 2020 | $460,646 | $200,000 | $0 | $660,646 | $660,646 |
| 2019 | $349,250 | $250,000 | $0 | $599,250 | $599,250 |
| 2018 | $350,286 | $220,000 | $0 | $570,286 | $570,286 |
| 2017 | $336,299 | $170,000 | $0 | $506,299 | $506,299 |
| 2016 | $340,208 | $150,000 | $0 | $490,208 | $490,208 |
| 2015 | $328,868 | $150,000 | $0 | $478,868 | $478,868 |
| 2014 | $332,631 | $150,000 | $0 | $482,631 | $482,631 |
| 2013 | $336,392 | $112,000 | $0 | $448,392 | $448,392 |
| 2012 | $337,438 | $112,000 | $0 | $449,438 | $449,438 |
| 2011 | $228,448 | $140,000 | $0 | $368,448 | $368,448 |
| 2010 | $240,681 | $140,000 | $0 | $380,681 | $380,681 |
| 2009 | $240,374 | $160,000 | $0 | $400,374 | $400,374 |
| 2008 | $192,920 | $171,080 | $0 | $364,000 | $364,000 |
| 2007 | $247,864 | $147,500 | $0 | $395,364 | $395,364 |
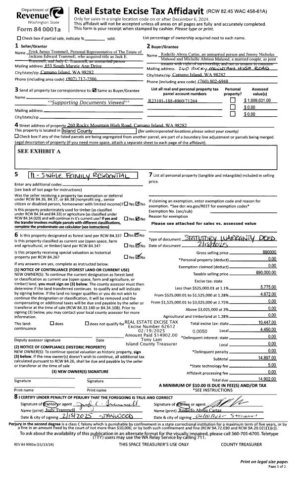
Deed and Sales History
| 1 | 02/18/2025 | WD | Warranty Deed | ERICK JAMES TRAMMELL, PR | CARTAS JTWROS, RODOLFO ABREU | | | $890,000.00 | 62612 | 4582435 |
| 2 | 05/23/2008 | QCD | Quit Claim Deed | TRAMMEL, JACKSON E | TRAMMEL, JACKSON E | | | $0.00 | 81353 | 4229608 |
| 3 | 12/27/2001 | QCD | Quit Claim Deed | LIOI, JAMES | TRAMMEL, JACKSON E | | | $0.00 | 20306 | 4009220 |
| 4 | 10/29/2001 | 5 | DNU - Marriage License/Name Change | LIOI, JAMES & | LIOI, JAMES | | | $0.00 | 69170 | 0 |
| 5 | 08/01/1993 | QCD | Quit Claim Deed | LIOI, JAMES & | LIOI, JAMES & | | | $0.00 | 33544 | 93018440 |
| 6 | 12/01/1978 | OTHER | Other - Misc. Documents | Unknown | LIOI, JAMES & | | | $27,500.00 | 86177 | 344894 |
Payout Agreement
| No payout information available.. |