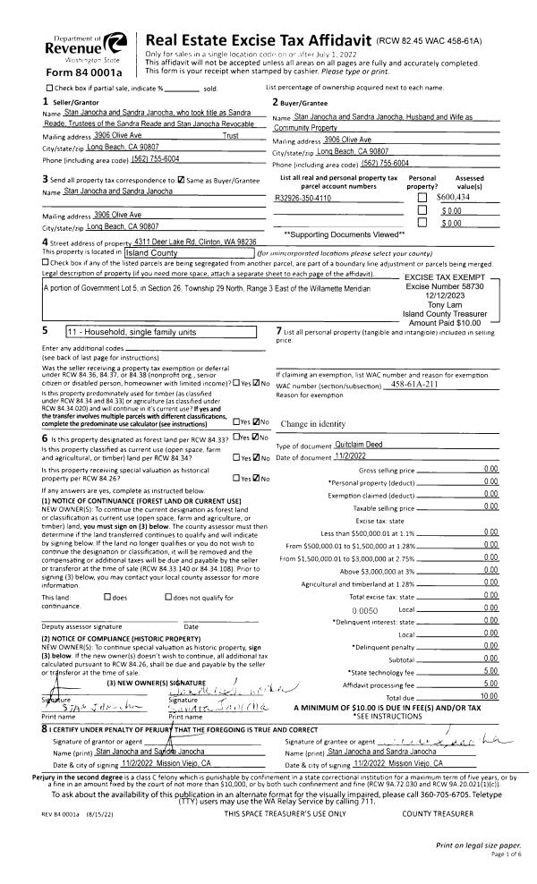
Property
Account |
| Property ID: | 712937 | Abbreviated Legal Description: | LOT 1 SP 41-93.33217.305-4370 V3 SP P40/41 AF#95014309 TGW EZ COMM BCH AF#96003844 |
| Geographic ID: | R33217-344-4260 | Agent Code: | |
| Type: | Real | | |
| Tax Area: | 512 - APPRAISER-Stan/Cam Schl Dist, improved, greater than 1 acre | Land Use Code | 11 |
| Open Space: | N | DFL | N |
| Historic Property: | N | Remodel Property: | N |
| Multi-Family Redevelopment: | N | | |
| Township: | 32 | Section: | 17 |
| Range: | R3 |
Location |
| Address: | 709 TILLICUM WAY CAMANO ISLAND, WA 98282 | Mapsco: | |
| Neighborhood: | North Camano | Map ID: | 956 |
| Neighborhood CD: | 06-C |
Owner |
| Name: | YOUNG, SALLY | Owner ID: | 312082 |
| Mailing Address: | ALLAN YOUNG 709 TILLICUM WAY CAMANO ISLAND, WA 98282 | % Ownership: | 100.0000000000% |
| | | Exemptions: | |
Taxes and Assessment Details
Values
| (+) Improvement Homesite Value: | + | $0 | |
| (+) Improvement Non-Homesite Value: | + | $844,641 | |
| (+) Land Homesite Value: | + | $0 | |
| (+) Land Non-Homesite Value: | + | $900,000 | |
| (+) Curr Use (HS): | + | $0 | $0 |
| (+) Curr Use (NHS): | + | $0 | $0 |
| | | -------------------------- | |
| (=) Market Value: | = | $1,744,641 | |
| (–) Productivity Loss: | – | $0 | |
| | | -------------------------- | |
| (=) Subtotal: | = | $1,744,641 | |
| (+) Senior Appraised Value: | + | $0 | |
| (+) Non-Senior Appraised Value: | + | $1,744,641 | |
| | | -------------------------- | |
| (=) Total Appraised Value: | = | $1,744,641 | |
| (–) Senior Exemption Loss: | – | $0 | |
| (–) Exemption Loss: | – | $0 | |
| | | -------------------------- | |
| (=) Taxable Value: | = | $1,744,641 | |
Taxing Jurisdiction
| Owner: | YOUNG, SALLY | | |
| % Ownership: | 100.0000000000% | | |
| Total Value: | $1,744,641 | | |
| Tax Area: | 512 - APPRAISER-Stan/Cam Schl Dist, improved, greater than 1 acre |
| CF | Conservation Futures | 0.0313996660 | $1,744,641 | $1,744,641 | $54.78 | | |
| EMS1 | Fire & Rescue Dist #1 Camano GEN (EMS) | 0.4998471806 | $1,744,641 | $1,744,641 | $872.05 | | |
| FIRE1 | Fire & Rescue Dist #1 Camano GEN | 1.2496603404 | $1,744,641 | $1,744,641 | $2,180.21 | | |
| FIRE1BOND | Fire & Rescue Dist #1 Camano BOND | 0.1630371212 | $1,744,641 | $1,744,641 | $284.44 | | |
| CE | County Current Expense | 0.3674210519 | $1,744,641 | $1,744,641 | $641.02 | | |
| CR | County Roads | 0.4614296361 | $1,744,641 | $1,744,641 | $805.03 | | |
| LIB | Library Sno-Isle GEN | 0.3039084203 | $1,744,641 | $1,744,641 | $530.21 | | |
| SCH205_401 | School 205-401 Enrichment | 1.3697998934 | $1,744,641 | $1,744,641 | $2,389.81 | | |
| SCH205BOND | School 205-401 BOND | 0.9354199323 | $1,744,641 | $1,744,641 | $1,631.97 | | |
| ST | State School | 1.4761226122 | $1,744,641 | $1,744,641 | $2,575.30 | | |
| ST2 | State School Part 2 | 0.7953803475 | $1,744,641 | $1,744,641 | $1,387.65 | | |
| | Total Tax Rate: | 7.6534262019 | | | | | |
| | | | | Taxes w/Current Exemptions: | $13,352.47 | | |
| | | | | Taxes w/o Exemptions: | $13,352.47 | | |
Improvement / Building
| Improvement #1: | RESIDENTIAL | State Code: | Y | 3661.0 sqft | Value: | $517,726 |
| Bathrooms: | 2.5 | Bedrooms: | 3 | | Ceiling: | DRYWALL PAINTED | Exterior Wall/Cover: | WOOD SIDING | | Floor Covering: | HARDWOOD/CARP 20-80 | Floor Structure: | WOOD W/SUBFLOOR | | Foundation: | CONCRETE | Heating: | FHA GAS | | Interior Finish: | DRYWALL PAINT | Plumbing Fixture Cnt: | 14 | | Roof Slope: | 5" IN 12" | Roof Structure/Cover: | CJ ASPHALT |
|
| | Type | Description | Class CD | Sub Class CD | Year Built | Area |
| | BAS | BASE/MAIN FLOOR | 4 | 0 | 1994 | 2119.0 |
| | OP1 | OPEN PORCH SLAB | 4 | 0 | 1994 | 379.5 |
| | OP4 | OPEN PORCH W/CEILING-ROOF | 4 | 0 | 1994 | 96.0 |
| | AGR | ATTACHED GARAGE | 4 | 0 | 1994 | 644.0 |
| | OWP | OPEN WOOD PORCH W/STEPS | 4 | 0 | 1994 | 439.0 |
| | DWN | DOWNSTAIRS LIVING AREA | 4 | 0 | 1994 | 1542.0 |
| Improvement #2: | RESIDENTIAL | State Code: | Y | 1838.8 sqft | Value: | $326,915 |
| Bathrooms: | 2 | Bedrooms: | 2 | | Ceiling: | DRYWALL PAINTED | Exterior Wall/Cover: | WOOD SIDING | | Floor Covering: | HARDWOOD/CARP 20-80 | Floor Structure: | WOOD W/SUBFLOOR | | Foundation: | CONCRETE | Heating: | FHA GAS | | Interior Finish: | DRYWALL PAINT | Plumbing Fixture Cnt: | 10 | | Roof Slope: | 5" IN 12" | Roof Structure/Cover: | CJ ASPHALT |
|
| | Type | Description | Class CD | Sub Class CD | Year Built | Area |
| | BAS | BASE/MAIN FLOOR | 4 | 0 | 2004 | 1287.5 |
| | UB8 | BASEMENT UNFINISHED 8" | 4 | 0 | 2004 | 215.0 |
| | OWP | OPEN WOOD PORCH W/STEPS | 4 | 0 | 2004 | 97.8 |
| | OWC | OPEN WOOD PORCH W/STEPS/ROOF/C | 4 | 0 | 2004 | 168.5 |
| | DWN | DOWNSTAIRS LIVING AREA | 4 | 0 | 2004 | 551.3 |
| | OP1 | OPEN PORCH SLAB | 4 | 0 | 2004 | 204.3 |
Sketch
Property Image
Land
| 1 | HB | HIGH BLUFF | 2.5000 | 108900.00 | 220.00 | 0.00 | 1.00 | $900,000 | $0 |
Roll Value History
| 2026 | N/A | N/A | N/A | N/A | N/A |
| 2025 | $844,641 | $900,000 | $0 | $1,744,641 | $1,744,641 |
| 2024 | $855,086 | $900,000 | $0 | $1,755,086 | $1,755,086 |
| 2023 | $820,737 | $825,000 | $0 | $1,645,737 | $1,645,737 |
| 2022 | $717,785 | $530,000 | $0 | $1,247,785 | $1,247,785 |
| 2021 | $631,959 | $425,000 | $0 | $1,056,959 | $1,056,959 |
| 2020 | $617,310 | $400,000 | $0 | $1,017,310 | $1,017,310 |
| 2019 | $532,106 | $400,000 | $0 | $932,106 | $932,106 |
| 2018 | $533,713 | $450,000 | $0 | $983,713 | $983,713 |
| 2017 | $536,889 | $400,000 | $0 | $936,889 | $936,889 |
| 2016 | $557,136 | $400,000 | $0 | $957,136 | $957,136 |
| 2015 | $613,332 | $400,000 | $0 | $1,013,332 | $1,013,332 |
| 2014 | $620,634 | $400,000 | $0 | $1,020,634 | $1,020,634 |
| 2013 | $665,618 | $373,184 | $0 | $1,038,802 | $1,038,802 |
| 2012 | $673,358 | $373,184 | $0 | $1,046,542 | $1,046,542 |
| 2011 | $681,097 | $392,825 | $0 | $1,073,922 | $1,073,922 |
| 2010 | $713,718 | $392,825 | $0 | $1,106,543 | $1,106,543 |
| 2009 | $743,839 | $435,941 | $0 | $1,179,780 | $1,179,780 |
| 2008 | $752,712 | $435,941 | $0 | $1,188,653 | $1,188,653 |
| 2007 | $761,604 | $435,941 | $0 | $1,197,545 | $1,197,545 |
Deed and Sales History
| 1 | 04/23/2024 | WD | Warranty Deed | SCOMA, JEFFREY A | YOUNG, SALLY | | | $1,875,000.00 | 59725 | 4571565 |
| 2 | 04/26/2022 | WD | Warranty Deed | WACHTER, ANETTE SARAH | SCOMA, JEFFREY A | | | $1,900,000.00 | 52901 | 4544279 |
| 3 | 02/07/2019 | WD | Warranty Deed | PITTMAN, WILLIAM | WACHTER, ANETTE SARAH | | | $899,000.00 | 37690 | 4459724 |
| 4 | 01/22/2007 | WD | Warranty Deed | BURROWS, DAVID M | PITTMAN, WILLIAM | | | $1,198,000.00 | 70253 | 4192624 |
| 5 | 09/01/1995 | WD | Warranty Deed | GIBSON, TAREE L | BURROWS, DAVID M | | | $350,000.00 | 53622 | 95016645 |
| 6 | 01/01/1995 | QCD | Quit Claim Deed | BURROWS, DAVID M | BURROWS, DAVID M | | | $0.00 | 60716 | 96003844 |
| 7 | 01/01/1900 | OTHER | Other - Misc. Documents | Unknown | GIBSON, TAREE L | | | $0.00 | 72220 | 87010066 |
Payout Agreement
| No payout information available.. |