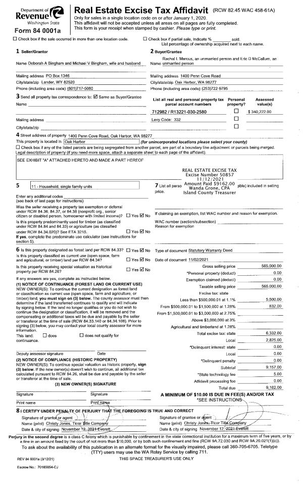
Property
Account |
| Property ID: | 712982 | Abbreviated Legal Description: | TRACT 1 REV SP 76-79 AF#408336: PT E495' OF SW DESC: BG SE CR SW N02*E940' N88*W285.02' S02*W950' M/L TO NLN PENN CV RD ELY TPB TGW PT LOTS 4 & 5 PENN CV MANOR LY N OF RD EX NLY 333.62' TGW & SUB EZ AF#424956 A#60932 FR 051-2580 |
| Geographic ID: | R13221-030-2580 | Agent Code: | |
| Type: | Real | | |
| Tax Area: | 332 - APPRAISER-Cpvl Schl Dist, Special Dist, improved, greater than 1 acre | Land Use Code | 11 |
| Open Space: | N | DFL | N |
| Historic Property: | N | Remodel Property: | N |
| Multi-Family Redevelopment: | N | | |
| Township: | 32 | Section: | 21 |
| Range: | R1 |
Location |
| Address: | 1400 PENN COVE RD OAK HARBOR, WA 98277 | Mapsco: | |
| Neighborhood: | Cycle 2 | Map ID: | 149 |
| Neighborhood CD: | 2 |
Owner |
| Name: | MARCUS, RACHAL L | Owner ID: | 301940 |
| Mailing Address: | 1400 PENN COVE RD OAK HARBOR, WA 98277 | % Ownership: | 100.0000000000% |
| | | Exemptions: | |
Taxes and Assessment Details
Values
| (+) Improvement Homesite Value: | + | $0 | |
| (+) Improvement Non-Homesite Value: | + | $230,106 | |
| (+) Land Homesite Value: | + | $0 | |
| (+) Land Non-Homesite Value: | + | $289,800 | |
| (+) Curr Use (HS): | + | $0 | $0 |
| (+) Curr Use (NHS): | + | $0 | $0 |
| | | -------------------------- | |
| (=) Market Value: | = | $519,906 | |
| (–) Productivity Loss: | – | $0 | |
| | | -------------------------- | |
| (=) Subtotal: | = | $519,906 | |
| (+) Senior Appraised Value: | + | $0 | |
| (+) Non-Senior Appraised Value: | + | $519,906 | |
| | | -------------------------- | |
| (=) Total Appraised Value: | = | $519,906 | |
| (–) Senior Exemption Loss: | – | $0 | |
| (–) Exemption Loss: | – | $0 | |
| | | -------------------------- | |
| (=) Taxable Value: | = | $519,906 | |
Taxing Jurisdiction
| Owner: | MARCUS, RACHAL L | | |
| % Ownership: | 100.0000000000% | | |
| Total Value: | $519,906 | | |
| Tax Area: | 332 - APPRAISER-Cpvl Schl Dist, Special Dist, improved, greater than 1 acre |
| CF | Conservation Futures | 0.0313996660 | $519,906 | $519,906 | $16.32 | | |
| CEM2 | Cemetery #2 | 0.0092609791 | $519,906 | $519,906 | $4.81 | | |
| FIRE2 | Fire & Rescue Dist #2 N Whidbey GEN | 0.5381486274 | $519,906 | $519,906 | $279.79 | | |
| HOBOND | Hospital BOND | 0.1893405597 | $519,906 | $519,906 | $98.44 | | |
| HOGEN | Hospital GEN | 0.3848777722 | $519,906 | $519,906 | $200.10 | | |
| CE | County Current Expense | 0.3674210519 | $519,906 | $519,906 | $191.02 | | |
| CR | County Roads | 0.4614296361 | $519,906 | $519,906 | $239.90 | | |
| ISLANDEMS | Hospital GEN (EMS) | 0.4952018576 | $519,906 | $519,906 | $257.46 | | |
| LIB | Library Sno-Isle GEN | 0.3039084203 | $519,906 | $519,906 | $158.00 | | |
| LIBCAP | Library Sno-Isle BOND (Cap Fac Imp Area) | 0.0528562629 | $519,906 | $519,906 | $27.48 | | |
| POCOUP | Port of Coupeville GEN | 0.1065226063 | $519,906 | $519,906 | $55.38 | | |
| POCOUPIDD | Port of Coupeville IDD | 0.3353038577 | $519,906 | $519,906 | $174.33 | | |
| COUPSDTECH | School 204 CP (TECH) | 0.1215123397 | $519,906 | $519,906 | $63.17 | | |
| SCH204MO | School 204 Enrichment | 0.6416662518 | $519,906 | $519,906 | $333.61 | | |
| ST | State School | 1.4761226122 | $519,906 | $519,906 | $767.45 | | |
| ST2 | State School Part 2 | 0.7953803475 | $519,906 | $519,906 | $413.52 | | |
| | Total Tax Rate: | 6.3103528484 | | | | | |
| | | | | Taxes w/Current Exemptions: | $3,280.78 | | |
| | | | | Taxes w/o Exemptions: | $3,280.78 | | |
Improvement / Building
| Improvement #1: | RESIDENTIAL | State Code: | Y | 1094.0 sqft | Value: | $230,106 |
| Bathrooms: | 1 | Bedrooms: | 1 | | Ceiling: | DRYWALL PAINTED | Exterior Wall/Cover: | CEMENT FIBER | | Floor Covering: | HARDWOOD 100% | Floor Structure: | WOOD W/SUBFLOOR | | Foundation: | CONCRETE | Heating: | FHA GAS | | Interior Finish: | DRYWALL PAINT | Plumbing Fixture Cnt: | 7 | | Roof Slope: | 4" IN 12" | Roof Structure/Cover: | CJ ASPHALT |
|
| | Type | Description | Class CD | Sub Class CD | Year Built | Area |
| | BAS | BASE/MAIN FLOOR | 3 | 0 | 2005 | 1000.0 |
| | BIG | BUILT IN GARAGE | 3 | 0 | 2005 | 906.0 |
| | OWP | OPEN WOOD PORCH W/STEPS | 3 | 0 | 2005 | 150.0 |
| | DWN | DOWNSTAIRS LIVING AREA | 3 | 0 | 2005 | 94.0 |
Sketch
Property Image
Land
| 1 | HS | HOMESITE | 1.0000 | 43560.00 | 0.00 | 0.00 | 1.00 | $270,000 | $0 |
| 2 | 91 | UNDEVELOPED LAND-METES AND BOUNDS | 0.9900 | 43124.40 | 0.00 | 0.00 | 1.00 | $19,800 | $0 |
Roll Value History
| 2026 | N/A | N/A | N/A | N/A | N/A |
| 2025 | $230,106 | $289,800 | $0 | $519,906 | $519,906 |
| 2024 | $232,974 | $260,000 | $0 | $492,974 | $492,974 |
| 2023 | $235,841 | $260,000 | $0 | $495,841 | $495,841 |
| 2022 | $216,161 | $250,000 | $0 | $466,161 | $466,161 |
| 2021 | $190,222 | $150,000 | $0 | $340,222 | $340,222 |
| 2020 | $185,320 | $150,000 | $0 | $335,320 | $335,320 |
| 2019 | $133,152 | $180,000 | $0 | $313,152 | $313,152 |
| 2018 | $137,420 | $160,000 | $0 | $297,420 | $297,420 |
| 2017 | $138,216 | $150,000 | $0 | $288,216 | $288,216 |
| 2016 | $139,804 | $120,000 | $0 | $259,804 | $259,804 |
| 2015 | $141,392 | $90,000 | $0 | $231,392 | $231,392 |
| 2014 | $142,981 | $90,000 | $0 | $232,981 | $232,981 |
| 2013 | $144,570 | $102,000 | $0 | $246,570 | $246,570 |
| 2012 | $163,670 | $102,000 | $0 | $265,670 | $265,670 |
| 2011 | $165,421 | $120,000 | $0 | $285,421 | $285,421 |
| 2010 | $169,495 | $120,000 | $0 | $289,495 | $289,495 |
| 2009 | $174,775 | $105,000 | $0 | $279,775 | $279,775 |
| 2008 | $176,705 | $109,440 | $0 | $286,145 | $286,145 |
| 2007 | $178,592 | $109,440 | $0 | $288,032 | $288,032 |
Deed and Sales History
| 1 | 11/02/2021 | WD | Warranty Deed | BINGHAM, DEBORAH A | MARCUS, RACHAL L | | | $565,000.00 | 50857 | 4533672 |
| 2 | 07/22/2019 | WD | Warranty Deed | SNODEN, BARBARA A | BINGHAM, DEBORAH A | | | $410,000.00 | 39912 | 4469546 |
| 3 | 01/04/2004 | WD | Warranty Deed | IVERSON, GAIL E | SNODEN, BARBARA A | | | $135,000.00 | 40155 | 4088483 |
| 4 | 09/01/1995 | OTHER | Other - Misc. Documents | IVERSON, GAIL E | IVERSON, GAIL E | | | $0.00 | 66645 | 95015073 |
| 5 | 01/01/1900 | OTHER | Other - Misc. Documents | Unknown | IVERSON, GAIL E | | | $0.00 | 3706 | 90012035 |
Payout Agreement
| No payout information available.. |