Property
Account |
| Property ID: | 713071 | Abbreviated Legal Description: | LOT 1 SP 13-93.32910.157-0950 V3 SP P44&45 AF#95014901 |
| Geographic ID: | R32910-150-0850 | Agent Code: | |
| Type: | Real | | |
| Tax Area: | 712 - APPRAISER-S Whid Schl Dist, outside Langley, improved, greater than 1 acre | Land Use Code | 11 |
| Open Space: | N | DFL | N |
| Historic Property: | N | Remodel Property: | N |
| Multi-Family Redevelopment: | N | | |
| Township: | 29 | Section: | 10 |
| Range: | R3 |
Location |
| Address: | 3653 RABBIT RUN RD LANGLEY, WA 98260 | Mapsco: | |
| Neighborhood: | Cycle 4 | Map ID: | 754 |
| Neighborhood CD: | 4 |
Owner |
| Name: | RABBIT RUN ROAD, LLC | Owner ID: | 306592 |
| Mailing Address: | 16211 SE 137TH PL RENTON, WA 98059 | % Ownership: | 100.0000000000% |
| | | Exemptions: | |
Taxes and Assessment Details
Values
| (+) Improvement Homesite Value: | + | $0 | |
| (+) Improvement Non-Homesite Value: | + | $379,223 | |
| (+) Land Homesite Value: | + | $0 | |
| (+) Land Non-Homesite Value: | + | $380,000 | |
| (+) Curr Use (HS): | + | $0 | $0 |
| (+) Curr Use (NHS): | + | $0 | $0 |
| | | -------------------------- | |
| (=) Market Value: | = | $759,223 | |
| (–) Productivity Loss: | – | $0 | |
| | | -------------------------- | |
| (=) Subtotal: | = | $759,223 | |
| (+) Senior Appraised Value: | + | $0 | |
| (+) Non-Senior Appraised Value: | + | $759,223 | |
| | | -------------------------- | |
| (=) Total Appraised Value: | = | $759,223 | |
| (–) Senior Exemption Loss: | – | $0 | |
| (–) Exemption Loss: | – | $0 | |
| | | -------------------------- | |
| (=) Taxable Value: | = | $759,223 | |
Taxing Jurisdiction
| Owner: | RABBIT RUN ROAD, LLC | | |
| % Ownership: | 100.0000000000% | | |
| Total Value: | $759,223 | | |
| Tax Area: | 712 - APPRAISER-S Whid Schl Dist, outside Langley, improved, greater than 1 acre |
| CF | Conservation Futures | 0.0313996660 | $759,223 | $759,223 | $23.84 | | |
| FIRE3 | Fire & Rescue Dist #3 S Whidbey GEN | 1.2130821753 | $759,223 | $759,223 | $921.00 | | |
| HOBOND | Hospital BOND | 0.1893405597 | $759,223 | $759,223 | $143.75 | | |
| HOGEN | Hospital GEN | 0.3848777722 | $759,223 | $759,223 | $292.21 | | |
| CE | County Current Expense | 0.3674210519 | $759,223 | $759,223 | $278.95 | | |
| CR | County Roads | 0.4614296361 | $759,223 | $759,223 | $350.33 | | |
| ISLANDEMS | Hospital GEN (EMS) | 0.4952018576 | $759,223 | $759,223 | $375.97 | | |
| LIB | Library Sno-Isle GEN | 0.3039084203 | $759,223 | $759,223 | $230.73 | | |
| PORTWHID | Port of S Whidbey GEN | 0.1086004714 | $759,223 | $759,223 | $82.45 | | |
| SCH206BOND | School 206 BOND | 0.5960237832 | $759,223 | $759,223 | $452.51 | | |
| SCH206CAP | School 206 CP | 0.3066144020 | $759,223 | $759,223 | $232.79 | | |
| SCH206MO | School 206 Enrichment | 0.4808755445 | $759,223 | $759,223 | $365.09 | | |
| ST | State School | 1.4761226122 | $759,223 | $759,223 | $1,120.71 | | |
| ST2 | State School Part 2 | 0.7953803475 | $759,223 | $759,223 | $603.87 | | |
| SWHIDPRBD | P & R S Whidbey BOND | 0.0144185398 | $759,223 | $759,223 | $10.95 | | |
| SWHIDPRBD3 | P & R S Whidbey BOND3 | 0.1483535547 | $759,223 | $759,223 | $112.63 | | |
| SWHIDPRMT | P & R S Whidbey GEN | 0.4600000000 | $759,223 | $759,223 | $349.24 | | |
| | Total Tax Rate: | 7.8330503944 | | | | | |
| | | | | Taxes w/Current Exemptions: | $5,947.02 | | |
| | | | | Taxes w/o Exemptions: | $5,947.02 | | |
Improvement / Building
| Improvement #1: | RESIDENTIAL | State Code: | Y | 2505.5 sqft | Value: | $379,223 |
| Bathrooms: | 1 | Bedrooms: | 1 | | Ceiling: | TONGUE & GROOVE | Exterior Wall/Cover: | SHINGLE | | Floor Covering: | VINYL 100% | Floor Structure: | WOOD W/SUBFLOOR | | Foundation: | SLAB | Heating: | FHA GAS | | Interior Finish: | DRYWALL PAINT | Plumbing Fixture Cnt: | 6 | | Roof Slope: | 12" IN 12" | Roof Structure/Cover: | CJ ALUMINIUM HEAVY |
|
| | Type | Description | Class CD | Sub Class CD | Year Built | Area |
| | BAS | BASE/MAIN FLOOR | 3 | 0 | 1993 | 2185.5 |
| | OWC | OPEN WOOD PORCH W/STEPS/ROOF/C | 3 | 0 | 1993 | 70.5 |
| | ENP | ENCLOSED PORCH | 3 | 0 | 1993 | 97.5 |
| | LOF | LOFT | 3 | 0 | 1993 | 320.0 |
| | DGR | DETACHED GARAGE | 3 | 0 | 1993 | 812.0 |
| | oCB2 | CABIN FIN | 3 | 0 | 1993 | 0.0 |
| | CPD | OPEN CARPORT DIRT FLOOR | 3 | 0 | 1993 | 96.0 |
Sketch
Property Image
Land
| 1 | 32 | AC (03.01-09.99) | 4.8400 | 0.00 | 0.00 | 0.00 | 1.00 | $380,000 | $0 |
Roll Value History
| 2026 | N/A | N/A | N/A | N/A | N/A |
| 2025 | $379,223 | $380,000 | $0 | $759,223 | $759,223 |
| 2024 | $383,770 | $350,000 | $0 | $733,770 | $733,770 |
| 2023 | $388,316 | $330,000 | $0 | $718,316 | $718,316 |
| 2022 | $356,661 | $290,000 | $0 | $646,661 | $646,661 |
| 2021 | $314,998 | $230,000 | $0 | $544,998 | $544,998 |
| 2020 | $234,440 | $190,000 | $0 | $424,440 | $424,440 |
| 2019 | $172,662 | $250,000 | $0 | $422,662 | $422,662 |
| 2018 | $173,151 | $210,000 | $0 | $383,151 | $383,151 |
| 2017 | $163,594 | $190,000 | $0 | $353,594 | $353,594 |
| 2016 | $165,424 | $165,000 | $0 | $330,424 | $330,424 |
| 2015 | $167,255 | $135,000 | $0 | $302,255 | $302,255 |
| 2014 | $167,912 | $154,880 | $0 | $322,792 | $322,792 |
| 2013 | $169,572 | $154,880 | $0 | $324,452 | $324,452 |
| 2012 | $171,233 | $154,880 | $0 | $326,113 | $326,113 |
| 2011 | $172,894 | $154,880 | $0 | $327,774 | $327,774 |
| 2010 | $167,290 | $154,880 | $0 | $322,170 | $322,170 |
| 2009 | $173,575 | $212,960 | $0 | $386,535 | $386,535 |
| 2008 | $106,979 | $208,120 | $0 | $315,099 | $315,099 |
| 2007 | $108,458 | $208,120 | $0 | $316,578 | $316,578 |
Deed and Sales History
| 1 | 11/24/2025 | WD | Warranty Deed | RABBIT RUN ROAD, LLC | SLYE, RONALD C | | | $799,000.00 | 65545 | 4593870 |
| 2 | 10/07/2022 | QCD | Quit Claim Deed | THOMAS TTEE, RICHARD D. | RABBIT RUN ROAD, LLC | | | $0.00 | 55307 | 4554515 |
| 3 | 10/07/2022 | QCD | Quit Claim Deed | THOMAS, SUZANNE J | THOMAS TTEE, RICHARD D. | | | $0.00 | 55090 | 4553527 |
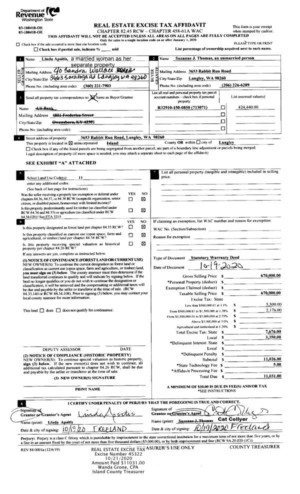
| 4 | 10/19/2020 | WD | Warranty Deed | APSITIS, LINDA | THOMAS, SUZANNE J | | | $670,000.00 | 45322 | 4500020 |
| 5 | 09/16/2020 | QCD | Quit Claim Deed | HUMFLEET, CLARENCE A | APSITIS, LINDA | | | $0.00 | 44791 | 4496812 |
| 6 | 08/06/1998 | ESTSEPPROP | Establish Separate Property | HUMFLEET, CLARENCE A | HUMFLEET, CLARENCE A | | | $0.00 | 83150 | 98016464 |
| 7 | 08/06/1998 | WD | Warranty Deed | HUMFLEET, CLARENCE A | HUMFLEET, CLARENCE A | | | $118,000.00 | 83149 | 98016466 |
| 8 | 01/01/1900 | OTHER | Other - Misc. Documents | Unknown | TAYLOR, ORAL J | | | $0.00 | 91218 | 89004295 |
| 9 | 01/01/1900 | OTHER | Other - Misc. Documents | TAYLOR, ORAL J | HUMFLEET, CLARENCE A | | | $0.00 | 83149 | 98016466 |
| 10 | 01/01/1900 | OTHER | Other - Misc. Documents | HUMFLEET, CLARENCE A | HUMFLEET, CLARENCE A | | | $0.00 | 83150 | 98016464 |
Payout Agreement
| No payout information available.. |