Property
Account |
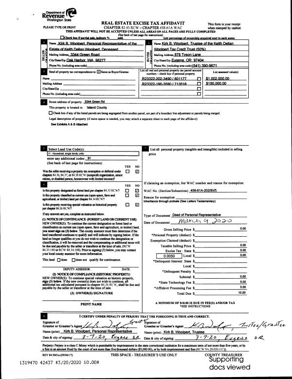
| Property ID: | 713516 | Abbreviated Legal Description: | 4/94 IN GL 2: BG SECR GL 2 N89*W 198.88'TP CTRLN GREEN RD N44*W374.32'ALG CTRLN TPB CONT ALG CTRLN N44*W.45' N54*W114.27' N30*E TP ON ML S31*E92.25'ALG ML S27*W665 .60'TPB EX GREEN RD FR 192-3580 SEE V9 SUR P194 AF#95015503 |
| Geographic ID: | R23322-190-3590 | Agent Code: | |
| Type: | Real | | |
| Tax Area: | 119 - APPRAISER-OH Schl Dist, outside OH, vacant & 50 acres or less | Land Use Code | 91 |
| Open Space: | N | DFL | N |
| Historic Property: | N | Remodel Property: | N |
| Multi-Family Redevelopment: | N | | |
| Township: | 33 | Section: | 22 |
| Range: | R2 |
Location |
| Address: | | Mapsco: | |
| Neighborhood: | Cycle 6 | Map ID: | 621 |
| Neighborhood CD: | 6 |
Owner |
| Name: | IBRAHIM, JASON | Owner ID: | 306583 |
| Mailing Address: | JILL BARRETT 3344 GREEN RD OAK HARBOR, WA 98277-9096 | % Ownership: | 100.0000000000% |
| | | Exemptions: | |
Taxes and Assessment Details
Values
| (+) Improvement Homesite Value: | + | N/A | |
| (+) Improvement Non-Homesite Value: | + | N/A | |
| (+) Land Homesite Value: | + | N/A | |
| (+) Land Non-Homesite Value: | + | N/A | Ag / Timber Use Value |
| (+) Curr Use (HS): | + | N/A | N/A |
| (+) Curr Use (NHS): | + | N/A | N/A |
| | | -------------------------- | |
| (=) Market Value: | = | N/A | |
| (–) Productivity Loss: | – | N/A | |
| | | -------------------------- | |
| (=) Subtotal: | = | N/A | |
| (+) Senior Appraised Value: | + | N/A | |
| (+) Non-Senior Appraised Value: | + | N/A | |
| | | -------------------------- | |
| (=) Total Appraised Value: | = | N/A | |
| (–) Senior Exemption Loss: | – | N/A | |
| (–) Exemption Loss: | – | N/A | |
| | | -------------------------- | |
| (=) Taxable Value: | = | N/A | |
Taxing Jurisdiction
| Owner: | IBRAHIM, JASON | | |
| % Ownership: | 100.0000000000% | | |
| Total Value: | N/A | | |
| Tax Area: | 119 - APPRAISER-OH Schl Dist, outside OH, vacant & 50 acres or less |
| CF | Conservation Futures | N/A | N/A | N/A | N/A | | |
| WCD | Whidbey Conservation District | N/A | N/A | N/A | N/A | | |
| CEM1 | Cemetery #1 | N/A | N/A | N/A | N/A | | |
| HOBOND | Hospital BOND | N/A | N/A | N/A | N/A | | |
| HOGEN | Hospital GEN | N/A | N/A | N/A | N/A | | |
| CE | County Current Expense | N/A | N/A | N/A | N/A | | |
| CR | County Roads | N/A | N/A | N/A | N/A | | |
| ISLANDEMS | Hospital GEN (EMS) | N/A | N/A | N/A | N/A | | |
| LIB | Library Sno-Isle GEN | N/A | N/A | N/A | N/A | | |
| NWHIDPRMT | P & R N Whidbey GEN | N/A | N/A | N/A | N/A | | |
| SCH201MO | School 201 Enrichment | N/A | N/A | N/A | N/A | | |
| ST | State School | N/A | N/A | N/A | N/A | | |
| ST2 | State School Part 2 | N/A | N/A | N/A | N/A | | |
| | Total Tax Rate: | N/A | | | | | |
| | | | | Taxes w/Current Exemptions: | N/A | | |
| | | | | Taxes w/o Exemptions: | N/A | | |
Improvement / Building
Sketch
| No sketches available for this property. |
Property Image
Land
| 1 | HB | HIGH BLUFF | 1.2500 | 54450.00 | 80.00 | 0.00 | 1.00 | N/A | N/A |
Roll Value History
| 2026 | N/A | N/A | N/A | N/A | N/A |
| 2025 | $0 | $250,000 | $0 | $250,000 | $250,000 |
| 2024 | $0 | $250,000 | $0 | $250,000 | $250,000 |
| 2023 | $0 | $225,000 | $0 | $225,000 | $225,000 |
| 2022 | $0 | $225,000 | $0 | $225,000 | $225,000 |
| 2021 | $0 | $150,000 | $0 | $150,000 | $150,000 |
| 2020 | $0 | $150,000 | $0 | $150,000 | $150,000 |
| 2019 | $0 | $150,000 | $0 | $150,000 | $150,000 |
| 2018 | $0 | $150,000 | $0 | $150,000 | $150,000 |
| 2017 | $0 | $150,000 | $0 | $150,000 | $150,000 |
| 2016 | $0 | $150,000 | $0 | $150,000 | $150,000 |
| 2015 | $0 | $150,000 | $0 | $150,000 | $150,000 |
| 2014 | $0 | $120,000 | $0 | $120,000 | $120,000 |
| 2013 | $0 | $106,663 | $0 | $106,663 | $106,663 |
| 2012 | $0 | $106,663 | $0 | $106,663 | $106,663 |
| 2011 | $0 | $106,663 | $0 | $106,663 | $106,663 |
| 2010 | $0 | $106,663 | $0 | $106,663 | $106,663 |
| 2009 | $0 | $114,645 | $0 | $114,645 | $114,645 |
| 2008 | $0 | $114,645 | $0 | $114,645 | $114,645 |
| 2007 | $0 | $108,103 | $0 | $108,103 | $108,103 |
Deed and Sales History
| 1 | 10/29/2022 | WD | Warranty Deed | WOOLPERT TTEE, KIRK B | IBRAHIM, JASON | | | $1,750,000.00 | 55077 | 4553430 |
|   | |
| 2 | 03/02/2020 | QCD | Quit Claim Deed | WOOLPERT, JOANN | WOOLPERT TTEE, KIRK B | | | $0.00 | 42438 | 4483360 |
| 3 | 03/09/2020 | PRD | Personal Representatives Deed | WOOLPERT, KEITH D | WOOLPERT, JOANN | | | $0.00 | 42437 | 4483359 |
| 4 | 07/28/2006 | WD | Warranty Deed | DAVEGA, RICHARD I | WOOLPERT, KEITH D | | | $125,000.00 | 63315 | 4177734 |
| 5 | 04/11/2006 | WD | Warranty Deed | GOODHUE, EDMUND M | DAVEGA, RICHARD I | | | $84,150.00 | 61785 | 4168519 |
| 6 | 09/01/1996 | WD | Warranty Deed | KING, BARBARA B | GOODHUE, EDMUND M | | | $85,000.00 | 63414 | 96016850 |
| 7 | 10/01/1995 | OTHER | Other - Misc. Documents | KING, BARBARA B | KING, BARBARA B | | | $0.00 | 66666 | 95015503 |
| 8 | 05/01/1968 | CD | DNU - Correction Deed | Unknown | KING, BARBARA B | | | $0.00 | 31717 | 0 |
Payout Agreement
| No payout information available.. |