Property
Account |
| Property ID: | 714640 | Abbreviated Legal Description: | 104 - W/2 OF FOLL DESC LY N OF EDGECLIFF DR IN GL3 |
| Geographic ID: | R32902-381-2180 | Agent Code: | |
| Type: | Real | | |
| Tax Area: | 700 - APPRAISER-S Whid Schl Dist, in town of Langley | Land Use Code | 11 |
| Open Space: | N | DFL | N |
| Historic Property: | N | Remodel Property: | N |
| Multi-Family Redevelopment: | N | | |
| Township: | 29 | Section: | 02 |
| Range: | R3 |
Location |
| Address: | 930 EDGECLIFF DR LANGLEY, WA 98260 | Mapsco: | |
| Neighborhood: | City of Langley | Map ID: | 721 |
| Neighborhood CD: | 04-L |
Owner |
| Name: | O'HANLON, SAMANTHA | Owner ID: | 282879 |
| Mailing Address: | 16065 SE 4TH ST BELLEVUE, WA 98008-4830 | % Ownership: | 100.0000000000% |
| | | Exemptions: | |
Taxes and Assessment Details
Values
| (+) Improvement Homesite Value: | + | $0 | |
| (+) Improvement Non-Homesite Value: | + | $409,651 | |
| (+) Land Homesite Value: | + | $0 | |
| (+) Land Non-Homesite Value: | + | $625,000 | |
| (+) Curr Use (HS): | + | $0 | $0 |
| (+) Curr Use (NHS): | + | $0 | $0 |
| | | -------------------------- | |
| (=) Market Value: | = | $1,034,651 | |
| (–) Productivity Loss: | – | $0 | |
| | | -------------------------- | |
| (=) Subtotal: | = | $1,034,651 | |
| (+) Senior Appraised Value: | + | $0 | |
| (+) Non-Senior Appraised Value: | + | $1,034,651 | |
| | | -------------------------- | |
| (=) Total Appraised Value: | = | $1,034,651 | |
| (–) Senior Exemption Loss: | – | $0 | |
| (–) Exemption Loss: | – | $0 | |
| | | -------------------------- | |
| (=) Taxable Value: | = | $1,034,651 | |
Taxing Jurisdiction
| Owner: | O'HANLON, SAMANTHA | | |
| % Ownership: | 100.0000000000% | | |
| Total Value: | $1,034,651 | | |
| Tax Area: | 700 - APPRAISER-S Whid Schl Dist, in town of Langley |
| CF | Conservation Futures | 0.0313996660 | $1,034,651 | $1,034,651 | $32.49 | | |
| LANG | City of Langley | 1.0106798199 | $1,034,651 | $1,034,651 | $1,045.70 | | |
| LANGBOND | City of Langley BOND | 0.0000000000 | $1,034,651 | $1,034,651 | $0.00 | | |
| FIRE3 | Fire & Rescue Dist #3 S Whidbey GEN | 1.2130821753 | $1,034,651 | $1,034,651 | $1,255.12 | | |
| HOBOND | Hospital BOND | 0.1893405597 | $1,034,651 | $1,034,651 | $195.90 | | |
| HOGEN | Hospital GEN | 0.3848777722 | $1,034,651 | $1,034,651 | $398.21 | | |
| CE | County Current Expense | 0.3674210519 | $1,034,651 | $1,034,651 | $380.15 | | |
| ISLANDEMS | Hospital GEN (EMS) | 0.4952018576 | $1,034,651 | $1,034,651 | $512.36 | | |
| LIB | Library Sno-Isle GEN | 0.3039084203 | $1,034,651 | $1,034,651 | $314.44 | | |
| PORTWHID | Port of S Whidbey GEN | 0.1086004714 | $1,034,651 | $1,034,651 | $112.36 | | |
| SCH206BOND | School 206 BOND | 0.5960237832 | $1,034,651 | $1,034,651 | $616.68 | | |
| SCH206CAP | School 206 CP | 0.3066144020 | $1,034,651 | $1,034,651 | $317.24 | | |
| SCH206MO | School 206 Enrichment | 0.4808755445 | $1,034,651 | $1,034,651 | $497.54 | | |
| ST | State School | 1.4761226122 | $1,034,651 | $1,034,651 | $1,527.27 | | |
| ST2 | State School Part 2 | 0.7953803475 | $1,034,651 | $1,034,651 | $822.94 | | |
| SWHIDPRBD | P & R S Whidbey BOND | 0.0144185398 | $1,034,651 | $1,034,651 | $14.92 | | |
| SWHIDPRBD3 | P & R S Whidbey BOND3 | 0.1483535547 | $1,034,651 | $1,034,651 | $153.49 | | |
| SWHIDPRMT | P & R S Whidbey GEN | 0.4600000000 | $1,034,651 | $1,034,651 | $475.94 | | |
| | Total Tax Rate: | 8.3823005782 | | | | | |
| | | | | Taxes w/Current Exemptions: | $8,672.75 | | |
| | | | | Taxes w/o Exemptions: | $8,672.75 | | |
Improvement / Building
| Improvement #1: | RESIDENTIAL | State Code: | Y | 2787.8 sqft | Value: | $409,651 |
| Bathrooms: | 2 | Bedrooms: | 2 | | Ceiling: | DRYWALL PAINTED | Exterior Wall/Cover: | PLY/HARDBOARD T-111 | | Floor Covering: | CARPET 100% | Floor Structure: | WOOD W/SUBFLOOR | | Foundation: | CONCRETE | Heating: | WALL HEAT ELECTRIC | | Interior Finish: | DRYWALL PAINT | Plumbing Fixture Cnt: | 9 | | Roof Slope: | 4" IN 12" | Roof Structure/Cover: | CJ ASPHALT |
|
| | Type | Description | Class CD | Sub Class CD | Year Built | Area |
| | BAS | BASE/MAIN FLOOR | 3 | 0 | 2000 | 2787.8 |
| | OP1 | OPEN PORCH SLAB | 3 | 0 | 2000 | 342.6 |
| | DGR | DETACHED GARAGE | 3 | 0 | 2000 | 777.6 |
| | OWP | OPEN WOOD PORCH W/STEPS | 3 | 0 | 2000 | 23.2 |
| | OWP | OPEN WOOD PORCH W/STEPS | 3 | 0 | 2000 | 150.4 |
| | oUTI | UTILITY | 3 | 0 | 2000 | 120.0 |
| | OWP | OPEN WOOD PORCH W/STEPS | 3 | 0 | 2000 | 96.0 |
Sketch
Property Image
Land
| 1 | HB | HIGH BLUFF | 0.5000 | 21780.00 | 84.00 | 0.00 | 1.00 | $625,000 | $0 |
Roll Value History
| 2026 | N/A | N/A | N/A | N/A | N/A |
| 2025 | $409,651 | $625,000 | $0 | $1,034,651 | $1,034,651 |
| 2024 | $414,542 | $625,000 | $0 | $1,039,542 | $1,039,542 |
| 2023 | $419,434 | $625,000 | $0 | $1,044,434 | $1,044,434 |
| 2022 | $384,436 | $650,000 | $0 | $1,034,436 | $1,034,436 |
| 2021 | $338,466 | $450,000 | $0 | $788,466 | $788,466 |
| 2020 | $242,507 | $450,000 | $0 | $692,507 | $692,507 |
| 2019 | $185,601 | $400,000 | $0 | $585,601 | $585,601 |
| 2018 | $186,151 | $400,000 | $0 | $586,151 | $586,151 |
| 2017 | $187,250 | $450,000 | $0 | $637,250 | $637,250 |
| 2016 | $185,049 | $450,000 | $0 | $635,049 | $635,049 |
| 2015 | $187,250 | $450,000 | $0 | $637,250 | $637,250 |
| 2014 | $196,199 | $450,000 | $0 | $646,199 | $646,199 |
| 2013 | $198,474 | $501,991 | $0 | $700,465 | $700,465 |
| 2012 | $200,748 | $501,991 | $0 | $702,739 | $702,739 |
| 2011 | $203,021 | $557,768 | $0 | $760,789 | $760,789 |
| 2010 | $209,015 | $557,768 | $0 | $766,783 | $766,783 |
| 2009 | $217,816 | $670,395 | $0 | $888,211 | $888,211 |
| 2008 | $215,720 | $670,395 | $0 | $886,115 | $886,115 |
| 2007 | $215,952 | $670,395 | $0 | $886,347 | $886,347 |
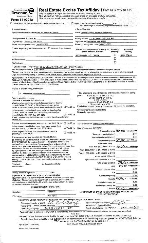
Deed and Sales History
| 1 | 04/30/2021 | EZ | Easement | O'HANLON, SAMANTHA | BURGERS JTWROS, SUSAN | | | $0.00 | 48287 | 4519610 |
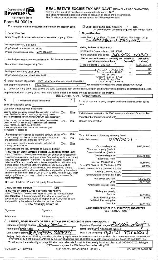
| 2 | 11/01/2017 | WD | Warranty Deed | MARTIN, MARTHA M | O'HANLON, SAMANTHA | | | $625,000.00 | 31887 | 4434027 |
| 3 | 05/15/2015 | TOD | Transfer On Death Deed | MARTIN, WILLIAM P | MARTIN, MARTHA M | | | | 86157 | |
| 4 | 12/14/2001 | PRD | Personal Representatives Deed | STEVENSON, MUNDY W | MARTIN, WILLIAM P | | | $0.00 | 69241 | 0 |
| 5 | 04/01/1984 | WD | Warranty Deed | STEVENSON, MUNDY W | STEVENSON, MUNDY W | | | $0.00 | 41045 | 423418 |
| 6 | 01/01/1900 | OTHER | Other - Misc. Documents | Unknown | STEVENSON, MUNDY W | | | $0.00 | 0 | 0 |
Payout Agreement
| No payout information available.. |