Property
Account |
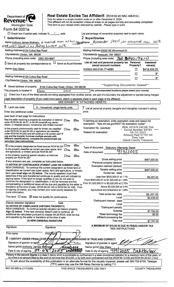
| Property ID: | 714980 | Abbreviated Legal Description: | TR 5B SPR 79/34.32922-355-5260 AF#368375 FR 355-5260 EX WELLSITE AF#338966 |
| Geographic ID: | R32922-355-5150 | Agent Code: | |
| Type: | Real | | |
| Tax Area: | 712 - APPRAISER-S Whid Schl Dist, outside Langley, improved, greater than 1 acre | Land Use Code | 11 |
| Open Space: | N | DFL | N |
| Historic Property: | N | Remodel Property: | N |
| Multi-Family Redevelopment: | N | | |
| Township: | 29 | Section: | 22 |
| Range: | R3 |
Location |
| Address: | 6124 CULTUS BAY RD CLINTON, WA 98236 | Mapsco: | |
| Neighborhood: | Cycle 4 | Map ID: | 802 |
| Neighborhood CD: | 4 |
Owner |
| Name: | MOLINERO, ANTHONY JAMES | Owner ID: | 273979 |
| Mailing Address: | 21866 OAK WAY BRIER, WA 98036 | % Ownership: | 100.0000000000% |
| | | Exemptions: | |
Taxes and Assessment Details
Values
| (+) Improvement Homesite Value: | + | $0 | |
| (+) Improvement Non-Homesite Value: | + | $113,936 | |
| (+) Land Homesite Value: | + | $0 | |
| (+) Land Non-Homesite Value: | + | $310,000 | |
| (+) Curr Use (HS): | + | $0 | $0 |
| (+) Curr Use (NHS): | + | $0 | $0 |
| | | -------------------------- | |
| (=) Market Value: | = | $423,936 | |
| (–) Productivity Loss: | – | $0 | |
| | | -------------------------- | |
| (=) Subtotal: | = | $423,936 | |
| (+) Senior Appraised Value: | + | $0 | |
| (+) Non-Senior Appraised Value: | + | $423,936 | |
| | | -------------------------- | |
| (=) Total Appraised Value: | = | $423,936 | |
| (–) Senior Exemption Loss: | – | $0 | |
| (–) Exemption Loss: | – | $0 | |
| | | -------------------------- | |
| (=) Taxable Value: | = | $423,936 | |
Taxing Jurisdiction
| Owner: | MOLINERO, ANTHONY JAMES | | |
| % Ownership: | 100.0000000000% | | |
| Total Value: | $423,936 | | |
| Tax Area: | 712 - APPRAISER-S Whid Schl Dist, outside Langley, improved, greater than 1 acre |
| CF | Conservation Futures | 0.0313996660 | $423,936 | $423,936 | $13.31 | | |
| FIRE3 | Fire & Rescue Dist #3 S Whidbey GEN | 1.2130821753 | $423,936 | $423,936 | $514.27 | | |
| HOBOND | Hospital BOND | 0.1893405597 | $423,936 | $423,936 | $80.27 | | |
| HOGEN | Hospital GEN | 0.3848777722 | $423,936 | $423,936 | $163.16 | | |
| CE | County Current Expense | 0.3674210519 | $423,936 | $423,936 | $155.76 | | |
| CR | County Roads | 0.4614296361 | $423,936 | $423,936 | $195.62 | | |
| ISLANDEMS | Hospital GEN (EMS) | 0.4952018576 | $423,936 | $423,936 | $209.93 | | |
| LIB | Library Sno-Isle GEN | 0.3039084203 | $423,936 | $423,936 | $128.84 | | |
| PORTWHID | Port of S Whidbey GEN | 0.1086004714 | $423,936 | $423,936 | $46.04 | | |
| SCH206BOND | School 206 BOND | 0.5960237832 | $423,936 | $423,936 | $252.68 | | |
| SCH206CAP | School 206 CP | 0.3066144020 | $423,936 | $423,936 | $129.98 | | |
| SCH206MO | School 206 Enrichment | 0.4808755445 | $423,936 | $423,936 | $203.86 | | |
| ST | State School | 1.4761226122 | $423,936 | $423,936 | $625.78 | | |
| ST2 | State School Part 2 | 0.7953803475 | $423,936 | $423,936 | $337.19 | | |
| SWHIDPRBD | P & R S Whidbey BOND | 0.0144185398 | $423,936 | $423,936 | $6.11 | | |
| SWHIDPRBD3 | P & R S Whidbey BOND3 | 0.1483535547 | $423,936 | $423,936 | $62.89 | | |
| SWHIDPRMT | P & R S Whidbey GEN | 0.4600000000 | $423,936 | $423,936 | $195.01 | | |
| | Total Tax Rate: | 7.8330503944 | | | | | |
| | | | | Taxes w/Current Exemptions: | $3,320.70 | | |
| | | | | Taxes w/o Exemptions: | $3,320.70 | | |
Improvement / Building
| Improvement #1: | MANUFACTURED HOME | State Code: | Y | 1440.0 sqft | Value: | $113,936 |
| Bathrooms: | 0 | Bedrooms: | 0 | | Ceiling: | PLASTER PAINTED | Cooling: | EVAP NO DUCT | | Exterior Wall/Cover: | VINYL | Floor Covering: | CARPET 100% | | Floor Structure: | SLAB ON GRADE | Foundation: | SLAB | | Heating: | FHA ELECTRIC | Interior Finish: | PLASTER | | Plumbing Fixture Cnt: | 1 | Roof Slope: | FLAT | | Roof Structure/Cover: | CJ ALUMINIUM HEAVY |   |   |
|
| | Type | Description | Class CD | Sub Class CD | Year Built | Area |
| | BAS | BASE/MAIN FLOOR | 4 | 0 | 1979 | 1440.0 |
| | OWP | OPEN WOOD PORCH W/STEPS | 4 | 0 | 1979 | 104.0 |
| | OWR | OPEN WOOD PORCH W/STEPS/ROOF | 4 | 0 | 1979 | 84.0 |
| | OWR | OPEN WOOD PORCH W/STEPS/ROOF | 4 | 0 | 1979 | 144.0 |
| | OWP | OPEN WOOD PORCH W/STEPS | 4 | 0 | 1979 | 240.0 |
| | UB8 | BASEMENT UNFINISHED 8" | 4 | 0 | 1979 | 288.0 |
| | AGR | ATTACHED GARAGE | 4 | 0 | 1979 | 256.0 |
| | DGR | DETACHED GARAGE | 4 | 0 | 1979 | 528.0 |
| | ATF | ATTIC FINISHED | 4 | 0 | 1979 | 336.0 |
| | OWP | OPEN WOOD PORCH W/STEPS | 4 | 0 | 1979 | 48.0 |
Sketch
Property Image
Land
| 1 | 18 | AC (02.01-03.00) | 0.0000 | 0.00 | 0.00 | 0.00 | 1.00 | $310,000 | $0 |
Roll Value History
| 2026 | N/A | N/A | N/A | N/A | N/A |
| 2025 | $113,936 | $310,000 | $0 | $423,936 | $423,936 |
| 2024 | $118,404 | $300,000 | $0 | $418,404 | $418,404 |
| 2023 | $106,848 | $290,000 | $0 | $396,848 | $396,848 |
| 2022 | $100,271 | $270,000 | $0 | $370,271 | $370,271 |
| 2021 | $91,788 | $175,000 | $0 | $266,788 | $266,788 |
| 2020 | $74,072 | $165,000 | $0 | $239,072 | $239,072 |
| 2019 | $61,417 | $200,000 | $0 | $261,417 | $261,417 |
| 2018 | $63,463 | $170,000 | $0 | $233,463 | $233,463 |
| 2017 | $65,508 | $150,000 | $0 | $215,508 | $215,508 |
| 2016 | $67,555 | $150,000 | $0 | $217,555 | $217,555 |
| 2015 | $69,602 | $74,375 | $0 | $143,977 | $95,986 |
| 2014 | $70,252 | $74,375 | $0 | $144,627 | $96,418 |
| 2013 | $71,571 | $74,375 | $0 | $145,946 | $97,297 |
| 2012 | $72,888 | $74,375 | $0 | $147,263 | $99,760 |
| 2011 | $74,204 | $87,500 | $0 | $161,704 | $161,704 |
| 2010 | $74,883 | $87,500 | $0 | $162,383 | $162,383 |
| 2009 | $79,060 | $90,000 | $0 | $169,060 | $42,421 |
| 2008 | $88,611 | $81,795 | $0 | $170,406 | $42,421 |
| 2007 | $91,290 | $80,955 | $0 | $172,245 | $42,421 |
Deed and Sales History
| 1 | 09/03/2025 | WD | Warranty Deed | MOLINERO, ANTHONY JAMES | STIERS, ALEXANDER | | | $487,000.00 | 64765 | 4590730 |
| 2 | 03/04/2016 | WD | Warranty Deed | NORTON, GARY G. | MOLINERO, ANTHONY JAMES | | | $149,900.00 | 23416 | 4395407 |
|   | |
| 3 | 06/03/2014 | TOD | Transfer On Death Deed | NORTON, BERNICE | NORTON, GARY G. | | | | 84959 | |
| 4 | 04/19/2010 | CD | DNU - Correction Deed | NORTON, WILLIAM R | NORTON, BERNICE | | | $0.00 | 81619 | 0 |
| 5 | 10/01/1984 | OTHER | Other - Misc. Documents | Unknown | NORTON, WILLIAM R | | | $16,000.00 | 43101 | 0 |
| 6 | 10/01/1984 | QCD | Quit Claim Deed | NORTON, WILLIAM R | NORTON, WILLIAM R | | | $24,000.00 | 43100 | 0 |
Payout Agreement
| No payout information available.. |