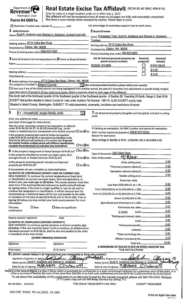
Property
Account |
| Property ID: | 715104 | Abbreviated Legal Description: | 46 - N1/2 NW SW SW EX CO RD |
| Geographic ID: | R32926-122-0350 | Agent Code: | |
| Type: | Real | | |
| Tax Area: | 712 - APPRAISER-S Whid Schl Dist, outside Langley, improved, greater than 1 acre | Land Use Code | 11 |
| Open Space: | N | DFL | N |
| Historic Property: | N | Remodel Property: | N |
| Multi-Family Redevelopment: | N | | |
| Township: | 29 | Section: | 26 |
| Range: | R3 |
Location |
| Address: | 6713 CULTUS BAY RD CLINTON, WA 98236 | Mapsco: | |
| Neighborhood: | Cycle 4 | Map ID: | 816 |
| Neighborhood CD: | 4 |
Owner |
| Name: | ANDERSON TTEE, SCOTT R | Owner ID: | 306037 |
| Mailing Address: | SHERREN A ANDERSON TTEE 6713 CULTUS BAY RD CLINTON, WA 98236 | % Ownership: | 100.0000000000% |
| | | Exemptions: | |
Taxes and Assessment Details
Values
| (+) Improvement Homesite Value: | + | $0 | |
| (+) Improvement Non-Homesite Value: | + | $525,363 | |
| (+) Land Homesite Value: | + | $0 | |
| (+) Land Non-Homesite Value: | + | $360,000 | |
| (+) Curr Use (HS): | + | $0 | $0 |
| (+) Curr Use (NHS): | + | $0 | $0 |
| | | -------------------------- | |
| (=) Market Value: | = | $885,363 | |
| (–) Productivity Loss: | – | $0 | |
| | | -------------------------- | |
| (=) Subtotal: | = | $885,363 | |
| (+) Senior Appraised Value: | + | $0 | |
| (+) Non-Senior Appraised Value: | + | $885,363 | |
| | | -------------------------- | |
| (=) Total Appraised Value: | = | $885,363 | |
| (–) Senior Exemption Loss: | – | $0 | |
| (–) Exemption Loss: | – | $0 | |
| | | -------------------------- | |
| (=) Taxable Value: | = | $885,363 | |
Taxing Jurisdiction
| Owner: | ANDERSON TTEE, SCOTT R | | |
| % Ownership: | 100.0000000000% | | |
| Total Value: | $885,363 | | |
| Tax Area: | 712 - APPRAISER-S Whid Schl Dist, outside Langley, improved, greater than 1 acre |
| CF | Conservation Futures | 0.0313996660 | $885,363 | $885,363 | $27.80 | | |
| FIRE3 | Fire & Rescue Dist #3 S Whidbey GEN | 1.2130821753 | $885,363 | $885,363 | $1,074.02 | | |
| HOBOND | Hospital BOND | 0.1893405597 | $885,363 | $885,363 | $167.64 | | |
| HOGEN | Hospital GEN | 0.3848777722 | $885,363 | $885,363 | $340.76 | | |
| CE | County Current Expense | 0.3674210519 | $885,363 | $885,363 | $325.30 | | |
| CR | County Roads | 0.4614296361 | $885,363 | $885,363 | $408.53 | | |
| ISLANDEMS | Hospital GEN (EMS) | 0.4952018576 | $885,363 | $885,363 | $438.43 | | |
| LIB | Library Sno-Isle GEN | 0.3039084203 | $885,363 | $885,363 | $269.07 | | |
| PORTWHID | Port of S Whidbey GEN | 0.1086004714 | $885,363 | $885,363 | $96.15 | | |
| SCH206BOND | School 206 BOND | 0.5960237832 | $885,363 | $885,363 | $527.70 | | |
| SCH206CAP | School 206 CP | 0.3066144020 | $885,363 | $885,363 | $271.47 | | |
| SCH206MO | School 206 Enrichment | 0.4808755445 | $885,363 | $885,363 | $425.75 | | |
| ST | State School | 1.4761226122 | $885,363 | $885,363 | $1,306.90 | | |
| ST2 | State School Part 2 | 0.7953803475 | $885,363 | $885,363 | $704.20 | | |
| SWHIDPRBD | P & R S Whidbey BOND | 0.0144185398 | $885,363 | $885,363 | $12.77 | | |
| SWHIDPRBD3 | P & R S Whidbey BOND3 | 0.1483535547 | $885,363 | $885,363 | $131.35 | | |
| SWHIDPRMT | P & R S Whidbey GEN | 0.4600000000 | $885,363 | $885,363 | $407.27 | | |
| | Total Tax Rate: | 7.8330503944 | | | | | |
| | | | | Taxes w/Current Exemptions: | $6,935.11 | | |
| | | | | Taxes w/o Exemptions: | $6,935.11 | | |
Improvement / Building
| Improvement #1: | RESIDENTIAL | State Code: | Y | 1424.0 sqft | Value: | $287,127 |
| Bathrooms: | 2 | Bedrooms: | 2 | | Ceiling: | DRYWALL PAINTED | Exterior Wall/Cover: | WOOD SIDING | | Floor Covering: | CARPET/VINYL 80-20 | Floor Structure: | WOOD W/SUBFLOOR | | Foundation: | CONCRETE | Heating: | WALL HEAT ELECTRIC | | Interior Finish: | DRYWALL PAINT | Plumbing Fixture Cnt: | 10 | | Roof Slope: | 6" IN 12" | Roof Structure/Cover: | CJ ASPHALT |
|
| | Type | Description | Class CD | Sub Class CD | Year Built | Area |
| | BAS | BASE/MAIN FLOOR | 3 | 0 | 1987 | 1424.0 |
| | OWC | OPEN WOOD PORCH W/STEPS/ROOF/C | 3 | 0 | 1987 | 120.0 |
| | OWC | OPEN WOOD PORCH W/STEPS/ROOF/C | 3 | 0 | 1987 | 32.0 |
| | UTY | STORAGE/UTILITY | 3 | 0 | 1987 | 672.1 |
| | ATF | ATTIC FINISHED | 3 | 0 | 1987 | 448.0 |
| | OCP | OPEN CARPORT | 3 | 0 | 1987 | 336.0 |
| | OCP | OPEN CARPORT | 3 | 0 | 1987 | 336.0 |
| | OP1 | OPEN PORCH SLAB | 3 | 0 | 1987 | 356.0 |
| Improvement #2: | RESIDENTIAL | State Code: | Y | 995.4 sqft | Value: | $238,236 |
| Bathrooms: | 2 | Bedrooms: | 2 | | Ceiling: | DRYWALL PAINTED | Cooling: | HEAT PUMP/CONV/V | | Exterior Wall/Cover: | WOOD SIDING | Floor Covering: | VINYL TILE | | Floor Structure: | WOOD W/SUBFLOOR | Foundation: | CONCRETE | | Interior Finish: | DRYWALL PAINT | Plumbing Fixture Cnt: | 9 | | Roof Slope: | 6" IN 12" | Roof Structure/Cover: | CJ ASPHALT |
|
| | Type | Description | Class CD | Sub Class CD | Year Built | Area |
| | BAS | BASE/MAIN FLOOR | 3 | 0 | 2022 | 995.4 |
| | ATF | ATTIC FINISHED | 3 | 0 | 2022 | 240.0 |
| | OP4 | OPEN PORCH W/CEILING-ROOF | 3 | 0 | 2022 | 125.0 |
Sketch
| No sketches available for this property. |
Property Image
Land
| 1 | 32 | AC (03.01-09.99) | 4.7300 | 0.00 | 0.00 | 0.00 | 1.00 | $360,000 | $0 |
Roll Value History
| 2026 | N/A | N/A | N/A | N/A | N/A |
| 2025 | $525,363 | $360,000 | $0 | $885,363 | $885,363 |
| 2024 | $531,681 | $340,000 | $0 | $871,681 | $871,681 |
| 2023 | $539,872 | $330,000 | $0 | $869,872 | $869,872 |
| 2022 | $339,728 | $280,000 | $0 | $619,728 | $619,728 |
| 2021 | $231,027 | $230,000 | $0 | $461,027 | $461,027 |
| 2020 | $214,044 | $190,000 | $0 | $404,044 | $404,044 |
| 2019 | $154,998 | $220,000 | $0 | $374,998 | $374,998 |
| 2018 | $155,484 | $210,000 | $0 | $365,484 | $365,484 |
| 2017 | $156,456 | $165,000 | $0 | $321,456 | $321,456 |
| 2016 | $158,402 | $165,000 | $0 | $323,402 | $323,402 |
| 2015 | $160,346 | $150,000 | $0 | $310,346 | $310,346 |
| 2014 | $161,517 | $150,000 | $0 | $311,517 | $311,517 |
| 2013 | $163,352 | $160,820 | $0 | $324,172 | $324,172 |
| 2012 | $165,187 | $160,820 | $0 | $326,007 | $326,007 |
| 2011 | $167,022 | $160,820 | $0 | $327,842 | $327,842 |
| 2010 | $174,418 | $160,820 | $0 | $335,238 | $335,238 |
| 2009 | $181,504 | $208,120 | $0 | $389,624 | $389,624 |
| 2008 | $182,023 | $236,500 | $0 | $418,523 | $418,523 |
| 2007 | $184,335 | $198,660 | $0 | $382,995 | $382,995 |
Deed and Sales History
| 1 | 09/08/2022 | QCD | Quit Claim Deed | ANDERSON, SCOTT R | ANDERSON TTEE, SCOTT R | | | $0.00 | 54563 | 4551320 |
| 2 | 10/08/2002 | WD | Warranty Deed | BERGER, LEO | ANDERSON, SCOTT R | | | $240,000.00 | 24087 | 4034160 |
| 3 | 01/01/1900 | OTHER | Other - Misc. Documents | Unknown | BERGER, LEO | | | $0.00 | 0 | 0 |
Payout Agreement
| No payout information available.. |