Property
Account |
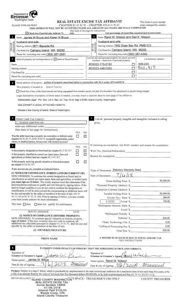
| Property ID: | 715391 | Abbreviated Legal Description: | 3.1400 Acres ins Section 23s Township 30s Range R3s LOT A BLA 385-17 IN GL3 AF# 4445574;s |
| Geographic ID: | R33023-170-2150 | Agent Code: | |
| Type: | Real | | |
| Tax Area: | 542 - APPRAISER-Stan/Cam Schl Dist, Special Dist, improved, greater than 1 acre | Land Use Code | 11 |
| Open Space: | N | DFL | N |
| Historic Property: | N | Remodel Property: | N |
| Multi-Family Redevelopment: | N | | |
| Township: | 30 | Section: | 23 |
| Range: | R3 |
Location |
| Address: | 3871 BAYSIDE RD CAMANO ISLAND, WA 98282 | Mapsco: | |
| Neighborhood: | 58RscamWF-South Cam | Map ID: | 882 |
| Neighborhood CD: | 58RscamWF |
Owner |
| Name: | BRUCE, JAMES W | Owner ID: | 189772 |
| Mailing Address: | KAREN N. BRUCE 3871 BAYSIDE RD CAMANO ISLAND, WA 98282 | % Ownership: | 100.0000000000% |
| | | Exemptions: | |
Taxes and Assessment Details
Values
| (+) Improvement Homesite Value: | + | $0 | |
| (+) Improvement Non-Homesite Value: | + | $484,524 | |
| (+) Land Homesite Value: | + | $0 | |
| (+) Land Non-Homesite Value: | + | $930,700 | |
| (+) Curr Use (HS): | + | $0 | $0 |
| (+) Curr Use (NHS): | + | $0 | $0 |
| | | -------------------------- | |
| (=) Market Value: | = | $1,415,224 | |
| (–) Productivity Loss: | – | $0 | |
| | | -------------------------- | |
| (=) Subtotal: | = | $1,415,224 | |
| (+) Senior Appraised Value: | + | $0 | |
| (+) Non-Senior Appraised Value: | + | $1,415,224 | |
| | | -------------------------- | |
| (=) Total Appraised Value: | = | $1,415,224 | |
| (–) Senior Exemption Loss: | – | $0 | |
| (–) Exemption Loss: | – | $0 | |
| | | -------------------------- | |
| (=) Taxable Value: | = | $1,415,224 | |
Taxing Jurisdiction
| Owner: | BRUCE, JAMES W | | |
| % Ownership: | 100.0000000000% | | |
| Total Value: | $1,415,224 | | |
| Tax Area: | 542 - APPRAISER-Stan/Cam Schl Dist, Special Dist, improved, greater than 1 acre |
| CF | Conservation Futures | 0.0313996660 | $1,415,224 | $1,415,224 | $44.44 | | |
| EMS1 | Fire & Rescue Dist #1 Camano GEN (EMS) | 0.4998471806 | $1,415,224 | $1,415,224 | $707.40 | | |
| FIRE1 | Fire & Rescue Dist #1 Camano GEN | 1.2496603404 | $1,415,224 | $1,415,224 | $1,768.55 | | |
| FIRE1BOND | Fire & Rescue Dist #1 Camano BOND | 0.1630371212 | $1,415,224 | $1,415,224 | $230.73 | | |
| CE | County Current Expense | 0.3674210519 | $1,415,224 | $1,415,224 | $519.98 | | |
| CR | County Roads | 0.4614296361 | $1,415,224 | $1,415,224 | $653.03 | | |
| LIB | Library Sno-Isle GEN | 0.3039084203 | $1,415,224 | $1,415,224 | $430.10 | | |
| SCH205_401 | School 205-401 Enrichment | 1.3697998934 | $1,415,224 | $1,415,224 | $1,938.57 | | |
| SCH205BOND | School 205-401 BOND | 0.9354199323 | $1,415,224 | $1,415,224 | $1,323.83 | | |
| ST | State School | 1.4761226122 | $1,415,224 | $1,415,224 | $2,089.04 | | |
| ST2 | State School Part 2 | 0.7953803475 | $1,415,224 | $1,415,224 | $1,125.64 | | |
| | Total Tax Rate: | 7.6534262019 | | | | | |
| | | | | Taxes w/Current Exemptions: | $10,831.31 | | |
| | | | | Taxes w/o Exemptions: | $10,831.31 | | |
Improvement / Building
| Improvement #1: | RESIDENTIAL | State Code: | Y | 2758.0 sqft | Value: | $484,524 |
| Bathrooms: | 2.5 | Bedrooms: | 2 | | Ceiling: | DRYWALL PAINTED | Cooling: | HEAT PUMP/CONV/V | | Exterior Wall/Cover: | WOOD SIDING | Floor Covering: | HARDWOOD/CARP 60-40 | | Floor Structure: | WOOD W/SUBFLOOR | Foundation: | CONCRETE | | Interior Finish: | DRYWALL PAINT | Plumbing Fixture Cnt: | 11 | | Roof Slope: | 4" IN 12" | Roof Structure/Cover: | CJ ASPHALT |
|
| | Type | Description | Class CD | Sub Class CD | Year Built | Area |
| | BAS | BASE/MAIN FLOOR | 4 | 0 | 1979 | 1442.0 |
| | OP1 | OPEN PORCH SLAB | 4 | 0 | 1979 | 576.0 |
| | OP3 | OPEN PORCH W/ROOF | 4 | 0 | 1979 | 130.0 |
| | OP3 | OPEN PORCH W/ROOF | 4 | 0 | 1979 | 135.0 |
| | AGR | ATTACHED GARAGE | 4 | 0 | 1979 | 1126.0 |
| | UPS | UPPER STORY | 4 | 0 | 1979 | 1316.0 |
| | OWP | OPEN WOOD PORCH W/STEPS | 4 | 0 | 1979 | 330.0 |
| | CPD | OPEN CARPORT DIRT FLOOR | 4 | 0 | 1979 | 72.0 |
| | OWC | OPEN WOOD PORCH W/STEPS/ROOF/C | 4 | 0 | 1979 | 336.0 |
| | CPD | OPEN CARPORT DIRT FLOOR | 4 | 0 | 1979 | 448.0 |
Sketch
| No sketches available for this property. |
Property Image
Land
| 1 | HB | HIGH BLUFF | 3.1400 | 136778.40 | 373.00 | 0.00 | 1.00 | $925,000 | $0 |
| 2 | 55 | TIDES | 0.0000 | 0.00 | 570.00 | 0.00 | 1.00 | $5,700 | $0 |
Roll Value History
| 2026 | N/A | N/A | N/A | N/A | N/A |
| 2025 | $484,524 | $930,700 | $0 | $1,415,224 | $1,415,224 |
| 2024 | $490,879 | $905,700 | $0 | $1,396,579 | $1,396,579 |
| 2023 | $497,234 | $905,700 | $0 | $1,402,934 | $1,402,934 |
| 2022 | $455,994 | $805,700 | $0 | $1,261,694 | $1,261,694 |
| 2021 | $325,770 | $505,700 | $0 | $831,470 | $831,470 |
| 2020 | $318,546 | $430,700 | $0 | $749,246 | $749,246 |
| 2019 | $252,735 | $455,700 | $0 | $708,435 | $708,435 |
| 2018 | $253,533 | $355,700 | $0 | $609,233 | $609,233 |
| 2017 | $255,130 | $355,700 | $0 | $610,830 | $610,830 |
| 2016 | $258,317 | $355,700 | $0 | $614,017 | $614,017 |
| 2015 | $191,917 | $405,700 | $0 | $597,617 | $597,617 |
| 2014 | $194,871 | $405,700 | $0 | $600,571 | $600,571 |
| 2013 | $197,823 | $414,888 | $0 | $612,711 | $612,711 |
| 2012 | $200,776 | $487,098 | $0 | $687,874 | $687,874 |
| 2011 | $203,727 | $607,447 | $0 | $811,174 | $811,174 |
| 2010 | $215,977 | $674,308 | $0 | $890,285 | $890,285 |
| 2009 | $221,166 | $794,508 | $0 | $1,015,674 | $1,015,674 |
| 2008 | $224,146 | $786,620 | $0 | $1,010,766 | $1,010,766 |
| 2007 | $194,288 | $688,838 | $0 | $883,125 | $883,125 |
Deed and Sales History
| 1 | 02/27/2003 | WD | Warranty Deed | ANDERSON, HAROLD | BRUCE, JAMES W | | | $232,260.00 | 30867 | 4049794 |
| 2 | 02/26/2003 | ESTSEPPROP | Establish Separate Property | ANDERSON, HAROLD W | ANDERSON, HAROLD | | | $0.00 | 30866 | 4049793 |
| 3 | 12/21/2000 | EZ | Easement | ANDERSON, HAROLD W | ANDERSON, HAROLD W | | | $0.00 | 10066 | 0 |
| 4 | 10/01/1986 | OTHER | Other - Misc. Documents | Unknown | ANDERSON, HAROLD W | | | $0.00 | 61865 | 0 |
Payout Agreement
| No payout information available.. |