| 1 | 07/11/2025 | WD | Warranty Deed | SHOEMAKER TRUSTEE, CHRISTINA L | 207 NW COVELAND STREET LLC | | | $1,793,500.00 | 64206 | 4588497 |
|   | |
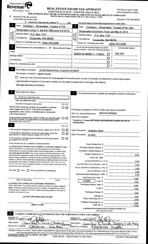
| 2 | 05/15/2020 | QCD | Quit Claim Deed | SHOEMAKER TRUSTEE, CHRISTINA L | SHOEMAKER TRUSTEE, CHRISTINA L | | | $0.00 | 43641 | 4490414 |
| 3 | 09/25/2017 | WD | Warranty Deed | CURRIER, DARRELLYN | SHOEMAKER TRUSTEE, CHRISTINA L | | | $365,000.00 | 31256 | 4430962 |
| 4 | 11/15/1999 | QCD | Quit Claim Deed | SWAGERTY, DARRELL M | CURRIER, DARRELLYN | | | $0.00 | 94731 | 99026484 |
| 5 | 08/01/1990 | QCD | Quit Claim Deed | CURRIER, DANIEL P | SWAGERTY, DARRELL M | | | $0.00 | 4561 | 90015040 |
| 6 | 05/01/1990 | OTHER | Other - Misc. Documents | CURRIER, DANIEL P | CURRIER, DANIEL P | | | $0.00 | 63665 | 90009625 |
| 7 | 01/01/1990 | WD | Warranty Deed | HALL, BEVERLEY S | CURRIER, DANIEL P | | | $36,000.00 | 196 | 90000613 |
| 8 | 08/01/1984 | WD | Warranty Deed | HALL, BEVERLEY S | HALL, BEVERLEY S | | | $60,200.00 | 42414 | 84002019 |
| 9 | 08/01/1984 | QCD | Quit Claim Deed | KURTH, ROBERT L | HALL, BEVERLEY S | | | $0.00 | 42415 | 84002021 |
| 10 | 01/01/1900 | OTHER | Other - Misc. Documents | Unknown | KURTH, ROBERT L | | | $0.00 | 0 | 0 |