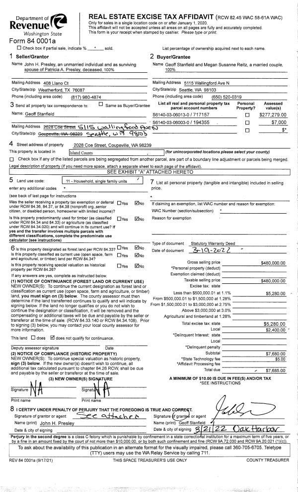
Property
Account |
| Property ID: | 717157 | Abbreviated Legal Description: | BON AIR 3 LOTS 2, 13 & 14 BLK 6 |
| Geographic ID: | S6140-03-06013-0 | Agent Code: | |
| Type: | Real | | |
| Tax Area: | 310 - APPRAISER-Cpvl Schl Dist, outside Cpvl, improved & 1 acre or less | Land Use Code | 11 |
| Open Space: | N | DFL | N |
| Historic Property: | N | Remodel Property: | N |
| Multi-Family Redevelopment: | N | | |
| Township: | | Section: | |
| Range: | |
Location |
| Address: | 2028 COE ST COUPEVILLE, WA 98239 | Mapsco: | |
| Neighborhood: | Cycle 2 | Map ID: | 525 |
| Neighborhood CD: | 2 |
Owner |
| Name: | STANFIELD, GEOFF | Owner ID: | 304506 |
| Mailing Address: | MEGAN SUSANNE REITZ 5115 WALLINGFORD AVE N SEATTLE, WA 98103 | % Ownership: | 100.0000000000% |
| | | Exemptions: | |
Taxes and Assessment Details
Values
| (+) Improvement Homesite Value: | + | $0 | |
| (+) Improvement Non-Homesite Value: | + | $233,662 | |
| (+) Land Homesite Value: | + | $0 | |
| (+) Land Non-Homesite Value: | + | $190,000 | |
| (+) Curr Use (HS): | + | $0 | $0 |
| (+) Curr Use (NHS): | + | $0 | $0 |
| | | -------------------------- | |
| (=) Market Value: | = | $423,662 | |
| (–) Productivity Loss: | – | $0 | |
| | | -------------------------- | |
| (=) Subtotal: | = | $423,662 | |
| (+) Senior Appraised Value: | + | $0 | |
| (+) Non-Senior Appraised Value: | + | $423,662 | |
| | | -------------------------- | |
| (=) Total Appraised Value: | = | $423,662 | |
| (–) Senior Exemption Loss: | – | $0 | |
| (–) Exemption Loss: | – | $0 | |
| | | -------------------------- | |
| (=) Taxable Value: | = | $423,662 | |
Taxing Jurisdiction
| Owner: | STANFIELD, GEOFF | | |
| % Ownership: | 100.0000000000% | | |
| Total Value: | $423,662 | | |
| Tax Area: | 310 - APPRAISER-Cpvl Schl Dist, outside Cpvl, improved & 1 acre or less |
| CF | Conservation Futures | 0.0313996660 | $423,662 | $423,662 | $13.30 | | |
| CEM2 | Cemetery #2 | 0.0092609791 | $423,662 | $423,662 | $3.92 | | |
| FIRE5 | Fire & Rescue Dist #5 C Whidbey GEN | 1.1892169230 | $423,662 | $423,662 | $503.83 | | |
| FIRE5BOND | Fire & Rescue Dist #5 C Whidbey BOND | 0.1394359503 | $423,662 | $423,662 | $59.07 | | |
| HOBOND | Hospital BOND | 0.1893405597 | $423,662 | $423,662 | $80.22 | | |
| HOGEN | Hospital GEN | 0.3848777722 | $423,662 | $423,662 | $163.06 | | |
| CE | County Current Expense | 0.3674210519 | $423,662 | $423,662 | $155.66 | | |
| CR | County Roads | 0.4614296361 | $423,662 | $423,662 | $195.49 | | |
| ISLANDEMS | Hospital GEN (EMS) | 0.4952018576 | $423,662 | $423,662 | $209.80 | | |
| LIB | Library Sno-Isle GEN | 0.3039084203 | $423,662 | $423,662 | $128.75 | | |
| LIBCAP | Library Sno-Isle BOND (Cap Fac Imp Area) | 0.0528562629 | $423,662 | $423,662 | $22.39 | | |
| POCOUP | Port of Coupeville GEN | 0.1065226063 | $423,662 | $423,662 | $45.13 | | |
| POCOUPIDD | Port of Coupeville IDD | 0.3353038577 | $423,662 | $423,662 | $142.06 | | |
| COUPSDTECH | School 204 CP (TECH) | 0.1215123397 | $423,662 | $423,662 | $51.48 | | |
| SCH204MO | School 204 Enrichment | 0.6416662518 | $423,662 | $423,662 | $271.85 | | |
| ST | State School | 1.4761226122 | $423,662 | $423,662 | $625.38 | | |
| ST2 | State School Part 2 | 0.7953803475 | $423,662 | $423,662 | $336.97 | | |
| | Total Tax Rate: | 7.1008570943 | | | | | |
| | | | | Taxes w/Current Exemptions: | $3,008.36 | | |
| | | | | Taxes w/o Exemptions: | $3,008.36 | | |
Improvement / Building
| Improvement #1: | RESIDENTIAL | State Code: | Y | 1577.0 sqft | Value: | $233,662 |
| Bathrooms: | 2 | Bedrooms: | 2 | | Ceiling: | DRYWALL PAINTED | Exterior Wall/Cover: | PLY/HARDBOARD T-111 | | Floor Covering: | CARPET/VINYL 80-20 | Floor Structure: | WOOD W/SUBFLOOR | | Foundation: | CONCRETE | Heating: | WALL HEAT ELECTRIC | | Interior Finish: | DRYWALL PAINT | Plumbing Fixture Cnt: | 9 | | Roof Slope: | 8" IN 12" | Roof Structure/Cover: | CJ ASPHALT |
|
| | Type | Description | Class CD | Sub Class CD | Year Built | Area |
| | BAS | BASE/MAIN FLOOR | 3 | 0 | 1933 | 1577.0 |
| | OP4 | OPEN PORCH W/CEILING-ROOF | 3 | 0 | 1933 | 48.0 |
| | OWP | OPEN WOOD PORCH W/STEPS | 3 | 0 | 1933 | 185.2 |
| | DGR | DETACHED GARAGE | 3 | 0 | 1933 | 384.0 |
Sketch
| No sketches available for this property. |
Property Image
Land
| 1 | 16 | AC (00.51-01.00) | 0.5200 | 22651.20 | 0.00 | 0.00 | 1.00 | $190,000 | $0 |
Roll Value History
| 2026 | N/A | N/A | N/A | N/A | N/A |
| 2025 | $233,662 | $190,000 | $0 | $423,662 | $423,662 |
| 2024 | $215,297 | $180,000 | $0 | $395,297 | $395,297 |
| 2023 | $218,130 | $175,000 | $0 | $393,130 | $393,130 |
| 2022 | $200,558 | $150,000 | $0 | $350,558 | $350,558 |
| 2021 | $177,279 | $100,000 | $0 | $277,279 | $277,279 |
| 2020 | $172,911 | $85,000 | $0 | $257,911 | $257,911 |
| 2019 | $125,334 | $130,000 | $0 | $255,334 | $255,334 |
| 2018 | $110,200 | $130,000 | $0 | $240,200 | $240,200 |
| 2017 | $110,976 | $100,000 | $0 | $210,976 | $210,976 |
| 2016 | $112,557 | $75,000 | $0 | $187,557 | $187,557 |
| 2015 | $114,138 | $50,000 | $0 | $164,138 | $164,138 |
| 2014 | $115,720 | $50,000 | $0 | $165,720 | $165,720 |
| 2013 | $117,302 | $50,000 | $0 | $167,302 | $167,302 |
| 2012 | $84,350 | $57,000 | $0 | $141,350 | $141,350 |
| 2011 | $85,835 | $60,000 | $0 | $145,835 | $145,835 |
| 2010 | $94,400 | $60,000 | $0 | $154,400 | $154,400 |
| 2009 | $98,697 | $95,000 | $0 | $193,697 | $193,697 |
| 2008 | $100,298 | $80,100 | $0 | $180,398 | $180,398 |
| 2007 | $101,706 | $90,193 | $0 | $191,899 | $191,899 |
Deed and Sales History
| 1 | 03/19/2022 | WD | Warranty Deed | PRESLEY, JOHN H | STANFIELD, GEOFF | | | $480,000.00 | 52373 | 4541867 |
|   | |
| 2 | 11/16/2012 | WD | Warranty Deed | SUTHER ET AL, DOUGLAS | PRESLEY, JOHN H | | | $170,000.00 | 9532 | 4327747 |
| 3 | 12/29/2009 | PRD | Personal Representatives Deed | SUTHER ET AL, DOUGLAS | SUTHER ET AL, DOUGLAS | | | $0.00 | 265 | 4268282 |
| 4 | 10/28/2007 | OTHER | Other - Misc. Documents | SUTHER L E, DOROTHY J | SUTHER ET AL, DOUGLAS | | | $0.00 | 80639 | 0 |
| 5 | 09/14/2001 | BLA | DNU - Boundary Line Adjustment | SUTHER L E, DOROTHY J | SUTHER L E, DOROTHY J | | | $0.00 | 69107 | 20023134 |
| 6 | 01/26/2000 | QCD | Quit Claim Deed | SUTHER, DOROTHY J | SUTHER L E, DOROTHY J | | | $0.00 | 433 | 20002182 |
| 7 | 03/01/1993 | OTHER | Other - Misc. Documents | SUTHER, FLOYD H | SUTHER, DOROTHY J | | | $0.00 | 65299 | 93005187 |
| 8 | 01/01/1900 | OTHER | Other - Misc. Documents | Unknown | SUTHER, FLOYD H | | | $0.00 | 0 | 0 |
Payout Agreement
| No payout information available.. |