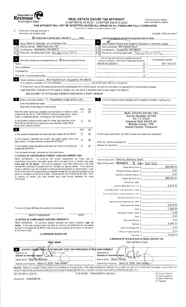
Property
Account |
| Property ID: | 717479 | Abbreviated Legal Description: | ROLL HILL LOT 5 BLK 6 EX PT LY SELY LN DESC: BG SE CR LOT 5 N3' TPB SD LN SWLY TP SLN SD LOT 115'W OF SE CR & TERM OF LN SUB EZ AF#84000094. BLA AF315415 |
| Geographic ID: | S8050-00-06005-0 | Agent Code: | |
| Type: | Real | | |
| Tax Area: | 330 - APPRAISER-Cpvl Schl Dist, Special Dist, improved & less than 1 acre | Land Use Code | 11 |
| Open Space: | N | DFL | N |
| Historic Property: | N | Remodel Property: | N |
| Multi-Family Redevelopment: | N | | |
| Township: | | Section: | |
| Range: | |
Location |
| Address: | 980 DONALD AVE OAK HARBOR, WA 98277 | Mapsco: | |
| Neighborhood: | Cycle 2 | Map ID: | 149 |
| Neighborhood CD: | 2 |
Owner |
| Name: | GREEN, JORDAN | Owner ID: | 309241 |
| Mailing Address: | ANGELICA ANTER 980 DONALD AVE OAK HARBOR, WA 98277 | % Ownership: | 100.0000000000% |
| | | Exemptions: | |
Taxes and Assessment Details
Values
| (+) Improvement Homesite Value: | + | $0 | |
| (+) Improvement Non-Homesite Value: | + | $177,154 | |
| (+) Land Homesite Value: | + | $0 | |
| (+) Land Non-Homesite Value: | + | $220,000 | |
| (+) Curr Use (HS): | + | $0 | $0 |
| (+) Curr Use (NHS): | + | $0 | $0 |
| | | -------------------------- | |
| (=) Market Value: | = | $397,154 | |
| (–) Productivity Loss: | – | $0 | |
| | | -------------------------- | |
| (=) Subtotal: | = | $397,154 | |
| (+) Senior Appraised Value: | + | $0 | |
| (+) Non-Senior Appraised Value: | + | $397,154 | |
| | | -------------------------- | |
| (=) Total Appraised Value: | = | $397,154 | |
| (–) Senior Exemption Loss: | – | $0 | |
| (–) Exemption Loss: | – | $0 | |
| | | -------------------------- | |
| (=) Taxable Value: | = | $397,154 | |
Taxing Jurisdiction
| Owner: | GREEN, JORDAN | | |
| % Ownership: | 100.0000000000% | | |
| Total Value: | $397,154 | | |
| Tax Area: | 330 - APPRAISER-Cpvl Schl Dist, Special Dist, improved & less than 1 acre |
| CF | Conservation Futures | 0.0313996660 | $397,154 | $397,154 | $12.47 | | |
| CEM2 | Cemetery #2 | 0.0092609791 | $397,154 | $397,154 | $3.68 | | |
| FIRE2 | Fire & Rescue Dist #2 N Whidbey GEN | 0.5381486274 | $397,154 | $397,154 | $213.73 | | |
| HOBOND | Hospital BOND | 0.1893405597 | $397,154 | $397,154 | $75.20 | | |
| HOGEN | Hospital GEN | 0.3848777722 | $397,154 | $397,154 | $152.86 | | |
| CE | County Current Expense | 0.3674210519 | $397,154 | $397,154 | $145.92 | | |
| CR | County Roads | 0.4614296361 | $397,154 | $397,154 | $183.26 | | |
| ISLANDEMS | Hospital GEN (EMS) | 0.4952018576 | $397,154 | $397,154 | $196.67 | | |
| LIB | Library Sno-Isle GEN | 0.3039084203 | $397,154 | $397,154 | $120.70 | | |
| LIBCAP | Library Sno-Isle BOND (Cap Fac Imp Area) | 0.0528562629 | $397,154 | $397,154 | $20.99 | | |
| POCOUP | Port of Coupeville GEN | 0.1065226063 | $397,154 | $397,154 | $42.31 | | |
| POCOUPIDD | Port of Coupeville IDD | 0.3353038577 | $397,154 | $397,154 | $133.17 | | |
| COUPSDTECH | School 204 CP (TECH) | 0.1215123397 | $397,154 | $397,154 | $48.26 | | |
| SCH204MO | School 204 Enrichment | 0.6416662518 | $397,154 | $397,154 | $254.84 | | |
| ST | State School | 1.4761226122 | $397,154 | $397,154 | $586.25 | | |
| ST2 | State School Part 2 | 0.7953803475 | $397,154 | $397,154 | $315.89 | | |
| | Total Tax Rate: | 6.3103528484 | | | | | |
| | | | | Taxes w/Current Exemptions: | $2,506.20 | | |
| | | | | Taxes w/o Exemptions: | $2,506.20 | | |
Improvement / Building
| Improvement #1: | MANUFACTURED HOME | State Code: | Y | 1680.0 sqft | Value: | $177,154 |
| Bathrooms: | 1 | Bedrooms: | 2 | | Ceiling: | PLASTER PAINTED | Cooling: | EVAP NO DUCT | | Exterior Wall/Cover: | VINYL | Floor Covering: | CARPET 100% | | Floor Structure: | SLAB ON GRADE | Foundation: | SLAB | | Heating: | FHA ELECTRIC | Interior Finish: | PLASTER | | Roof Slope: | FLAT | Roof Structure/Cover: | CJ ALUMINIUM HEAVY |
|
Sketch
Property Image
Land
| 1 | 15 | SQ (12001-21780) | 0.4360 | 18992.16 | 0.00 | 0.00 | 1.00 | $220,000 | $0 |
Roll Value History
| 2026 | N/A | N/A | N/A | N/A | N/A |
| 2025 | $177,154 | $220,000 | $0 | $397,154 | $397,154 |
| 2024 | $180,924 | $210,000 | $0 | $390,924 | $390,924 |
| 2023 | $158,967 | $220,000 | $0 | $378,967 | $378,967 |
| 2022 | $145,426 | $220,000 | $0 | $365,426 | $365,426 |
| 2021 | $127,751 | $180,000 | $0 | $307,751 | $307,751 |
| 2020 | $123,975 | $140,000 | $0 | $263,975 | $263,975 |
| 2019 | $4,000 | $170,000 | $0 | $174,000 | $174,000 |
| 2018 | $3,546 | $135,000 | $0 | $138,546 | $138,546 |
| 2017 | $3,546 | $120,000 | $0 | $123,546 | $123,546 |
| 2016 | $3,546 | $100,000 | $0 | $103,546 | $103,546 |
| 2015 | $3,546 | $70,000 | $0 | $73,546 | $73,546 |
| 2014 | $3,546 | $60,000 | $0 | $63,546 | $63,546 |
| 2013 | $3,546 | $55,000 | $0 | $58,546 | $58,546 |
| 2012 | $8,736 | $57,800 | $0 | $66,536 | $2,304 |
| 2011 | $8,736 | $68,000 | $0 | $76,736 | $2,304 |
| 2010 | $9,718 | $68,000 | $0 | $77,718 | $2,304 |
| 2009 | $9,903 | $74,400 | $0 | $84,303 | $2,304 |
| 2008 | $33,792 | $74,400 | $0 | $108,192 | $2,304 |
| 2007 | $34,168 | $74,400 | $0 | $108,568 | $2,304 |
Deed and Sales History
| 1 | 07/10/2023 | WD | Warranty Deed | GULLEY JR, DOMINIC Q | GREEN, JORDAN | | | $425,000.00 | 57252 | 4562042 |
| 2 | 02/25/2020 | WD | Warranty Deed | NOACK, MICAH | GULLEY JR, DOMINIC Q | | | $305,000.00 | 42238 | 4482076 |
| 3 | 07/22/2013 | WD | Warranty Deed | ADKINS, GEORGIA ANN | NOACK, MICAH | | | $4,500.00 | 12256 | 4345552 |
| 4 | 10/25/2002 | QCD | Quit Claim Deed | KELLER, ADA M | ADKINS, GEORGIA ANN | | | $0.00 | 24251 | 4035249 |
| 5 | 07/01/1984 | EZ | Easement | KELLER, ADA M | KELLER, ADA M | | | $0.00 | 60972 | 84000094 |
| 6 | 01/01/1980 | CD | DNU - Correction Deed | KELLER, GENE A | KELLER, ADA M | | | $0.00 | 59 | 363700 |
| 7 | 06/14/1977 | OTHER | Other - Misc. Documents | WOODBURY, DOUGLAS G | WORACK, FRED D | | | | 0 | 315415 |
Payout Agreement
| No payout information available.. |