Property
Account |
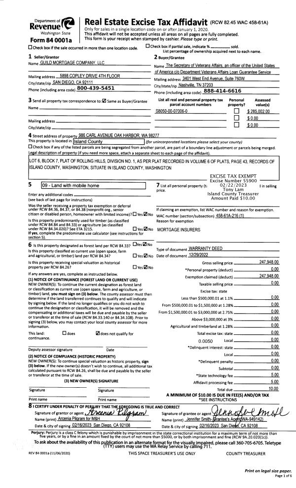
| Property ID: | 717497 | Abbreviated Legal Description: | LOT 6 BLK 7 ROLLING HILLS #1 ROLL HILL |
| Geographic ID: | S8050-00-07006-0 | Agent Code: | |
| Type: | Real | | |
| Tax Area: | 330 - APPRAISER-Cpvl Schl Dist, Special Dist, improved & less than 1 acre | Land Use Code | 11 |
| Open Space: | N | DFL | N |
| Historic Property: | N | Remodel Property: | N |
| Multi-Family Redevelopment: | N | | |
| Township: | | Section: | |
| Range: | |
Location |
| Address: | 986 CARL AVE OAK HARBOR, WA 98277 | Mapsco: | |
| Neighborhood: | Cycle 2 | Map ID: | 146 |
| Neighborhood CD: | 2 |
Owner |
| Name: | ANA, MARISSA SANTA | Owner ID: | 314780 |
| Mailing Address: | 986 CARL AVE OAK HARBOR, WA 98277 | % Ownership: | 100.0000000000% |
| | | Exemptions: | |
Taxes and Assessment Details
Values
| (+) Improvement Homesite Value: | + | $0 | |
| (+) Improvement Non-Homesite Value: | + | $175,345 | |
| (+) Land Homesite Value: | + | $0 | |
| (+) Land Non-Homesite Value: | + | $220,000 | |
| (+) Curr Use (HS): | + | $0 | $0 |
| (+) Curr Use (NHS): | + | $0 | $0 |
| | | -------------------------- | |
| (=) Market Value: | = | $395,345 | |
| (–) Productivity Loss: | – | $0 | |
| | | -------------------------- | |
| (=) Subtotal: | = | $395,345 | |
| (+) Senior Appraised Value: | + | $0 | |
| (+) Non-Senior Appraised Value: | + | $395,345 | |
| | | -------------------------- | |
| (=) Total Appraised Value: | = | $395,345 | |
| (–) Senior Exemption Loss: | – | $0 | |
| (–) Exemption Loss: | – | $0 | |
| | | -------------------------- | |
| (=) Taxable Value: | = | $395,345 | |
Taxing Jurisdiction
| Owner: | ANA, MARISSA SANTA | | |
| % Ownership: | 100.0000000000% | | |
| Total Value: | $395,345 | | |
| Tax Area: | 330 - APPRAISER-Cpvl Schl Dist, Special Dist, improved & less than 1 acre |
| CF | Conservation Futures | 0.0313996660 | $395,345 | $395,345 | $12.41 | | |
| CEM2 | Cemetery #2 | 0.0092609791 | $395,345 | $395,345 | $3.66 | | |
| FIRE2 | Fire & Rescue Dist #2 N Whidbey GEN | 0.5381486274 | $395,345 | $395,345 | $212.75 | | |
| HOBOND | Hospital BOND | 0.1893405597 | $395,345 | $395,345 | $74.85 | | |
| HOGEN | Hospital GEN | 0.3848777722 | $395,345 | $395,345 | $152.16 | | |
| CE | County Current Expense | 0.3674210519 | $395,345 | $395,345 | $145.26 | | |
| CR | County Roads | 0.4614296361 | $395,345 | $395,345 | $182.42 | | |
| ISLANDEMS | Hospital GEN (EMS) | 0.4952018576 | $395,345 | $395,345 | $195.78 | | |
| LIB | Library Sno-Isle GEN | 0.3039084203 | $395,345 | $395,345 | $120.15 | | |
| LIBCAP | Library Sno-Isle BOND (Cap Fac Imp Area) | 0.0528562629 | $395,345 | $395,345 | $20.90 | | |
| POCOUP | Port of Coupeville GEN | 0.1065226063 | $395,345 | $395,345 | $42.11 | | |
| POCOUPIDD | Port of Coupeville IDD | 0.3353038577 | $395,345 | $395,345 | $132.56 | | |
| COUPSDTECH | School 204 CP (TECH) | 0.1215123397 | $395,345 | $395,345 | $48.04 | | |
| SCH204MO | School 204 Enrichment | 0.6416662518 | $395,345 | $395,345 | $253.68 | | |
| ST | State School | 1.4761226122 | $395,345 | $395,345 | $583.58 | | |
| ST2 | State School Part 2 | 0.7953803475 | $395,345 | $395,345 | $314.45 | | |
| | Total Tax Rate: | 6.3103528484 | | | | | |
| | | | | Taxes w/Current Exemptions: | $2,494.76 | | |
| | | | | Taxes w/o Exemptions: | $2,494.76 | | |
Improvement / Building
| Improvement #1: | MANUFACTURED HOME | State Code: | Y | 1297.0 sqft | Value: | $175,345 |
| Bathrooms: | 0 | Bedrooms: | 0 | | Ceiling: | PLASTER PAINTED | Cooling: | EVAP NO DUCT | | Exterior Wall/Cover: | VINYL | Floor Covering: | CARPET 100% | | Floor Structure: | SLAB ON GRADE | Foundation: | SLAB | | Heating: | FHA ELECTRIC | Interior Finish: | PLASTER | | Plumbing Fixture Cnt: | 1 | Roof Slope: | FLAT | | Roof Structure/Cover: | CJ ALUMINIUM HEAVY |   |   |
|
| | Type | Description | Class CD | Sub Class CD | Year Built | Area |
| | BAS | BASE/MAIN FLOOR | 4 | 0 | 1990 | 1297.0 |
| | CPD | OPEN CARPORT DIRT FLOOR | 4 | 0 | 1990 | 322.0 |
| | CPD | OPEN CARPORT DIRT FLOOR | 4 | 0 | 1990 | 286.0 |
| | OWR | OPEN WOOD PORCH W/STEPS/ROOF | 4 | 0 | 1990 | 128.0 |
| | OWR | OPEN WOOD PORCH W/STEPS/ROOF | 4 | 0 | 1990 | 84.0 |
Sketch
| No sketches available for this property. |
Property Image
Land
| 1 | 15 | SQ (12001-21780) | 0.4200 | 18295.20 | 0.00 | 0.00 | 1.00 | $220,000 | $0 |
Roll Value History
| 2026 | N/A | N/A | N/A | N/A | N/A |
| 2025 | $175,345 | $220,000 | $0 | $395,345 | $395,345 |
| 2024 | $74,761 | $210,000 | $0 | $284,761 | $284,761 |
| 2023 | $69,078 | $220,000 | $0 | $289,078 | $289,078 |
| 2022 | $65,002 | $220,000 | $0 | $285,002 | $285,002 |
| 2021 | $58,648 | $180,000 | $0 | $238,648 | $238,648 |
| 2020 | $59,007 | $140,000 | $0 | $199,007 | $199,007 |
| 2019 | $48,937 | $170,000 | $0 | $218,937 | $218,937 |
| 2018 | $44,566 | $135,000 | $0 | $179,566 | $50,660 |
| 2017 | $46,552 | $120,000 | $0 | $166,552 | $50,660 |
| 2016 | $47,875 | $100,000 | $0 | $147,875 | $50,660 |
| 2015 | $49,199 | $70,000 | $0 | $119,199 | $47,680 |
| 2014 | $50,523 | $60,000 | $0 | $110,523 | $60,523 |
| 2013 | $51,846 | $55,000 | $0 | $106,846 | $56,846 |
| 2012 | $57,325 | $57,800 | $0 | $115,125 | $65,125 |
| 2011 | $58,649 | $68,000 | $0 | $126,649 | $76,649 |
| 2010 | $64,854 | $68,000 | $0 | $132,854 | $132,854 |
| 2009 | $68,091 | $73,765 | $0 | $141,856 | $141,856 |
| 2008 | $97,234 | $74,400 | $0 | $171,634 | $171,634 |
| 2007 | $99,893 | $74,400 | $0 | $174,293 | $174,293 |
Deed and Sales History
| 1 | 12/06/2024 | WD | Warranty Deed | SB HOMES 24, LLC | ANA, MARISSA SANTA | | | $420,000.00 | 62018 | 4580194 |
| 2 | 08/22/2024 | WD | Warranty Deed | THE SECRETARY OF VETERANS AFFAIRS | SB HOMES 24, LLC | | | $0.00 | 61079 | 4576315 |
| 3 | 12/29/2022 | WD | Warranty Deed | GUILD MORTGAGE COMPANY | THE SECRETARY OF VETERANS AFFAIRS | | | $0.00 | 55900 | 4556943 |
| 4 | 11/30/2022 | TRUSTEED | Trustee's Deed | WILSON, JACQUELINE C | GUILD MORTGAGE COMPANY | | | $0.00 | 55291 | |
| 5 | 07/05/2019 | WD | Warranty Deed | GOULET, EDWARD C | WILSON, JACQUELINE C | | | $245,000.00 | 39350 | 4466944 |
| 6 | 02/21/2006 | WD | Warranty Deed | WOOD, NATHAN A | GOULET, EDWARD C | | | $176,900.00 | 60803 | 4163163 |
| 7 | 07/16/2004 | WD | Warranty Deed | MITCHELL, SCOTT | WOOD, NATHAN A | | | $126,900.00 | 43295 | 4107469 |
| 8 | 09/22/1998 | OTHER | Other - Misc. Documents | KELLEY, JAKE / | MITCHELL, SCOTT | | | $42,700.00 | 90352 | 0 |
| 9 | 09/11/1998 | WD | Warranty Deed | Unknown | MITCHELL, SCOTT | | | $51,800.00 | 83762 | 98020324 |
| 10 | 06/01/1990 | OTHER | Other - Misc. Documents | Unknown | KELLEY, JAKE / | | | $33,916.00 | 11111111 | 0 |
| 11 | 06/01/1990 | WD | Warranty Deed | MITCHELL, SCOTT | KELLEY, JAKE L | | | $10,500.00 | 3546 | 90011507 |
| 12 | 01/01/1900 | OTHER | Other - Misc. Documents | MITCHELL, SCOTT | LAMONT, DWIGHT | | | $0.00 | 0 | 0 |
Payout Agreement
| No payout information available.. |