Property
Account |
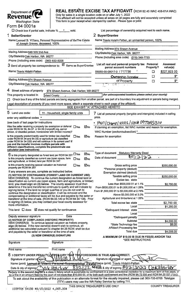
| Property ID: | 717736 | Abbreviated Legal Description: | ROLL HILL LOT 17 BLK 9 |
| Geographic ID: | S8050-00-09017-0 | Agent Code: | |
| Type: | Real | | |
| Tax Area: | 330 - APPRAISER-Cpvl Schl Dist, Special Dist, improved & less than 1 acre | Land Use Code | 11 |
| Open Space: | N | DFL | N |
| Historic Property: | N | Remodel Property: | N |
| Multi-Family Redevelopment: | N | | |
| Township: | | Section: | |
| Range: | |
Location |
| Address: | 974 SHAWN AVE OAK HARBOR, WA 98277 | Mapsco: | |
| Neighborhood: | Cycle 2 | Map ID: | 146 |
| Neighborhood CD: | 2 |
Owner |
| Name: | HIDAHL-PATTEN, TRAVIS | Owner ID: | 305456 |
| Mailing Address: | 974 SHAWN AVE OAK HARBOR, WA 98277 | % Ownership: | 100.0000000000% |
| | | Exemptions: | |
Taxes and Assessment Details
Values
| (+) Improvement Homesite Value: | + | $0 | |
| (+) Improvement Non-Homesite Value: | + | $15,235 | |
| (+) Land Homesite Value: | + | $0 | |
| (+) Land Non-Homesite Value: | + | $220,000 | |
| (+) Curr Use (HS): | + | $0 | $0 |
| (+) Curr Use (NHS): | + | $0 | $0 |
| | | -------------------------- | |
| (=) Market Value: | = | $235,235 | |
| (–) Productivity Loss: | – | $0 | |
| | | -------------------------- | |
| (=) Subtotal: | = | $235,235 | |
| (+) Senior Appraised Value: | + | $0 | |
| (+) Non-Senior Appraised Value: | + | $235,235 | |
| | | -------------------------- | |
| (=) Total Appraised Value: | = | $235,235 | |
| (–) Senior Exemption Loss: | – | $0 | |
| (–) Exemption Loss: | – | $0 | |
| | | -------------------------- | |
| (=) Taxable Value: | = | $235,235 | |
Taxing Jurisdiction
| Owner: | HIDAHL-PATTEN, TRAVIS | | |
| % Ownership: | 100.0000000000% | | |
| Total Value: | $235,235 | | |
| Tax Area: | 330 - APPRAISER-Cpvl Schl Dist, Special Dist, improved & less than 1 acre |
| CF | Conservation Futures | 0.0313996660 | $235,235 | $235,235 | $7.39 | | |
| CEM2 | Cemetery #2 | 0.0092609791 | $235,235 | $235,235 | $2.18 | | |
| FIRE2 | Fire & Rescue Dist #2 N Whidbey GEN | 0.5381486274 | $235,235 | $235,235 | $126.59 | | |
| HOBOND | Hospital BOND | 0.1893405597 | $235,235 | $235,235 | $44.54 | | |
| HOGEN | Hospital GEN | 0.3848777722 | $235,235 | $235,235 | $90.54 | | |
| CE | County Current Expense | 0.3674210519 | $235,235 | $235,235 | $86.43 | | |
| CR | County Roads | 0.4614296361 | $235,235 | $235,235 | $108.54 | | |
| ISLANDEMS | Hospital GEN (EMS) | 0.4952018576 | $235,235 | $235,235 | $116.49 | | |
| LIB | Library Sno-Isle GEN | 0.3039084203 | $235,235 | $235,235 | $71.49 | | |
| LIBCAP | Library Sno-Isle BOND (Cap Fac Imp Area) | 0.0528562629 | $235,235 | $235,235 | $12.43 | | |
| POCOUP | Port of Coupeville GEN | 0.1065226063 | $235,235 | $235,235 | $25.06 | | |
| POCOUPIDD | Port of Coupeville IDD | 0.3353038577 | $235,235 | $235,235 | $78.88 | | |
| COUPSDTECH | School 204 CP (TECH) | 0.1215123397 | $235,235 | $235,235 | $28.58 | | |
| SCH204MO | School 204 Enrichment | 0.6416662518 | $235,235 | $235,235 | $150.94 | | |
| ST | State School | 1.4761226122 | $235,235 | $235,235 | $347.24 | | |
| ST2 | State School Part 2 | 0.7953803475 | $235,235 | $235,235 | $187.10 | | |
| | Total Tax Rate: | 6.3103528484 | | | | | |
| | | | | Taxes w/Current Exemptions: | $1,484.42 | | |
| | | | | Taxes w/o Exemptions: | $1,484.42 | | |
Improvement / Building
| Improvement #1: | MANUFACTURED HOME | State Code: | Y | 1162.0 sqft | Value: | $15,235 |
| Bathrooms: | 0 | Bedrooms: | 0 | | Ceiling: | PLASTER PAINTED | Cooling: | EVAP NO DUCT | | Exterior Wall/Cover: | VINYL | Floor Covering: | CARPET 100% | | Floor Structure: | SLAB ON GRADE | Foundation: | SLAB | | Heating: | FHA ELECTRIC | Interior Finish: | PLASTER | | Plumbing Fixture Cnt: | 1 | Roof Slope: | FLAT | | Roof Structure/Cover: | CJ ALUMINIUM HEAVY |   |   |
|
| | Type | Description | Class CD | Sub Class CD | Year Built | Area |
| | BAS | BASE/MAIN FLOOR | 2 | 0 | 1967 | 1162.0 |
| | OCP | OPEN CARPORT | 2 | 0 | 1967 | 676.0 |
Sketch
Property Image
Land
| 1 | 15 | SQ (12001-21780) | 0.4188 | 18242.93 | 0.00 | 0.00 | 1.00 | $220,000 | $0 |
Roll Value History
| 2026 | N/A | N/A | N/A | N/A | N/A |
| 2025 | $15,235 | $220,000 | $0 | $235,235 | $235,235 |
| 2024 | $9,937 | $210,000 | $0 | $219,937 | $219,937 |
| 2023 | $8,641 | $220,000 | $0 | $228,641 | $228,641 |
| 2022 | $7,823 | $220,000 | $0 | $227,823 | $227,823 |
| 2021 | $6,803 | $180,000 | $0 | $186,803 | $186,803 |
| 2020 | $6,606 | $140,000 | $0 | $146,606 | $0 |
| 2019 | $5,201 | $170,000 | $0 | $175,201 | $0 |
| 2018 | $14,064 | $135,000 | $0 | $149,064 | $0 |
| 2017 | $14,064 | $120,000 | $0 | $134,064 | $0 |
| 2016 | $14,064 | $100,000 | $0 | $114,064 | $0 |
| 2015 | $14,064 | $70,000 | $0 | $84,064 | $0 |
| 2014 | $14,064 | $60,000 | $0 | $74,064 | $0 |
| 2013 | $14,064 | $55,000 | $0 | $69,064 | $0 |
| 2012 | $19,438 | $57,800 | $0 | $77,238 | $0 |
| 2011 | $19,772 | $68,000 | $0 | $87,772 | $0 |
| 2010 | $19,049 | $68,000 | $0 | $87,049 | $0 |
| 2009 | $19,523 | $74,400 | $0 | $93,923 | $0 |
| 2008 | $43,603 | $74,400 | $0 | $118,003 | $0 |
| 2007 | $44,162 | $74,400 | $0 | $118,562 | $0 |
Deed and Sales History
| 1 | 08/12/2022 | WD | Warranty Deed | GRAVES, JOSEPH E | HIDAHL-PATTEN, TRAVIS | | | $250,000.00 | 54158 | 4549682 |
| 2 | 10/01/1996 | QCD | Quit Claim Deed | Unknown | GRAVES, JOSEPH E | | | $0.00 | 63850 | 96018613 |
| 3 | 10/01/1996 | OTHER | Other - Misc. Documents | GRAVES, BERNICE I | GRAVES, JOSEPH E | | | $0.00 | 67148 | 0 |
| 4 | 10/01/1996 | QCD | Quit Claim Deed | GRAVES, JOSEPH E | GRAVES, JOSEPH E | | | $0.00 | 63850 | 96018613 |
| 5 | 11/01/1989 | OTHER | Other - Misc. Documents | Unknown | GRAVES, JOSEPH E | | | $0.00 | 95316 | 84001553 |
| 6 | 08/01/1989 | TRUSTEED | Trustee's Deed | GRAVES, JOSEPH E | GRAVES, BERNICE I | | | $0.00 | 94853 | 89015720 |
Payout Agreement
| No payout information available.. |