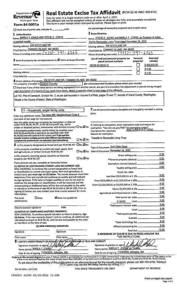
Property
Account |
| Property ID: | 718361 | Abbreviated Legal Description: | CAMALOCH 2 LOT 147 |
| Geographic ID: | S6235-02-00147-0 | Agent Code: | |
| Type: | Real | | |
| Tax Area: | 590 - APPRAISER-Stan/Cam Schl Dist, Special Dist, improved & less than 1 acre | Land Use Code | 11 |
| Open Space: | N | DFL | N |
| Historic Property: | N | Remodel Property: | N |
| Multi-Family Redevelopment: | N | | |
| Township: | | Section: | |
| Range: | |
Location |
| Address: | 328 SCOTLAND DR CAMANO ISLAND, WA 98282 | Mapsco: | |
| Neighborhood: | Cycle 5 | Map ID: | 995 |
| Neighborhood CD: | 5 |
Owner |
| Name: | JOHNS, STEVE E | Owner ID: | 289668 |
| Mailing Address: | MARLA Y JOHNS 328 SCOTLAND DR CAMANO ISLAND, WA 98282 | % Ownership: | 100.0000000000% |
| | | Exemptions: | |
Taxes and Assessment Details
Values
| (+) Improvement Homesite Value: | + | $0 | |
| (+) Improvement Non-Homesite Value: | + | $296,615 | |
| (+) Land Homesite Value: | + | $0 | |
| (+) Land Non-Homesite Value: | + | $260,000 | |
| (+) Curr Use (HS): | + | $0 | $0 |
| (+) Curr Use (NHS): | + | $0 | $0 |
| | | -------------------------- | |
| (=) Market Value: | = | $556,615 | |
| (–) Productivity Loss: | – | $0 | |
| | | -------------------------- | |
| (=) Subtotal: | = | $556,615 | |
| (+) Senior Appraised Value: | + | $0 | |
| (+) Non-Senior Appraised Value: | + | $556,615 | |
| | | -------------------------- | |
| (=) Total Appraised Value: | = | $556,615 | |
| (–) Senior Exemption Loss: | – | $0 | |
| (–) Exemption Loss: | – | $0 | |
| | | -------------------------- | |
| (=) Taxable Value: | = | $556,615 | |
Taxing Jurisdiction
| Owner: | JOHNS, STEVE E | | |
| % Ownership: | 100.0000000000% | | |
| Total Value: | $556,615 | | |
| Tax Area: | 590 - APPRAISER-Stan/Cam Schl Dist, Special Dist, improved & less than 1 acre |
| CF | Conservation Futures | 0.0313996660 | $556,615 | $556,615 | $17.48 | | |
| EMS1 | Fire & Rescue Dist #1 Camano GEN (EMS) | 0.4998471806 | $556,615 | $556,615 | $278.22 | | |
| FIRE1 | Fire & Rescue Dist #1 Camano GEN | 1.2496603404 | $556,615 | $556,615 | $695.58 | | |
| FIRE1BOND | Fire & Rescue Dist #1 Camano BOND | 0.1630371212 | $556,615 | $556,615 | $90.75 | | |
| CE | County Current Expense | 0.3674210519 | $556,615 | $556,615 | $204.51 | | |
| CR | County Roads | 0.4614296361 | $556,615 | $556,615 | $256.84 | | |
| LIB | Library Sno-Isle GEN | 0.3039084203 | $556,615 | $556,615 | $169.16 | | |
| SCH205_401 | School 205-401 Enrichment | 1.3697998934 | $556,615 | $556,615 | $762.45 | | |
| SCH205BOND | School 205-401 BOND | 0.9354199323 | $556,615 | $556,615 | $520.67 | | |
| ST | State School | 1.4761226122 | $556,615 | $556,615 | $821.63 | | |
| ST2 | State School Part 2 | 0.7953803475 | $556,615 | $556,615 | $442.72 | | |
| | Total Tax Rate: | 7.6534262019 | | | | | |
| | | | | Taxes w/Current Exemptions: | $4,260.01 | | |
| | | | | Taxes w/o Exemptions: | $4,260.01 | | |
Improvement / Building
| Improvement #1: | RESIDENTIAL | State Code: | Y | 1703.0 sqft | Value: | $296,615 |
| Bathrooms: | 2 | Bedrooms: | 1 | | Ceiling: | DRYWALL PAINTED | Exterior Wall/Cover: | WOOD SIDING | | Floor Covering: | CARPET/VINYL 80-20 | Floor Structure: | WOOD W/SUBFLOOR | | Foundation: | CONCRETE | Heating: | WALL HEAT ELECTRIC | | Interior Finish: | DRYWALL PAINT | Plumbing Fixture Cnt: | 11 | | Roof Slope: | 4" IN 12" | Roof Structure/Cover: | CJ ASPHALT |
|
| | Type | Description | Class CD | Sub Class CD | Year Built | Area |
| | BAS | BASE/MAIN FLOOR | 3 | 0 | 1991 | 1703.0 |
| | AGR | ATTACHED GARAGE | 3 | 0 | 1991 | 483.0 |
| | OWP | OPEN WOOD PORCH W/STEPS | 3 | 0 | 1991 | 16.0 |
| | OWR | OPEN WOOD PORCH W/STEPS/ROOF | 3 | 0 | 1991 | 180.0 |
| | OWC | OPEN WOOD PORCH W/STEPS/ROOF/C | 3 | 0 | 1991 | 225.0 |
| | OWC | OPEN WOOD PORCH W/STEPS/ROOF/C | 3 | 0 | 1991 | 81.0 |
Sketch
Property Image
Land
| 1 | 14 | SQ (08001-12000) | 0.0000 | 0.00 | 0.00 | 0.00 | 1.00 | $260,000 | $0 |
Roll Value History
| 2026 | N/A | N/A | N/A | N/A | N/A |
| 2025 | $296,615 | $260,000 | $0 | $556,615 | $556,615 |
| 2024 | $300,556 | $250,000 | $0 | $550,556 | $550,556 |
| 2023 | $304,496 | $250,000 | $0 | $554,496 | $554,496 |
| 2022 | $279,293 | $210,000 | $0 | $489,293 | $489,293 |
| 2021 | $245,966 | $165,000 | $0 | $410,966 | $410,966 |
| 2020 | $239,585 | $135,000 | $0 | $374,585 | $374,585 |
| 2019 | $174,654 | $175,000 | $0 | $349,654 | $349,654 |
| 2018 | $175,192 | $145,000 | $0 | $320,192 | $52,709 |
| 2017 | $176,265 | $100,000 | $0 | $276,265 | $52,709 |
| 2016 | $178,417 | $85,000 | $0 | $263,417 | $52,709 |
| 2015 | $172,521 | $65,000 | $0 | $237,521 | $52,709 |
| 2014 | $174,691 | $55,000 | $0 | $229,691 | $81,772 |
| 2013 | $176,860 | $55,000 | $0 | $231,860 | $81,772 |
| 2012 | $179,028 | $60,000 | $0 | $239,028 | $81,772 |
| 2011 | $181,197 | $65,000 | $0 | $246,197 | $81,772 |
| 2010 | $189,641 | $76,000 | $0 | $265,641 | $265,641 |
| 2009 | $183,994 | $100,000 | $0 | $283,994 | $81,772 |
| 2008 | $186,497 | $125,000 | $0 | $311,497 | $81,772 |
| 2007 | $187,853 | $101,151 | $0 | $289,004 | $81,772 |
Deed and Sales History
| 1 | 05/06/2019 | WD | Warranty Deed | BENNETT, DOROTHY N | JOHNS, STEVE E | | | $342,000.00 | 37974 | 4460978 |
| 2 | 07/01/1989 | WD | Warranty Deed | WOLGAMOTT, EILEEN | BENNETT, DOROTHY N | | | $11,000.00 | 93018 | 89010160 |
| 3 | 10/01/1986 | OTHER | Other - Misc. Documents | WOLGAMOTT, DONALD | WOLGAMOTT, EILEEN | | | $0.00 | 61898 | 0 |
| 4 | 01/01/1900 | OTHER | Other - Misc. Documents | Unknown | WOLGAMOTT, DONALD | | | $0.00 | 0 | 0 |
Payout Agreement
| No payout information available.. |