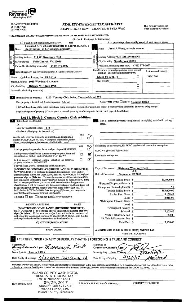
Property
Account |
| Property ID: | 718557 | Abbreviated Legal Description: | CCC 1 LOT 11 BLK 3 |
| Geographic ID: | S6250-00-03011-0 | Agent Code: | |
| Type: | Real | | |
| Tax Area: | 510 - APPRAISER-Stan/Cam Schl Dist, improved & 1 acre or less | Land Use Code | 11 |
| Open Space: | N | DFL | N |
| Historic Property: | N | Remodel Property: | N |
| Multi-Family Redevelopment: | N | | |
| Township: | | Section: | |
| Range: | |
Location |
| Address: | | Mapsco: | |
| Neighborhood: | Cycle 5 | Map ID: | 931 |
| Neighborhood CD: | 5 |
Owner |
| Name: | WONG, JANET J | Owner ID: | 282179 |
| Mailing Address: | 7535 19TH AVE NE SEATTLE, WA 98115 | % Ownership: | 100.0000000000% |
| | | Exemptions: | |
Taxes and Assessment Details
Values
| (+) Improvement Homesite Value: | + | $0 | |
| (+) Improvement Non-Homesite Value: | + | $252,740 | |
| (+) Land Homesite Value: | + | $0 | |
| (+) Land Non-Homesite Value: | + | $420,000 | |
| (+) Curr Use (HS): | + | $0 | $0 |
| (+) Curr Use (NHS): | + | $0 | $0 |
| | | -------------------------- | |
| (=) Market Value: | = | $672,740 | |
| (–) Productivity Loss: | – | $0 | |
| | | -------------------------- | |
| (=) Subtotal: | = | $672,740 | |
| (+) Senior Appraised Value: | + | $0 | |
| (+) Non-Senior Appraised Value: | + | $672,740 | |
| | | -------------------------- | |
| (=) Total Appraised Value: | = | $672,740 | |
| (–) Senior Exemption Loss: | – | $0 | |
| (–) Exemption Loss: | – | $0 | |
| | | -------------------------- | |
| (=) Taxable Value: | = | $672,740 | |
Taxing Jurisdiction
| Owner: | WONG, JANET J | | |
| % Ownership: | 100.0000000000% | | |
| Total Value: | $672,740 | | |
| Tax Area: | 510 - APPRAISER-Stan/Cam Schl Dist, improved & 1 acre or less |
| CF | Conservation Futures | 0.0313996660 | $672,740 | $672,740 | $21.12 | | |
| EMS1 | Fire & Rescue Dist #1 Camano GEN (EMS) | 0.4998471806 | $672,740 | $672,740 | $336.27 | | |
| FIRE1 | Fire & Rescue Dist #1 Camano GEN | 1.2496603404 | $672,740 | $672,740 | $840.70 | | |
| FIRE1BOND | Fire & Rescue Dist #1 Camano BOND | 0.1630371212 | $672,740 | $672,740 | $109.68 | | |
| CE | County Current Expense | 0.3674210519 | $672,740 | $672,740 | $247.18 | | |
| CR | County Roads | 0.4614296361 | $672,740 | $672,740 | $310.42 | | |
| LIB | Library Sno-Isle GEN | 0.3039084203 | $672,740 | $672,740 | $204.45 | | |
| SCH205_401 | School 205-401 Enrichment | 1.3697998934 | $672,740 | $672,740 | $921.52 | | |
| SCH205BOND | School 205-401 BOND | 0.9354199323 | $672,740 | $672,740 | $629.29 | | |
| ST | State School | 1.4761226122 | $672,740 | $672,740 | $993.05 | | |
| ST2 | State School Part 2 | 0.7953803475 | $672,740 | $672,740 | $535.08 | | |
| | Total Tax Rate: | 7.6534262019 | | | | | |
| | | | | Taxes w/Current Exemptions: | $5,148.76 | | |
| | | | | Taxes w/o Exemptions: | $5,148.76 | | |
Improvement / Building
| Improvement #1: | RESIDENTIAL | State Code: | Y | 2184.0 sqft | Value: | $252,740 |
| Bathrooms: | 2 | Bedrooms: | 2 | | Ceiling: | DRY WALL SPRAYED | Exterior Wall/Cover: | WOOD SIDING | | Floor Covering: | CARPET/VINYL 80-20 | Floor Structure: | WOOD W/SUBFLOOR | | Foundation: | CONCRETE | Heating: | BASEBOARD ELECTRIC | | Interior Finish: | DRYWALL PAINT | Plumbing Fixture Cnt: | 9 | | Roof Slope: | 3" IN 12" | Roof Structure/Cover: | CJ ASPHALT |
|
| | Type | Description | Class CD | Sub Class CD | Year Built | Area |
| | BAS | BASE/MAIN FLOOR | 3 | 0 | 1978 | 1400.0 |
| | DWN | DOWNSTAIRS LIVING AREA | 3 | 0 | 1978 | 784.0 |
| | BGR | BASEMENT GARAGE | 3 | 0 | 1978 | 616.0 |
| | OWP | OPEN WOOD PORCH W/STEPS | 3 | 0 | 1978 | 416.0 |
| | OWP | OPEN WOOD PORCH W/STEPS | 3 | 0 | 1978 | 84.0 |
Sketch
Property Image
Land
| 1 | MB | MEDIUM BANK | 0.0000 | 0.00 | 75.00 | 0.00 | 1.00 | $420,000 | $0 |
Roll Value History
| 2026 | N/A | N/A | N/A | N/A | N/A |
| 2025 | $252,740 | $420,000 | $0 | $672,740 | $672,740 |
| 2024 | $262,016 | $420,000 | $0 | $682,016 | $682,016 |
| 2023 | $265,642 | $390,000 | $0 | $655,642 | $655,642 |
| 2022 | $243,837 | $380,000 | $0 | $623,837 | $623,837 |
| 2021 | $209,627 | $225,000 | $0 | $434,627 | $434,627 |
| 2020 | $205,034 | $200,000 | $0 | $405,034 | $405,034 |
| 2019 | $158,698 | $250,000 | $0 | $408,698 | $408,698 |
| 2018 | $159,225 | $230,000 | $0 | $389,225 | $389,225 |
| 2017 | $147,627 | $200,000 | $0 | $347,627 | $347,627 |
| 2016 | $149,735 | $155,000 | $0 | $304,735 | $304,735 |
| 2015 | $130,503 | $150,000 | $0 | $280,503 | $280,503 |
| 2014 | $132,492 | $150,000 | $0 | $282,492 | $282,492 |
| 2013 | $134,482 | $247,272 | $0 | $381,754 | $381,754 |
| 2012 | $136,473 | $247,272 | $0 | $383,745 | $383,745 |
| 2011 | $138,463 | $260,286 | $0 | $398,749 | $398,749 |
| 2010 | $152,460 | $260,286 | $0 | $412,746 | $412,746 |
| 2009 | $160,547 | $280,885 | $0 | $441,432 | $441,432 |
| 2008 | $162,646 | $337,061 | $0 | $499,707 | $499,707 |
| 2007 | $164,747 | $140,442 | $0 | $305,189 | $305,189 |
Deed and Sales History
| 1 | 09/22/2017 | WD | Warranty Deed | KIRK, LAUREN B | WONG, JANET J | | | $403,000.00 | 31284 | 4431038 |
| 2 | 09/14/2004 | PRD | Personal Representatives Deed | JOHNSON, EMMA V | KIRK, LAUREN B | | | $0.00 | 44448 | 4113515 |
| 3 | 07/01/1997 | OTHER | Other - Misc. Documents | Unknown | JOHNSON, EMMA V | | | $0.00 | 67496 | 96005628 |
| 4 | 07/01/1997 | OTHER | Other - Misc. Documents | JOHNSON, FRANK E | JOHNSON, EMMA V | | | $0.00 | 67496 | 96005628 |
| 5 | 01/01/1995 | QCD | Quit Claim Deed | SEAFIRST, BANK, T | JOHNSON, FRANK E | | | $0.00 | 50142 | 95000742 |
| 6 | 08/01/1985 | QCD | Quit Claim Deed | JOHNSON, FRANK E | SEAFIRST, BANK, T | | | $0.00 | 52510 | 85009901 |
| 7 | 01/01/1900 | OTHER | Other - Misc. Documents | JOHNSON, EMMA V | JOHNSON, FRANK E | | | $0.00 | 0 | 0 |
Payout Agreement
| No payout information available.. |