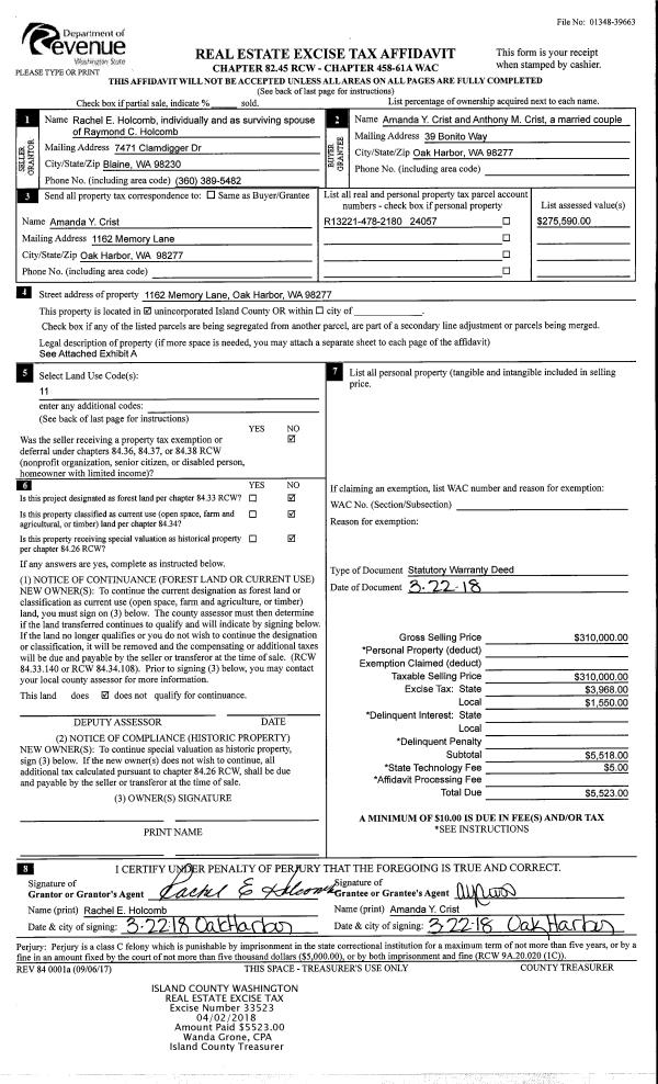
Property
Account |
| Property ID: | 719262 | Abbreviated Legal Description: | CAM LAGUNA VISTA 1 LOT 14 EX W30' |
| Geographic ID: | S6265-00-00014-0 | Agent Code: | |
| Type: | Real | | |
| Tax Area: | 510 - APPRAISER-Stan/Cam Schl Dist, improved & 1 acre or less | Land Use Code | 11 |
| Open Space: | N | DFL | N |
| Historic Property: | N | Remodel Property: | N |
| Multi-Family Redevelopment: | N | | |
| Township: | | Section: | |
| Range: | |
Location |
| Address: | 311 ROBERTS WAY CAMANO ISLAND, WA 98282 | Mapsco: | |
| Neighborhood: | North Camano | Map ID: | 574 |
| Neighborhood CD: | 06-C |
Owner |
| Name: | TWIBELL, TROY | Owner ID: | 285885 |
| Mailing Address: | LAVALLE TWIBELL 311 ROBERTS WAY CAMANO ISLAND, WA 98282 | % Ownership: | 100.0000000000% |
| | | Exemptions: | |
Taxes and Assessment Details
Values
| (+) Improvement Homesite Value: | + | $0 | |
| (+) Improvement Non-Homesite Value: | + | $262,492 | |
| (+) Land Homesite Value: | + | $0 | |
| (+) Land Non-Homesite Value: | + | $400,000 | |
| (+) Curr Use (HS): | + | $0 | $0 |
| (+) Curr Use (NHS): | + | $0 | $0 |
| | | -------------------------- | |
| (=) Market Value: | = | $662,492 | |
| (–) Productivity Loss: | – | $0 | |
| | | -------------------------- | |
| (=) Subtotal: | = | $662,492 | |
| (+) Senior Appraised Value: | + | $0 | |
| (+) Non-Senior Appraised Value: | + | $662,492 | |
| | | -------------------------- | |
| (=) Total Appraised Value: | = | $662,492 | |
| (–) Senior Exemption Loss: | – | $0 | |
| (–) Exemption Loss: | – | $0 | |
| | | -------------------------- | |
| (=) Taxable Value: | = | $662,492 | |
Taxing Jurisdiction
| Owner: | TWIBELL, TROY | | |
| % Ownership: | 100.0000000000% | | |
| Total Value: | $662,492 | | |
| Tax Area: | 510 - APPRAISER-Stan/Cam Schl Dist, improved & 1 acre or less |
| CF | Conservation Futures | 0.0313996660 | $662,492 | $662,492 | $20.80 | | |
| EMS1 | Fire & Rescue Dist #1 Camano GEN (EMS) | 0.4998471806 | $662,492 | $662,492 | $331.14 | | |
| FIRE1 | Fire & Rescue Dist #1 Camano GEN | 1.2496603404 | $662,492 | $662,492 | $827.89 | | |
| FIRE1BOND | Fire & Rescue Dist #1 Camano BOND | 0.1630371212 | $662,492 | $662,492 | $108.01 | | |
| CE | County Current Expense | 0.3674210519 | $662,492 | $662,492 | $243.41 | | |
| CR | County Roads | 0.4614296361 | $662,492 | $662,492 | $305.69 | | |
| LIB | Library Sno-Isle GEN | 0.3039084203 | $662,492 | $662,492 | $201.34 | | |
| SCH205_401 | School 205-401 Enrichment | 1.3697998934 | $662,492 | $662,492 | $907.48 | | |
| SCH205BOND | School 205-401 BOND | 0.9354199323 | $662,492 | $662,492 | $619.71 | | |
| ST | State School | 1.4761226122 | $662,492 | $662,492 | $977.92 | | |
| ST2 | State School Part 2 | 0.7953803475 | $662,492 | $662,492 | $526.93 | | |
| | Total Tax Rate: | 7.6534262019 | | | | | |
| | | | | Taxes w/Current Exemptions: | $5,070.32 | | |
| | | | | Taxes w/o Exemptions: | $5,070.32 | | |
Improvement / Building
| Improvement #1: | RESIDENTIAL | State Code: | Y | 1868.0 sqft | Value: | $262,492 |
| Bathrooms: | 2 | Bedrooms: | 2 | | Ceiling: | DRYWALL PAINTED | Cooling: | HEAT PUMP/CONV/V | | Exterior Wall/Cover: | PLY/HARDBOARD T-111 | Floor Covering: | HARDWOOD/CARP 20-80 | | Floor Structure: | WOOD W/SUBFLOOR | Foundation: | CONCRETE | | Interior Finish: | DRYWALL PAINT | Plumbing Fixture Cnt: | 9 | | Roof Slope: | 4" IN 12" | Roof Structure/Cover: | CJ ALUMINIUM HEAVY |
|
| | Type | Description | Class CD | Sub Class CD | Year Built | Area |
| | BAS | BASE/MAIN FLOOR | 3 | 0 | 1979 | 988.0 |
| | DWN | DOWNSTAIRS LIVING AREA | 3 | 0 | 1979 | 880.0 |
| | OCP | OPEN CARPORT | 3 | 0 | 1979 | 720.0 |
| | OWP | OPEN WOOD PORCH W/STEPS | 3 | 0 | 1979 | 27.5 |
| | OWP | OPEN WOOD PORCH W/STEPS | 3 | 0 | 1979 | 460.0 |
| | UTY | STORAGE/UTILITY | 3 | 0 | 1979 | 93.0 |
Sketch
Property Image
Land
| 1 | 15 | SQ (12001-21780) | 0.0000 | 0.00 | 0.00 | 0.00 | 1.00 | $400,000 | $0 |
Roll Value History
| 2026 | N/A | N/A | N/A | N/A | N/A |
| 2025 | $262,492 | $400,000 | $0 | $662,492 | $662,492 |
| 2024 | $265,980 | $400,000 | $0 | $665,980 | $665,980 |
| 2023 | $269,468 | $400,000 | $0 | $669,468 | $669,468 |
| 2022 | $224,853 | $360,000 | $0 | $584,853 | $584,853 |
| 2021 | $198,157 | $350,000 | $0 | $548,157 | $548,157 |
| 2020 | $191,150 | $200,000 | $0 | $391,150 | $391,150 |
| 2019 | $144,160 | $230,000 | $0 | $374,160 | $374,160 |
| 2018 | $144,626 | $210,000 | $0 | $354,626 | $354,626 |
| 2017 | $145,554 | $150,000 | $0 | $295,554 | $295,554 |
| 2016 | $114,841 | $110,000 | $0 | $224,841 | $224,841 |
| 2015 | $116,536 | $92,800 | $0 | $209,336 | $209,336 |
| 2014 | $118,230 | $92,800 | $0 | $211,030 | $211,030 |
| 2013 | $119,926 | $92,800 | $0 | $212,726 | $212,726 |
| 2012 | $121,620 | $92,800 | $0 | $214,420 | $214,420 |
| 2011 | $123,314 | $116,000 | $0 | $239,314 | $239,314 |
| 2010 | $129,189 | $116,000 | $0 | $245,189 | $245,189 |
| 2009 | $134,675 | $148,000 | $0 | $282,675 | $282,675 |
| 2008 | $136,476 | $148,000 | $0 | $284,476 | $284,476 |
| 2007 | $138,282 | $148,000 | $0 | $286,282 | $286,282 |
Deed and Sales History
| 1 | 02/14/2018 | OTHER | Other - Misc. Documents | HOOVER, LEONARD B | TWIBELL, TROY | | | $0.00 | 34855 | 4447422 |
| 2 | 01/12/2004 | OTHER | Other - Misc. Documents | SECRETARY OF HOUSING AND URBAN | HOOVER, LEONARD B | | | $165,000.00 | 40546 | 4091269 |
| 3 | 09/22/2003 | TRUSTEED | Trustee's Deed | HOFFMAN, ANITA | SECRETARY OF HOUSING AND URBAN | | | $187,760.00 | 34437 | 4077538 |
| 4 | 07/08/1999 | OTHER | Other - Misc. Documents | HOFFMAN, MAURICE J | HOFFMAN, ANITA | | | $0.00 | 68354 | 0 |
| 5 | 04/01/1990 | QCD | Quit Claim Deed | HOFFMAN, MAURICE J | HOFFMAN, MAURICE J | | | $0.00 | 1857 | 90005981 |
| 6 | 10/01/1988 | QCD | Quit Claim Deed | HOFFMAN, MAURICE J | HOFFMAN, MAURICE J | | | $0.00 | 83530 | 88013141 |
| 7 | 01/01/1979 | OTHER | Other - Misc. Documents | Unknown | HOFFMAN, MAURICE J | | | $17,000.00 | 90638 | 347407 |
Payout Agreement
| No payout information available.. |