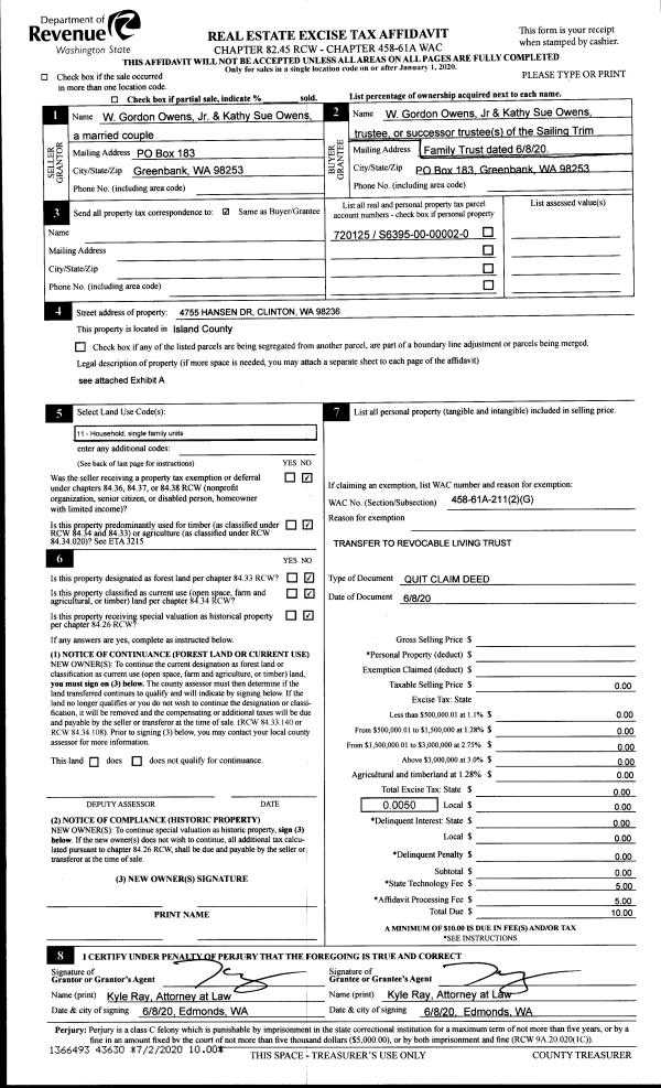
Property
Account |
| Property ID: | 720125 | Abbreviated Legal Description: | CLINTON PK LOT 2 INCL 1/45 INT TDLS AS |
| Geographic ID: | S6395-00-00002-0 | Agent Code: | |
| Type: | Real | | |
| Tax Area: | 720 - APPRAISER-S Whid Schl Dist, Special District, improved & less than 1 acre | Land Use Code | 11 |
| Open Space: | N | DFL | N |
| Historic Property: | N | Remodel Property: | N |
| Multi-Family Redevelopment: | N | | |
| Township: | | Section: | |
| Range: | |
Location |
| Address: | 4755 HANSEN DR CLINTON, WA 98236 | Mapsco: | |
| Neighborhood: | Cycle 4 | Map ID: | 808 |
| Neighborhood CD: | 4 |
Owner |
| Name: | OWENS JR TTEE, GORDON W | Owner ID: | 297643 |
| Mailing Address: | KATHY SUE OWENS TTEE PO BOX 183 GREENBANK, WA 98253 | % Ownership: | 100.0000000000% |
| | | Exemptions: | |
Taxes and Assessment Details
Values
| (+) Improvement Homesite Value: | + | $0 | |
| (+) Improvement Non-Homesite Value: | + | $198,366 | |
| (+) Land Homesite Value: | + | $0 | |
| (+) Land Non-Homesite Value: | + | $240,000 | |
| (+) Curr Use (HS): | + | $0 | $0 |
| (+) Curr Use (NHS): | + | $0 | $0 |
| | | -------------------------- | |
| (=) Market Value: | = | $438,366 | |
| (–) Productivity Loss: | – | $0 | |
| | | -------------------------- | |
| (=) Subtotal: | = | $438,366 | |
| (+) Senior Appraised Value: | + | $0 | |
| (+) Non-Senior Appraised Value: | + | $438,366 | |
| | | -------------------------- | |
| (=) Total Appraised Value: | = | $438,366 | |
| (–) Senior Exemption Loss: | – | $0 | |
| (–) Exemption Loss: | – | $0 | |
| | | -------------------------- | |
| (=) Taxable Value: | = | $438,366 | |
Taxing Jurisdiction
| Owner: | OWENS JR TTEE, GORDON W | | |
| % Ownership: | 100.0000000000% | | |
| Total Value: | $438,366 | | |
| Tax Area: | 720 - APPRAISER-S Whid Schl Dist, Special District, improved & less than 1 acre |
| CF | Conservation Futures | 0.0313996660 | $438,366 | $438,366 | $13.76 | | |
| FIRE3 | Fire & Rescue Dist #3 S Whidbey GEN | 1.2130821753 | $438,366 | $438,366 | $531.77 | | |
| HOBOND | Hospital BOND | 0.1893405597 | $438,366 | $438,366 | $83.00 | | |
| HOGEN | Hospital GEN | 0.3848777722 | $438,366 | $438,366 | $168.72 | | |
| CE | County Current Expense | 0.3674210519 | $438,366 | $438,366 | $161.06 | | |
| CR | County Roads | 0.4614296361 | $438,366 | $438,366 | $202.28 | | |
| ISLANDEMS | Hospital GEN (EMS) | 0.4952018576 | $438,366 | $438,366 | $217.08 | | |
| LIB | Library Sno-Isle GEN | 0.3039084203 | $438,366 | $438,366 | $133.22 | | |
| PORTWHID | Port of S Whidbey GEN | 0.1086004714 | $438,366 | $438,366 | $47.61 | | |
| SCH206BOND | School 206 BOND | 0.5960237832 | $438,366 | $438,366 | $261.28 | | |
| SCH206CAP | School 206 CP | 0.3066144020 | $438,366 | $438,366 | $134.41 | | |
| SCH206MO | School 206 Enrichment | 0.4808755445 | $438,366 | $438,366 | $210.80 | | |
| ST | State School | 1.4761226122 | $438,366 | $438,366 | $647.08 | | |
| ST2 | State School Part 2 | 0.7953803475 | $438,366 | $438,366 | $348.67 | | |
| SWHIDPRBD | P & R S Whidbey BOND | 0.0144185398 | $438,366 | $438,366 | $6.32 | | |
| SWHIDPRBD3 | P & R S Whidbey BOND3 | 0.1483535547 | $438,366 | $438,366 | $65.03 | | |
| SWHIDPRMT | P & R S Whidbey GEN | 0.4600000000 | $438,366 | $438,366 | $201.65 | | |
| | Total Tax Rate: | 7.8330503944 | | | | | |
| | | | | Taxes w/Current Exemptions: | $3,433.74 | | |
| | | | | Taxes w/o Exemptions: | $3,433.74 | | |
Improvement / Building
| Improvement #1: | RESIDENTIAL | State Code: | Y | 1344.0 sqft | Value: | $198,366 |
| Bathrooms: | 2 | Bedrooms: | 3 | | Ceiling: | DRY WALL SPRAYED | Exterior Wall/Cover: | WOOD SIDING | | Floor Covering: | VINYL/HARDWOOD 20-80 | Floor Structure: | WOOD W/SUBFLOOR | | Foundation: | CONCRETE | Heating: | BASEBOARD ELECTRIC | | Interior Finish: | DRYWALL PAINT | Plumbing Fixture Cnt: | 9 | | Roof Slope: | 4" IN 12" | Roof Structure/Cover: | CJ ASPHALT |
|
| | Type | Description | Class CD | Sub Class CD | Year Built | Area |
| | BAS | BASE/MAIN FLOOR | 3 | 0 | 1971 | 1344.0 |
| | OP1 | OPEN PORCH SLAB | 3 | 0 | 1971 | 75.0 |
| | OP3 | OPEN PORCH W/ROOF | 3 | 0 | 1971 | 204.0 |
| | ENP | ENCLOSED PORCH | 3 | 0 | 1971 | 132.0 |
Sketch
Property Image
Land
| 1 | 14 | SQ (08001-12000) | 0.0000 | 0.00 | 0.00 | 0.00 | 1.00 | $240,000 | $0 |
Roll Value History
| 2026 | N/A | N/A | N/A | N/A | N/A |
| 2025 | $198,366 | $240,000 | $0 | $438,366 | $438,366 |
| 2024 | $205,191 | $230,000 | $0 | $435,191 | $435,191 |
| 2023 | $208,112 | $230,000 | $0 | $438,112 | $438,112 |
| 2022 | $191,093 | $200,000 | $0 | $391,093 | $391,093 |
| 2021 | $168,468 | $140,000 | $0 | $308,468 | $308,468 |
| 2020 | $155,487 | $120,000 | $0 | $275,487 | $275,487 |
| 2019 | $111,190 | $140,000 | $0 | $251,190 | $251,190 |
| 2018 | $111,580 | $130,000 | $0 | $241,580 | $241,580 |
| 2017 | $112,361 | $110,000 | $0 | $222,361 | $222,361 |
| 2016 | $113,921 | $85,000 | $0 | $198,921 | $198,921 |
| 2015 | $115,481 | $65,000 | $0 | $180,481 | $180,481 |
| 2014 | $52,239 | $65,000 | $0 | $117,239 | $117,239 |
| 2013 | $53,043 | $65,000 | $0 | $118,043 | $118,043 |
| 2012 | $53,847 | $55,000 | $0 | $108,847 | $108,847 |
| 2011 | $56,806 | $85,000 | $0 | $141,806 | $141,806 |
| 2010 | $121,301 | $85,000 | $0 | $206,301 | $206,301 |
| 2009 | $126,770 | $100,000 | $0 | $226,770 | $226,770 |
| 2008 | $105,799 | $120,000 | $0 | $225,799 | $225,799 |
| 2007 | $107,341 | $74,000 | $0 | $181,341 | $181,341 |
Deed and Sales History
| 1 | 06/08/2020 | QCD | Quit Claim Deed | OWENS, GORDON | OWENS JR TTEE, GORDON W | | | $0.00 | 43630 | 4490394 |
| 2 | 08/09/2011 | WD | Warranty Deed | LEMAY, MERRIE M | OWENS, GORDON | | | $110,000.00 | 5193 | 4299391 |
| 3 | 05/18/2004 | WD | Warranty Deed | VOLZ, ROBERT D | LEMAY, MERRIE M | | | $142,500.00 | 42170 | 4101468 |
| 4 | 08/17/1998 | WD | Warranty Deed | KNIGHT, WILLIAM E | VOLZ, ROBERT D | | | $112,000.00 | 83572 | 98018752 |
| 5 | 01/01/1900 | OTHER | Other - Misc. Documents | Unknown | KNIGHT, WILLIAM E | | | $0.00 | 0 | 0 |
Payout Agreement
| No payout information available.. |