Property
Account |
| Property ID: | 720857 | Abbreviated Legal Description: | CROCKETT LK EST LOT 37 SL2B BG NE CR L37 |
| Geographic ID: | S6435-00-00037-2 | Agent Code: | |
| Type: | Real | | |
| Tax Area: | 380 - APPRAISER-Cpvl Schl Dist, Special Dist, improved & less than 1 acre | Land Use Code | 11 |
| Open Space: | N | DFL | N |
| Historic Property: | N | Remodel Property: | N |
| Multi-Family Redevelopment: | N | | |
| Township: | | Section: | |
| Range: | |
Location |
| Address: | 552 CROCKETT LAKE DR COUPEVILLE, WA 98239 | Mapsco: | |
| Neighborhood: | Cycle 2 | Map ID: | 65 |
| Neighborhood CD: | 2 |
Owner |
| Name: | KINARD, FRANK A | Owner ID: | 278923 |
| Mailing Address: | REBECCA KINARD 552 CROCKETT LAKE DR COUPEVILLE, WA 98239 | % Ownership: | 100.0000000000% |
| | | Exemptions: | |
Taxes and Assessment Details
Values
| (+) Improvement Homesite Value: | + | $0 | |
| (+) Improvement Non-Homesite Value: | + | $263,063 | |
| (+) Land Homesite Value: | + | $0 | |
| (+) Land Non-Homesite Value: | + | $270,000 | |
| (+) Curr Use (HS): | + | $0 | $0 |
| (+) Curr Use (NHS): | + | $0 | $0 |
| | | -------------------------- | |
| (=) Market Value: | = | $533,063 | |
| (–) Productivity Loss: | – | $0 | |
| | | -------------------------- | |
| (=) Subtotal: | = | $533,063 | |
| (+) Senior Appraised Value: | + | $0 | |
| (+) Non-Senior Appraised Value: | + | $533,063 | |
| | | -------------------------- | |
| (=) Total Appraised Value: | = | $533,063 | |
| (–) Senior Exemption Loss: | – | $0 | |
| (–) Exemption Loss: | – | $0 | |
| | | -------------------------- | |
| (=) Taxable Value: | = | $533,063 | |
Taxing Jurisdiction
| Owner: | KINARD, FRANK A | | |
| % Ownership: | 100.0000000000% | | |
| Total Value: | $533,063 | | |
| Tax Area: | 380 - APPRAISER-Cpvl Schl Dist, Special Dist, improved & less than 1 acre |
| CF | Conservation Futures | 0.0313996660 | $533,063 | $533,063 | $16.74 | | |
| CEM2 | Cemetery #2 | 0.0092609791 | $533,063 | $533,063 | $4.94 | | |
| FIRE5 | Fire & Rescue Dist #5 C Whidbey GEN | 1.1892169230 | $533,063 | $533,063 | $633.93 | | |
| FIRE5BOND | Fire & Rescue Dist #5 C Whidbey BOND | 0.1394359503 | $533,063 | $533,063 | $74.33 | | |
| HOBOND | Hospital BOND | 0.1893405597 | $533,063 | $533,063 | $100.93 | | |
| HOGEN | Hospital GEN | 0.3848777722 | $533,063 | $533,063 | $205.16 | | |
| CE | County Current Expense | 0.3674210519 | $533,063 | $533,063 | $195.86 | | |
| CR | County Roads | 0.4614296361 | $533,063 | $533,063 | $245.97 | | |
| ISLANDEMS | Hospital GEN (EMS) | 0.4952018576 | $533,063 | $533,063 | $263.97 | | |
| LIB | Library Sno-Isle GEN | 0.3039084203 | $533,063 | $533,063 | $162.00 | | |
| LIBCAP | Library Sno-Isle BOND (Cap Fac Imp Area) | 0.0528562629 | $533,063 | $533,063 | $28.18 | | |
| POCOUP | Port of Coupeville GEN | 0.1065226063 | $533,063 | $533,063 | $56.78 | | |
| POCOUPIDD | Port of Coupeville IDD | 0.3353038577 | $533,063 | $533,063 | $178.74 | | |
| COUPSDTECH | School 204 CP (TECH) | 0.1215123397 | $533,063 | $533,063 | $64.77 | | |
| SCH204MO | School 204 Enrichment | 0.6416662518 | $533,063 | $533,063 | $342.05 | | |
| ST | State School | 1.4761226122 | $533,063 | $533,063 | $786.87 | | |
| ST2 | State School Part 2 | 0.7953803475 | $533,063 | $533,063 | $423.99 | | |
| | Total Tax Rate: | 7.1008570943 | | | | | |
| | | | | Taxes w/Current Exemptions: | $3,785.21 | | |
| | | | | Taxes w/o Exemptions: | $3,785.21 | | |
Improvement / Building
| Improvement #1: | RESIDENTIAL | State Code: | Y | 1548.0 sqft | Value: | $263,063 |
| Bathrooms: | 2 | Bedrooms: | 2 | | Ceiling: | DRY WALL SPRAYED | Exterior Wall/Cover: | PLY/HARDBOARD T-111 | | Floor Covering: | CARPET/VINYL 80-20 | Floor Structure: | WOOD W/SUBFLOOR | | Foundation: | CONCRETE | Heating: | FHA GAS | | Interior Finish: | DRYWALL PAINT | Plumbing Fixture Cnt: | 9 | | Roof Slope: | 4" IN 12" | Roof Structure/Cover: | CJ ASPHALT |
|
| | Type | Description | Class CD | Sub Class CD | Year Built | Area |
| | BAS | BASE/MAIN FLOOR | 3 | 0 | 1974 | 1548.0 |
| | UTY | STORAGE/UTILITY | 3 | 0 | 1974 | 308.0 |
| | OCP | OPEN CARPORT | 3 | 0 | 1974 | 528.0 |
| | OWP | OPEN WOOD PORCH W/STEPS | 3 | 0 | 1974 | 639.0 |
Sketch
Property Image
Land
| 1 | 15 | SQ (12001-21780) | 0.5000 | 21780.00 | 0.00 | 0.00 | 1.00 | $270,000 | $0 |
Roll Value History
| 2026 | N/A | N/A | N/A | N/A | N/A |
| 2025 | $263,063 | $270,000 | $0 | $533,063 | $533,063 |
| 2024 | $256,340 | $250,000 | $0 | $506,340 | $506,340 |
| 2023 | $259,703 | $220,000 | $0 | $479,703 | $479,703 |
| 2022 | $238,210 | $210,000 | $0 | $448,210 | $448,210 |
| 2021 | $209,783 | $140,000 | $0 | $349,783 | $349,783 |
| 2020 | $204,524 | $110,000 | $0 | $314,524 | $314,524 |
| 2019 | $149,076 | $150,000 | $0 | $299,076 | $299,076 |
| 2018 | $145,866 | $160,000 | $0 | $305,866 | $305,866 |
| 2017 | $146,782 | $150,000 | $0 | $296,782 | $296,782 |
| 2016 | $148,618 | $135,000 | $0 | $283,618 | $65,566 |
| 2015 | $150,453 | $85,000 | $0 | $235,453 | $65,566 |
| 2014 | $152,286 | $85,000 | $0 | $237,286 | $106,544 |
| 2013 | $154,122 | $85,000 | $0 | $239,122 | $163,914 |
| 2012 | $141,065 | $85,000 | $0 | $226,065 | $163,914 |
| 2011 | $142,921 | $100,000 | $0 | $242,921 | $163,914 |
| 2010 | $147,694 | $100,000 | $0 | $247,694 | $163,914 |
| 2009 | $154,134 | $106,200 | $0 | $260,334 | $106,544 |
| 2008 | $157,340 | $104,894 | $0 | $262,234 | $106,544 |
| 2007 | $158,673 | $89,254 | $0 | $247,927 | $65,566 |
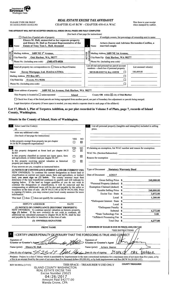
Deed and Sales History
| 1 | 03/08/2017 | WD | Warranty Deed | TAYLER LE, RICHARD D | KINARD, FRANK A | | | $305,000.00 | 28433 | 4418807 |
| 2 | 02/18/2017 | QCD | Quit Claim Deed | TAYLER LE, RICHARD D | TAYLOR, RICHARD D. | | | $0.00 | 28074 | 4417502 |
| 3 | 08/09/2016 | QCD | Quit Claim Deed | TAYLOR LIFE ESTATE, RICHARD | TAYLER LE, RICHARD D | | | $0.00 | 25911 | 4406317 |
| 4 | 07/10/2012 | QCD | Quit Claim Deed | TAYLOR, RICHARD D | TAYLOR LIFE ESTATE, RICHARD | | | $0.00 | 8167 | 4318821 |
| 5 | 09/25/2001 | WD | Warranty Deed | SINCLAIR, PETER | TAYLOR, RICHARD D | | | $113,900.00 | 13755 | 20044245 |
| 6 | 11/10/1999 | WD | Warranty Deed | GRINTON, JUNE L | SINCLAIR, PETER | | | $103,000.00 | 94786 | 99026855 |
| 7 | 03/04/1999 | QCD | Quit Claim Deed | Unknown | GRINTON, JUNE L | | | $0.00 | 90932 | 99007112 |
Payout Agreement
| No payout information available.. |