Property
Account |
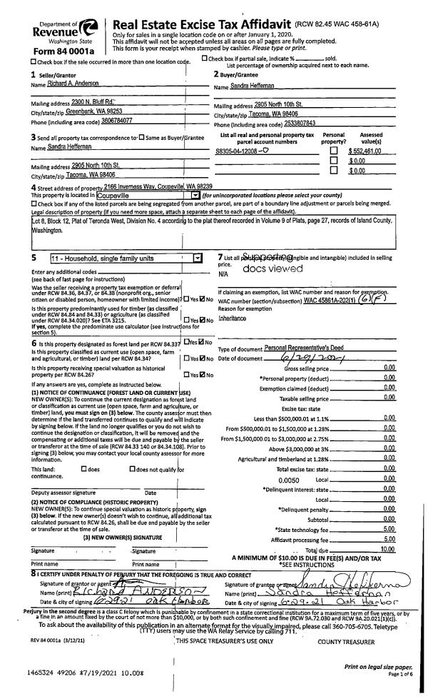
| Property ID: | 721124 | Abbreviated Legal Description: | TER WEST 4 LOT 8 BLK 12 |
| Geographic ID: | S8305-04-12008-0 | Agent Code: | |
| Type: | Real | | |
| Tax Area: | 310 - APPRAISER-Cpvl Schl Dist, outside Cpvl, improved & 1 acre or less | Land Use Code | 11 |
| Open Space: | N | DFL | N |
| Historic Property: | N | Remodel Property: | N |
| Multi-Family Redevelopment: | N | | |
| Township: | | Section: | |
| Range: | |
Location |
| Address: | 2166 INVERNESS WAY COUPEVILLE, WA 98239 | Mapsco: | |
| Neighborhood: | Cycle 2 | Map ID: | 525 |
| Neighborhood CD: | 2 |
Owner |
| Name: | WRIGHT, CANDICE | Owner ID: | 314692 |
| Mailing Address: | CHRISTOPHER WRIGHT 11700 MUKILTEO SPEEDWAY #201-2266 MUKILTEO, WA 98275 | % Ownership: | 100.0000000000% |
| | | Exemptions: | |
Taxes and Assessment Details
Values
| (+) Improvement Homesite Value: | + | $0 | |
| (+) Improvement Non-Homesite Value: | + | $392,961 | |
| (+) Land Homesite Value: | + | $0 | |
| (+) Land Non-Homesite Value: | + | $400,000 | |
| (+) Curr Use (HS): | + | $0 | $0 |
| (+) Curr Use (NHS): | + | $0 | $0 |
| | | -------------------------- | |
| (=) Market Value: | = | $792,961 | |
| (–) Productivity Loss: | – | $0 | |
| | | -------------------------- | |
| (=) Subtotal: | = | $792,961 | |
| (+) Senior Appraised Value: | + | $0 | |
| (+) Non-Senior Appraised Value: | + | $792,961 | |
| | | -------------------------- | |
| (=) Total Appraised Value: | = | $792,961 | |
| (–) Senior Exemption Loss: | – | $0 | |
| (–) Exemption Loss: | – | $0 | |
| | | -------------------------- | |
| (=) Taxable Value: | = | $792,961 | |
Taxing Jurisdiction
| Owner: | WRIGHT, CANDICE | | |
| % Ownership: | 100.0000000000% | | |
| Total Value: | $792,961 | | |
| Tax Area: | 310 - APPRAISER-Cpvl Schl Dist, outside Cpvl, improved & 1 acre or less |
| CF | Conservation Futures | 0.0313996660 | $792,961 | $792,961 | $24.90 | | |
| CEM2 | Cemetery #2 | 0.0092609791 | $792,961 | $792,961 | $7.34 | | |
| FIRE5 | Fire & Rescue Dist #5 C Whidbey GEN | 1.1892169230 | $792,961 | $792,961 | $943.00 | | |
| FIRE5BOND | Fire & Rescue Dist #5 C Whidbey BOND | 0.1394359503 | $792,961 | $792,961 | $110.57 | | |
| HOBOND | Hospital BOND | 0.1893405597 | $792,961 | $792,961 | $150.14 | | |
| HOGEN | Hospital GEN | 0.3848777722 | $792,961 | $792,961 | $305.19 | | |
| CE | County Current Expense | 0.3674210519 | $792,961 | $792,961 | $291.35 | | |
| CR | County Roads | 0.4614296361 | $792,961 | $792,961 | $365.90 | | |
| ISLANDEMS | Hospital GEN (EMS) | 0.4952018576 | $792,961 | $792,961 | $392.68 | | |
| LIB | Library Sno-Isle GEN | 0.3039084203 | $792,961 | $792,961 | $240.99 | | |
| LIBCAP | Library Sno-Isle BOND (Cap Fac Imp Area) | 0.0528562629 | $792,961 | $792,961 | $41.91 | | |
| POCOUP | Port of Coupeville GEN | 0.1065226063 | $792,961 | $792,961 | $84.47 | | |
| POCOUPIDD | Port of Coupeville IDD | 0.3353038577 | $792,961 | $792,961 | $265.88 | | |
| COUPSDTECH | School 204 CP (TECH) | 0.1215123397 | $792,961 | $792,961 | $96.35 | | |
| SCH204MO | School 204 Enrichment | 0.6416662518 | $792,961 | $792,961 | $508.82 | | |
| ST | State School | 1.4761226122 | $792,961 | $792,961 | $1,170.51 | | |
| ST2 | State School Part 2 | 0.7953803475 | $792,961 | $792,961 | $630.71 | | |
| | Total Tax Rate: | 7.1008570943 | | | | | |
| | | | | Taxes w/Current Exemptions: | $5,630.71 | | |
| | | | | Taxes w/o Exemptions: | $5,630.71 | | |
Improvement / Building
| Improvement #1: | RESIDENTIAL | State Code: | Y | 3208.0 sqft | Value: | $392,961 |
| Bathrooms: | 2 | Bedrooms: | 2 | | Ceiling: | DRYWALL PAINTED | Cooling: | HEAT PUMP/CONV/V | | Exterior Wall/Cover: | PLY/HARDBOARD T-111 | Floor Covering: | CERAMIC TILE/HWD 40/60 | | Floor Structure: | WOOD W/SUBFLOOR | Foundation: | CONCRETE | | Interior Finish: | DRYWALL PAINT | Plumbing Fixture Cnt: | 10 | | Roof Slope: | 3" IN 12" | Roof Structure/Cover: | CJ ASPHALT |
|
| | Type | Description | Class CD | Sub Class CD | Year Built | Area |
| | BAS | BASE/MAIN FLOOR | 3 | 0 | 1991 | 1697.0 |
| | UB8 | BASEMENT UNFINISHED 8" | 3 | 0 | 1991 | 168.0 |
| | DWN | DOWNSTAIRS LIVING AREA | 3 | 0 | 1991 | 1511.0 |
| | OP4 | OPEN PORCH W/CEILING-ROOF | 3 | 0 | 1991 | 154.0 |
| | AGR | ATTACHED GARAGE | 3 | 0 | 1991 | 462.0 |
| | OWP | OPEN WOOD PORCH W/STEPS | 3 | 0 | 1991 | 592.5 |
Sketch
| No sketches available for this property. |
Property Image
Land
| 1 | HB | HIGH BLUFF | 0.3623 | 15781.79 | 76.00 | 0.00 | 1.00 | $400,000 | $0 |
Roll Value History
| 2026 | N/A | N/A | N/A | N/A | N/A |
| 2025 | $392,961 | $400,000 | $0 | $792,961 | $792,961 |
| 2024 | $361,812 | $400,000 | $0 | $761,812 | $761,812 |
| 2023 | $366,557 | $400,000 | $0 | $766,557 | $274,490 |
| 2022 | $336,224 | $350,000 | $0 | $686,224 | $616,224 |
| 2021 | $309,839 | $300,000 | $0 | $609,839 | $609,839 |
| 2020 | $302,461 | $250,000 | $0 | $552,461 | $166,936 |
| 2019 | $223,535 | $275,000 | $0 | $498,535 | $166,936 |
| 2018 | $213,218 | $225,000 | $0 | $438,218 | $166,936 |
| 2017 | $214,590 | $200,000 | $0 | $414,590 | $165,836 |
| 2016 | $217,341 | $200,000 | $0 | $417,341 | $166,936 |
| 2015 | $223,948 | $250,000 | $0 | $473,948 | $473,948 |
| 2014 | $226,747 | $200,000 | $0 | $426,747 | $426,747 |
| 2013 | $229,547 | $200,000 | $0 | $429,547 | $429,547 |
| 2012 | $257,797 | $208,090 | $0 | $465,887 | $465,887 |
| 2011 | $260,970 | $208,090 | $0 | $469,060 | $469,060 |
| 2010 | $269,102 | $208,090 | $0 | $477,192 | $477,192 |
| 2009 | $280,566 | $250,700 | $0 | $531,266 | $531,266 |
| 2008 | $295,743 | $280,427 | $0 | $576,170 | $576,170 |
| 2007 | $299,224 | $280,427 | $0 | $579,651 | $579,651 |
Deed and Sales History
| 1 | 11/15/2024 | WD | Warranty Deed | HEFFERNAN, SANDRA | WRIGHT, CANDICE | | | $789,000.00 | 61888 | 4579655 |
| 2 | 06/29/2021 | PRD | Personal Representatives Deed | ANDERSON, CHARLES R | HEFFERNAN, SANDRA | | | $0.00 | 49206 | 4524625 |
| 3 | 08/25/2015 | WD | Warranty Deed | MATHESON, GAY | ANDERSON, CHARLES R | | | $425,000.00 | 21179 | 4385193 |
| 4 | 12/04/2006 | OTHER | Other - Misc. Documents | MATHESON, DONALD A | MATHESON TRUSTEE, GAY | | | $0.00 | 80089 | 0 |
| 5 | 10/25/2006 | PRD | Personal Representatives Deed | MATHESON TRUSTEE, GAY | MATHESON, GAY | | | $0.00 | 64838 | 4186824 |
| 6 | 12/01/1989 | WD | Warranty Deed | RICE, JULIAN C | MATHESON, DONALD A | | | $32,000.00 | 95896 | 89018981 |
| 7 | 01/01/1900 | OTHER | Other - Misc. Documents | Unknown | RICE, JULIAN C | | | $0.00 | 0 | 0 |
Payout Agreement
| No payout information available.. |