Property
Account |
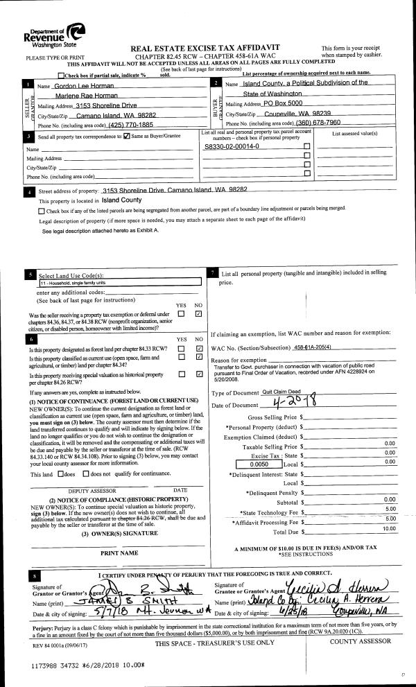
| Property ID: | 722105 | Abbreviated Legal Description: | TYEE BCH 2 LOTS 14 & 14A & S25' LOTS 15 & 15A |
| Geographic ID: | S8330-02-00014-0 | Agent Code: | |
| Type: | Real | | |
| Tax Area: | 540 - APPRAISER-Stan/Cam Schl Dist, Special Dist, improved & less than 1 acre | Land Use Code | 11 |
| Open Space: | N | DFL | N |
| Historic Property: | N | Remodel Property: | N |
| Multi-Family Redevelopment: | N | | |
| Township: | | Section: | |
| Range: | |
Location |
| Address: | 3153 SHORELINE DR CAMANO ISLAND, WA 98282 | Mapsco: | |
| Neighborhood: | 58RecamWF-East Cam | Map ID: | 867 |
| Neighborhood CD: | 58RecamWF |
Owner |
| Name: | HORMAN, GORDON L | Owner ID: | 282923 |
| Mailing Address: | MARLENE R HORMAN 3153 SHORELINE DR CAMANO ISLAND, WA 98282 | % Ownership: | 100.0000000000% |
| | | Exemptions: | |
Taxes and Assessment Details
Values
| (+) Improvement Homesite Value: | + | $0 | |
| (+) Improvement Non-Homesite Value: | + | $286,756 | |
| (+) Land Homesite Value: | + | $0 | |
| (+) Land Non-Homesite Value: | + | $725,750 | |
| (+) Curr Use (HS): | + | $0 | $0 |
| (+) Curr Use (NHS): | + | $0 | $0 |
| | | -------------------------- | |
| (=) Market Value: | = | $1,012,506 | |
| (–) Productivity Loss: | – | $0 | |
| | | -------------------------- | |
| (=) Subtotal: | = | $1,012,506 | |
| (+) Senior Appraised Value: | + | $0 | |
| (+) Non-Senior Appraised Value: | + | $1,012,506 | |
| | | -------------------------- | |
| (=) Total Appraised Value: | = | $1,012,506 | |
| (–) Senior Exemption Loss: | – | $0 | |
| (–) Exemption Loss: | – | $0 | |
| | | -------------------------- | |
| (=) Taxable Value: | = | $1,012,506 | |
Taxing Jurisdiction
| Owner: | HORMAN, GORDON L | | |
| % Ownership: | 100.0000000000% | | |
| Total Value: | $1,012,506 | | |
| Tax Area: | 540 - APPRAISER-Stan/Cam Schl Dist, Special Dist, improved & less than 1 acre |
| CF | Conservation Futures | 0.0313996660 | $1,012,506 | $1,012,506 | $31.79 | | |
| EMS1 | Fire & Rescue Dist #1 Camano GEN (EMS) | 0.4998471806 | $1,012,506 | $1,012,506 | $506.10 | | |
| FIRE1 | Fire & Rescue Dist #1 Camano GEN | 1.2496603404 | $1,012,506 | $1,012,506 | $1,265.29 | | |
| FIRE1BOND | Fire & Rescue Dist #1 Camano BOND | 0.1630371212 | $1,012,506 | $1,012,506 | $165.08 | | |
| CE | County Current Expense | 0.3674210519 | $1,012,506 | $1,012,506 | $372.02 | | |
| CR | County Roads | 0.4614296361 | $1,012,506 | $1,012,506 | $467.20 | | |
| LIB | Library Sno-Isle GEN | 0.3039084203 | $1,012,506 | $1,012,506 | $307.71 | | |
| SCH205_401 | School 205-401 Enrichment | 1.3697998934 | $1,012,506 | $1,012,506 | $1,386.93 | | |
| SCH205BOND | School 205-401 BOND | 0.9354199323 | $1,012,506 | $1,012,506 | $947.12 | | |
| ST | State School | 1.4761226122 | $1,012,506 | $1,012,506 | $1,494.58 | | |
| ST2 | State School Part 2 | 0.7953803475 | $1,012,506 | $1,012,506 | $805.33 | | |
| | Total Tax Rate: | 7.6534262019 | | | | | |
| | | | | Taxes w/Current Exemptions: | $7,749.15 | | |
| | | | | Taxes w/o Exemptions: | $7,749.15 | | |
Improvement / Building
| Improvement #1: | RESIDENTIAL | State Code: | Y | 1536.0 sqft | Value: | $286,756 |
| Bathrooms: | 2 | Bedrooms: | 3 | | Ceiling: | DRY WALL SPRAYED | Cooling: | HEAT PUMP/CONV/V | | Exterior Wall/Cover: | PLY/HARDBOARD T-111 | Floor Covering: | CERAMIC TILE/CPT 40-60 | | Floor Structure: | WOOD W/SUBFLOOR | Foundation: | CONCRETE | | Interior Finish: | DRYWALL PAINT | Plumbing Fixture Cnt: | 8 | | Roof Slope: | 3" IN 12" | Roof Structure/Cover: | CJ ALUMINIUM HEAVY |
|
| | Type | Description | Class CD | Sub Class CD | Year Built | Area |
| | BAS | BASE/MAIN FLOOR | 3 | 0 | 1976 | 768.0 |
| | UTY | STORAGE/UTILITY | 3 | 0 | 1976 | 98.0 |
| | UPS | UPPER STORY | 3 | 0 | 1976 | 768.0 |
| | OWP | OPEN WOOD PORCH W/STEPS | 3 | 0 | 1976 | 432.0 |
| | OWC | OPEN WOOD PORCH W/STEPS/ROOF/C | 3 | 0 | 1976 | 256.0 |
Sketch
Property Image
Land
| 1 | LB | LOW BANK | 0.8100 | 35283.60 | 75.00 | 0.00 | 1.00 | $725,000 | $0 |
| 2 | 55 | TIDES | 0.0000 | 0.00 | 75.00 | 0.00 | 1.00 | $750 | $0 |
Roll Value History
| 2026 | N/A | N/A | N/A | N/A | N/A |
| 2025 | $286,756 | $725,750 | $0 | $1,012,506 | $1,012,506 |
| 2024 | $290,201 | $725,750 | $0 | $1,015,951 | $1,015,951 |
| 2023 | $293,646 | $725,750 | $0 | $1,019,396 | $1,019,396 |
| 2022 | $269,026 | $700,750 | $0 | $969,776 | $969,776 |
| 2021 | $227,194 | $550,750 | $0 | $777,944 | $777,944 |
| 2020 | $221,481 | $450,750 | $0 | $672,231 | $672,231 |
| 2019 | $162,489 | $500,750 | $0 | $663,239 | $663,239 |
| 2018 | $101,217 | $500,750 | $0 | $601,967 | $601,967 |
| 2017 | $131,928 | $380,760 | $0 | $512,688 | $512,688 |
| 2016 | $133,619 | $320,760 | $0 | $454,379 | $120,581 |
| 2015 | $103,587 | $400,760 | $0 | $504,347 | $120,581 |
| 2014 | $105,136 | $400,760 | $0 | $505,896 | $120,581 |
| 2013 | $106,685 | $376,802 | $0 | $483,487 | $120,581 |
| 2012 | $108,235 | $426,976 | $0 | $535,211 | $120,581 |
| 2011 | $109,785 | $533,530 | $0 | $643,315 | $120,581 |
| 2010 | $119,206 | $533,530 | $0 | $652,736 | $120,581 |
| 2009 | $121,200 | $573,994 | $0 | $695,194 | $231,452 |
| 2008 | $122,812 | $573,994 | $0 | $696,806 | $231,452 |
| 2007 | $125,621 | $572,274 | $0 | $697,895 | $231,452 |
Deed and Sales History
| 1 | 06/26/2018 | QCD | Quit Claim Deed | HORMAN, GORDON L | HORMAN, GORDON L | | | $0.00 | 34732 | 4446984 |
| 2 | 11/20/2017 | WD | Warranty Deed | MCKINNON, LORRAINE G | HORMAN, GORDON L | | | $465,000.00 | 31989 | 4434503 |
| 3 | 03/14/2013 | TOD | Transfer On Death Deed | MCKINNON, JACK A | MCKINNON, LORRAINE G | | | | 82650 | |
| 4 | 01/01/1900 | OTHER | Other - Misc. Documents | Unknown | MCKINNON, JACK A | | | $0.00 | 0 | 0 |
Payout Agreement
| No payout information available.. |