Property
Account |
| Property ID: | 722329 | Abbreviated Legal Description: | UTSALADY LOTS 11, 12 & 13 BLK 10 & INT TR B, C & D |
| Geographic ID: | S8345-00-10011-0 | Agent Code: | |
| Type: | Real | | |
| Tax Area: | 590 - APPRAISER-Stan/Cam Schl Dist, Special Dist, improved & less than 1 acre | Land Use Code | 11 |
| Open Space: | N | DFL | N |
| Historic Property: | N | Remodel Property: | N |
| Multi-Family Redevelopment: | N | | |
| Township: | | Section: | |
| Range: | |
Location |
| Address: | | Mapsco: | |
| Neighborhood: | North Camano | Map ID: | 962 |
| Neighborhood CD: | 06-C |
Owner |
| Name: | BUCKLEY, JOHN PAUL | Owner ID: | 313409 |
| Mailing Address: | RACHEL BROOKS BUCKLEY 86 EAST NORTH CAMANO DR CAMANO ISLAND, WA 98282 | % Ownership: | 100.0000000000% |
| | | Exemptions: | |
Taxes and Assessment Details
Values
| (+) Improvement Homesite Value: | + | $0 | |
| (+) Improvement Non-Homesite Value: | + | $207,190 | |
| (+) Land Homesite Value: | + | $0 | |
| (+) Land Non-Homesite Value: | + | $240,000 | |
| (+) Curr Use (HS): | + | $0 | $0 |
| (+) Curr Use (NHS): | + | $0 | $0 |
| | | -------------------------- | |
| (=) Market Value: | = | $447,190 | |
| (–) Productivity Loss: | – | $0 | |
| | | -------------------------- | |
| (=) Subtotal: | = | $447,190 | |
| (+) Senior Appraised Value: | + | $0 | |
| (+) Non-Senior Appraised Value: | + | $447,190 | |
| | | -------------------------- | |
| (=) Total Appraised Value: | = | $447,190 | |
| (–) Senior Exemption Loss: | – | $0 | |
| (–) Exemption Loss: | – | $0 | |
| | | -------------------------- | |
| (=) Taxable Value: | = | $447,190 | |
Taxing Jurisdiction
| Owner: | BUCKLEY, JOHN PAUL | | |
| % Ownership: | 100.0000000000% | | |
| Total Value: | $447,190 | | |
| Tax Area: | 590 - APPRAISER-Stan/Cam Schl Dist, Special Dist, improved & less than 1 acre |
| CF | Conservation Futures | 0.0313996660 | $447,190 | $447,190 | $14.04 | | |
| EMS1 | Fire & Rescue Dist #1 Camano GEN (EMS) | 0.4998471806 | $447,190 | $447,190 | $223.53 | | |
| FIRE1 | Fire & Rescue Dist #1 Camano GEN | 1.2496603404 | $447,190 | $447,190 | $558.84 | | |
| FIRE1BOND | Fire & Rescue Dist #1 Camano BOND | 0.1630371212 | $447,190 | $447,190 | $72.91 | | |
| CE | County Current Expense | 0.3674210519 | $447,190 | $447,190 | $164.31 | | |
| CR | County Roads | 0.4614296361 | $447,190 | $447,190 | $206.35 | | |
| LIB | Library Sno-Isle GEN | 0.3039084203 | $447,190 | $447,190 | $135.90 | | |
| SCH205_401 | School 205-401 Enrichment | 1.3697998934 | $447,190 | $447,190 | $612.56 | | |
| SCH205BOND | School 205-401 BOND | 0.9354199323 | $447,190 | $447,190 | $418.31 | | |
| ST | State School | 1.4761226122 | $447,190 | $447,190 | $660.11 | | |
| ST2 | State School Part 2 | 0.7953803475 | $447,190 | $447,190 | $355.69 | | |
| | Total Tax Rate: | 7.6534262019 | | | | | |
| | | | | Taxes w/Current Exemptions: | $3,422.55 | | |
| | | | | Taxes w/o Exemptions: | $3,422.55 | | |
Improvement / Building
| Improvement #1: | RESIDENTIAL | State Code: | Y | 1488.0 sqft | Value: | $207,190 |
| Bathrooms: | 1.5 | Bedrooms: | 2 | | Ceiling: | DRYWALL PAINTED | Exterior Wall/Cover: | WOOD SIDING | | Floor Covering: | CARPET/VINYL 80-20 | Floor Structure: | WOOD W/SUBFLOOR | | Foundation: | CONCRETE | Heating: | GAS HEATERS | | Interior Finish: | DRYWALL PAINT | Plumbing Fixture Cnt: | 8 | | Roof Slope: | 8" IN 12" | Roof Structure/Cover: | CJ ASPHALT |
|
| | Type | Description | Class CD | Sub Class CD | Year Built | Area |
| | BAS | BASE/MAIN FLOOR | 3 | 0 | 1880 | 1100.0 |
| | OP2 | OPEN PORCH W/STEPS | 3 | 0 | 1880 | 10.5 |
| | UPS | UPPER STORY | 3 | 0 | 1880 | 388.0 |
| | OWP | OPEN WOOD PORCH W/STEPS | 3 | 0 | 1880 | 135.0 |
| | oPOL | POLE BARN | 4 | 0 | 1880 | 700.0 |
Sketch
| No sketches available for this property. |
Property Image
Land
| 1 | 13 | SQ (06001-08000) | 0.0000 | 0.00 | 0.00 | 0.00 | 1.00 | $240,000 | $0 |
Roll Value History
| 2026 | N/A | N/A | N/A | N/A | N/A |
| 2025 | $207,190 | $240,000 | $0 | $447,190 | $447,190 |
| 2024 | $170,422 | $230,000 | $0 | $400,422 | $400,422 |
| 2023 | $173,080 | $230,000 | $0 | $403,080 | $403,080 |
| 2022 | $159,602 | $210,000 | $0 | $369,602 | $369,602 |
| 2021 | $141,537 | $160,000 | $0 | $301,537 | $301,537 |
| 2020 | $138,781 | $130,000 | $0 | $268,781 | $268,781 |
| 2019 | $104,053 | $170,000 | $0 | $274,053 | $274,053 |
| 2018 | $104,421 | $150,000 | $0 | $254,421 | $254,421 |
| 2017 | $105,154 | $120,000 | $0 | $225,154 | $225,154 |
| 2016 | $105,640 | $115,000 | $0 | $220,640 | $220,640 |
| 2015 | $107,120 | $100,000 | $0 | $207,120 | $207,120 |
| 2014 | $108,599 | $85,000 | $0 | $193,599 | $193,599 |
| 2013 | $110,078 | $85,000 | $0 | $195,078 | $195,078 |
| 2012 | $111,560 | $80,000 | $0 | $191,560 | $191,560 |
| 2011 | $113,040 | $100,000 | $0 | $213,040 | $213,040 |
| 2010 | $123,809 | $135,000 | $0 | $258,809 | $258,809 |
| 2009 | $129,545 | $150,000 | $0 | $279,545 | $40,210 |
| 2008 | $131,765 | $125,000 | $0 | $256,765 | $40,210 |
| 2007 | $133,993 | $125,000 | $0 | $258,993 | $40,210 |
Deed and Sales History
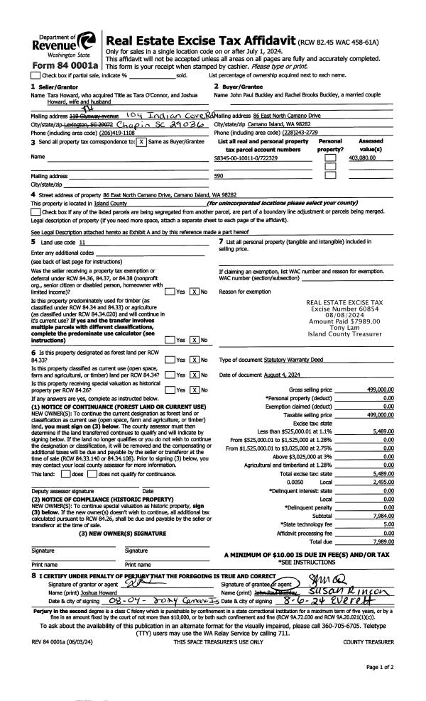
| 1 | 08/04/2024 | WD | Warranty Deed | HOWARD, JOSHUA | BUCKLEY, JOHN PAUL | | | $499,000.00 | 60854 | 4575539 |
| 2 | 12/26/2012 | CCOMPROP | Create Community Property | O'CONNOR, TARA | HOWARD, JOSHUA | | | $0.00 | 10106 | 4331160 |
| 3 | 12/10/2010 | WD | Warranty Deed | RAGER, YOSHIKO | O'CONNOR, TARA | | | $130,000.00 | 3102 | 4286641 |
| 4 | 07/01/1995 | PRD | Personal Representatives Deed | RAGER, EDWARD K | RAGER, YOSHIKO | | | $0.00 | 52398 | 95011079 |
| 5 | 10/01/1984 | WD | Warranty Deed | EKLE, MRS A | RAGER, EDWARD K | | | $35,000.00 | 42942 | 84004134 |
| 6 | 01/01/1900 | OTHER | Other - Misc. Documents | EKLE, ANNA M | EKLE, MRS A | | | $0.00 | 0 | 0 |
| 7 | 01/01/1900 | OTHER | Other - Misc. Documents | Unknown | EKLE, ANNA M | | | $0.00 | 58848 | 0 |
Payout Agreement
| No payout information available.. |