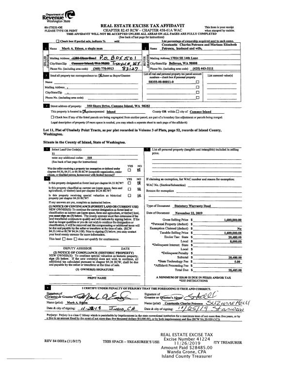
Property
Account |
| Property ID: | 722427 | Abbreviated Legal Description: | UTSA PT TR LOT 11 |
| Geographic ID: | S8355-00-00011-0 | Agent Code: | |
| Type: | Real | | |
| Tax Area: | 510 - APPRAISER-Stan/Cam Schl Dist, improved & 1 acre or less | Land Use Code | 11 |
| Open Space: | N | DFL | N |
| Historic Property: | N | Remodel Property: | N |
| Multi-Family Redevelopment: | N | | |
| Township: | | Section: | |
| Range: | |
Location |
| Address: | 350 SHORE DR CAMANO ISLAND, WA 98282 | Mapsco: | |
| Neighborhood: | North Camano | Map ID: | 550 |
| Neighborhood CD: | 06-C |
Owner |
| Name: | PETRESCU, CONSTANTIN CHARLES | Owner ID: | 292683 |
| Mailing Address: | MARIANA ELIZABETH PETRESCU 350 SHORE DR CAMANO ISLAND, WA 98282 | % Ownership: | 100.0000000000% |
| | | Exemptions: | |
Taxes and Assessment Details
Values
| (+) Improvement Homesite Value: | + | $0 | |
| (+) Improvement Non-Homesite Value: | + | $984,336 | |
| (+) Land Homesite Value: | + | $0 | |
| (+) Land Non-Homesite Value: | + | $1,425,600 | |
| (+) Curr Use (HS): | + | $0 | $0 |
| (+) Curr Use (NHS): | + | $0 | $0 |
| | | -------------------------- | |
| (=) Market Value: | = | $2,409,936 | |
| (–) Productivity Loss: | – | $0 | |
| | | -------------------------- | |
| (=) Subtotal: | = | $2,409,936 | |
| (+) Senior Appraised Value: | + | $0 | |
| (+) Non-Senior Appraised Value: | + | $2,409,936 | |
| | | -------------------------- | |
| (=) Total Appraised Value: | = | $2,409,936 | |
| (–) Senior Exemption Loss: | – | $0 | |
| (–) Exemption Loss: | – | $0 | |
| | | -------------------------- | |
| (=) Taxable Value: | = | $2,409,936 | |
Taxing Jurisdiction
| Owner: | PETRESCU, CONSTANTIN CHARLES | | |
| % Ownership: | 100.0000000000% | | |
| Total Value: | $2,409,936 | | |
| Tax Area: | 510 - APPRAISER-Stan/Cam Schl Dist, improved & 1 acre or less |
| CF | Conservation Futures | 0.0313996660 | $2,409,936 | $2,409,936 | $75.67 | | |
| EMS1 | Fire & Rescue Dist #1 Camano GEN (EMS) | 0.4998471806 | $2,409,936 | $2,409,936 | $1,204.60 | | |
| FIRE1 | Fire & Rescue Dist #1 Camano GEN | 1.2496603404 | $2,409,936 | $2,409,936 | $3,011.60 | | |
| FIRE1BOND | Fire & Rescue Dist #1 Camano BOND | 0.1630371212 | $2,409,936 | $2,409,936 | $392.91 | | |
| CE | County Current Expense | 0.3674210519 | $2,409,936 | $2,409,936 | $885.46 | | |
| CR | County Roads | 0.4614296361 | $2,409,936 | $2,409,936 | $1,112.02 | | |
| LIB | Library Sno-Isle GEN | 0.3039084203 | $2,409,936 | $2,409,936 | $732.40 | | |
| SCH205_401 | School 205-401 Enrichment | 1.3697998934 | $2,409,936 | $2,409,936 | $3,301.13 | | |
| SCH205BOND | School 205-401 BOND | 0.9354199323 | $2,409,936 | $2,409,936 | $2,254.30 | | |
| ST | State School | 1.4761226122 | $2,409,936 | $2,409,936 | $3,557.36 | | |
| ST2 | State School Part 2 | 0.7953803475 | $2,409,936 | $2,409,936 | $1,916.82 | | |
| | Total Tax Rate: | 7.6534262019 | | | | | |
| | | | | Taxes w/Current Exemptions: | $18,444.27 | | |
| | | | | Taxes w/o Exemptions: | $18,444.27 | | |
Improvement / Building
| Improvement #1: | RESIDENTIAL | State Code: | Y | 3192.0 sqft | Value: | $984,336 |
| Bathrooms: | 3.5 | Bedrooms: | 2 | | Ceiling: | DRYWALL PAINTED | Exterior Wall/Cover: | WOOD SIDING | | Floor Covering: | HARDWOOD/CARP 80-20 | Floor Structure: | WOOD W/SUBFLOOR | | Foundation: | CONCRETE | Heating: | FHA GAS | | Interior Finish: | DRYWALL PAINT | Plumbing Fixture Cnt: | 17 | | Roof Slope: | 8" IN 12" | Roof Structure/Cover: | CJ ASPHALT |
|
| | Type | Description | Class CD | Sub Class CD | Year Built | Area |
| | BAS | BASE/MAIN FLOOR | 6 | 0 | 2005 | 2198.4 |
| | DGR | DETACHED GARAGE | 6 | 0 | 2005 | 1120.5 |
| | BIG | BUILT IN GARAGE | 6 | 0 | 2005 | 983.0 |
| | UPS | UPPER STORY | 6 | 0 | 2005 | 993.6 |
| | OWC | OPEN WOOD PORCH W/STEPS/ROOF/C | 6 | 0 | 2005 | 479.7 |
| | OWC | OPEN WOOD PORCH W/STEPS/ROOF/C | 6 | 0 | 2005 | 415.4 |
Sketch
Property Image
Land
| 1 | LB | LOW BANK | 0.0000 | 0.00 | 60.00 | 0.00 | 1.00 | $1,425,000 | $0 |
| 2 | 55 | TIDES | 0.0000 | 0.00 | 60.00 | 0.00 | 1.00 | $600 | $0 |
Roll Value History
| 2026 | N/A | N/A | N/A | N/A | N/A |
| 2025 | $984,336 | $1,425,600 | $0 | $2,409,936 | $2,409,936 |
| 2024 | $992,607 | $1,350,600 | $0 | $2,343,207 | $2,343,207 |
| 2023 | $1,001,430 | $1,275,600 | $0 | $2,277,030 | $2,277,030 |
| 2022 | $898,822 | $1,160,600 | $0 | $2,059,422 | $2,059,422 |
| 2021 | $788,530 | $775,600 | $0 | $1,564,130 | $1,564,130 |
| 2020 | $764,484 | $700,600 | $0 | $1,465,084 | $1,465,084 |
| 2019 | $692,351 | $700,600 | $0 | $1,392,951 | $1,392,951 |
| 2018 | $694,208 | $685,600 | $0 | $1,379,808 | $1,379,808 |
| 2017 | $697,919 | $685,600 | $0 | $1,383,519 | $1,383,519 |
| 2016 | $690,496 | $685,600 | $0 | $1,376,096 | $1,376,096 |
| 2015 | $522,419 | $600,600 | $0 | $1,123,019 | $1,123,019 |
| 2014 | $528,290 | $600,600 | $0 | $1,128,890 | $1,128,890 |
| 2013 | $534,161 | $600,600 | $0 | $1,134,761 | $1,134,761 |
| 2012 | $540,029 | $528,990 | $0 | $1,069,019 | $1,069,019 |
| 2011 | $545,900 | $556,800 | $0 | $1,102,700 | $1,102,700 |
| 2010 | $745,339 | $556,800 | $0 | $1,302,139 | $1,302,139 |
| 2009 | $768,204 | $627,252 | $0 | $1,395,456 | $1,395,456 |
| 2008 | $776,456 | $757,959 | $0 | $1,534,415 | $1,534,415 |
| 2007 | $470,825 | $630,540 | $0 | $1,101,365 | $1,101,365 |
Deed and Sales History
| 1 | 11/22/2019 | WD | Warranty Deed | EDSON, MARK A | PETRESCU, CONSTANTIN CHARLES | | | $1,600,000.00 | 41224 | 4476259 |
| 2 | 01/05/2016 | WD | Warranty Deed | PAYNE, THOMAS E | EDSON, MARK A | | | $1,495,000.00 | 22760 | 4392222 |
| 3 | 08/20/2007 | WD | Warranty Deed | DAVIDSEN, PATRICK C | PAYNE, THOMAS E | | | $1,800,000.00 | 72843 | 4210033 |
| 4 | 08/05/2003 | WD | Warranty Deed | BROOKS, HALLIE M | DAVIDSEN, PATRICK C | | | $500,000.00 | 33481 | 4070194 |
| 5 | 11/01/1980 | PACD | Purchaser's Assignment | BROOKS, GEORGE E | BROOKS, HALLIE M | | | $0.00 | 58959 | 0 |
| 6 | 01/01/1900 | OTHER | Other - Misc. Documents | Unknown | BROOKS, GEORGE E | | | $0.00 | 0 | 0 |
Payout Agreement
| No payout information available.. |