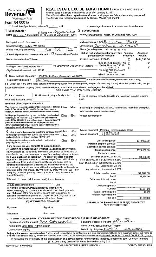
Property
Account |
| Property ID: | 723015 | Abbreviated Legal Description: | HONMN LK 2 LOT 56 |
| Geographic ID: | S7180-02-00056-0 | Agent Code: | |
| Type: | Real | | |
| Tax Area: | 310 - APPRAISER-Cpvl Schl Dist, outside Cpvl, improved & 1 acre or less | Land Use Code | 11 |
| Open Space: | N | DFL | N |
| Historic Property: | N | Remodel Property: | N |
| Multi-Family Redevelopment: | N | | |
| Township: | | Section: | |
| Range: | |
Location |
| Address: | 1095 WORTHY PLACE GREENBANK, WA 98253 | Mapsco: | |
| Neighborhood: | Cycle 3 | Map ID: | 422 |
| Neighborhood CD: | 3 |
Owner |
| Name: | THISSEN, JOSHUA MARKUS | Owner ID: | 307225 |
| Mailing Address: | 1095 WORTHY PL GREENBANK, WA 98253 | % Ownership: | 100.0000000000% |
| | | Exemptions: | |
Taxes and Assessment Details
Values
| (+) Improvement Homesite Value: | + | $0 | |
| (+) Improvement Non-Homesite Value: | + | $244,652 | |
| (+) Land Homesite Value: | + | $0 | |
| (+) Land Non-Homesite Value: | + | $260,000 | |
| (+) Curr Use (HS): | + | $0 | $0 |
| (+) Curr Use (NHS): | + | $0 | $0 |
| | | -------------------------- | |
| (=) Market Value: | = | $504,652 | |
| (–) Productivity Loss: | – | $0 | |
| | | -------------------------- | |
| (=) Subtotal: | = | $504,652 | |
| (+) Senior Appraised Value: | + | $0 | |
| (+) Non-Senior Appraised Value: | + | $504,652 | |
| | | -------------------------- | |
| (=) Total Appraised Value: | = | $504,652 | |
| (–) Senior Exemption Loss: | – | $0 | |
| (–) Exemption Loss: | – | $0 | |
| | | -------------------------- | |
| (=) Taxable Value: | = | $504,652 | |
Taxing Jurisdiction
| Owner: | THISSEN, JOSHUA MARKUS | | |
| % Ownership: | 100.0000000000% | | |
| Total Value: | $504,652 | | |
| Tax Area: | 310 - APPRAISER-Cpvl Schl Dist, outside Cpvl, improved & 1 acre or less |
| CF | Conservation Futures | 0.0313996660 | $504,652 | $504,652 | $15.85 | | |
| CEM2 | Cemetery #2 | 0.0092609791 | $504,652 | $504,652 | $4.67 | | |
| FIRE5 | Fire & Rescue Dist #5 C Whidbey GEN | 1.1892169230 | $504,652 | $504,652 | $600.14 | | |
| FIRE5BOND | Fire & Rescue Dist #5 C Whidbey BOND | 0.1394359503 | $504,652 | $504,652 | $70.37 | | |
| HOBOND | Hospital BOND | 0.1893405597 | $504,652 | $504,652 | $95.55 | | |
| HOGEN | Hospital GEN | 0.3848777722 | $504,652 | $504,652 | $194.23 | | |
| CE | County Current Expense | 0.3674210519 | $504,652 | $504,652 | $185.42 | | |
| CR | County Roads | 0.4614296361 | $504,652 | $504,652 | $232.86 | | |
| ISLANDEMS | Hospital GEN (EMS) | 0.4952018576 | $504,652 | $504,652 | $249.90 | | |
| LIB | Library Sno-Isle GEN | 0.3039084203 | $504,652 | $504,652 | $153.37 | | |
| LIBCAP | Library Sno-Isle BOND (Cap Fac Imp Area) | 0.0528562629 | $504,652 | $504,652 | $26.67 | | |
| POCOUP | Port of Coupeville GEN | 0.1065226063 | $504,652 | $504,652 | $53.76 | | |
| POCOUPIDD | Port of Coupeville IDD | 0.3353038577 | $504,652 | $504,652 | $169.21 | | |
| COUPSDTECH | School 204 CP (TECH) | 0.1215123397 | $504,652 | $504,652 | $61.32 | | |
| SCH204MO | School 204 Enrichment | 0.6416662518 | $504,652 | $504,652 | $323.82 | | |
| ST | State School | 1.4761226122 | $504,652 | $504,652 | $744.93 | | |
| ST2 | State School Part 2 | 0.7953803475 | $504,652 | $504,652 | $401.39 | | |
| | Total Tax Rate: | 7.1008570943 | | | | | |
| | | | | Taxes w/Current Exemptions: | $3,583.46 | | |
| | | | | Taxes w/o Exemptions: | $3,583.46 | | |
Improvement / Building
| Improvement #1: | RESIDENTIAL | State Code: | Y | 1504.0 sqft | Value: | $244,652 |
| Bathrooms: | 1 | Bedrooms: | 2 | | Ceiling: | DRYWALL PAINTED | Exterior Wall/Cover: | VINYL | | Floor Covering: | CARPET/VINYL 80-20 | Floor Structure: | WOOD W/SUBFLOOR | | Foundation: | CONCRETE | Heating: | WALL HEAT ELECTRIC | | Interior Finish: | DRYWALL PAINT | Plumbing Fixture Cnt: | 7 | | Roof Slope: | 5" IN 12" | Roof Structure/Cover: | CJ ASPHALT |
|
| | Type | Description | Class CD | Sub Class CD | Year Built | Area |
| | BAS | BASE/MAIN FLOOR | 3 | 0 | 1990 | 1216.0 |
| | UB8 | BASEMENT UNFINISHED 8" | 3 | 0 | 1990 | 608.0 |
| | DWN | DOWNSTAIRS LIVING AREA | 3 | 0 | 1990 | 288.0 |
| | OWP | OPEN WOOD PORCH W/STEPS | 3 | 0 | 1990 | 72.0 |
| | OWP | OPEN WOOD PORCH W/STEPS | 3 | 0 | 1990 | 152.0 |
| | DGR | DETACHED GARAGE | 3 | 0 | 1990 | 322.0 |
Sketch
Property Image
Land
| 1 | 13 | SQ (06001-08000) | 0.1800 | 7840.80 | 0.00 | 0.00 | 1.00 | $260,000 | $0 |
Roll Value History
| 2026 | N/A | N/A | N/A | N/A | N/A |
| 2025 | $244,652 | $260,000 | $0 | $504,652 | $504,652 |
| 2024 | $247,820 | $230,000 | $0 | $477,820 | $477,820 |
| 2023 | $250,988 | $220,000 | $0 | $470,988 | $470,988 |
| 2022 | $224,391 | $220,000 | $0 | $444,391 | $444,391 |
| 2021 | $201,007 | $150,000 | $0 | $351,007 | $351,007 |
| 2020 | $196,003 | $140,000 | $0 | $336,003 | $336,003 |
| 2019 | $141,021 | $180,000 | $0 | $321,021 | $321,021 |
| 2018 | $141,455 | $140,000 | $0 | $281,455 | $281,455 |
| 2017 | $142,322 | $100,000 | $0 | $242,322 | $242,322 |
| 2016 | $144,058 | $90,000 | $0 | $234,058 | $234,058 |
| 2015 | $145,796 | $90,000 | $0 | $235,796 | $235,796 |
| 2014 | $147,530 | $75,000 | $0 | $222,530 | $222,530 |
| 2013 | $161,768 | $60,000 | $0 | $221,768 | $221,768 |
| 2012 | $163,625 | $60,000 | $0 | $223,625 | $223,625 |
| 2011 | $165,484 | $65,000 | $0 | $230,484 | $230,484 |
| 2010 | $169,294 | $65,000 | $0 | $234,294 | $234,294 |
| 2009 | $176,379 | $82,000 | $0 | $258,379 | $258,379 |
| 2008 | $178,550 | $85,000 | $0 | $263,550 | $263,550 |
| 2007 | $144,827 | $75,000 | $0 | $219,827 | $219,827 |
Deed and Sales History
| 1 | 01/05/2023 | WD | Warranty Deed | ESTATE OF MARLYNE RAY | THISSEN, JOSHUA MARKUS | | | $379,000.00 | 55557 | 4555473 |
| 2 | 11/09/2022 | QCD | Quit Claim Deed | RAY, LARRY | ESTATE OF MARLYNE RAY | | | $0.00 | 55160 | 4553863 |
| 3 | 09/28/2001 | WD | Warranty Deed | WHITE, IRVING L | RAY, LARRY | | | $138,000.00 | 13866 | 20044772 |
| 4 | 06/01/1992 | QCD | Quit Claim Deed | WHITE, IRVING L | WHITE, IRVING L | | | $0.00 | 23037 | 92014768 |
| 5 | 01/01/1990 | WD | Warranty Deed | HONEYMOON, LAKE I | WHITE, IRVING L | | | $8,000.00 | 160 | 90000475 |
| 6 | 01/01/1900 | OTHER | Other - Misc. Documents | Unknown | HONEYMOON, LAKE I | | | $0.00 | 0 | 0 |
Payout Agreement
| No payout information available.. |