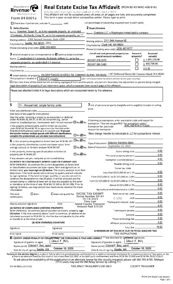
Property
Account |
| Property ID: | 723783 | Abbreviated Legal Description: | LAGOON PT LOT 14 BLK 4 |
| Geographic ID: | S7310-00-04014-0 | Agent Code: | |
| Type: | Real | | |
| Tax Area: | 320 - APPRAISER-Cpvl Schl Dist, Special Dist, improved & less than 1 acre | Land Use Code | 11 |
| Open Space: | N | DFL | N |
| Historic Property: | N | Remodel Property: | N |
| Multi-Family Redevelopment: | N | | |
| Township: | | Section: | |
| Range: | |
Location |
| Address: | 3564 MARINE VIEW DR GREENBANK, WA 98253 | Mapsco: | |
| Neighborhood: | Cycle 3 | Map ID: | 388 |
| Neighborhood CD: | 3 |
Owner |
| Name: | HAIMERL, EDGAR | Owner ID: | 309541 |
| Mailing Address: | ANNETTE REMBOLD 3564 MARINE VIEW DR GREENBANK, WA 98253 | % Ownership: | 100.0000000000% |
| | | Exemptions: | |
Taxes and Assessment Details
Values
| (+) Improvement Homesite Value: | + | $0 | |
| (+) Improvement Non-Homesite Value: | + | $256,889 | |
| (+) Land Homesite Value: | + | $0 | |
| (+) Land Non-Homesite Value: | + | $570,000 | |
| (+) Curr Use (HS): | + | $0 | $0 |
| (+) Curr Use (NHS): | + | $0 | $0 |
| | | -------------------------- | |
| (=) Market Value: | = | $826,889 | |
| (–) Productivity Loss: | – | $0 | |
| | | -------------------------- | |
| (=) Subtotal: | = | $826,889 | |
| (+) Senior Appraised Value: | + | $0 | |
| (+) Non-Senior Appraised Value: | + | $826,889 | |
| | | -------------------------- | |
| (=) Total Appraised Value: | = | $826,889 | |
| (–) Senior Exemption Loss: | – | $0 | |
| (–) Exemption Loss: | – | $0 | |
| | | -------------------------- | |
| (=) Taxable Value: | = | $826,889 | |
Taxing Jurisdiction
| Owner: | HAIMERL, EDGAR | | |
| % Ownership: | 100.0000000000% | | |
| Total Value: | $826,889 | | |
| Tax Area: | 320 - APPRAISER-Cpvl Schl Dist, Special Dist, improved & less than 1 acre |
| CF | Conservation Futures | 0.0313996660 | $826,889 | $826,889 | $25.96 | | |
| CEM2 | Cemetery #2 | 0.0092609791 | $826,889 | $826,889 | $7.66 | | |
| FIRE5 | Fire & Rescue Dist #5 C Whidbey GEN | 1.1892169230 | $826,889 | $826,889 | $983.35 | | |
| FIRE5BOND | Fire & Rescue Dist #5 C Whidbey BOND | 0.1394359503 | $826,889 | $826,889 | $115.30 | | |
| HOBOND | Hospital BOND | 0.1893405597 | $826,889 | $826,889 | $156.56 | | |
| HOGEN | Hospital GEN | 0.3848777722 | $826,889 | $826,889 | $318.25 | | |
| CE | County Current Expense | 0.3674210519 | $826,889 | $826,889 | $303.82 | | |
| CR | County Roads | 0.4614296361 | $826,889 | $826,889 | $381.55 | | |
| ISLANDEMS | Hospital GEN (EMS) | 0.4952018576 | $826,889 | $826,889 | $409.48 | | |
| LIB | Library Sno-Isle GEN | 0.3039084203 | $826,889 | $826,889 | $251.30 | | |
| LIBCAP | Library Sno-Isle BOND (Cap Fac Imp Area) | 0.0528562629 | $826,889 | $826,889 | $43.71 | | |
| POCOUP | Port of Coupeville GEN | 0.1065226063 | $826,889 | $826,889 | $88.08 | | |
| POCOUPIDD | Port of Coupeville IDD | 0.3353038577 | $826,889 | $826,889 | $277.26 | | |
| COUPSDTECH | School 204 CP (TECH) | 0.1215123397 | $826,889 | $826,889 | $100.48 | | |
| SCH204MO | School 204 Enrichment | 0.6416662518 | $826,889 | $826,889 | $530.59 | | |
| ST | State School | 1.4761226122 | $826,889 | $826,889 | $1,220.59 | | |
| ST2 | State School Part 2 | 0.7953803475 | $826,889 | $826,889 | $657.69 | | |
| | Total Tax Rate: | 7.1008570943 | | | | | |
| | | | | Taxes w/Current Exemptions: | $5,871.63 | | |
| | | | | Taxes w/o Exemptions: | $5,871.63 | | |
Improvement / Building
| Improvement #1: | RESIDENTIAL | State Code: | Y | 1812.0 sqft | Value: | $256,889 |
| Bathrooms: | 2 | Bedrooms: | 2 | | Ceiling: | DRY WALL SPRAYED | Cooling: | HEAT PUMP/CONV/V | | Exterior Wall/Cover: | PLY/HARDBOARD T-111 | Floor Covering: | CARPET/VINYL 80-20 | | Floor Structure: | WOOD W/SUBFLOOR | Foundation: | CONCRETE BLOCKS | | Interior Finish: | DRYWALL PAINT | Plumbing Fixture Cnt: | 9 | | Roof Slope: | 4" IN 12" | Roof Structure/Cover: | CJ ASPHALT |
|
| | Type | Description | Class CD | Sub Class CD | Year Built | Area |
| | BAS | BASE/MAIN FLOOR | 3 | 0 | 1967 | 976.0 |
| | OWC | OPEN WOOD PORCH W/STEPS/ROOF/C | 3 | 0 | 1967 | 120.0 |
| | DWN | DOWNSTAIRS LIVING AREA | 3 | 0 | 1967 | 836.0 |
| | AGR | ATTACHED GARAGE | 3 | 0 | 1967 | 460.0 |
| | OWP | OPEN WOOD PORCH W/STEPS | 3 | 0 | 1967 | 272.0 |
| | UTY | STORAGE/UTILITY | 3 | 0 | 1967 | 96.0 |
| | UB8 | BASEMENT UNFINISHED 8" | 3 | 0 | 1967 | 140.0 |
Sketch
Property Image
Land
| 1 | 15 | SQ (12001-21780) | 0.0000 | 0.00 | 0.00 | 0.00 | 1.00 | $570,000 | $0 |
Roll Value History
| 2026 | N/A | N/A | N/A | N/A | N/A |
| 2025 | $256,889 | $570,000 | $0 | $826,889 | $826,889 |
| 2024 | $260,302 | $570,000 | $0 | $830,302 | $830,302 |
| 2023 | $263,716 | $570,000 | $0 | $833,716 | $833,716 |
| 2022 | $241,895 | $520,000 | $0 | $761,895 | $761,895 |
| 2021 | $213,030 | $260,000 | $0 | $473,030 | $473,030 |
| 2020 | $207,899 | $260,000 | $0 | $467,899 | $467,899 |
| 2019 | $162,163 | $220,000 | $0 | $382,163 | $382,163 |
| 2018 | $162,688 | $190,000 | $0 | $352,688 | $352,688 |
| 2017 | $104,825 | $150,000 | $0 | $254,825 | $254,825 |
| 2016 | $106,665 | $150,000 | $0 | $256,665 | $256,665 |
| 2015 | $108,503 | $150,000 | $0 | $258,503 | $258,503 |
| 2014 | $110,341 | $153,000 | $0 | $263,341 | $263,341 |
| 2013 | $103,513 | $153,000 | $0 | $256,513 | $256,513 |
| 2012 | $105,354 | $153,000 | $0 | $258,354 | $258,354 |
| 2011 | $107,198 | $180,000 | $0 | $287,198 | $287,198 |
| 2010 | $118,593 | $180,000 | $0 | $298,593 | $298,593 |
| 2009 | $123,992 | $240,000 | $0 | $363,992 | $363,992 |
| 2008 | $125,842 | $260,000 | $0 | $385,842 | $385,842 |
| 2007 | $118,334 | $250,000 | $0 | $368,334 | $368,334 |
Deed and Sales History
| 1 | 07/24/2023 | WD | Warranty Deed | KING, JANET MARIE | HAIMERL, EDGAR | | | $760,000.00 | 57521 | 4563074 |
| 2 | 08/26/2021 | QCD | Quit Claim Deed | KING, STEVEN E | KING, JANET MARIE | | | $0.00 | 49813 | 4527875 |
| 3 | 08/02/2017 | WD | Warranty Deed | JOHNSON, DON | KING, STEVEN E | | | $465,000.00 | 30501 | 4427616 |
| 4 | 04/17/2017 | QCD | Quit Claim Deed | JOHNSON, DON A | JOHNSON, DON | | | $0.00 | 30291 | 4426745 |
| 5 | 06/04/2003 | WD | Warranty Deed | BENNETT, BRIAN R | JOHNSON, DON A | | | $232,000.00 | 32505 | 4062806 |
| 6 | 06/23/1998 | WD | Warranty Deed | LANGLOIS, DOROTHY M | BENNETT, BRIAN R | | | $187,000.00 | 82496 | 98013001 |
| 7 | 07/01/1993 | QCD | Quit Claim Deed | LANGLOIS, RAOUL | LANGLOIS, DOROTHY M | | | $0.00 | 33179 | 93016969 |
| 8 | 01/01/1900 | OTHER | Other - Misc. Documents | Unknown | LANGLOIS, RAOUL | | | $0.00 | 0 | 0 |
Payout Agreement
| No payout information available.. |