Property
Account |
| Property ID: | 725326 | Abbreviated Legal Description: | LOST LK GRV 1 LOT 25 BLK 1 |
| Geographic ID: | S7410-00-01025-0 | Agent Code: | |
| Type: | Real | | |
| Tax Area: | 510 - APPRAISER-Stan/Cam Schl Dist, improved & 1 acre or less | Land Use Code | 11 |
| Open Space: | N | DFL | N |
| Historic Property: | N | Remodel Property: | N |
| Multi-Family Redevelopment: | N | | |
| Township: | | Section: | |
| Range: | |
Location |
| Address: | | Mapsco: | |
| Neighborhood: | Cycle 5 | Map ID: | 505 |
| Neighborhood CD: | 5 |
Owner |
| Name: | SB HOMES 24, LLC | Owner ID: | 315926 |
| Mailing Address: | 4614 144TH PL SE SNOHOMISH, WA 98296 | % Ownership: | 100.0000000000% |
| | | Exemptions: | |
Taxes and Assessment Details
Values
| (+) Improvement Homesite Value: | + | $0 | |
| (+) Improvement Non-Homesite Value: | + | $11,728 | |
| (+) Land Homesite Value: | + | $0 | |
| (+) Land Non-Homesite Value: | + | $250,000 | |
| (+) Curr Use (HS): | + | $0 | $0 |
| (+) Curr Use (NHS): | + | $0 | $0 |
| | | -------------------------- | |
| (=) Market Value: | = | $261,728 | |
| (–) Productivity Loss: | – | $0 | |
| | | -------------------------- | |
| (=) Subtotal: | = | $261,728 | |
| (+) Senior Appraised Value: | + | $0 | |
| (+) Non-Senior Appraised Value: | + | $261,728 | |
| | | -------------------------- | |
| (=) Total Appraised Value: | = | $261,728 | |
| (–) Senior Exemption Loss: | – | $0 | |
| (–) Exemption Loss: | – | $0 | |
| | | -------------------------- | |
| (=) Taxable Value: | = | $261,728 | |
Taxing Jurisdiction
| Owner: | SB HOMES 24, LLC | | |
| % Ownership: | 100.0000000000% | | |
| Total Value: | $261,728 | | |
| Tax Area: | 510 - APPRAISER-Stan/Cam Schl Dist, improved & 1 acre or less |
| CF | Conservation Futures | 0.0313996660 | $261,728 | $261,728 | $8.22 | | |
| EMS1 | Fire & Rescue Dist #1 Camano GEN (EMS) | 0.4998471806 | $261,728 | $261,728 | $130.82 | | |
| FIRE1 | Fire & Rescue Dist #1 Camano GEN | 1.2496603404 | $261,728 | $261,728 | $327.07 | | |
| FIRE1BOND | Fire & Rescue Dist #1 Camano BOND | 0.1630371212 | $261,728 | $261,728 | $42.67 | | |
| CE | County Current Expense | 0.3674210519 | $261,728 | $261,728 | $96.16 | | |
| CR | County Roads | 0.4614296361 | $261,728 | $261,728 | $120.77 | | |
| LIB | Library Sno-Isle GEN | 0.3039084203 | $261,728 | $261,728 | $79.54 | | |
| SCH205_401 | School 205-401 Enrichment | 1.3697998934 | $261,728 | $261,728 | $358.51 | | |
| SCH205BOND | School 205-401 BOND | 0.9354199323 | $261,728 | $261,728 | $244.83 | | |
| ST | State School | 1.4761226122 | $261,728 | $261,728 | $386.34 | | |
| ST2 | State School Part 2 | 0.7953803475 | $261,728 | $261,728 | $208.17 | | |
| | Total Tax Rate: | 7.6534262019 | | | | | |
| | | | | Taxes w/Current Exemptions: | $2,003.10 | | |
| | | | | Taxes w/o Exemptions: | $2,003.10 | | |
Improvement / Building
| Improvement #1: | MANUFACTURED HOME | State Code: | Y | 1404.0 sqft | Value: | $11,728 |
| Bathrooms: | 0 | Bedrooms: | 0 | | Ceiling: | PLASTER PAINTED | Cooling: | EVAP NO DUCT | | Exterior Wall/Cover: | VINYL | Floor Covering: | CARPET 100% | | Floor Structure: | SLAB ON GRADE | Foundation: | SLAB | | Heating: | FHA ELECTRIC | Interior Finish: | PLASTER | | Plumbing Fixture Cnt: | 1 | Roof Slope: | FLAT | | Roof Structure/Cover: | CJ ALUMINIUM HEAVY |   |   |
|
| | Type | Description | Class CD | Sub Class CD | Year Built | Area |
| | BAS | BASE/MAIN FLOOR | 4 | 0 | 1986 | 1404.0 |
| | OWP | OPEN WOOD PORCH W/STEPS | 4 | 0 | 1986 | 396.0 |
Sketch
| No sketches available for this property. |
Property Image
Land
| 1 | 15 | SQ (12001-21780) | 0.0000 | 0.00 | 0.00 | 0.00 | 1.00 | $250,000 | $0 |
Roll Value History
| 2026 | N/A | N/A | N/A | N/A | N/A |
| 2025 | $11,728 | $250,000 | $0 | $261,728 | $261,728 |
| 2024 | $56,788 | $240,000 | $0 | $296,788 | $296,788 |
| 2023 | $53,613 | $240,000 | $0 | $293,613 | $293,613 |
| 2022 | $51,105 | $210,000 | $0 | $261,105 | $261,105 |
| 2021 | $35,334 | $170,000 | $0 | $205,334 | $205,334 |
| 2020 | $36,110 | $130,000 | $0 | $166,110 | $166,110 |
| 2019 | $29,861 | $150,000 | $0 | $179,861 | $179,861 |
| 2018 | $31,283 | $125,000 | $0 | $156,283 | $156,283 |
| 2017 | $32,705 | $90,000 | $0 | $122,705 | $122,705 |
| 2016 | $34,127 | $75,000 | $0 | $109,127 | $109,127 |
| 2015 | $39,451 | $52,000 | $0 | $91,451 | $91,451 |
| 2014 | $40,672 | $52,000 | $0 | $92,672 | $92,672 |
| 2013 | $41,893 | $52,000 | $0 | $93,893 | $93,893 |
| 2012 | $43,113 | $52,000 | $0 | $95,113 | $95,113 |
| 2011 | $44,944 | $65,000 | $0 | $109,944 | $109,944 |
| 2010 | $40,926 | $84,000 | $0 | $124,926 | $124,926 |
| 2009 | $39,103 | $90,000 | $0 | $129,103 | $129,103 |
| 2008 | $40,421 | $90,000 | $0 | $130,421 | $130,421 |
| 2007 | $41,739 | $90,000 | $0 | $131,739 | $131,739 |
Deed and Sales History
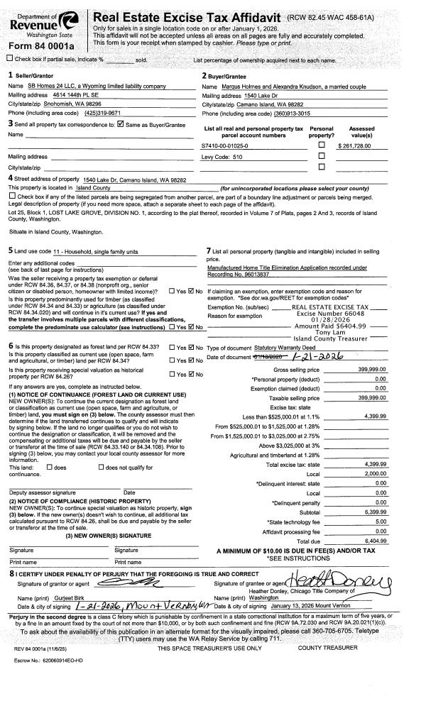
| 1 | 01/21/2026 | WD | Warranty Deed | SB HOMES 24, LLC | HOLMES, MARGUS | | | $399,999.00 | 66048 | 4596179 |
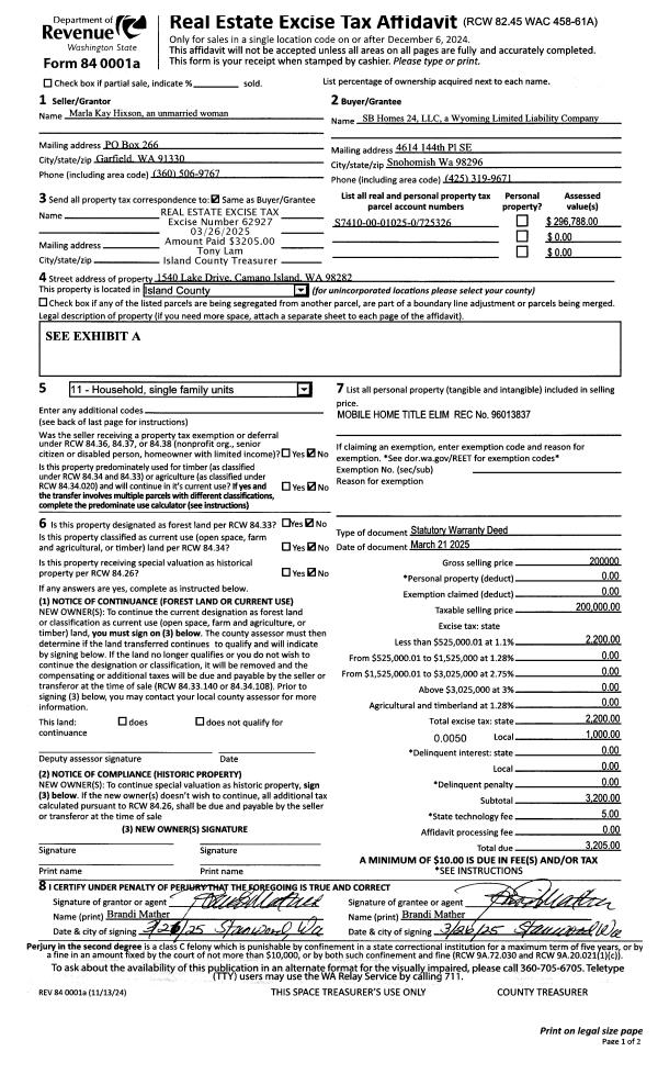
| 2 | 03/21/2025 | WD | Warranty Deed | HIXSON, MARLA KAY | SB HOMES 24, LLC | | | $200,000.00 | 62927 | 4583672 |
| 3 | 01/02/2002 | ESTSEPPROP | Establish Separate Property | O'MARA, SHIRLEY J | HIXSON, MARLA KAY | | | $23,996.00 | 20062 | 4007527 |
| 4 | 10/25/2001 | QCD | Quit Claim Deed | O'MARA, SHIRLEY J | O'MARA, SHIRLEY J | | | $0.00 | 14229 | 4001711 |
| 5 | 08/01/1996 | OTHER | Other - Misc. Documents | Unknown | O'MARA, SHIRLEY J | | | $0.00 | 62700 | 0 |
| 6 | 01/01/1990 | WD | Warranty Deed | COX, BETLEIGH C | O'MARA, SHIRLEY J | | | $22,325.00 | 101 | 90000267 |
| 7 | 04/01/1986 | WD | Warranty Deed | SCHUPPENHAUER, HARRY J | COX, BETLEIGH C | | | $8,000.00 | 60875 | 86004068 |
| 8 | 05/01/1980 | EXECUTORD | Executor Deed | ROBERTSON, ROBERT S | SCHUPPENHAUER, HARRY J | | | $8,000.00 | 1878 | 369479 |
| 9 | 01/01/1900 | OTHER | Other - Misc. Documents | O'MARA, SHIRLEY J | ROBERTSON, ROBERT S | | | $0.00 | 0 | 0 |
Payout Agreement
| No payout information available.. |