Property
Account |
| Property ID: | 726076 | Abbreviated Legal Description: | MADRONA BCH 2ND LOTS 69 & 70 TGW E/2 ADJ VAC VINE ST COMM PRO 11/38 |
| Geographic ID: | S7440-02-00069-0 | Agent Code: | |
| Type: | Real | | |
| Tax Area: | 510 - APPRAISER-Stan/Cam Schl Dist, improved & 1 acre or less | Land Use Code | 11 |
| Open Space: | N | DFL | N |
| Historic Property: | N | Remodel Property: | N |
| Multi-Family Redevelopment: | N | | |
| Township: | | Section: | |
| Range: | |
Location |
| Address: | | Mapsco: | |
| Neighborhood: | North Camano | Map ID: | 573 |
| Neighborhood CD: | 06-C |
Owner |
| Name: | HAHN, KATHLEEN L | Owner ID: | 289413 |
| Mailing Address: | 159 TARRAGON AVE CAMANO ISLAND, WA 98282 | % Ownership: | 100.0000000000% |
| | | Exemptions: | |
Taxes and Assessment Details
Values
| (+) Improvement Homesite Value: | + | N/A | |
| (+) Improvement Non-Homesite Value: | + | N/A | |
| (+) Land Homesite Value: | + | N/A | |
| (+) Land Non-Homesite Value: | + | N/A | Ag / Timber Use Value |
| (+) Curr Use (HS): | + | N/A | N/A |
| (+) Curr Use (NHS): | + | N/A | N/A |
| | | -------------------------- | |
| (=) Market Value: | = | N/A | |
| (–) Productivity Loss: | – | N/A | |
| | | -------------------------- | |
| (=) Subtotal: | = | N/A | |
| (+) Senior Appraised Value: | + | N/A | |
| (+) Non-Senior Appraised Value: | + | N/A | |
| | | -------------------------- | |
| (=) Total Appraised Value: | = | N/A | |
| (–) Senior Exemption Loss: | – | N/A | |
| (–) Exemption Loss: | – | N/A | |
| | | -------------------------- | |
| (=) Taxable Value: | = | N/A | |
Taxing Jurisdiction
| Owner: | HAHN, KATHLEEN L | | |
| % Ownership: | 100.0000000000% | | |
| Total Value: | N/A | | |
| Tax Area: | 510 - APPRAISER-Stan/Cam Schl Dist, improved & 1 acre or less |
| CF | Conservation Futures | N/A | N/A | N/A | N/A | | |
| CCD | Camano Conservation District | N/A | N/A | N/A | N/A | | |
| EMS1 | Fire & Rescue Dist #1 Camano GEN (EMS) | N/A | N/A | N/A | N/A | | |
| FIRE1 | Fire & Rescue Dist #1 Camano GEN | N/A | N/A | N/A | N/A | | |
| FIRE1BOND | Fire & Rescue Dist #1 Camano BOND | N/A | N/A | N/A | N/A | | |
| CE | County Current Expense | N/A | N/A | N/A | N/A | | |
| CR | County Roads | N/A | N/A | N/A | N/A | | |
| LCIB | Library Sno-Isle BOND (Camano Island) | N/A | N/A | N/A | N/A | | |
| LIB | Library Sno-Isle GEN | N/A | N/A | N/A | N/A | | |
| SCH205_401 | School 205-401 Enrichment | N/A | N/A | N/A | N/A | | |
| SCH205BOND | School 205-401 BOND | N/A | N/A | N/A | N/A | | |
| ST | State School | N/A | N/A | N/A | N/A | | |
| ST2 | State School Part 2 | N/A | N/A | N/A | N/A | | |
| | Total Tax Rate: | N/A | | | | | |
| | | | | Taxes w/Current Exemptions: | N/A | | |
| | | | | Taxes w/o Exemptions: | N/A | | |
Improvement / Building
| Improvement #1: | RESIDENTIAL | State Code: | Y | 834.0 sqft | Value: | N/A |
| Bathrooms: | 1 | Bedrooms: | 2 | | Ceiling: | ACOUSTIC FURRED | Cooling: | HEAT PUMP/CONV/V | | Exterior Wall/Cover: | WOOD SIDING | Floor Covering: | VINYL/HARDWOOD 60-40 | | Floor Structure: | WOOD W/SUBFLOOR | Foundation: | CONCRETE | | Interior Finish: | DRYWALL PAINT | Plumbing Fixture Cnt: | 6 | | Roof Slope: | 5" IN 12" | Roof Structure/Cover: | CJ ASPHALT |
|
| | Type | Description | Class CD | Sub Class CD | Year Built | Area |
| | BAS | BASE/MAIN FLOOR | 3 | 0 | 1958 | 834.0 |
| | OP3 | OPEN PORCH W/ROOF | 3 | 0 | 1958 | 286.0 |
| | OP3 | OPEN PORCH W/ROOF | 3 | 0 | 1958 | 32.0 |
| | OP4 | OPEN PORCH W/CEILING-ROOF | 3 | 0 | 1958 | 19.8 |
| | ENP | ENCLOSED PORCH | 3 | 0 | 1958 | 130.7 |
| | DGR | DETACHED GARAGE | 3 | 0 | 1958 | 624.0 |
| | OCP | OPEN CARPORT | 3 | 0 | 1958 | 576.0 |
Sketch
Property Image
Land
| 1 | 12 | SQ (00000-06000) | 0.0000 | 0.00 | 0.00 | 0.00 | 1.00 | N/A | N/A |
| 2 | 12 | SQ (00000-06000) | 0.0000 | 0.00 | 0.00 | 0.00 | 1.00 | N/A | N/A |
Roll Value History
| 2026 | N/A | N/A | N/A | N/A | N/A |
| 2025 | $167,658 | $172,000 | $0 | $339,658 | $339,658 |
| 2024 | $169,887 | $172,000 | $0 | $341,887 | $341,887 |
| 2023 | $172,115 | $167,000 | $0 | $339,115 | $339,115 |
| 2022 | $119,687 | $167,000 | $0 | $286,687 | $286,687 |
| 2021 | $105,721 | $167,000 | $0 | $272,721 | $272,721 |
| 2020 | $103,258 | $167,000 | $0 | $270,258 | $270,258 |
| 2019 | $72,756 | $177,000 | $0 | $249,756 | $249,756 |
| 2018 | $73,032 | $147,000 | $0 | $220,032 | $220,032 |
| 2017 | $73,366 | $180,000 | $0 | $253,366 | $253,366 |
| 2016 | $36,152 | $140,000 | $0 | $176,152 | $176,152 |
| 2015 | $36,843 | $95,616 | $0 | $132,459 | $132,459 |
| 2014 | $37,535 | $95,616 | $0 | $133,151 | $133,151 |
| 2013 | $38,229 | $95,616 | $0 | $133,845 | $133,845 |
| 2012 | $38,921 | $95,616 | $0 | $134,537 | $134,537 |
| 2011 | $39,614 | $119,520 | $0 | $159,134 | $159,134 |
| 2010 | $44,729 | $119,520 | $0 | $164,249 | $164,249 |
| 2009 | $45,851 | $120,000 | $0 | $165,851 | $165,851 |
| 2008 | $46,074 | $120,000 | $0 | $166,074 | $166,074 |
| 2007 | $47,286 | $100,000 | $0 | $147,286 | $147,286 |
Deed and Sales History
| 1 | 04/23/2019 | WD | Warranty Deed | BROCKER, ERIC | HAHN, KATHLEEN L | | | $305,000.00 | 38142 | 4461720 |
|   | |
| 2 | 07/25/2017 | WD | Warranty Deed | SHELLENBERGER JTWROS, DAVID S | BROCKER, ERIC | | | $277,000.00 | 30443 | 4427349 |
|   | |
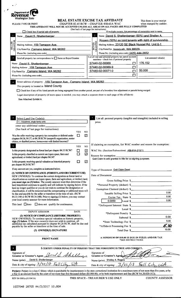
| 3 | 03/22/2017 | QCD | Quit Claim Deed | SHELLENBERGER, DAVID S | SHELLENBERGER JTWROS, DAVID S | | | $0.00 | 28705 | 4420031 |
| 4 | 05/01/2001 | WD | Warranty Deed | BADGLEY, DORIS S | SHELLENBERGER, DAVID S | | | $78,250.00 | 11537 | 20031309 |
| 5 | 05/01/1990 | OTHER | Other - Misc. Documents | BADGLEY, C F | BADGLEY, DORIS S | | | $0.00 | 63633 | 90006083 |
| 6 | 01/01/1900 | OTHER | Other - Misc. Documents | Unknown | BADGLEY, C F | | | $0.00 | 0 | 0 |
Payout Agreement
| No payout information available.. |