Property
Account |
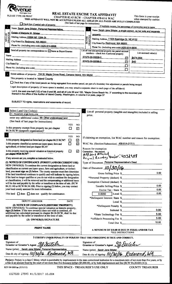
| Property ID: | 726110 | Abbreviated Legal Description: | MAPLE GRV BCH 3 LOT 8 & E/2 OF LOT 9 |
| Geographic ID: | S7470-30-00008-0 | Agent Code: | |
| Type: | Real | | |
| Tax Area: | 510 - APPRAISER-Stan/Cam Schl Dist, improved & 1 acre or less | Land Use Code | 11 |
| Open Space: | N | DFL | N |
| Historic Property: | N | Remodel Property: | N |
| Multi-Family Redevelopment: | N | | |
| Township: | | Section: | |
| Range: | |
Location |
| Address: | | Mapsco: | |
| Neighborhood: | North Camano | Map ID: | 556 |
| Neighborhood CD: | 06-C |
Owner |
| Name: | STITELER, SARAH JANE | Owner ID: | 260836 |
| Mailing Address: | 1376 COUNTRY CLUB DR CAMANO ISLAND, WA 98282 | % Ownership: | 100.0000000000% |
| | | Exemptions: | |
Taxes and Assessment Details
Values
| (+) Improvement Homesite Value: | + | $0 | |
| (+) Improvement Non-Homesite Value: | + | $152,156 | |
| (+) Land Homesite Value: | + | $0 | |
| (+) Land Non-Homesite Value: | + | $1,000,000 | |
| (+) Curr Use (HS): | + | $0 | $0 |
| (+) Curr Use (NHS): | + | $0 | $0 |
| | | -------------------------- | |
| (=) Market Value: | = | $1,152,156 | |
| (–) Productivity Loss: | – | $0 | |
| | | -------------------------- | |
| (=) Subtotal: | = | $1,152,156 | |
| (+) Senior Appraised Value: | + | $0 | |
| (+) Non-Senior Appraised Value: | + | $1,152,156 | |
| | | -------------------------- | |
| (=) Total Appraised Value: | = | $1,152,156 | |
| (–) Senior Exemption Loss: | – | $0 | |
| (–) Exemption Loss: | – | $0 | |
| | | -------------------------- | |
| (=) Taxable Value: | = | $1,152,156 | |
Taxing Jurisdiction
| Owner: | STITELER, SARAH JANE | | |
| % Ownership: | 100.0000000000% | | |
| Total Value: | $1,152,156 | | |
| Tax Area: | 510 - APPRAISER-Stan/Cam Schl Dist, improved & 1 acre or less |
| CF | Conservation Futures | 0.0313996660 | $1,152,156 | $1,152,156 | $36.18 | | |
| EMS1 | Fire & Rescue Dist #1 Camano GEN (EMS) | 0.4998471806 | $1,152,156 | $1,152,156 | $575.90 | | |
| FIRE1 | Fire & Rescue Dist #1 Camano GEN | 1.2496603404 | $1,152,156 | $1,152,156 | $1,439.80 | | |
| FIRE1BOND | Fire & Rescue Dist #1 Camano BOND | 0.1630371212 | $1,152,156 | $1,152,156 | $187.84 | | |
| CE | County Current Expense | 0.3674210519 | $1,152,156 | $1,152,156 | $423.33 | | |
| CR | County Roads | 0.4614296361 | $1,152,156 | $1,152,156 | $531.64 | | |
| LIB | Library Sno-Isle GEN | 0.3039084203 | $1,152,156 | $1,152,156 | $350.15 | | |
| SCH205_401 | School 205-401 Enrichment | 1.3697998934 | $1,152,156 | $1,152,156 | $1,578.22 | | |
| SCH205BOND | School 205-401 BOND | 0.9354199323 | $1,152,156 | $1,152,156 | $1,077.75 | | |
| ST | State School | 1.4761226122 | $1,152,156 | $1,152,156 | $1,700.72 | | |
| ST2 | State School Part 2 | 0.7953803475 | $1,152,156 | $1,152,156 | $916.40 | | |
| | Total Tax Rate: | 7.6534262019 | | | | | |
| | | | | Taxes w/Current Exemptions: | $8,817.93 | | |
| | | | | Taxes w/o Exemptions: | $8,817.93 | | |
Improvement / Building
| Improvement #1: | RESIDENTIAL | State Code: | Y | 1140.0 sqft | Value: | $152,156 |
| Bathrooms: | 2 | Bedrooms: | 1 | | Ceiling: | DRYWALL PAINTED | Exterior Wall/Cover: | LOG TO 10" | | Floor Covering: | CARPET/VINYL 80-20 | Floor Structure: | WOOD W/SUBFLOOR | | Foundation: | CONCRETE BLOCKS | Heating: | BASEBOARD ELECTRIC | | Interior Finish: | DRYWALL PAINT | Plumbing Fixture Cnt: | 9 | | Roof Slope: | 5" IN 12" | Roof Structure/Cover: | CJ ASPHALT |
|
| | Type | Description | Class CD | Sub Class CD | Year Built | Area |
| | BAS | BASE/MAIN FLOOR | 3 | 0 | 1934 | 1140.0 |
| | OCP | OPEN CARPORT | 3 | 0 | 1934 | 264.0 |
| | OWP | OPEN WOOD PORCH W/STEPS | 3 | 0 | 1934 | 72.0 |
| | OWP | OPEN WOOD PORCH W/STEPS | 3 | 0 | 1934 | 224.0 |
| | OWC | OPEN WOOD PORCH W/STEPS/ROOF/C | 3 | 0 | 1934 | 96.0 |
Sketch
Property Image
Land
| 1 | LB | LOW BANK | 0.0000 | 0.00 | 61.00 | 0.00 | 1.00 | $1,000,000 | $0 |
Roll Value History
| 2026 | N/A | N/A | N/A | N/A | N/A |
| 2025 | $152,156 | $1,000,000 | $0 | $1,152,156 | $1,152,156 |
| 2024 | $158,530 | $925,000 | $0 | $1,083,530 | $1,083,530 |
| 2023 | $161,348 | $850,000 | $0 | $1,011,348 | $1,011,348 |
| 2022 | $147,197 | $775,000 | $0 | $922,197 | $922,197 |
| 2021 | $130,280 | $525,000 | $0 | $655,280 | $655,280 |
| 2020 | $127,451 | $475,000 | $0 | $602,451 | $602,451 |
| 2019 | $90,283 | $475,000 | $0 | $565,283 | $565,283 |
| 2018 | $90,665 | $400,000 | $0 | $490,665 | $490,665 |
| 2017 | $91,426 | $400,000 | $0 | $491,426 | $491,426 |
| 2016 | $73,464 | $400,000 | $0 | $473,464 | $473,464 |
| 2015 | $74,994 | $400,000 | $0 | $474,994 | $474,994 |
| 2014 | $76,526 | $400,000 | $0 | $476,526 | $476,526 |
| 2013 | $78,055 | $400,000 | $0 | $478,055 | $478,055 |
| 2012 | $79,585 | $537,197 | $0 | $616,782 | $616,782 |
| 2011 | $81,117 | $565,470 | $0 | $646,587 | $646,587 |
| 2010 | $94,541 | $565,470 | $0 | $660,011 | $289,160 |
| 2009 | $97,408 | $637,096 | $0 | $734,504 | $143,664 |
| 2008 | $95,591 | $773,418 | $0 | $869,009 | $359,159 |
| 2007 | $103,812 | $637,702 | $0 | $741,514 | $289,159 |
Deed and Sales History
| 1 | 10/30/2016 | PRD | Personal Representatives Deed | STITELER, SARAH JANE | STITELER, SARAH JANE | | | $0.00 | 27593 | 4414504 |
| 2 | 12/05/2012 | PRD | Personal Representatives Deed | STITELER, MARJORIE W | STITELER, SARAH JANE | | | $0.00 | 10253 | 4332988 |
| 3 | 11/01/1987 | OTHER | Other - Misc. Documents | STITELER, ROBERT B | STITELER, MARJORIE W | | | $0.00 | 62432 | 0 |
Payout Agreement
| No payout information available.. |