| 1 | 12/10/2021 | WD | Warranty Deed | MAYLOR, DENNIS L | COPPERTOP CONSTRUCTION & MAINTENANCE LLC | | | $0.00 | 51553 | 4537122 |
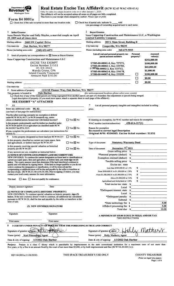
| 2 | 12/10/2021 | WD | Warranty Deed | MAYLOR, DENNIS | COPPERTOP CONSTRUCTION & MAINTENANCE LLC | | | $350,000.00 | 51351 | 4536085 |
|   | |
| 3 | 04/29/2009 | PRD | Personal Representatives Deed | MAYLOR, MARY | MAYLOR, DENNIS | | | $0.00 | 90972 | 4250373 |
| 4 | 08/01/1994 | PRD | Personal Representatives Deed | MAYLOR, MARY | MAYLOR, MARY | | | $0.00 | 43185 | 94017178 |
| 5 | 08/01/1994 | PRD | Personal Representatives Deed | MAYLOR, RANDOLPH | MAYLOR, MARY | | | $0.00 | 43859 | 94020034 |
| 6 | 01/01/1900 | OTHER | Other - Misc. Documents | Unknown | MAYLOR, RANDOLPH | | | $0.00 | 0 | 0 |