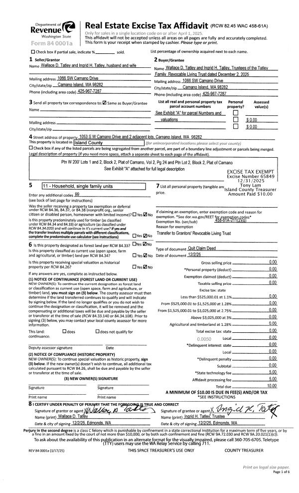
Property
Account |
| Property ID: | 727388 | Abbreviated Legal Description: | CAMANO W200' OF LOT 2 BLK 2 EX RDS FR 02001-0 11/95 |
| Geographic ID: | S6240-00-02002-1 | Agent Code: | |
| Type: | Real | | |
| Tax Area: | 510 - APPRAISER-Stan/Cam Schl Dist, improved & 1 acre or less | Land Use Code | 11 |
| Open Space: | N | DFL | N |
| Historic Property: | N | Remodel Property: | N |
| Multi-Family Redevelopment: | N | | |
| Township: | | Section: | |
| Range: | |
Location |
| Address: | | Mapsco: | |
| Neighborhood: | Cycle 5 | Map ID: | 485 |
| Neighborhood CD: | 5 |
Owner |
| Name: | TATLEY, WALLACE D | Owner ID: | 40905 |
| Mailing Address: | 1066 SW CAMANO DR CAMANO ISLAND, WA 98282 | % Ownership: | 100.0000000000% |
| | | Exemptions: | |
Taxes and Assessment Details
Values
| (+) Improvement Homesite Value: | + | $0 | |
| (+) Improvement Non-Homesite Value: | + | $47,120 | |
| (+) Land Homesite Value: | + | $0 | |
| (+) Land Non-Homesite Value: | + | $17,000 | |
| (+) Curr Use (HS): | + | $0 | $0 |
| (+) Curr Use (NHS): | + | $0 | $0 |
| | | -------------------------- | |
| (=) Market Value: | = | $64,120 | |
| (–) Productivity Loss: | – | $0 | |
| | | -------------------------- | |
| (=) Subtotal: | = | $64,120 | |
| (+) Senior Appraised Value: | + | $0 | |
| (+) Non-Senior Appraised Value: | + | $64,120 | |
| | | -------------------------- | |
| (=) Total Appraised Value: | = | $64,120 | |
| (–) Senior Exemption Loss: | – | $0 | |
| (–) Exemption Loss: | – | $0 | |
| | | -------------------------- | |
| (=) Taxable Value: | = | $64,120 | |
Taxing Jurisdiction
| Owner: | TATLEY, WALLACE D | | |
| % Ownership: | 100.0000000000% | | |
| Total Value: | $64,120 | | |
| Tax Area: | 510 - APPRAISER-Stan/Cam Schl Dist, improved & 1 acre or less |
| CF | Conservation Futures | 0.0313996660 | $64,120 | $64,120 | $2.01 | | |
| EMS1 | Fire & Rescue Dist #1 Camano GEN (EMS) | 0.4998471806 | $64,120 | $64,120 | $32.05 | | |
| FIRE1 | Fire & Rescue Dist #1 Camano GEN | 1.2496603404 | $64,120 | $64,120 | $80.13 | | |
| FIRE1BOND | Fire & Rescue Dist #1 Camano BOND | 0.1630371212 | $64,120 | $64,120 | $10.45 | | |
| CE | County Current Expense | 0.3674210519 | $64,120 | $64,120 | $23.56 | | |
| CR | County Roads | 0.4614296361 | $64,120 | $64,120 | $29.59 | | |
| LIB | Library Sno-Isle GEN | 0.3039084203 | $64,120 | $64,120 | $19.49 | | |
| SCH205_401 | School 205-401 Enrichment | 1.3697998934 | $64,120 | $64,120 | $87.83 | | |
| SCH205BOND | School 205-401 BOND | 0.9354199323 | $64,120 | $64,120 | $59.98 | | |
| ST | State School | 1.4761226122 | $64,120 | $64,120 | $94.65 | | |
| ST2 | State School Part 2 | 0.7953803475 | $64,120 | $64,120 | $51.00 | | |
| | Total Tax Rate: | 7.6534262019 | | | | | |
| | | | | Taxes w/Current Exemptions: | $490.74 | | |
| | | | | Taxes w/o Exemptions: | $490.74 | | |
Improvement / Building
| Improvement #1: | RESIDENTIAL | State Code: | Y | 0.0 sqft | Value: | $47,120 |
Sketch
Property Image
Land
| 1 | 16 | AC (00.51-01.00) | 0.4900 | 21344.40 | 0.00 | 0.00 | 1.00 | $17,000 | $0 |
Roll Value History
| 2026 | N/A | N/A | N/A | N/A | N/A |
| 2025 | $47,120 | $17,000 | $0 | $64,120 | $64,120 |
| 2024 | $47,120 | $17,000 | $0 | $64,120 | $64,120 |
| 2023 | $47,120 | $9,000 | $0 | $56,120 | $56,120 |
| 2022 | $47,120 | $9,000 | $0 | $56,120 | $56,120 |
| 2021 | $47,120 | $7,000 | $0 | $54,120 | $54,120 |
| 2020 | $47,120 | $7,000 | $0 | $54,120 | $54,120 |
| 2019 | $47,120 | $7,000 | $0 | $54,120 | $54,120 |
| 2018 | $47,120 | $7,000 | $0 | $54,120 | $54,120 |
| 2017 | $47,120 | $5,000 | $0 | $52,120 | $52,120 |
| 2016 | $47,120 | $15,000 | $0 | $62,120 | $62,120 |
| 2015 | $50,183 | $18,560 | $0 | $68,743 | $68,743 |
| 2014 | $50,183 | $18,560 | $0 | $68,743 | $68,743 |
| 2013 | $50,183 | $18,560 | $0 | $68,743 | $68,743 |
| 2012 | $50,183 | $18,560 | $0 | $68,743 | $68,743 |
| 2011 | $50,183 | $23,200 | $0 | $73,383 | $73,383 |
| 2010 | $50,183 | $23,200 | $0 | $73,383 | $73,383 |
| 2009 | $52,303 | $25,000 | $0 | $77,303 | $77,303 |
| 2008 | $53,717 | $23,981 | $0 | $77,698 | $77,698 |
| 2007 | $55,837 | $23,980 | $0 | $79,817 | $79,817 |
Deed and Sales History
| 1 | 12/02/2025 | QCD | Quit Claim Deed | TATLEY, WALLACE D | TATLEY FAMILY REVOCABLE LIVING TRUST | | | $0.00 | 65849 | 4595247 |
| 2 | 11/01/1995 | OTHER | Other - Misc. Documents | TATLEY, WALLACE D | TATLEY, WALLACE D | | | $0.00 | 66695 | 0 |
| 3 | 01/01/1900 | OTHER | Other - Misc. Documents | Unknown | TATLEY, WALLACE D | | | $0.00 | 93749 | 89012549 |
Payout Agreement
| No payout information available.. |