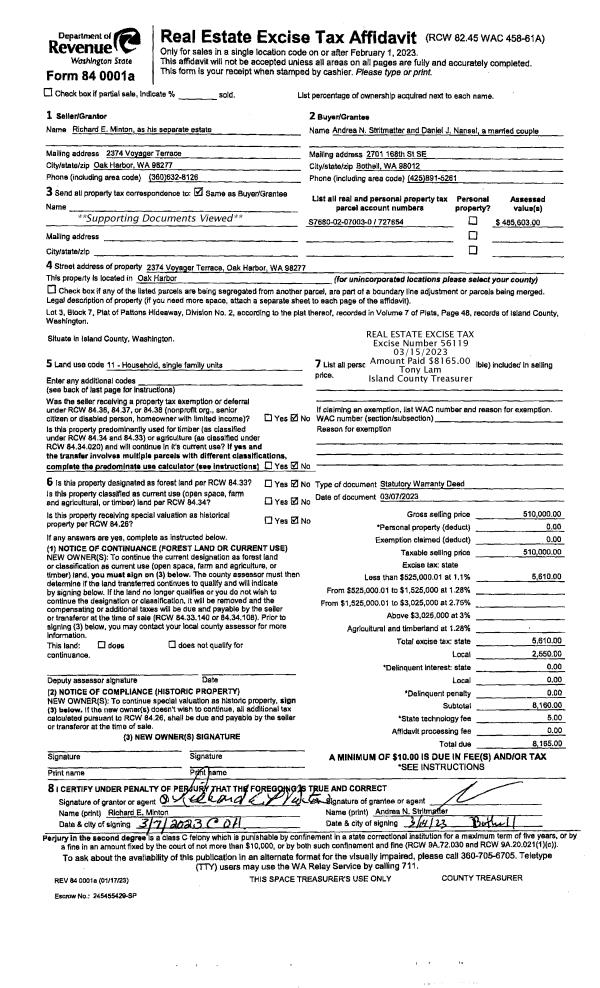
Property
Account |
| Property ID: | 727654 | Abbreviated Legal Description: | PATTONS HIDEAWAY 2 LOT 3 BLK 7 |
| Geographic ID: | S7680-02-07003-0 | Agent Code: | |
| Type: | Real | | |
| Tax Area: | 110 - APPRAISER-OH Schl Dist, outside OH, improved & 1 acre or less | Land Use Code | 11 |
| Open Space: | N | DFL | N |
| Historic Property: | N | Remodel Property: | N |
| Multi-Family Redevelopment: | N | | |
| Township: | | Section: | |
| Range: | |
Location |
| Address: | 2374 VOYAGER TERRACE OAK HARBOR, WA 98277 | Mapsco: | |
| Neighborhood: | Cycle 1 | Map ID: | 139 |
| Neighborhood CD: | 1 |
Owner |
| Name: | NANSEL, DANIEL J | Owner ID: | 316667 |
| Mailing Address: | 2374 VOYAGER TERRACE OAK HARBOR, WA 98277 | % Ownership: | 100.0000000000% |
| | | Exemptions: | |
Taxes and Assessment Details
Values
| (+) Improvement Homesite Value: | + | $0 | |
| (+) Improvement Non-Homesite Value: | + | $287,599 | |
| (+) Land Homesite Value: | + | $0 | |
| (+) Land Non-Homesite Value: | + | $260,000 | |
| (+) Curr Use (HS): | + | $0 | $0 |
| (+) Curr Use (NHS): | + | $0 | $0 |
| | | -------------------------- | |
| (=) Market Value: | = | $547,599 | |
| (–) Productivity Loss: | – | $0 | |
| | | -------------------------- | |
| (=) Subtotal: | = | $547,599 | |
| (+) Senior Appraised Value: | + | $0 | |
| (+) Non-Senior Appraised Value: | + | $547,599 | |
| | | -------------------------- | |
| (=) Total Appraised Value: | = | $547,599 | |
| (–) Senior Exemption Loss: | – | $0 | |
| (–) Exemption Loss: | – | $0 | |
| | | -------------------------- | |
| (=) Taxable Value: | = | $547,599 | |
Taxing Jurisdiction
| Owner: | NANSEL, DANIEL J | | |
| % Ownership: | 100.0000000000% | | |
| Total Value: | $547,599 | | |
| Tax Area: | 110 - APPRAISER-OH Schl Dist, outside OH, improved & 1 acre or less |
| CF | Conservation Futures | 0.0313996660 | $547,599 | $547,599 | $17.19 | | |
| CEM1 | Cemetery #1 | 0.0040018856 | $547,599 | $547,599 | $2.19 | | |
| FIRE2 | Fire & Rescue Dist #2 N Whidbey GEN | 0.5381486274 | $547,599 | $547,599 | $294.69 | | |
| HOBOND | Hospital BOND | 0.1893405597 | $547,599 | $547,599 | $103.68 | | |
| HOGEN | Hospital GEN | 0.3848777722 | $547,599 | $547,599 | $210.76 | | |
| CE | County Current Expense | 0.3674210519 | $547,599 | $547,599 | $201.20 | | |
| CR | County Roads | 0.4614296361 | $547,599 | $547,599 | $252.68 | | |
| ISLANDEMS | Hospital GEN (EMS) | 0.4952018576 | $547,599 | $547,599 | $271.17 | | |
| LIB | Library Sno-Isle GEN | 0.3039084203 | $547,599 | $547,599 | $166.42 | | |
| NWHIDPRMT | P & R N Whidbey GEN | 0.1990272349 | $547,599 | $547,599 | $108.99 | | |
| SCH201MO | School 201 Enrichment | 2.3851112745 | $547,599 | $547,599 | $1,306.08 | | |
| ST | State School | 1.4761226122 | $547,599 | $547,599 | $808.32 | | |
| ST2 | State School Part 2 | 0.7953803475 | $547,599 | $547,599 | $435.55 | | |
| | Total Tax Rate: | 7.6313709459 | | | | | |
| | | | | Taxes w/Current Exemptions: | $4,178.92 | | |
| | | | | Taxes w/o Exemptions: | $4,178.92 | | |
Improvement / Building
| Improvement #1: | RESIDENTIAL | State Code: | Y | 2135.0 sqft | Value: | $287,599 |
| Bathrooms: | 2.5 | Bedrooms: | 3 | | Ceiling: | DRY WALL SPRAYED | Cooling: | HEAT PUMP/CONV/V | | Exterior Wall/Cover: | PLY/HARDBOARD T-111 | Floor Covering: | CARPET/VINYL 80-20 | | Floor Structure: | WOOD W/SUBFLOOR | Foundation: | CONCRETE BLOCKS | | Interior Finish: | DRYWALL PAINT | Plumbing Fixture Cnt: | 13 | | Roof Slope: | 5" IN 12" | Roof Structure/Cover: | CJ ASPHALT |
|
| | Type | Description | Class CD | Sub Class CD | Year Built | Area |
| | BAS | BASE/MAIN FLOOR | 3 | 0 | 1977 | 1457.0 |
| | OP1 | OPEN PORCH SLAB | 3 | 0 | 1977 | 452.0 |
| | OP4 | OPEN PORCH W/CEILING-ROOF | 3 | 0 | 1977 | 12.0 |
| | AGR | ATTACHED GARAGE | 3 | 0 | 1977 | 440.0 |
| | OWP | OPEN WOOD PORCH W/STEPS | 3 | 0 | 1977 | 677.0 |
| | DWN | DOWNSTAIRS LIVING AREA | 3 | 0 | 1977 | 678.0 |
Sketch
Property Image
Land
| 1 | 15 | SQ (12001-21780) | 0.0000 | 43560.00 | 0.00 | 0.00 | 1.00 | $260,000 | $0 |
Roll Value History
| 2026 | N/A | N/A | N/A | N/A | N/A |
| 2025 | $287,599 | $260,000 | $0 | $547,599 | $547,599 |
| 2024 | $291,419 | $240,000 | $0 | $531,419 | $531,419 |
| 2023 | $267,482 | $240,000 | $0 | $507,482 | $507,482 |
| 2022 | $245,603 | $240,000 | $0 | $485,603 | $485,603 |
| 2021 | $216,525 | $120,000 | $0 | $336,525 | $336,525 |
| 2020 | $211,231 | $80,000 | $0 | $291,231 | $291,231 |
| 2019 | $160,484 | $150,000 | $0 | $310,484 | $310,484 |
| 2018 | $161,017 | $140,000 | $0 | $301,017 | $301,017 |
| 2017 | $154,416 | $120,000 | $0 | $274,416 | $274,416 |
| 2016 | $156,561 | $120,000 | $0 | $276,561 | $276,561 |
| 2015 | $158,706 | $100,000 | $0 | $258,706 | $258,706 |
| 2014 | $160,849 | $100,000 | $0 | $260,849 | $260,849 |
| 2013 | $162,996 | $114,750 | $0 | $277,746 | $277,746 |
| 2012 | $165,138 | $114,750 | $0 | $279,888 | $279,888 |
| 2011 | $168,200 | $135,000 | $0 | $303,200 | $303,200 |
| 2010 | $179,491 | $135,000 | $0 | $314,491 | $314,491 |
| 2009 | $179,154 | $165,000 | $0 | $344,154 | $344,154 |
| 2008 | $181,323 | $165,000 | $0 | $346,323 | $346,323 |
| 2007 | $183,484 | $95,500 | $0 | $278,984 | $278,984 |
Deed and Sales History
| 1 | 04/07/2025 | QCD | Quit Claim Deed | STRITMATTER, ANDREA N | NANSEL, DANIEL J | | | $0.00 | 63061 | 4584215 |
| 2 | 03/07/2023 | WD | Warranty Deed | MINTON, BARBARA | STRITMATTER, ANDREA N | | | $510,000.00 | 56119 | 4557754 |
| 3 | 06/09/2005 | ESTSEPPROP | Establish Separate Property | MINTON, BARBARA | MINTON, BARBARA | | | $0.00 | 54762 | 4148452 |
| 4 | 06/09/2005 | ESTSEPPROP | Establish Separate Property | MINTON, BARBARA | MINTON, BARBARA | | | $0.00 | 52735 | 4137356 |
| 5 | 05/26/2005 | WD | Warranty Deed | MINTON, BARBARA | MINTON, BARBARA | | | $0.00 | 54761 | 4148451 |
| 6 | 05/26/2005 | WD | Warranty Deed | NICHOLLS, CATHERINE AIDA | MINTON, BARBARA | | | $272,500.00 | 52734 | 4137355 |
| 7 | 05/23/2005 | PRD | Personal Representatives Deed | LANGSTON, ARTHUR N | NICHOLLS, CATHERINE AIDA | | | $0.00 | 52733 | 4137354 |
| 8 | 08/05/2003 | PRD | Personal Representatives Deed | Unknown | LANGSTON, ARTHUR N | | | $0.00 | 34197 | 4075626 |
| 9 | 01/01/1900 | OTHER | Other - Misc. Documents | LANGSTON, ARTHUR N | LANGSTON, ARTHUR N | | | $0.00 | 0 | 0 |
Payout Agreement
| No payout information available.. |