Property
Account |
| Property ID: | 727761 | Abbreviated Legal Description: | PATTONS 2ND ADD LOT 10 |
| Geographic ID: | S7690-02-00010-0 | Agent Code: | |
| Type: | Real | | |
| Tax Area: | 100 - APPRAISER-OH Schl Dist, in OH | Land Use Code | 11 |
| Open Space: | N | DFL | N |
| Historic Property: | N | Remodel Property: | N |
| Multi-Family Redevelopment: | N | | |
| Township: | | Section: | |
| Range: | |
Location |
| Address: | 767 SE 6TH AVE OAK HARBOR, WA 98277 | Mapsco: | |
| Neighborhood: | Cycle 1 | Map ID: | 88 |
| Neighborhood CD: | 1 |
Owner |
| Name: | SERNVONGSAT, SAVIT | Owner ID: | 282414 |
| Mailing Address: | 767 SE 6TH AVE OAK HARBOR, WA 98277 | % Ownership: | 100.0000000000% |
| | | Exemptions: | |
Taxes and Assessment Details
Values
| (+) Improvement Homesite Value: | + | $0 | |
| (+) Improvement Non-Homesite Value: | + | $229,840 | |
| (+) Land Homesite Value: | + | $0 | |
| (+) Land Non-Homesite Value: | + | $180,000 | |
| (+) Curr Use (HS): | + | $0 | $0 |
| (+) Curr Use (NHS): | + | $0 | $0 |
| | | -------------------------- | |
| (=) Market Value: | = | $409,840 | |
| (–) Productivity Loss: | – | $0 | |
| | | -------------------------- | |
| (=) Subtotal: | = | $409,840 | |
| (+) Senior Appraised Value: | + | $0 | |
| (+) Non-Senior Appraised Value: | + | $409,840 | |
| | | -------------------------- | |
| (=) Total Appraised Value: | = | $409,840 | |
| (–) Senior Exemption Loss: | – | $0 | |
| (–) Exemption Loss: | – | $0 | |
| | | -------------------------- | |
| (=) Taxable Value: | = | $409,840 | |
Taxing Jurisdiction
| Owner: | SERNVONGSAT, SAVIT | | |
| % Ownership: | 100.0000000000% | | |
| Total Value: | $409,840 | | |
| Tax Area: | 100 - APPRAISER-OH Schl Dist, in OH |
| CF | Conservation Futures | 0.0313996660 | $409,840 | $409,840 | $12.87 | | |
| CEM1 | Cemetery #1 | 0.0040018856 | $409,840 | $409,840 | $1.64 | | |
| COH | City of Oak Harbor | 2.3090730572 | $409,840 | $409,840 | $946.35 | | |
| OAKBOND | City of Oak Harbor BOND | 0.1902260131 | $409,840 | $409,840 | $77.96 | | |
| HOBOND | Hospital BOND | 0.1893405597 | $409,840 | $409,840 | $77.60 | | |
| HOGEN | Hospital GEN | 0.3848777722 | $409,840 | $409,840 | $157.74 | | |
| CE | County Current Expense | 0.3674210519 | $409,840 | $409,840 | $150.58 | | |
| ISLANDEMS | Hospital GEN (EMS) | 0.4952018576 | $409,840 | $409,840 | $202.95 | | |
| LIB | Library Sno-Isle GEN | 0.3039084203 | $409,840 | $409,840 | $124.55 | | |
| NWHIDPRMT | P & R N Whidbey GEN | 0.1990272349 | $409,840 | $409,840 | $81.57 | | |
| SCH201MO | School 201 Enrichment | 2.3851112745 | $409,840 | $409,840 | $977.51 | | |
| ST | State School | 1.4761226122 | $409,840 | $409,840 | $604.97 | | |
| ST2 | State School Part 2 | 0.7953803475 | $409,840 | $409,840 | $325.98 | | |
| | Total Tax Rate: | 9.1310917527 | | | | | |
| | | | | Taxes w/Current Exemptions: | $3,742.27 | | |
| | | | | Taxes w/o Exemptions: | $3,742.27 | | |
Improvement / Building
| Improvement #1: | RESIDENTIAL | State Code: | Y | 1192.0 sqft | Value: | $229,840 |
| Bathrooms: | 1.5 | Bedrooms: | 3 | | Ceiling: | DRYWALL PAINTED | Exterior Wall/Cover: | VINYL | | Floor Covering: | HARDWOOD/CARP 60-40 | Floor Structure: | WOOD W/SUBFLOOR | | Foundation: | CONCRETE | Heating: | FHA GAS | | Interior Finish: | DRYWALL PAINT | Plumbing Fixture Cnt: | 8 | | Roof Slope: | 4" IN 12" | Roof Structure/Cover: | CJ ASPHALT |
|
| | Type | Description | Class CD | Sub Class CD | Year Built | Area |
| | BAS | BASE/MAIN FLOOR | 3 | 0 | 1959 | 1192.0 |
| | OP1 | OPEN PORCH SLAB | 3 | 0 | 1959 | 320.0 |
| | AGR | ATTACHED GARAGE | 3 | 0 | 1959 | 280.0 |
| | OP4 | OPEN PORCH W/CEILING-ROOF | 3 | 0 | 1959 | 25.0 |
Sketch
Property Image
Land
| 1 | 13 | SQ (06001-08000) | 0.0000 | 0.00 | 0.00 | 0.00 | 1.00 | $180,000 | $0 |
Roll Value History
| 2026 | N/A | N/A | N/A | N/A | N/A |
| 2025 | $229,840 | $180,000 | $0 | $409,840 | $409,840 |
| 2024 | $232,704 | $170,000 | $0 | $402,704 | $402,704 |
| 2023 | $234,518 | $170,000 | $0 | $404,518 | $404,518 |
| 2022 | $214,939 | $160,000 | $0 | $374,939 | $374,939 |
| 2021 | $189,155 | $120,000 | $0 | $309,155 | $309,155 |
| 2020 | $184,189 | $100,000 | $0 | $284,189 | $284,189 |
| 2019 | $131,842 | $140,000 | $0 | $271,842 | $271,842 |
| 2018 | $132,225 | $125,000 | $0 | $257,225 | $257,225 |
| 2017 | $129,276 | $110,000 | $0 | $239,276 | $239,276 |
| 2016 | $130,852 | $90,000 | $0 | $220,852 | $220,852 |
| 2015 | $132,429 | $70,000 | $0 | $202,429 | $202,429 |
| 2014 | $134,004 | $55,000 | $0 | $189,004 | $189,004 |
| 2013 | $135,582 | $55,000 | $0 | $190,582 | $190,582 |
| 2012 | $137,157 | $60,000 | $0 | $197,157 | $197,157 |
| 2011 | $142,781 | $50,000 | $0 | $192,781 | $192,781 |
| 2010 | $151,156 | $50,000 | $0 | $201,156 | $201,156 |
| 2009 | $157,440 | $60,000 | $0 | $217,440 | $217,440 |
| 2008 | $159,256 | $72,000 | $0 | $231,256 | $231,256 |
| 2007 | $159,437 | $72,000 | $0 | $231,437 | $231,437 |
Deed and Sales History
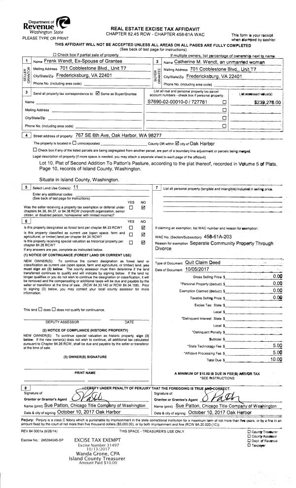
| 1 | 10/05/2017 | WD | Warranty Deed | WENDT, CATHERINE M | SERNVONGSAT, SAVIT | | | $269,000.00 | 31498 | 4432025 |
| 2 | 10/05/2017 | QCD | Quit Claim Deed | WENDT JTWROS, FRANK A | WENDT, CATHERINE M | | | $0.00 | 31497 | 4432024 |
| 3 | 05/04/2012 | WD | Warranty Deed | EBELING, CATHERINE M | WENDT JTWROS, FRANK A | | | $0.00 | 7699 | 4315633 |
| 4 | 06/15/2006 | WD | Warranty Deed | PRASCH, PATRICK B | EBELING, CATHERINE M | | | $224,900.00 | 62640 | 4173463 |
| 5 | 10/22/2003 | WD | Warranty Deed | BOURBEAU, DONALD B | PRASCH, PATRICK B | | | $145,000.00 | 34841 | 4080617 |
| 6 | 02/23/2001 | WD | Warranty Deed | CARLYLE, MARGUERITE E | BOURBEAU, DONALD B | | | $109,900.00 | 10648 | 20026331 |
| 7 | 01/01/1984 | WD | Warranty Deed | MYERS, JOHN A | CARLYLE, MARGUERITE E | | | $59,500.00 | 40292 | 420597 |
| 8 | 01/01/1900 | OTHER | Other - Misc. Documents | Unknown | MYERS, JOHN A | | | $0.00 | 0 | 0 |
Payout Agreement
| No payout information available.. |