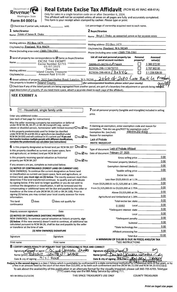
Property
Account |
| Property ID: | 727912 | Abbreviated Legal Description: | PENN MEADOWS LOT 3 |
| Geographic ID: | S7737-00-00003-0 | Agent Code: | |
| Type: | Real | | |
| Tax Area: | 300 - APPRAISER-Cpvl Schl Dist, in Cpvl | Land Use Code | 11 |
| Open Space: | N | DFL | N |
| Historic Property: | N | Remodel Property: | N |
| Multi-Family Redevelopment: | N | | |
| Township: | | Section: | |
| Range: | |
Location |
| Address: | 530 NE 6TH ST COUPEVILLE, WA 98239 | Mapsco: | |
| Neighborhood: | Cycle 2 | Map ID: | 179 |
| Neighborhood CD: | 2 |
Owner |
| Name: | WASHINGTON, DEBORAH L | Owner ID: | 254109 |
| Mailing Address: | 530 NE 6TH ST COUPEVILLE, WA 98239 | % Ownership: | 100.0000000000% |
| | | Exemptions: | |
Taxes and Assessment Details
Values
| (+) Improvement Homesite Value: | + | $0 | |
| (+) Improvement Non-Homesite Value: | + | $221,228 | |
| (+) Land Homesite Value: | + | $0 | |
| (+) Land Non-Homesite Value: | + | $260,000 | |
| (+) Curr Use (HS): | + | $0 | $0 |
| (+) Curr Use (NHS): | + | $0 | $0 |
| | | -------------------------- | |
| (=) Market Value: | = | $481,228 | |
| (–) Productivity Loss: | – | $0 | |
| | | -------------------------- | |
| (=) Subtotal: | = | $481,228 | |
| (+) Senior Appraised Value: | + | $0 | |
| (+) Non-Senior Appraised Value: | + | $481,228 | |
| | | -------------------------- | |
| (=) Total Appraised Value: | = | $481,228 | |
| (–) Senior Exemption Loss: | – | $0 | |
| (–) Exemption Loss: | – | $0 | |
| | | -------------------------- | |
| (=) Taxable Value: | = | $481,228 | |
Taxing Jurisdiction
| Owner: | WASHINGTON, DEBORAH L | | |
| % Ownership: | 100.0000000000% | | |
| Total Value: | $481,228 | | |
| Tax Area: | 300 - APPRAISER-Cpvl Schl Dist, in Cpvl |
| CF | Conservation Futures | 0.0313996660 | $481,228 | $481,228 | $15.11 | | |
| CEM2 | Cemetery #2 | 0.0092609791 | $481,228 | $481,228 | $4.46 | | |
| COUP | City: Town of Coupeville | 0.8188663519 | $481,228 | $481,228 | $394.06 | | |
| FIRE5 | Fire & Rescue Dist #5 C Whidbey GEN | 1.1892169230 | $481,228 | $481,228 | $572.28 | | |
| FIRE5BOND | Fire & Rescue Dist #5 C Whidbey BOND | 0.1394359503 | $481,228 | $481,228 | $67.10 | | |
| HOBOND | Hospital BOND | 0.1893405597 | $481,228 | $481,228 | $91.12 | | |
| HOGEN | Hospital GEN | 0.3848777722 | $481,228 | $481,228 | $185.21 | | |
| CE | County Current Expense | 0.3674210519 | $481,228 | $481,228 | $176.81 | | |
| ISLANDEMS | Hospital GEN (EMS) | 0.4952018576 | $481,228 | $481,228 | $238.31 | | |
| LIB | Library Sno-Isle GEN | 0.3039084203 | $481,228 | $481,228 | $146.25 | | |
| LIBCAP | Library Sno-Isle BOND (Cap Fac Imp Area) | 0.0528562629 | $481,228 | $481,228 | $25.44 | | |
| POCOUP | Port of Coupeville GEN | 0.1065226063 | $481,228 | $481,228 | $51.26 | | |
| POCOUPIDD | Port of Coupeville IDD | 0.3353038577 | $481,228 | $481,228 | $161.36 | | |
| COUPSDTECH | School 204 CP (TECH) | 0.1215123397 | $481,228 | $481,228 | $58.48 | | |
| SCH204MO | School 204 Enrichment | 0.6416662518 | $481,228 | $481,228 | $308.79 | | |
| ST | State School | 1.4761226122 | $481,228 | $481,228 | $710.35 | | |
| ST2 | State School Part 2 | 0.7953803475 | $481,228 | $481,228 | $382.76 | | |
| | Total Tax Rate: | 7.4582938101 | | | | | |
| | | | | Taxes w/Current Exemptions: | $3,589.15 | | |
| | | | | Taxes w/o Exemptions: | $3,589.15 | | |
Improvement / Building
| Improvement #1: | RESIDENTIAL | State Code: | Y | 1124.0 sqft | Value: | $221,228 |
| Bathrooms: | 1.75 | Bedrooms: | 3 | | Ceiling: | DRYWALL PAINTED | Exterior Wall/Cover: | WOOD SIDING | | Floor Covering: | HARDWOOD/CARP 20-80 | Floor Structure: | WOOD W/SUBFLOOR | | Foundation: | CONCRETE | Heating: | WALL HEAT ELECTRIC | | Interior Finish: | DRYWALL PAINT | Plumbing Fixture Cnt: | 11 | | Roof Slope: | 5" IN 12" | Roof Structure/Cover: | CJ METAL |
|
| | Type | Description | Class CD | Sub Class CD | Year Built | Area |
| | BAS | BASE/MAIN FLOOR | 3 | 0 | 1989 | 1124.0 |
| | OP4 | OPEN PORCH W/CEILING-ROOF | 3 | 0 | 1989 | 20.0 |
| | AGR | ATTACHED GARAGE | 3 | 0 | 1989 | 432.0 |
| | OWP | OPEN WOOD PORCH W/STEPS | 3 | 0 | 1989 | 223.0 |
Sketch
| No sketches available for this property. |
Property Image
Land
| 1 | 14 | SQ (08001-12000) | 0.2200 | 9583.20 | 0.00 | 0.00 | 1.00 | $260,000 | $0 |
Roll Value History
| 2026 | N/A | N/A | N/A | N/A | N/A |
| 2025 | $221,228 | $260,000 | $0 | $481,228 | $481,228 |
| 2024 | $204,627 | $240,000 | $0 | $444,627 | $444,627 |
| 2023 | $207,383 | $240,000 | $0 | $447,383 | $447,383 |
| 2022 | $190,274 | $200,000 | $0 | $390,274 | $390,274 |
| 2021 | $167,633 | $150,000 | $0 | $317,633 | $317,633 |
| 2020 | $162,777 | $130,000 | $0 | $292,777 | $292,777 |
| 2019 | $112,519 | $170,000 | $0 | $282,519 | $282,519 |
| 2018 | $108,596 | $150,000 | $0 | $258,596 | $258,596 |
| 2017 | $109,320 | $125,000 | $0 | $234,320 | $234,320 |
| 2016 | $110,768 | $115,000 | $0 | $225,768 | $225,768 |
| 2015 | $112,217 | $90,000 | $0 | $202,217 | $202,217 |
| 2014 | $113,666 | $85,000 | $0 | $198,666 | $198,666 |
| 2013 | $115,114 | $85,000 | $0 | $200,114 | $200,114 |
| 2012 | $110,768 | $90,950 | $0 | $201,718 | $201,718 |
| 2011 | $112,217 | $107,000 | $0 | $219,217 | $219,217 |
| 2010 | $117,360 | $107,000 | $0 | $224,360 | $224,360 |
| 2009 | $122,487 | $125,000 | $0 | $247,487 | $47,466 |
| 2008 | $123,802 | $145,332 | $0 | $269,134 | $47,465 |
| 2007 | $124,574 | $146,239 | $0 | $270,813 | $47,465 |
Deed and Sales History
| 1 | 04/19/2011 | WD | Warranty Deed | HAARSAKER, JEAN M | WASHINGTON, DEBORAH L | | | $232,000.00 | 4189 | 4294004 |
| 2 | 12/01/1988 | WD | Warranty Deed | Unknown | HAARSAKER, JEAN M | | | $13,500.00 | 84084 | 88015305 |
Payout Agreement
| No payout information available.. |