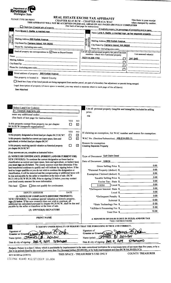
Property
Account |
| Property ID: | 728127 | Abbreviated Legal Description: | 83 - IN SW NE SW: BG NWCR SW NE SW E330' TPB S70' |
| Geographic ID: | R23114-206-1750 | Agent Code: | |
| Type: | Real | | |
| Tax Area: | 510 - APPRAISER-Stan/Cam Schl Dist, improved & 1 acre or less | Land Use Code | 11 |
| Open Space: | N | DFL | N |
| Historic Property: | N | Remodel Property: | N |
| Multi-Family Redevelopment: | N | | |
| Township: | 31 | Section: | 14 |
| Range: | R2 |
Location |
| Address: | 669 KODIAK AVE CAMANO ISLAND, WA 98282 | Mapsco: | |
| Neighborhood: | Cycle 5 | Map ID: | 481 |
| Neighborhood CD: | 5 |
Owner |
| Name: | BAILLIE, LORIE A. | Owner ID: | 293493 |
| Mailing Address: | 669 KODIAK AVENUE CAMANO ISLAND, WA 98282 | % Ownership: | 100.0000000000% |
| | | Exemptions: | SNR/DSBL |
Taxes and Assessment Details
Values
| (+) Improvement Homesite Value: | + | $163,421 | |
| (+) Improvement Non-Homesite Value: | + | $0 | |
| (+) Land Homesite Value: | + | $230,000 | |
| (+) Land Non-Homesite Value: | + | $0 | |
| (+) Curr Use (HS): | + | $0 | $0 |
| (+) Curr Use (NHS): | + | $0 | $0 |
| | | -------------------------- | |
| (=) Market Value: | = | $393,421 | |
| (–) Productivity Loss: | – | $0 | |
| | | -------------------------- | |
| (=) Subtotal: | = | $393,421 | |
| (+) Senior Appraised Value: | + | $26,568 | |
| (+) Non-Senior Appraised Value: | + | $0 | |
| | | -------------------------- | |
| (=) Total Appraised Value: | = | $26,568 | |
| (–) Senior Exemption Loss: | – | $26,568 | |
| (–) Exemption Loss: | – | $0 | |
| | | -------------------------- | |
| (=) Taxable Value: | = | $0 | |
Taxing Jurisdiction
| Owner: | BAILLIE, LORIE A. | | |
| % Ownership: | 100.0000000000% | | |
| Total Value: | $393,421 | | |
| Tax Area: | 510 - APPRAISER-Stan/Cam Schl Dist, improved & 1 acre or less |
| CF | Conservation Futures | 0.0313996660 | $393,421 | $0 | $0.00 | | |
| EMS1 | Fire & Rescue Dist #1 Camano GEN (EMS) | 0.4998471806 | $393,421 | $0 | $0.00 | | |
| FIRE1 | Fire & Rescue Dist #1 Camano GEN | 1.2496603404 | $393,421 | $0 | $0.00 | | |
| FIRE1BOND | Fire & Rescue Dist #1 Camano BOND | 0.0000000000 | $393,421 | $0 | $0.00 | | |
| CE | County Current Expense | 0.3674210519 | $393,421 | $0 | $0.00 | | |
| CR | County Roads | 0.4614296361 | $393,421 | $0 | $0.00 | | |
| LIB | Library Sno-Isle GEN | 0.3039084203 | $393,421 | $0 | $0.00 | | |
| SCH205_401 | School 205-401 Enrichment | 0.0000000000 | $393,421 | $0 | $0.00 | | |
| SCH205BOND | School 205-401 BOND | 0.0000000000 | $393,421 | $0 | $0.00 | | |
| ST | State School | 1.4761226122 | $393,421 | $0 | $0.00 | | |
| ST2 | State School Part 2 | 0.0000000000 | $393,421 | $0 | $0.00 | | |
| | Total Tax Rate: | 4.3897889075 | | | | | |
| | | | | Taxes w/Current Exemptions: | $0.00 | | |
| | | | | Taxes w/o Exemptions: | $3,011.01 | | |
Improvement / Building
| Improvement #1: | RESIDENTIAL | State Code: | Y | 1056.0 sqft | Value: | $163,421 |
| Bathrooms: | 2 | Bedrooms: | 2 | | Ceiling: | DRY WALL SPRAYED | Exterior Wall/Cover: | PLY/HARDBOARD T-111 | | Floor Covering: | CARPET/VINYL 80-20 | Floor Structure: | WOOD W/SUBFLOOR | | Foundation: | CONCRETE | Heating: | BASEBOARD ELECTRIC | | Interior Finish: | DRYWALL PAINT | Plumbing Fixture Cnt: | 8 | | Roof Slope: | 4" IN 12" | Roof Structure/Cover: | CJ ASPHALT |
|
| | Type | Description | Class CD | Sub Class CD | Year Built | Area |
| | BAS | BASE/MAIN FLOOR | 3 | 0 | 1972 | 1056.0 |
| | AGR | ATTACHED GARAGE | 3 | 0 | 1972 | 400.0 |
| | OWR | OPEN WOOD PORCH W/STEPS/ROOF | 3 | 0 | 1972 | 36.0 |
| | OWR | OPEN WOOD PORCH W/STEPS/ROOF | 3 | 0 | 1972 | 36.0 |
Sketch
Property Image
Land
| 1 | 14 | SQ (08001-12000) | 0.2200 | 9583.20 | 0.00 | 0.00 | 1.00 | $230,000 | $0 |
Roll Value History
| 2026 | N/A | N/A | N/A | N/A | N/A |
| 2025 | $163,421 | $230,000 | $0 | $393,421 | $0 |
| 2024 | $169,188 | $220,000 | $0 | $389,188 | $0 |
| 2023 | $171,564 | $200,000 | $0 | $371,564 | $0 |
| 2022 | $157,501 | $200,000 | $0 | $357,501 | $0 |
| 2021 | $119,324 | $140,000 | $0 | $259,324 | $0 |
| 2020 | $116,424 | $120,000 | $0 | $236,424 | $0 |
| 2019 | $81,945 | $160,000 | $0 | $241,945 | $0 |
| 2018 | $82,254 | $110,000 | $0 | $192,254 | $0 |
| 2017 | $82,874 | $100,000 | $0 | $182,874 | $0 |
| 2016 | $84,110 | $90,000 | $0 | $174,110 | $0 |
| 2015 | $73,307 | $65,000 | $0 | $138,307 | $0 |
| 2014 | $74,545 | $65,000 | $0 | $139,545 | $26,568 |
| 2013 | $75,781 | $41,600 | $0 | $117,381 | $26,568 |
| 2012 | $77,019 | $41,600 | $0 | $118,619 | $26,568 |
| 2011 | $78,255 | $52,000 | $0 | $130,255 | $26,568 |
| 2010 | $83,444 | $52,000 | $0 | $135,444 | $26,568 |
| 2009 | $83,083 | $90,000 | $0 | $173,083 | $26,568 |
| 2008 | $84,644 | $81,324 | $0 | $165,968 | $0 |
| 2007 | $85,261 | $81,918 | $0 | $167,179 | $0 |
Deed and Sales History
| 1 | 12/09/2019 | QCD | Quit Claim Deed | BAILLIE, BRUCE C | BAILLIE, LORIE A. | | | $0.00 | 41640 | 4478324 |
| 2 | 02/03/2009 | QCD | Quit Claim Deed | BAILLIE, BRUCE C | BAILLIE, BRUCE C | | | $0.00 | 90239 | 4244158 |
| 3 | 03/01/1995 | OTHER | Other - Misc. Documents | BAILLIE, E K | BAILLIE, BRUCE C | | | $0.00 | 66337 | 0 |
| 4 | 06/01/1983 | QCD | Quit Claim Deed | SHAFFER, MARGARET E | BAILLIE, E K | | | $0.00 | 31516 | 410507 |
| 5 | 01/01/1900 | OTHER | Other - Misc. Documents | Unknown | SHAFFER, MARGARET E | | | $0.00 | 0 | 0 |
Payout Agreement
| No payout information available.. |