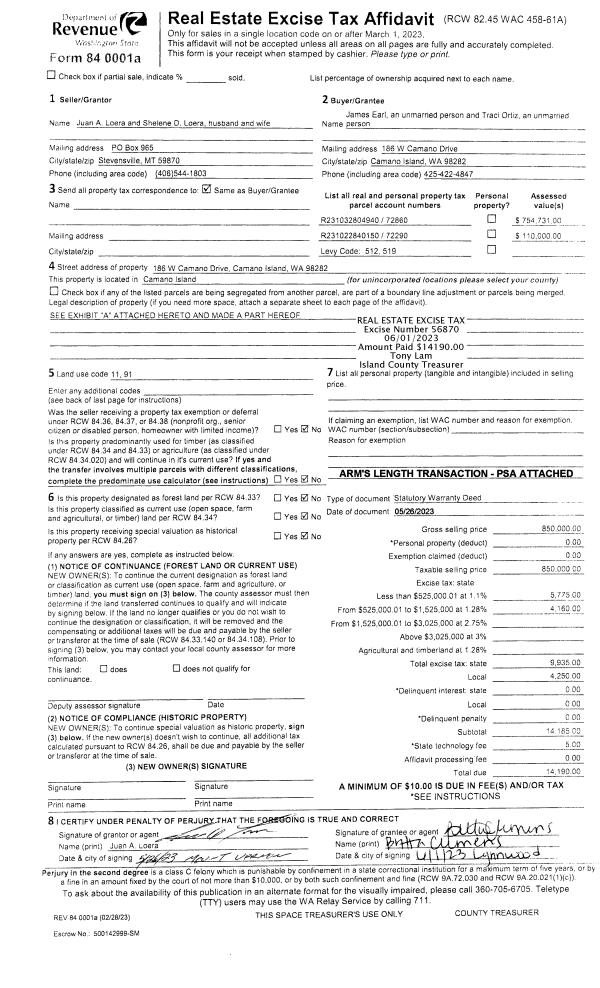
Property
Account |
| Property ID: | 72860 | Abbreviated Legal Description: | 68 - S/2 SE SE NE EX RD TGW WATER LN EZ AF#91011533 PT DRAINFIELD FOR 284-0150 AF#92005621 TGW DRIVE WAY EZ AF#92005620 |
| Geographic ID: | R23103-280-4940 | Agent Code: | |
| Type: | Real | | |
| Tax Area: | 512 - APPRAISER-Stan/Cam Schl Dist, improved, greater than 1 acre | Land Use Code | 11 |
| Open Space: | N | DFL | N |
| Historic Property: | N | Remodel Property: | N |
| Multi-Family Redevelopment: | N | | |
| Township: | 31 | Section: | 03 |
| Range: | R2 |
Location |
| Address: | 186 S WEST CAMANO DR CAMANO ISLAND, WA 98282 | Mapsco: | |
| Neighborhood: | Cycle 5 | Map ID: | 458 |
| Neighborhood CD: | 5 |
Owner |
| Name: | EARL, JAMES | Owner ID: | 308818 |
| Mailing Address: | TRACI ORTIZ 186 W CAMANO DR CAMANO ISLAND, WA 98282 | % Ownership: | 100.0000000000% |
| | | Exemptions: | |
Taxes and Assessment Details
Values
| (+) Improvement Homesite Value: | + | N/A | |
| (+) Improvement Non-Homesite Value: | + | N/A | |
| (+) Land Homesite Value: | + | N/A | |
| (+) Land Non-Homesite Value: | + | N/A | Ag / Timber Use Value |
| (+) Curr Use (HS): | + | N/A | N/A |
| (+) Curr Use (NHS): | + | N/A | N/A |
| | | -------------------------- | |
| (=) Market Value: | = | N/A | |
| (–) Productivity Loss: | – | N/A | |
| | | -------------------------- | |
| (=) Subtotal: | = | N/A | |
| (+) Senior Appraised Value: | + | N/A | |
| (+) Non-Senior Appraised Value: | + | N/A | |
| | | -------------------------- | |
| (=) Total Appraised Value: | = | N/A | |
| (–) Senior Exemption Loss: | – | N/A | |
| (–) Exemption Loss: | – | N/A | |
| | | -------------------------- | |
| (=) Taxable Value: | = | N/A | |
Taxing Jurisdiction
| Owner: | EARL, JAMES | | |
| % Ownership: | 100.0000000000% | | |
| Total Value: | N/A | | |
| Tax Area: | 512 - APPRAISER-Stan/Cam Schl Dist, improved, greater than 1 acre |
| CF | Conservation Futures | N/A | N/A | N/A | N/A | | |
| CCD | Camano Conservation District | N/A | N/A | N/A | N/A | | |
| EMS1 | Fire & Rescue Dist #1 Camano GEN (EMS) | N/A | N/A | N/A | N/A | | |
| FIRE1 | Fire & Rescue Dist #1 Camano GEN | N/A | N/A | N/A | N/A | | |
| FIRE1BOND | Fire & Rescue Dist #1 Camano BOND | N/A | N/A | N/A | N/A | | |
| CE | County Current Expense | N/A | N/A | N/A | N/A | | |
| CR | County Roads | N/A | N/A | N/A | N/A | | |
| LCIB | Library Sno-Isle BOND (Camano Island) | N/A | N/A | N/A | N/A | | |
| LIB | Library Sno-Isle GEN | N/A | N/A | N/A | N/A | | |
| SCH205_401 | School 205-401 Enrichment | N/A | N/A | N/A | N/A | | |
| SCH205BOND | School 205-401 BOND | N/A | N/A | N/A | N/A | | |
| ST | State School | N/A | N/A | N/A | N/A | | |
| ST2 | State School Part 2 | N/A | N/A | N/A | N/A | | |
| | Total Tax Rate: | N/A | | | | | |
| | | | | Taxes w/Current Exemptions: | N/A | | |
| | | | | Taxes w/o Exemptions: | N/A | | |
Improvement / Building
| Improvement #1: | RESIDENTIAL | State Code: | Y | 3707.0 sqft | Value: | N/A |
| Bathrooms: | 3 | Bedrooms: | 4 | | Ceiling: | DRYWALL PAINTED | Exterior Wall/Cover: | WOOD SIDING | | Floor Covering: | HARDWOOD/CARP 60-40 | Floor Structure: | WOOD W/SUBFLOOR | | Foundation: | CONCRETE | Heating: | FHA GAS | | Interior Finish: | DRYWALL PAINT | Plumbing Fixture Cnt: | 18 | | Roof Slope: | 5" IN 12" | Roof Structure/Cover: | CJ ALUMINIUM HEAVY |
|
| | Type | Description | Class CD | Sub Class CD | Year Built | Area |
| | BAS | BASE/MAIN FLOOR | 4 | 0 | 1997 | 3707.0 |
| | OP1 | OPEN PORCH SLAB | 4 | 0 | 1997 | 2800.0 |
| | OP4 | OPEN PORCH W/CEILING-ROOF | 4 | 0 | 1997 | 140.0 |
| | OP4 | OPEN PORCH W/CEILING-ROOF | 4 | 0 | 1997 | 288.0 |
| | OP4 | OPEN PORCH W/CEILING-ROOF | 4 | 0 | 1997 | 576.0 |
| | oJAZ | JACUZZI | 4 | 0 | 1997 | 646.0 |
Sketch
Property Image
Land
| 1 | 32 | AC (03.01-09.99) | 5.0000 | 0.00 | 0.00 | 0.00 | 1.00 | N/A | N/A |
Roll Value History
| 2026 | N/A | N/A | N/A | N/A | N/A |
| 2025 | $605,315 | $330,000 | $0 | $935,315 | $935,315 |
| 2024 | $612,930 | $300,000 | $0 | $912,930 | $912,930 |
| 2023 | $506,671 | $290,000 | $0 | $796,671 | $796,671 |
| 2022 | $464,731 | $290,000 | $0 | $754,731 | $754,731 |
| 2021 | $401,315 | $190,000 | $0 | $591,315 | $591,315 |
| 2020 | $392,886 | $160,000 | $0 | $552,886 | $552,886 |
| 2019 | $330,398 | $230,000 | $0 | $560,398 | $560,398 |
| 2018 | $331,413 | $190,000 | $0 | $521,413 | $521,413 |
| 2017 | $333,448 | $150,000 | $0 | $483,448 | $483,448 |
| 2016 | $337,514 | $150,000 | $0 | $487,514 | $487,514 |
| 2015 | $336,104 | $112,000 | $0 | $448,104 | $448,104 |
| 2014 | $339,843 | $112,000 | $0 | $451,843 | $451,843 |
| 2013 | $343,582 | $112,000 | $0 | $455,582 | $455,582 |
| 2012 | $347,319 | $112,000 | $0 | $459,319 | $459,319 |
| 2011 | $351,058 | $140,000 | $0 | $491,058 | $491,058 |
| 2010 | $359,505 | $140,000 | $0 | $499,505 | $499,505 |
| 2009 | $375,329 | $160,000 | $0 | $535,329 | $535,329 |
| 2008 | $380,819 | $215,000 | $0 | $595,819 | $595,819 |
| 2007 | $386,392 | $147,500 | $0 | $533,892 | $533,892 |
Deed and Sales History
| 1 | 05/26/2023 | WD | Warranty Deed | LOERA, JUAN A & SHELENE D | EARL, JAMES | | | $850,000.00 | 56870 | 4560528 |
|   | |
| 2 | 09/01/1997 | 5 | DNU - Marriage License/Name Change | LOERA, JUAN A | LOERA, JUAN A | | | $0.00 | 73100 | 97014614 |
| 3 | 08/01/1997 | OTHER | Other - Misc. Documents | LOERA, JUAN A | LOERA, JUAN A | | | $0.00 | 11111111 | 0 |
| 4 | 09/01/1993 | WD | Warranty Deed | FRIZZLE, BERNARD R | LOERA, JUAN A | | | $52,400.00 | 33787 | 93019620 |
| 5 | 07/01/1990 | WD | Warranty Deed | FRYE, REBECCA F | FRIZZLE, BERNARD R | | | $26,500.00 | 5221 | 90017395 |
| 6 | 02/01/1990 | DECREE | Divorce Decree/Legal Separation | FRYE, DAVID W | FRYE, REBECCA F | | | $0.00 | 5220 | 90017394 |
| 7 | 10/01/1981 | EZ | Easement | J, L K | FRYE, DAVID W | | | $21,984.00 | 13373 | 389578 |
| 8 | 02/01/1979 | OTHER | Other - Misc. Documents | Unknown | J, L K | | | $17,500.00 | 90928 | 348361 |
Payout Agreement
| No payout information available.. |