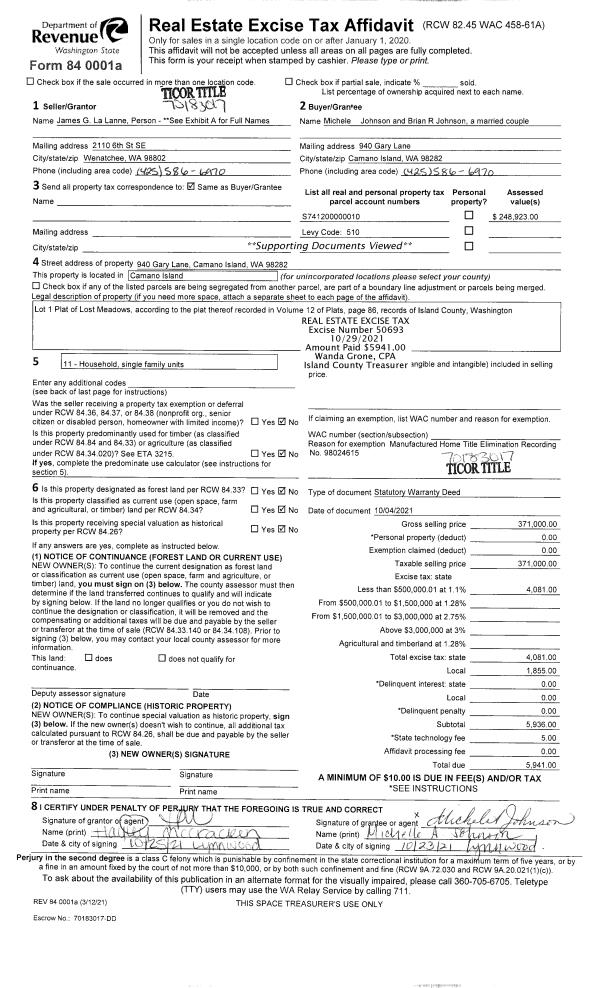
Property
Account |
| Property ID: | 728760 | Abbreviated Legal Description: | LOST MEADOWS LOT 1 |
| Geographic ID: | S7412-00-00001-0 | Agent Code: | |
| Type: | Real | | |
| Tax Area: | 510 - APPRAISER-Stan/Cam Schl Dist, improved & 1 acre or less | Land Use Code | 11 |
| Open Space: | N | DFL | N |
| Historic Property: | N | Remodel Property: | N |
| Multi-Family Redevelopment: | N | | |
| Township: | | Section: | |
| Range: | |
Location |
| Address: | 940 GARY LN CAMANO ISLAND, WA 98282 | Mapsco: | |
| Neighborhood: | Cycle 5 | Map ID: | 483 |
| Neighborhood CD: | 5 |
Owner |
| Name: | JOHNSON, MICHELE | Owner ID: | 302103 |
| Mailing Address: | BRIAN R JOHNSON 940 GARY LANE CAMANO ISLAND, WA 98282 | % Ownership: | 100.0000000000% |
| | | Exemptions: | |
Taxes and Assessment Details
Values
| (+) Improvement Homesite Value: | + | $0 | |
| (+) Improvement Non-Homesite Value: | + | $117,758 | |
| (+) Land Homesite Value: | + | $0 | |
| (+) Land Non-Homesite Value: | + | $210,000 | |
| (+) Curr Use (HS): | + | $0 | $0 |
| (+) Curr Use (NHS): | + | $0 | $0 |
| | | -------------------------- | |
| (=) Market Value: | = | $327,758 | |
| (–) Productivity Loss: | – | $0 | |
| | | -------------------------- | |
| (=) Subtotal: | = | $327,758 | |
| (+) Senior Appraised Value: | + | $0 | |
| (+) Non-Senior Appraised Value: | + | $327,758 | |
| | | -------------------------- | |
| (=) Total Appraised Value: | = | $327,758 | |
| (–) Senior Exemption Loss: | – | $0 | |
| (–) Exemption Loss: | – | $0 | |
| | | -------------------------- | |
| (=) Taxable Value: | = | $327,758 | |
Taxing Jurisdiction
| Owner: | JOHNSON, MICHELE | | |
| % Ownership: | 100.0000000000% | | |
| Total Value: | $327,758 | | |
| Tax Area: | 510 - APPRAISER-Stan/Cam Schl Dist, improved & 1 acre or less |
| CF | Conservation Futures | 0.0313996660 | $327,758 | $327,758 | $10.29 | | |
| EMS1 | Fire & Rescue Dist #1 Camano GEN (EMS) | 0.4998471806 | $327,758 | $327,758 | $163.83 | | |
| FIRE1 | Fire & Rescue Dist #1 Camano GEN | 1.2496603404 | $327,758 | $327,758 | $409.59 | | |
| FIRE1BOND | Fire & Rescue Dist #1 Camano BOND | 0.1630371212 | $327,758 | $327,758 | $53.44 | | |
| CE | County Current Expense | 0.3674210519 | $327,758 | $327,758 | $120.43 | | |
| CR | County Roads | 0.4614296361 | $327,758 | $327,758 | $151.24 | | |
| LIB | Library Sno-Isle GEN | 0.3039084203 | $327,758 | $327,758 | $99.61 | | |
| SCH205_401 | School 205-401 Enrichment | 1.3697998934 | $327,758 | $327,758 | $448.96 | | |
| SCH205BOND | School 205-401 BOND | 0.9354199323 | $327,758 | $327,758 | $306.59 | | |
| ST | State School | 1.4761226122 | $327,758 | $327,758 | $483.81 | | |
| ST2 | State School Part 2 | 0.7953803475 | $327,758 | $327,758 | $260.69 | | |
| | Total Tax Rate: | 7.6534262019 | | | | | |
| | | | | Taxes w/Current Exemptions: | $2,508.48 | | |
| | | | | Taxes w/o Exemptions: | $2,508.48 | | |
Improvement / Building
| Improvement #1: | MANUFACTURED HOME | State Code: | Y | 1080.0 sqft | Value: | $117,758 |
| Bathrooms: | 0 | Bedrooms: | 0 | | Ceiling: | PLASTER PAINTED | Cooling: | EVAP NO DUCT | | Exterior Wall/Cover: | VINYL | Floor Covering: | CARPET 100% | | Floor Structure: | SLAB ON GRADE | Foundation: | SLAB | | Heating: | FHA ELECTRIC | Interior Finish: | PLASTER | | Plumbing Fixture Cnt: | 1 | Roof Slope: | FLAT | | Roof Structure/Cover: | CJ ALUMINIUM HEAVY |   |   |
|
| | Type | Description | Class CD | Sub Class CD | Year Built | Area |
| | BAS | BASE/MAIN FLOOR | 4 | 0 | 1981 | 1080.0 |
| | DGR | DETACHED GARAGE | 4 | 0 | 1981 | 480.0 |
| | OWP | OPEN WOOD PORCH W/STEPS | 4 | 0 | 1981 | 84.0 |
| | OWR | OPEN WOOD PORCH W/STEPS/ROOF | 4 | 0 | 1981 | 160.0 |
Sketch
Property Image
Land
| 1 | 14 | SQ (08001-12000) | 0.0000 | 0.00 | 0.00 | 0.00 | 1.00 | $210,000 | $0 |
Roll Value History
| 2026 | N/A | N/A | N/A | N/A | N/A |
| 2025 | $117,758 | $210,000 | $0 | $327,758 | $327,758 |
| 2024 | $121,223 | $210,000 | $0 | $331,223 | $331,223 |
| 2023 | $108,417 | $210,000 | $0 | $318,417 | $318,417 |
| 2022 | $99,540 | $210,000 | $0 | $309,540 | $309,540 |
| 2021 | $78,923 | $170,000 | $0 | $248,923 | $248,923 |
| 2020 | $77,691 | $150,000 | $0 | $227,691 | $45,254 |
| 2019 | $62,874 | $170,000 | $0 | $232,874 | $45,254 |
| 2018 | $64,550 | $120,000 | $0 | $184,550 | $45,254 |
| 2017 | $66,227 | $120,000 | $0 | $186,227 | $45,254 |
| 2016 | $67,903 | $90,000 | $0 | $157,903 | $45,254 |
| 2015 | $71,436 | $65,000 | $0 | $136,436 | $45,254 |
| 2014 | $48,135 | $65,000 | $0 | $113,135 | $45,254 |
| 2013 | $49,496 | $65,000 | $0 | $114,496 | $114,496 |
| 2012 | $49,771 | $60,000 | $0 | $109,771 | $109,771 |
| 2011 | $50,945 | $75,000 | $0 | $125,945 | $125,945 |
| 2010 | $59,706 | $75,000 | $0 | $134,706 | $134,706 |
| 2009 | $63,156 | $100,000 | $0 | $163,156 | $163,156 |
| 2008 | $65,439 | $113,000 | $0 | $178,439 | $178,439 |
| 2007 | $67,792 | $88,000 | $0 | $155,792 | $155,792 |
Deed and Sales History
| 1 | 10/04/2021 | WD | Warranty Deed | DENNEY, EMMA L | JOHNSON, MICHELE | | | $371,000.00 | 50693 | 4532673 |
| 2 | 10/01/2014 | WD | Warranty Deed | MEANOR, BELVA J | DENNEY, EMMA L | | | $150,000.00 | 17190 | 4367055 |
| 3 | 10/29/2012 | WD | Warranty Deed | SMITH III, EDWARD E | MEANOR, BELVA J | | | $127,000.00 | 9316 | 4326246 |
| 4 | 12/19/2002 | WD | Warranty Deed | & URBAN DEVELOPMENT, SECREATRY | SMITH III, EDWARD E | | | $95,100.00 | 25222 | 4042369 |
| 5 | 10/07/2002 | TRUSTEED | Trustee's Deed | CHASE MANHATTAN MORTGAGE CORP, | & URBAN DEVELOPMENT, SECREATRY | | | $122,588.00 | 24034 | 4033653 |
| 6 | 06/07/2002 | TRUSTEED | Trustee's Deed | CORNING, BRETT A | CHASE MANHATTAN MORTGAGE CORP, | | | $154,461.00 | 60702 | 4022406 |
| 7 | 09/27/1999 | WD | Warranty Deed | MALTZIE, WILLIAM K | CORNING, BRETT A | | | $124,000.00 | 94088 | 99022511 |
| 8 | 09/28/1998 | WD | Warranty Deed | Unknown | MALTZIE, WILLIAM K | | | $71,004.00 | 83894 | 98020971 |
Payout Agreement
| No payout information available.. |