Property
Account |
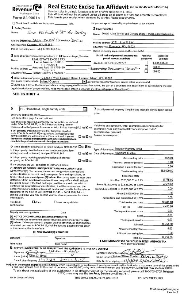
| Property ID: | 728797 | Abbreviated Legal Description: | 41 - PT GL4 DESC: BG INTER OF WLY LN CO RD & LN PARA/W & 440'S OF NLN SD GL4 N28*W ALG WLY LN SD CO RD 180.15' N42*W ALG SD RD 149.6' TPB N42*W ALG SD CO RD 85' S50*W120' M/L TO ML SELY ALG SD ML TP S50*W FR TPB N50*E TPB INCL ADJ TIDES EX: BG NECR SD G |
| Geographic ID: | R23123-517-0930 | Agent Code: | |
| Type: | Real | | |
| Tax Area: | 510 - APPRAISER-Stan/Cam Schl Dist, improved & 1 acre or less | Land Use Code | 11 |
| Open Space: | N | DFL | N |
| Historic Property: | N | Remodel Property: | N |
| Multi-Family Redevelopment: | N | | |
| Township: | 31 | Section: | 23 |
| Range: | R2 |
Location |
| Address: | 1212 S WEST CAMANO DR CAMANO ISLAND, WA 98282 | Mapsco: | |
| Neighborhood: | Cycle 5 | Map ID: | 502 |
| Neighborhood CD: | 5 |
Owner |
| Name: | TOWLER, DANIEL ALLEN | Owner ID: | 314581 |
| Mailing Address: | CORINNE DIANE TOWLER 8721 191ST PL SW EDMONDS, WA 98026 | % Ownership: | 100.0000000000% |
| | | Exemptions: | |
Taxes and Assessment Details
Values
| (+) Improvement Homesite Value: | + | $0 | |
| (+) Improvement Non-Homesite Value: | + | $248,621 | |
| (+) Land Homesite Value: | + | $0 | |
| (+) Land Non-Homesite Value: | + | $600,672 | |
| (+) Curr Use (HS): | + | $0 | $0 |
| (+) Curr Use (NHS): | + | $0 | $0 |
| | | -------------------------- | |
| (=) Market Value: | = | $849,293 | |
| (–) Productivity Loss: | – | $0 | |
| | | -------------------------- | |
| (=) Subtotal: | = | $849,293 | |
| (+) Senior Appraised Value: | + | $0 | |
| (+) Non-Senior Appraised Value: | + | $849,293 | |
| | | -------------------------- | |
| (=) Total Appraised Value: | = | $849,293 | |
| (–) Senior Exemption Loss: | – | $0 | |
| (–) Exemption Loss: | – | $0 | |
| | | -------------------------- | |
| (=) Taxable Value: | = | $849,293 | |
Taxing Jurisdiction
| Owner: | TOWLER, DANIEL ALLEN | | |
| % Ownership: | 100.0000000000% | | |
| Total Value: | $849,293 | | |
| Tax Area: | 510 - APPRAISER-Stan/Cam Schl Dist, improved & 1 acre or less |
| CF | Conservation Futures | 0.0313996660 | $849,293 | $849,293 | $26.67 | | |
| EMS1 | Fire & Rescue Dist #1 Camano GEN (EMS) | 0.4998471806 | $849,293 | $849,293 | $424.52 | | |
| FIRE1 | Fire & Rescue Dist #1 Camano GEN | 1.2496603404 | $849,293 | $849,293 | $1,061.33 | | |
| FIRE1BOND | Fire & Rescue Dist #1 Camano BOND | 0.1630371212 | $849,293 | $849,293 | $138.47 | | |
| CE | County Current Expense | 0.3674210519 | $849,293 | $849,293 | $312.05 | | |
| CR | County Roads | 0.4614296361 | $849,293 | $849,293 | $391.89 | | |
| LIB | Library Sno-Isle GEN | 0.3039084203 | $849,293 | $849,293 | $258.11 | | |
| SCH205_401 | School 205-401 Enrichment | 1.3697998934 | $849,293 | $849,293 | $1,163.36 | | |
| SCH205BOND | School 205-401 BOND | 0.9354199323 | $849,293 | $849,293 | $794.45 | | |
| ST | State School | 1.4761226122 | $849,293 | $849,293 | $1,253.66 | | |
| ST2 | State School Part 2 | 0.7953803475 | $849,293 | $849,293 | $675.51 | | |
| | Total Tax Rate: | 7.6534262019 | | | | | |
| | | | | Taxes w/Current Exemptions: | $6,500.02 | | |
| | | | | Taxes w/o Exemptions: | $6,500.02 | | |
Improvement / Building
| Improvement #1: | RESIDENTIAL | State Code: | Y | 984.0 sqft | Value: | $248,621 |
| Bathrooms: | 1 | Bedrooms: | 2 | | Ceiling: | PLASTER PAINTED | Exterior Wall/Cover: | WOOD SIDING | | Floor Covering: | VINYL TILE/HARWD 20-80 | Floor Structure: | WOOD W/SUBFLOOR | | Foundation: | CONCRETE | Heating: | BASEBOARD ELECTRIC | | Interior Finish: | PLASTER | Plumbing Fixture Cnt: | 6 | | Roof Slope: | 12" IN 12" | Roof Structure/Cover: | CJ ASPHALT |
|
| | Type | Description | Class CD | Sub Class CD | Year Built | Area |
| | BAS | BASE/MAIN FLOOR | 3 | 0 | 1939 | 984.0 |
| | UB6 | BASEMENT UNFINISHED 6" | 3 | 0 | 1939 | 468.0 |
| | OWP | OPEN WOOD PORCH W/STEPS | 3 | 0 | 1939 | 328.0 |
| | OWR | OPEN WOOD PORCH W/STEPS/ROOF | 3 | 0 | 1939 | 328.0 |
| | DGR | DETACHED GARAGE | 3 | 0 | 1939 | 288.0 |
Sketch
| No sketches available for this property. |
Property Image
Land
| 1 | HB | HIGH BLUFF | 0.2100 | 9147.60 | 42.50 | 0.00 | 1.00 | $600,000 | $0 |
| 2 | 55 | TIDES | 0.0000 | 0.00 | 0.00 | 0.00 | 1.00 | $672 | $0 |
Roll Value History
| 2026 | N/A | N/A | N/A | N/A | N/A |
| 2025 | $248,621 | $600,672 | $0 | $849,293 | $849,293 |
| 2024 | $214,169 | $600,672 | $0 | $814,841 | $814,841 |
| 2023 | $217,055 | $600,672 | $0 | $817,727 | $817,727 |
| 2022 | $199,160 | $500,672 | $0 | $699,832 | $699,832 |
| 2021 | $170,916 | $300,672 | $0 | $471,588 | $471,588 |
| 2020 | $166,887 | $300,672 | $0 | $467,559 | $467,559 |
| 2019 | $119,445 | $300,672 | $0 | $420,117 | $386,147 |
| 2018 | $119,830 | $300,672 | $0 | $420,502 | $386,147 |
| 2017 | $85,475 | $300,672 | $0 | $386,147 | $386,147 |
| 2016 | $86,854 | $300,672 | $0 | $387,526 | $387,526 |
| 2015 | $75,130 | $300,672 | $0 | $375,802 | $375,802 |
| 2014 | $76,350 | $350,672 | $0 | $427,022 | $427,022 |
| 2013 | $77,569 | $223,025 | $0 | $300,594 | $300,594 |
| 2012 | $78,788 | $232,460 | $0 | $311,248 | $311,248 |
| 2011 | $80,008 | $290,400 | $0 | $370,408 | $370,408 |
| 2010 | $92,985 | $354,148 | $0 | $447,133 | $447,133 |
| 2009 | $76,138 | $380,740 | $0 | $456,878 | $456,878 |
| 2008 | $77,363 | $326,471 | $0 | $403,834 | $403,834 |
| 2007 | $78,685 | $437,977 | $0 | $516,662 | $516,662 |
Deed and Sales History
| 1 | 11/13/2024 | WD | Warranty Deed | HYKO TRUSTEE, ALLEN D | TOWLER, DANIEL ALLEN | | | $882,000.00 | 61856 | 457985 |
| 2 | 07/19/2017 | WD | Warranty Deed | WHITAKER, KERIE S | HYKO TRUSTEE, ALLEN D | | | $455,000.00 | 30488 | 4427551 |
| 3 | 08/18/2006 | ESTSEPPROP | Establish Separate Property | WHITAKER, KERIE S | WHITAKER, KERIE S | | | $0.00 | 63621 | 4179580 |
| 4 | 08/18/2006 | WD | Warranty Deed | ANDERSON, GEOFFREY H | WHITAKER, KERIE S | | | $572,500.00 | 63620 | 4179579 |
| 5 | 11/04/1998 | WD | Warranty Deed | COCHRAN, RUTH E | ANDERSON, GEOFFREY H | | | $175,000.00 | 84541 | 98024702 |
| 6 | 06/25/1998 | OTHER | Other - Misc. Documents | COCHRAN, HAROLD C | COCHRAN, RUTH E | | | $0.00 | 67912 | 0 |
| 7 | 01/01/1900 | OTHER | Other - Misc. Documents | Unknown | COCHRAN, HAROLD C | | | $0.00 | 0 | 0 |
Payout Agreement
| No payout information available.. |