Property
Account |
| Property ID: | 731818 | Abbreviated Legal Description: | W/2 N/2 N/2 N/2 SW NE TGW W/2 W/2 E/2 N/2 N/2 SW NE TGW & SUB EZ FR 387-2980 ALSO TGW PT S/2 SW NW NE DESC BG SW COR OF SAID S/2 N89*E ALG SLN OF S/2 340.97' N8*W 31.54' S87*W 336.11' TO PT WLN OF SAID S/2 S0*W ALG WLN 22.43' TO TPB EX PT DESC; PT W/2 |
| Geographic ID: | R32802-382-3000 | Agent Code: | |
| Type: | Real | | |
| Tax Area: | 712 - APPRAISER-S Whid Schl Dist, outside Langley, improved, greater than 1 acre | Land Use Code | 11 |
| Open Space: | N | DFL | N |
| Historic Property: | N | Remodel Property: | N |
| Multi-Family Redevelopment: | N | | |
| Township: | 28 | Section: | 02 |
| Range: | R3 |
Location |
| Address: | 7309 JEWETT RD CLINTON, WA 98236 | Mapsco: | |
| Neighborhood: | Cycle 4 | Map ID: | 682 |
| Neighborhood CD: | 4 |
Owner |
| Name: | EGGEBRAATEN, KILEY | Owner ID: | 303766 |
| Mailing Address: | 7309 JEWETT RD CLINTON, WA 98236 | % Ownership: | 100.0000000000% |
| | | Exemptions: | |
Taxes and Assessment Details
Values
| (+) Improvement Homesite Value: | + | $0 | |
| (+) Improvement Non-Homesite Value: | + | $275,966 | |
| (+) Land Homesite Value: | + | $0 | |
| (+) Land Non-Homesite Value: | + | $360,000 | |
| (+) Curr Use (HS): | + | $0 | $0 |
| (+) Curr Use (NHS): | + | $0 | $0 |
| | | -------------------------- | |
| (=) Market Value: | = | $635,966 | |
| (–) Productivity Loss: | – | $0 | |
| | | -------------------------- | |
| (=) Subtotal: | = | $635,966 | |
| (+) Senior Appraised Value: | + | $0 | |
| (+) Non-Senior Appraised Value: | + | $635,966 | |
| | | -------------------------- | |
| (=) Total Appraised Value: | = | $635,966 | |
| (–) Senior Exemption Loss: | – | $0 | |
| (–) Exemption Loss: | – | $0 | |
| | | -------------------------- | |
| (=) Taxable Value: | = | $635,966 | |
Taxing Jurisdiction
| Owner: | EGGEBRAATEN, KILEY | | |
| % Ownership: | 100.0000000000% | | |
| Total Value: | $635,966 | | |
| Tax Area: | 712 - APPRAISER-S Whid Schl Dist, outside Langley, improved, greater than 1 acre |
| CF | Conservation Futures | 0.0313996660 | $635,966 | $635,966 | $19.97 | | |
| FIRE3 | Fire & Rescue Dist #3 S Whidbey GEN | 1.2130821753 | $635,966 | $635,966 | $771.48 | | |
| HOBOND | Hospital BOND | 0.1893405597 | $635,966 | $635,966 | $120.41 | | |
| HOGEN | Hospital GEN | 0.3848777722 | $635,966 | $635,966 | $244.77 | | |
| CE | County Current Expense | 0.3674210519 | $635,966 | $635,966 | $233.67 | | |
| CR | County Roads | 0.4614296361 | $635,966 | $635,966 | $293.45 | | |
| ISLANDEMS | Hospital GEN (EMS) | 0.4952018576 | $635,966 | $635,966 | $314.93 | | |
| LIB | Library Sno-Isle GEN | 0.3039084203 | $635,966 | $635,966 | $193.28 | | |
| PORTWHID | Port of S Whidbey GEN | 0.1086004714 | $635,966 | $635,966 | $69.07 | | |
| SCH206BOND | School 206 BOND | 0.5960237832 | $635,966 | $635,966 | $379.05 | | |
| SCH206CAP | School 206 CP | 0.3066144020 | $635,966 | $635,966 | $195.00 | | |
| SCH206MO | School 206 Enrichment | 0.4808755445 | $635,966 | $635,966 | $305.82 | | |
| ST | State School | 1.4761226122 | $635,966 | $635,966 | $938.76 | | |
| ST2 | State School Part 2 | 0.7953803475 | $635,966 | $635,966 | $505.83 | | |
| SWHIDPRBD | P & R S Whidbey BOND | 0.0144185398 | $635,966 | $635,966 | $9.17 | | |
| SWHIDPRBD3 | P & R S Whidbey BOND3 | 0.1483535547 | $635,966 | $635,966 | $94.35 | | |
| SWHIDPRMT | P & R S Whidbey GEN | 0.4600000000 | $635,966 | $635,966 | $292.54 | | |
| | Total Tax Rate: | 7.8330503944 | | | | | |
| | | | | Taxes w/Current Exemptions: | $4,981.55 | | |
| | | | | Taxes w/o Exemptions: | $4,981.55 | | |
Improvement / Building
| Improvement #1: | RESIDENTIAL | State Code: | Y | 1980.0 sqft | Value: | $275,966 |
| Bathrooms: | 1.5 | Bedrooms: | 2 | | Ceiling: | DRYWALL PAINTED | Cooling: | HEAT PUMP/CONV/V | | Exterior Wall/Cover: | WOOD SIDING | Floor Covering: | CARPET/VINYL 80-20 | | Floor Structure: | SLAB ABOVE GRADE | Foundation: | CONCRETE | | Interior Finish: | DRYWALL PAINT | Plumbing Fixture Cnt: | 9 | | Roof Slope: | 4" IN 12" | Roof Structure/Cover: | CJ ASPHALT |
|
| | Type | Description | Class CD | Sub Class CD | Year Built | Area |
| | BAS | BASE/MAIN FLOOR | 3 | 0 | 1977 | 1049.0 |
| | UPH | HALF STORY | 3 | 0 | 1977 | 330.0 |
| | UPS | UPPER STORY | 3 | 0 | 1977 | 121.0 |
| | OWP | OPEN WOOD PORCH W/STEPS | 3 | 0 | 1977 | 196.0 |
| | LOF | LOFT | 3 | 0 | 1977 | 480.0 |
| | DGR | DETACHED GARAGE | 3 | 0 | 1977 | 952.0 |
Sketch
| No sketches available for this property. |
Property Image
Land
| 1 | 32 | AC (03.01-09.99) | 3.4600 | 150717.60 | 0.00 | 0.00 | 1.00 | $360,000 | $0 |
Roll Value History
| 2026 | N/A | N/A | N/A | N/A | N/A |
| 2025 | $275,966 | $360,000 | $0 | $635,966 | $635,966 |
| 2024 | $279,788 | $340,000 | $0 | $619,788 | $619,788 |
| 2023 | $283,608 | $330,000 | $0 | $613,608 | $613,608 |
| 2022 | $255,690 | $280,000 | $0 | $535,690 | $535,690 |
| 2021 | $225,302 | $230,000 | $0 | $455,302 | $455,302 |
| 2020 | $212,047 | $190,000 | $0 | $402,047 | $402,047 |
| 2019 | $165,230 | $220,000 | $0 | $385,230 | $385,230 |
| 2018 | $165,641 | $210,000 | $0 | $375,641 | $375,641 |
| 2017 | $166,466 | $165,000 | $0 | $331,466 | $331,466 |
| 2016 | $168,113 | $165,000 | $0 | $333,113 | $333,113 |
| 2015 | $169,763 | $150,000 | $0 | $319,763 | $319,763 |
| 2014 | $163,747 | $100,000 | $0 | $263,747 | $263,747 |
| 2013 | $165,394 | $85,000 | $0 | $250,394 | $250,394 |
| 2012 | $167,044 | $127,500 | $0 | $294,544 | $294,544 |
| 2011 | $168,691 | $127,500 | $0 | $296,191 | $296,191 |
| 2010 | $175,182 | $127,500 | $0 | $302,682 | $302,682 |
| 2009 | $181,795 | $165,000 | $0 | $346,795 | $346,795 |
| 2008 | $146,013 | $187,500 | $0 | $333,513 | $333,513 |
| 2007 | $148,651 | $157,500 | $0 | $306,151 | $306,151 |
Deed and Sales History
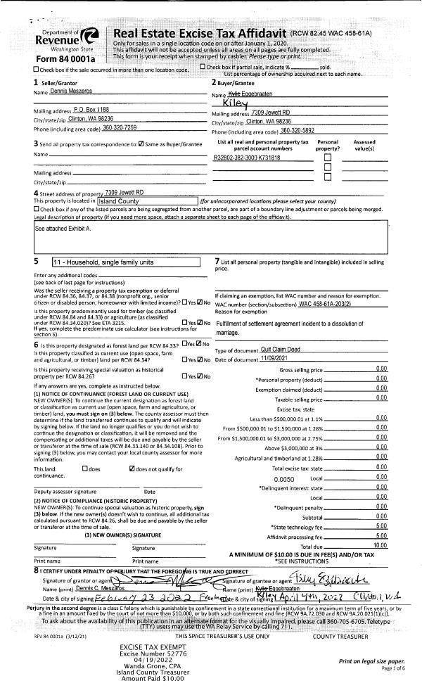
| 1 | 11/09/2021 | QCD | Quit Claim Deed | MESZAROS, DENNIS C | EGGEBRAATEN, KILEY | | | $0.00 | 52776 | 4543655 |
| 2 | 03/02/2009 | ESTSEPPROP | Establish Separate Property | LUCKER, HELENA MARIA | LUCKER, HELENA MARIA | | | $0.00 | 81119 | 4201493 |
| 3 | 03/02/2009 | ESTSEPPROP | Establish Separate Property | Unknown | MESZAROS, DENNIS C | | | $0.00 | 81119 | 4201493 |
| 4 | 03/02/2009 | BLA | DNU - Boundary Line Adjustment | LUCKER, HELENA MARIA | LUCKER, HELENA MARIA | | | $0.00 | 81119 | 4201045 |
| 5 | 03/02/2009 | BLA | DNU - Boundary Line Adjustment | LUCKER, HELENA MARIA | LUCKER, HELENA MARIA | | | $0.00 | 81118 | 4199816 |
| 6 | 05/09/2007 | WD | Warranty Deed | LUCKER, HELENA MARIA | MESZAROS, DENNIS C | | | $375,000.00 | 71560 | 4201745 |
| 7 | 04/26/2007 | ESTSEPPROP | Establish Separate Property | LUCKER, HELENA MARIA | LUCKER, HELENA MARIA | | | $0.00 | 71357 | 4200580 |
| 8 | 01/12/1999 | QCD | Quit Claim Deed | MARSHALL, CHRISTOPHER N | LUCKER, HELENA MARIA | | | $50,000.00 | 90140 | 99000865 |
| 9 | 12/01/1995 | OTHER | Other - Misc. Documents | MARSHALL, CHRISTOPHER N | MARSHALL, CHRISTOPHER N | | | $0.00 | 66752 | 95019781 |
| 10 | 12/01/1995 | WD | Warranty Deed | MARSHALL, CHRISTOPHER N | MARSHALL, CHRISTOPHER N | | | $6,000.00 | 54287 | 95019782 |
| 11 | 01/01/1900 | OTHER | Other - Misc. Documents | MESZAROS, DENNIS C | MARSHALL, CHRISTOPHER N | | | $0.00 | 31954 | 93010166 |
Payout Agreement
| No payout information available.. |