Property
Account |
| Property ID: | 732238 | Abbreviated Legal Description: | ROLL HILL LOT 2 BLK 6 |
| Geographic ID: | S8050-00-06002-0 | Agent Code: | |
| Type: | Real | | |
| Tax Area: | 330 - APPRAISER-Cpvl Schl Dist, Special Dist, improved & less than 1 acre | Land Use Code | 11 |
| Open Space: | N | DFL | N |
| Historic Property: | N | Remodel Property: | N |
| Multi-Family Redevelopment: | N | | |
| Township: | | Section: | |
| Range: | |
Location |
| Address: | | Mapsco: | |
| Neighborhood: | Cycle 2 | Map ID: | 149 |
| Neighborhood CD: | 2 |
Owner |
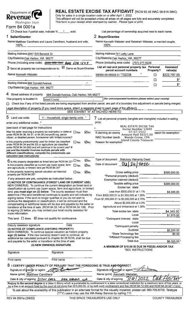
| Name: | WEBSTER, KENNETH | Owner ID: | 304946 |
| Mailing Address: | REBEKAH WEBSTER 994 DONALD AVE OAK HARBOR, WA 98277 | % Ownership: | 100.0000000000% |
| | | Exemptions: | |
Taxes and Assessment Details
Values
| (+) Improvement Homesite Value: | + | $0 | |
| (+) Improvement Non-Homesite Value: | + | $144,168 | |
| (+) Land Homesite Value: | + | $0 | |
| (+) Land Non-Homesite Value: | + | $220,000 | |
| (+) Curr Use (HS): | + | $0 | $0 |
| (+) Curr Use (NHS): | + | $0 | $0 |
| | | -------------------------- | |
| (=) Market Value: | = | $364,168 | |
| (–) Productivity Loss: | – | $0 | |
| | | -------------------------- | |
| (=) Subtotal: | = | $364,168 | |
| (+) Senior Appraised Value: | + | $0 | |
| (+) Non-Senior Appraised Value: | + | $364,168 | |
| | | -------------------------- | |
| (=) Total Appraised Value: | = | $364,168 | |
| (–) Senior Exemption Loss: | – | $0 | |
| (–) Exemption Loss: | – | $0 | |
| | | -------------------------- | |
| (=) Taxable Value: | = | $364,168 | |
Taxing Jurisdiction
| Owner: | WEBSTER, KENNETH | | |
| % Ownership: | 100.0000000000% | | |
| Total Value: | $364,168 | | |
| Tax Area: | 330 - APPRAISER-Cpvl Schl Dist, Special Dist, improved & less than 1 acre |
| CF | Conservation Futures | 0.0313996660 | $364,168 | $364,168 | $11.43 | | |
| CEM2 | Cemetery #2 | 0.0092609791 | $364,168 | $364,168 | $3.37 | | |
| FIRE2 | Fire & Rescue Dist #2 N Whidbey GEN | 0.5381486274 | $364,168 | $364,168 | $195.98 | | |
| HOBOND | Hospital BOND | 0.1893405597 | $364,168 | $364,168 | $68.95 | | |
| HOGEN | Hospital GEN | 0.3848777722 | $364,168 | $364,168 | $140.16 | | |
| CE | County Current Expense | 0.3674210519 | $364,168 | $364,168 | $133.80 | | |
| CR | County Roads | 0.4614296361 | $364,168 | $364,168 | $168.04 | | |
| ISLANDEMS | Hospital GEN (EMS) | 0.4952018576 | $364,168 | $364,168 | $180.34 | | |
| LIB | Library Sno-Isle GEN | 0.3039084203 | $364,168 | $364,168 | $110.67 | | |
| LIBCAP | Library Sno-Isle BOND (Cap Fac Imp Area) | 0.0528562629 | $364,168 | $364,168 | $19.25 | | |
| POCOUP | Port of Coupeville GEN | 0.1065226063 | $364,168 | $364,168 | $38.79 | | |
| POCOUPIDD | Port of Coupeville IDD | 0.3353038577 | $364,168 | $364,168 | $122.11 | | |
| COUPSDTECH | School 204 CP (TECH) | 0.1215123397 | $364,168 | $364,168 | $44.25 | | |
| SCH204MO | School 204 Enrichment | 0.6416662518 | $364,168 | $364,168 | $233.67 | | |
| ST | State School | 1.4761226122 | $364,168 | $364,168 | $537.56 | | |
| ST2 | State School Part 2 | 0.7953803475 | $364,168 | $364,168 | $289.65 | | |
| | Total Tax Rate: | 6.3103528484 | | | | | |
| | | | | Taxes w/Current Exemptions: | $2,298.02 | | |
| | | | | Taxes w/o Exemptions: | $2,298.02 | | |
Improvement / Building
| Improvement #1: | MANUFACTURED HOME | State Code: | Y | 1512.0 sqft | Value: | $144,168 |
| Bathrooms: | 0 | Bedrooms: | 0 | | Ceiling: | PLASTER PAINTED | Cooling: | EVAP NO DUCT | | Exterior Wall/Cover: | VINYL | Floor Covering: | CARPET 100% | | Floor Structure: | SLAB ON GRADE | Foundation: | SLAB | | Heating: | FHA ELECTRIC | Interior Finish: | PLASTER | | Plumbing Fixture Cnt: | 1 | Roof Slope: | FLAT | | Roof Structure/Cover: | CJ ALUMINIUM HEAVY |   |   |
|
| | Type | Description | Class CD | Sub Class CD | Year Built | Area |
| | BAS | BASE/MAIN FLOOR | 4 | 0 | 1991 | 1512.0 |
| | UTY | STORAGE/UTILITY | 4 | 0 | 1991 | 192.0 |
Sketch
Property Image
Land
| 1 | 15 | SQ (12001-21780) | 0.4400 | 19166.40 | 0.00 | 0.00 | 1.00 | $220,000 | $0 |
Roll Value History
| 2026 | N/A | N/A | N/A | N/A | N/A |
| 2025 | $144,168 | $220,000 | $0 | $364,168 | $364,168 |
| 2024 | $147,641 | $210,000 | $0 | $357,641 | $357,641 |
| 2023 | $129,895 | $220,000 | $0 | $349,895 | $349,895 |
| 2022 | $46,318 | $220,000 | $0 | $266,318 | $266,318 |
| 2021 | $42,797 | $180,000 | $0 | $222,797 | $222,797 |
| 2020 | $43,178 | $140,000 | $0 | $183,178 | $183,178 |
| 2019 | $35,293 | $170,000 | $0 | $205,293 | $205,293 |
| 2018 | $36,576 | $135,000 | $0 | $171,576 | $171,576 |
| 2017 | $38,501 | $120,000 | $0 | $158,501 | $158,501 |
| 2016 | $39,785 | $100,000 | $0 | $139,785 | $139,785 |
| 2015 | $41,068 | $70,000 | $0 | $111,068 | $111,068 |
| 2014 | $42,352 | $60,000 | $0 | $102,352 | $102,352 |
| 2013 | $43,635 | $55,000 | $0 | $98,635 | $98,635 |
| 2012 | $50,547 | $57,800 | $0 | $108,347 | $108,347 |
| 2011 | $51,985 | $68,000 | $0 | $119,985 | $119,985 |
| 2010 | $60,240 | $68,000 | $0 | $128,240 | $128,240 |
| 2009 | $63,735 | $74,400 | $0 | $138,135 | $138,135 |
| 2008 | $94,613 | $74,400 | $0 | $169,013 | $169,013 |
| 2007 | $96,158 | $74,400 | $0 | $170,558 | $170,558 |
Deed and Sales History
| 1 | 06/29/2022 | WD | Warranty Deed | CAROTHERS, MATTHEW | WEBSTER, KENNETH | | | $395,000.00 | 53695 | 4547709 |
| 2 | 11/05/2021 | QCD | Quit Claim Deed | CAROTHERS, LAURA | CAROTHERS, MATTHEW | | | $0.00 | 50852 | 4533664 |
| 3 | 11/05/2021 | WD | Warranty Deed | BANES, DONNY WILLIAM | CAROTHERS, MATTHEW | | | $215,000.00 | 50851 | 4533663 |
| 4 | 06/14/2002 | TRUSTEED | Trustee's Deed | MTG CORP, CHASE MANHATTAN | BANES, DONNY WILLIAM | | | $97,000.00 | 22597 | 4024802 |
| 5 | 02/04/2002 | TRUSTEED | Trustee's Deed | WOODWARD, FRANCES A | MTG CORP, CHASE MANHATTAN | | | $102,426.00 | 20626 | 4011907 |
| 6 | 01/08/2001 | OTHER | Other - Misc. Documents | WOODWARD, JOSEPH A | WOODWARD, FRANCES A | | | $0.00 | 68914 | 20021639 |
| 7 | 09/01/1993 | OTHER | Other - Misc. Documents | Unknown | WOODWARD, JOSEPH A | | | $55,000.00 | 33654 | 0 |
| 8 | 09/01/1993 | WD | Warranty Deed | LAMONT, DOUGLAS W | WOODWARD, JOSEPH A | | | $30,000.00 | 33655 | 93018978 |
| 9 | 10/01/1990 | WD | Warranty Deed | STAHL, SUE | LAMONT, DOUGLAS W | | | $14,500.00 | 5764 | 90019393 |
| 10 | 01/01/1900 | OTHER | Other - Misc. Documents | WOODWARD, JOSEPH A | STAHL, SUE | | | $0.00 | 0 | 0 |
Payout Agreement
| No payout information available.. |