Property
Account |
| Property ID: | 73226 | Abbreviated Legal Description: | 63 - IN GL 3: BG NECR GL3 W TO NWCR GL3 SLY TO NWCR OF S1000' OF GL3 E TO HITDLN TPB E60' N65' W60' M/L TO HITDLN SLY TPB |
| Geographic ID: | R23103-367-2670 | Agent Code: | |
| Type: | Real | | |
| Tax Area: | 510 - APPRAISER-Stan/Cam Schl Dist, improved & 1 acre or less | Land Use Code | 11 |
| Open Space: | N | DFL | N |
| Historic Property: | N | Remodel Property: | N |
| Multi-Family Redevelopment: | N | | |
| Township: | 31 | Section: | 03 |
| Range: | R2 |
Location |
| Address: | 1122 ROCKAWAY LN CAMANO ISLAND, WA 98282 | Mapsco: | |
| Neighborhood: | Cycle 5 | Map ID: | 458 |
| Neighborhood CD: | 5 |
Owner |
| Name: | BASSLI, SHAI | Owner ID: | 295933 |
| Mailing Address: | LUCY BASSLI 12950 NE 39TH ST BELLEVUE, WA 98005 | % Ownership: | 100.0000000000% |
| | | Exemptions: | |
Taxes and Assessment Details
Values
| (+) Improvement Homesite Value: | + | $0 | |
| (+) Improvement Non-Homesite Value: | + | $141,037 | |
| (+) Land Homesite Value: | + | $0 | |
| (+) Land Non-Homesite Value: | + | $525,000 | |
| (+) Curr Use (HS): | + | $0 | $0 |
| (+) Curr Use (NHS): | + | $0 | $0 |
| | | -------------------------- | |
| (=) Market Value: | = | $666,037 | |
| (–) Productivity Loss: | – | $0 | |
| | | -------------------------- | |
| (=) Subtotal: | = | $666,037 | |
| (+) Senior Appraised Value: | + | $0 | |
| (+) Non-Senior Appraised Value: | + | $666,037 | |
| | | -------------------------- | |
| (=) Total Appraised Value: | = | $666,037 | |
| (–) Senior Exemption Loss: | – | $0 | |
| (–) Exemption Loss: | – | $0 | |
| | | -------------------------- | |
| (=) Taxable Value: | = | $666,037 | |
Taxing Jurisdiction
| Owner: | BASSLI, SHAI | | |
| % Ownership: | 100.0000000000% | | |
| Total Value: | $666,037 | | |
| Tax Area: | 510 - APPRAISER-Stan/Cam Schl Dist, improved & 1 acre or less |
| CF | Conservation Futures | 0.0313996660 | $666,037 | $666,037 | $20.91 | | |
| EMS1 | Fire & Rescue Dist #1 Camano GEN (EMS) | 0.4998471806 | $666,037 | $666,037 | $332.92 | | |
| FIRE1 | Fire & Rescue Dist #1 Camano GEN | 1.2496603404 | $666,037 | $666,037 | $832.32 | | |
| FIRE1BOND | Fire & Rescue Dist #1 Camano BOND | 0.1630371212 | $666,037 | $666,037 | $108.59 | | |
| CE | County Current Expense | 0.3674210519 | $666,037 | $666,037 | $244.72 | | |
| CR | County Roads | 0.4614296361 | $666,037 | $666,037 | $307.33 | | |
| LIB | Library Sno-Isle GEN | 0.3039084203 | $666,037 | $666,037 | $202.41 | | |
| SCH205_401 | School 205-401 Enrichment | 1.3697998934 | $666,037 | $666,037 | $912.34 | | |
| SCH205BOND | School 205-401 BOND | 0.9354199323 | $666,037 | $666,037 | $623.02 | | |
| ST | State School | 1.4761226122 | $666,037 | $666,037 | $983.15 | | |
| ST2 | State School Part 2 | 0.7953803475 | $666,037 | $666,037 | $529.75 | | |
| | Total Tax Rate: | 7.6534262019 | | | | | |
| | | | | Taxes w/Current Exemptions: | $5,097.46 | | |
| | | | | Taxes w/o Exemptions: | $5,097.46 | | |
Improvement / Building
| Improvement #1: | RESIDENTIAL | State Code: | Y | 840.0 sqft | Value: | $141,037 |
| Bathrooms: | 1 | Bedrooms: | 2 | | Ceiling: | DRYWALL PAINTED | Exterior Wall/Cover: | WOOD SIDING | | Floor Covering: | VINYL 100% | Floor Structure: | WOOD W/SUBFLOOR | | Foundation: | CONCRETE | Heating: | WALL HEAT ELECTRIC | | Interior Finish: | DRYWALL PAINT | Plumbing Fixture Cnt: | 6 | | Roof Slope: | 4" IN 12" | Roof Structure/Cover: | BEAM ASPHALT |
|
| | Type | Description | Class CD | Sub Class CD | Year Built | Area |
| | BAS | BASE/MAIN FLOOR | 3 | 0 | 1965 | 840.0 |
| | OWP | OPEN WOOD PORCH W/STEPS | 3 | 0 | 1965 | 280.0 |
Sketch
Property Image
Land
| 1 | LB | LOW BANK | 0.1000 | 4356.00 | 65.00 | 0.00 | 1.00 | $525,000 | $0 |
Roll Value History
| 2026 | N/A | N/A | N/A | N/A | N/A |
| 2025 | $141,037 | $525,000 | $0 | $666,037 | $666,037 |
| 2024 | $142,962 | $525,000 | $0 | $667,962 | $667,962 |
| 2023 | $144,888 | $525,000 | $0 | $669,888 | $669,888 |
| 2022 | $132,938 | $500,000 | $0 | $632,938 | $632,938 |
| 2021 | $112,566 | $350,000 | $0 | $462,566 | $462,566 |
| 2020 | $111,216 | $350,000 | $0 | $461,216 | $461,216 |
| 2019 | $75,797 | $300,000 | $0 | $375,797 | $375,797 |
| 2018 | $76,046 | $250,000 | $0 | $326,046 | $326,046 |
| 2017 | $76,543 | $250,000 | $0 | $326,543 | $326,543 |
| 2016 | $77,537 | $250,000 | $0 | $327,537 | $327,537 |
| 2015 | $79,605 | $250,000 | $0 | $329,605 | $329,605 |
| 2014 | $64,584 | $450,000 | $0 | $514,584 | $514,584 |
| 2013 | $65,533 | $466,084 | $0 | $531,617 | $531,617 |
| 2012 | $66,483 | $466,084 | $0 | $532,567 | $532,567 |
| 2011 | $67,433 | $582,605 | $0 | $650,038 | $650,038 |
| 2010 | $74,085 | $582,605 | $0 | $656,690 | $656,690 |
| 2009 | $77,276 | $626,351 | $0 | $703,627 | $703,627 |
| 2008 | $78,248 | $436,259 | $0 | $514,507 | $514,507 |
| 2007 | $78,248 | $436,259 | $0 | $514,507 | $514,507 |
Deed and Sales History
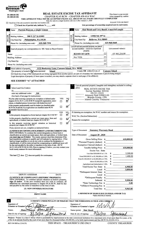
| 1 | 08/28/2020 | WD | Warranty Deed | RUNYAN, PATRICIA | BASSLI, SHAI | | | $610,000.00 | 44556 | 4495471 |
| 2 | 10/01/1987 | WD | Warranty Deed | SIMS, BAXTER | RUNYAN, PATRICIA | | | $92,000.00 | 73286 | 87014403 |
| 3 | 01/01/1900 | OTHER | Other - Misc. Documents | Unknown | SIMS, BAXTER | | | $0.00 | 0 | 0 |
Payout Agreement
| No payout information available.. |