Property
Account |
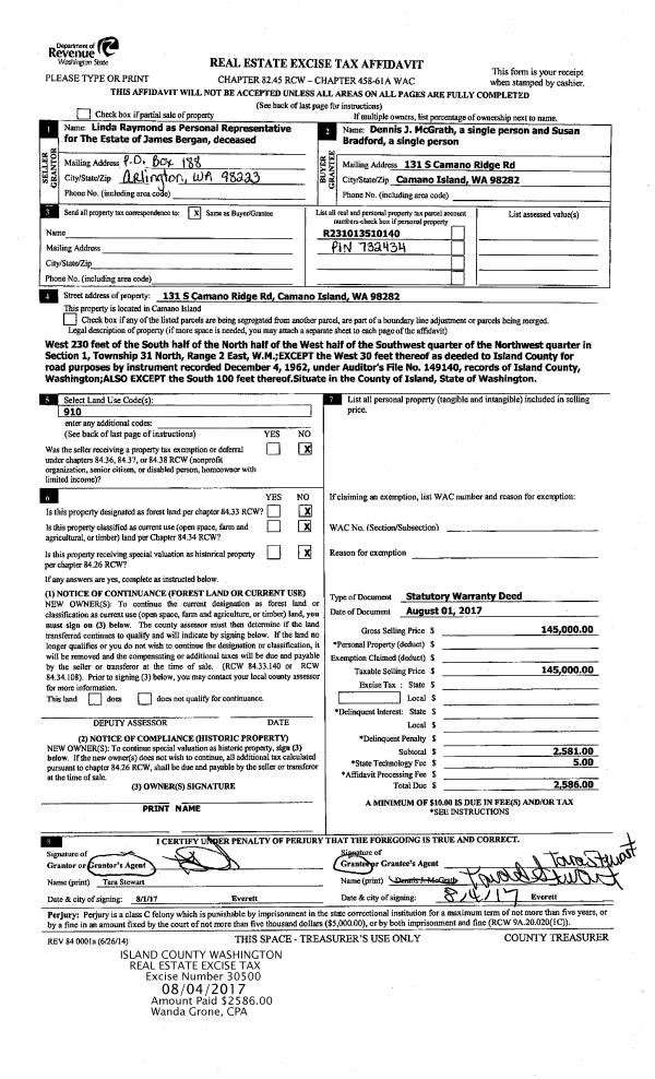
| Property ID: | 732434 | Abbreviated Legal Description: | 21 - W230' OF S/2 N/2 W/2 SW NW EX W30' & EX S100' |
| Geographic ID: | R23101-351-0140 | Agent Code: | |
| Type: | Real | | |
| Tax Area: | 512 - APPRAISER-Stan/Cam Schl Dist, improved, greater than 1 acre | Land Use Code | 11 |
| Open Space: | N | DFL | N |
| Historic Property: | N | Remodel Property: | N |
| Multi-Family Redevelopment: | N | | |
| Township: | 31 | Section: | 01 |
| Range: | R2 |
Location |
| Address: | 131 S CAMANO RIDGE RD CAMANO ISLAND, WA 98282 | Mapsco: | |
| Neighborhood: | Cycle 5 | Map ID: | 451 |
| Neighborhood CD: | 5 |
Owner |
| Name: | MCGRATH, DENNIS J | Owner ID: | 281301 |
| Mailing Address: | SUSAN BRADFORD 131 S CAMANO RIDGE RD CAMANO ISLAND, WA 98282 | % Ownership: | 100.0000000000% |
| | | Exemptions: | |
Taxes and Assessment Details
Values
| (+) Improvement Homesite Value: | + | $0 | |
| (+) Improvement Non-Homesite Value: | + | $4,000 | |
| (+) Land Homesite Value: | + | $0 | |
| (+) Land Non-Homesite Value: | + | $140,000 | |
| (+) Curr Use (HS): | + | $0 | $0 |
| (+) Curr Use (NHS): | + | $0 | $0 |
| | | -------------------------- | |
| (=) Market Value: | = | $144,000 | |
| (–) Productivity Loss: | – | $0 | |
| | | -------------------------- | |
| (=) Subtotal: | = | $144,000 | |
| (+) Senior Appraised Value: | + | $0 | |
| (+) Non-Senior Appraised Value: | + | $144,000 | |
| | | -------------------------- | |
| (=) Total Appraised Value: | = | $144,000 | |
| (–) Senior Exemption Loss: | – | $0 | |
| (–) Exemption Loss: | – | $0 | |
| | | -------------------------- | |
| (=) Taxable Value: | = | $144,000 | |
Taxing Jurisdiction
| Owner: | MCGRATH, DENNIS J | | |
| % Ownership: | 100.0000000000% | | |
| Total Value: | $144,000 | | |
| Tax Area: | 512 - APPRAISER-Stan/Cam Schl Dist, improved, greater than 1 acre |
| CF | Conservation Futures | 0.0313996660 | $144,000 | $144,000 | $4.52 | | |
| EMS1 | Fire & Rescue Dist #1 Camano GEN (EMS) | 0.4998471806 | $144,000 | $144,000 | $71.98 | | |
| FIRE1 | Fire & Rescue Dist #1 Camano GEN | 1.2496603404 | $144,000 | $144,000 | $179.95 | | |
| FIRE1BOND | Fire & Rescue Dist #1 Camano BOND | 0.1630371212 | $144,000 | $144,000 | $23.48 | | |
| CE | County Current Expense | 0.3674210519 | $144,000 | $144,000 | $52.91 | | |
| CR | County Roads | 0.4614296361 | $144,000 | $144,000 | $66.45 | | |
| LIB | Library Sno-Isle GEN | 0.3039084203 | $144,000 | $144,000 | $43.76 | | |
| SCH205_401 | School 205-401 Enrichment | 1.3697998934 | $144,000 | $144,000 | $197.25 | | |
| SCH205BOND | School 205-401 BOND | 0.9354199323 | $144,000 | $144,000 | $134.70 | | |
| ST | State School | 1.4761226122 | $144,000 | $144,000 | $212.56 | | |
| ST2 | State School Part 2 | 0.7953803475 | $144,000 | $144,000 | $114.53 | | |
| | Total Tax Rate: | 7.6534262019 | | | | | |
| | | | | Taxes w/Current Exemptions: | $1,102.09 | | |
| | | | | Taxes w/o Exemptions: | $1,102.09 | | |
Improvement / Building
| Improvement #1: | RESIDENTIAL | State Code: | Y | 0.0 sqft | Value: | $4,000 |
Sketch
| No sketches available for this property. |
Property Image
Land
| 1 | 17 | AC (01.01-02.00) | 0.0000 | 0.00 | 0.00 | 0.00 | 1.00 | $140,000 | $0 |
Roll Value History
| 2026 | N/A | N/A | N/A | N/A | N/A |
| 2025 | $4,000 | $140,000 | $0 | $144,000 | $144,000 |
| 2024 | $4,000 | $130,000 | $0 | $134,000 | $134,000 |
| 2023 | $4,000 | $230,000 | $0 | $234,000 | $234,000 |
| 2022 | $4,000 | $240,000 | $0 | $244,000 | $244,000 |
| 2021 | $4,000 | $170,000 | $0 | $174,000 | $174,000 |
| 2020 | $4,000 | $150,000 | $0 | $154,000 | $154,000 |
| 2019 | $4,000 | $200,000 | $0 | $204,000 | $204,000 |
| 2018 | $4,000 | $150,000 | $0 | $154,000 | $154,000 |
| 2017 | $4,000 | $120,000 | $0 | $124,000 | $124,000 |
| 2016 | $35,704 | $80,000 | $0 | $115,704 | $115,704 |
| 2015 | $33,973 | $74,400 | $0 | $108,373 | $108,373 |
| 2014 | $34,108 | $74,400 | $0 | $108,508 | $15,974 |
| 2013 | $34,243 | $74,400 | $0 | $108,643 | $15,974 |
| 2012 | $34,379 | $74,400 | $0 | $108,779 | $15,974 |
| 2011 | $34,514 | $93,000 | $0 | $127,514 | $15,974 |
| 2010 | $32,223 | $93,000 | $0 | $125,223 | $15,974 |
| 2009 | $32,599 | $135,000 | $0 | $167,599 | $15,974 |
| 2008 | $32,748 | $136,000 | $0 | $168,748 | $15,974 |
| 2007 | $32,895 | $123,750 | $0 | $156,645 | $15,974 |
Deed and Sales History
| 1 | 08/01/2017 | WD | Warranty Deed | BERGAN, JAMES | MCGRATH, DENNIS J | | | $145,000.00 | 30500 | 4427624 |
| 2 | 07/01/1995 | OTHER | Other - Misc. Documents | JUDD, PATRICIA R | VAN, DER S | | | $0.00 | 52316 | 0 |
| 3 | 07/01/1995 | OTHER | Other - Misc. Documents | VAN, DER S | BERGAN, JAMES | | | $2,000.00 | 52440 | 0 |
| 4 | 07/01/1995 | WD | Warranty Deed | Unknown | BERGAN, JAMES | | | $77,000.00 | 52439 | 95011317 |
| 5 | 05/01/1992 | REC | Real Estate Contract | JUDD, PATRICIA R | VANDERSAR, DICK & | | | $69,950.00 | 22027 | 92009652 |
| 6 | 04/01/1988 | OTHER | Other - Misc. Documents | JUDD, GUY K | POST, PATRICIA R | | | $0.00 | 62576 | 0 |
| 7 | 01/01/1984 | QCD | Quit Claim Deed | Unknown | JUDD, PATRICIA R | | | $0.00 | 40102 | 419811 |
| 8 | 01/01/1984 | QCD | Quit Claim Deed | JUDD, GUY K | JUDD, PATRICIA R | | | $0.00 | 40102 | 419811 |
| 9 | 10/01/1979 | CD | DNU - Correction Deed | HALBROOK, CECIL | JUDD, GUY K | | | $46,500.00 | 95035 | 360411 |
| 10 | 01/01/1900 | OTHER | Other - Misc. Documents | BERGAN, JAMES | HALBROOK, CECIL | | | $0.00 | 0 | 0 |
Payout Agreement
| No payout information available.. |