Property
Account |
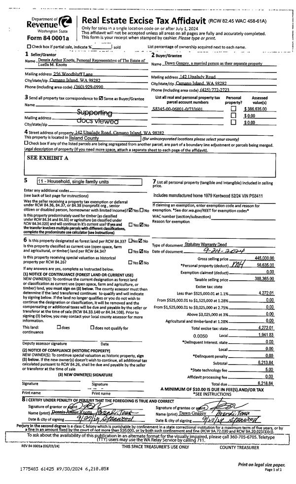
| Property ID: | 733601 | Abbreviated Legal Description: | UTSALADY LOTS 1 & 2 BLK 6 & INT TR B, C & D TGW PT ADJ VAC UTSALADY RD AF#94021250 TGW VAC ALLEY RD AF#4350403 |
| Geographic ID: | S8345-00-06001-0 | Agent Code: | |
| Type: | Real | | |
| Tax Area: | 510 - APPRAISER-Stan/Cam Schl Dist, improved & 1 acre or less | Land Use Code | 11 |
| Open Space: | N | DFL | N |
| Historic Property: | N | Remodel Property: | N |
| Multi-Family Redevelopment: | N | | |
| Township: | | Section: | |
| Range: | |
Location |
| Address: | 142 UTSALADY RD CAMANO ISLAND, WA 98282 | Mapsco: | |
| Neighborhood: | North Camano | Map ID: | 962 |
| Neighborhood CD: | 06-C |
Owner |
| Name: | HERZOG, DAWN | Owner ID: | 314049 |
| Mailing Address: | 142 UTSALADY RD CAMANO ISLAND, WA 98282 | % Ownership: | 100.0000000000% |
| | | Exemptions: | |
Taxes and Assessment Details
Values
| (+) Improvement Homesite Value: | + | $0 | |
| (+) Improvement Non-Homesite Value: | + | $53,803 | |
| (+) Land Homesite Value: | + | $0 | |
| (+) Land Non-Homesite Value: | + | $340,000 | |
| (+) Curr Use (HS): | + | $0 | $0 |
| (+) Curr Use (NHS): | + | $0 | $0 |
| | | -------------------------- | |
| (=) Market Value: | = | $393,803 | |
| (–) Productivity Loss: | – | $0 | |
| | | -------------------------- | |
| (=) Subtotal: | = | $393,803 | |
| (+) Senior Appraised Value: | + | $0 | |
| (+) Non-Senior Appraised Value: | + | $393,803 | |
| | | -------------------------- | |
| (=) Total Appraised Value: | = | $393,803 | |
| (–) Senior Exemption Loss: | – | $0 | |
| (–) Exemption Loss: | – | $0 | |
| | | -------------------------- | |
| (=) Taxable Value: | = | $393,803 | |
Taxing Jurisdiction
| Owner: | HERZOG, DAWN | | |
| % Ownership: | 100.0000000000% | | |
| Total Value: | $393,803 | | |
| Tax Area: | 510 - APPRAISER-Stan/Cam Schl Dist, improved & 1 acre or less |
| CF | Conservation Futures | 0.0313996660 | $393,803 | $393,803 | $12.37 | | |
| EMS1 | Fire & Rescue Dist #1 Camano GEN (EMS) | 0.4998471806 | $393,803 | $393,803 | $196.84 | | |
| FIRE1 | Fire & Rescue Dist #1 Camano GEN | 1.2496603404 | $393,803 | $393,803 | $492.12 | | |
| FIRE1BOND | Fire & Rescue Dist #1 Camano BOND | 0.1630371212 | $393,803 | $393,803 | $64.20 | | |
| CE | County Current Expense | 0.3674210519 | $393,803 | $393,803 | $144.69 | | |
| CR | County Roads | 0.4614296361 | $393,803 | $393,803 | $181.71 | | |
| LIB | Library Sno-Isle GEN | 0.3039084203 | $393,803 | $393,803 | $119.68 | | |
| SCH205_401 | School 205-401 Enrichment | 1.3697998934 | $393,803 | $393,803 | $539.43 | | |
| SCH205BOND | School 205-401 BOND | 0.9354199323 | $393,803 | $393,803 | $368.37 | | |
| ST | State School | 1.4761226122 | $393,803 | $393,803 | $581.30 | | |
| ST2 | State School Part 2 | 0.7953803475 | $393,803 | $393,803 | $313.22 | | |
| | Total Tax Rate: | 7.6534262019 | | | | | |
| | | | | Taxes w/Current Exemptions: | $3,013.93 | | |
| | | | | Taxes w/o Exemptions: | $3,013.93 | | |
Improvement / Building
| Improvement #1: | MANUFACTURED HOME | State Code: | Y | 1152.0 sqft | Value: | $53,803 |
| Bathrooms: | 2 | Bedrooms: | 2 | | Ceiling: | PLASTER PAINTED | Cooling: | EVAP NO DUCT | | Exterior Wall/Cover: | VINYL | Floor Covering: | CARPET 100% | | Floor Structure: | SLAB ON GRADE | Foundation: | SLAB | | Heating: | FHA ELECTRIC | Interior Finish: | PLASTER | | Plumbing Fixture Cnt: | 1 | Roof Slope: | FLAT | | Roof Structure/Cover: | CJ ALUMINIUM HEAVY |   |   |
|
| | Type | Description | Class CD | Sub Class CD | Year Built | Area |
| | BAS | BASE/MAIN FLOOR | 4 | 0 | 1978 | 1152.0 |
| | OCP | OPEN CARPORT | 4 | 0 | 1978 | 432.0 |
| | OWP | OPEN WOOD PORCH W/STEPS | 4 | 0 | 1978 | 144.0 |
Sketch
Property Image
Land
| 1 | 13 | SQ (06001-08000) | 0.0000 | 0.00 | 0.00 | 0.00 | 1.00 | $340,000 | $0 |
Roll Value History
| 2026 | N/A | N/A | N/A | N/A | N/A |
| 2025 | $53,803 | $340,000 | $0 | $393,803 | $393,803 |
| 2024 | $56,635 | $330,000 | $0 | $386,635 | $386,635 |
| 2023 | $51,711 | $360,000 | $0 | $411,711 | $411,711 |
| 2022 | $41,362 | $260,000 | $0 | $301,362 | $17,424 |
| 2021 | $37,762 | $220,000 | $0 | $257,762 | $17,424 |
| 2020 | $38,407 | $190,000 | $0 | $228,407 | $17,424 |
| 2019 | $31,629 | $230,000 | $0 | $261,629 | $17,424 |
| 2018 | $33,004 | $200,000 | $0 | $233,004 | $17,424 |
| 2017 | $35,066 | $165,000 | $0 | $200,066 | $17,424 |
| 2016 | $31,134 | $150,000 | $0 | $181,134 | $17,424 |
| 2015 | $33,079 | $150,000 | $0 | $183,079 | $17,424 |
| 2014 | $34,376 | $100,000 | $0 | $134,376 | $17,424 |
| 2013 | $35,674 | $100,000 | $0 | $135,674 | $17,424 |
| 2012 | $36,971 | $108,000 | $0 | $144,971 | $17,424 |
| 2011 | $38,916 | $135,000 | $0 | $173,916 | $17,424 |
| 2010 | $42,506 | $135,000 | $0 | $177,506 | $17,424 |
| 2009 | $44,812 | $150,024 | $0 | $194,836 | $17,423 |
| 2008 | $44,989 | $150,617 | $0 | $195,606 | $17,423 |
| 2007 | $47,286 | $149,741 | $0 | $197,027 | $17,423 |
Deed and Sales History
| 1 | 09/24/2024 | MANHOME | Manufactured Home | ESTATE OF LUELLA M KNOTTS | HERZOG, DAWN | | | $56,635.00 | 61429 | |
| 2 | 09/25/2024 | QCD | Quit Claim Deed | GNAGEY, JOE | HERZOG, DAWN | | | $0.00 | 61427 | 4577694 |
| 3 | 09/24/2024 | WD | Warranty Deed | ESTATE OF LUELLA M KNOTTS | HERZOG, DAWN | | | $388,365.00 | 61425 | 4577693 |
| 4 | 06/01/1996 | OTHER | Other - Misc. Documents | KNOTTS, LUELLA M | KNOTTS, LUELLA M | | | $0.00 | 66974 | 0 |
| 5 | 06/01/1996 | OTHER | Other - Misc. Documents | KNOTTS, WILLIAM E | KNOTTS, LUELLA M | | | $0.00 | 66974 | 0 |
| 6 | 10/01/1979 | OTHER | Other - Misc. Documents | KNOTTS, WILLIAM E | KNOTTS, LUELLA M | | | $0.00 | 61862 | 0 |
| 7 | 01/01/1900 | OTHER | Other - Misc. Documents | Unknown | KNOTTS, WILLIAM E | | | $27,222.00 | 0 | 0 |
| 8 | 01/01/1900 | OTHER | Other - Misc. Documents | KNOTTS, LUELLA M | KNOTTS, WILLIAM E | | | $0.00 | 0 | 0 |
Payout Agreement
| No payout information available.. |